Maison à construire à La Guerche-sur-l'Aubois (18150)
Images
Description
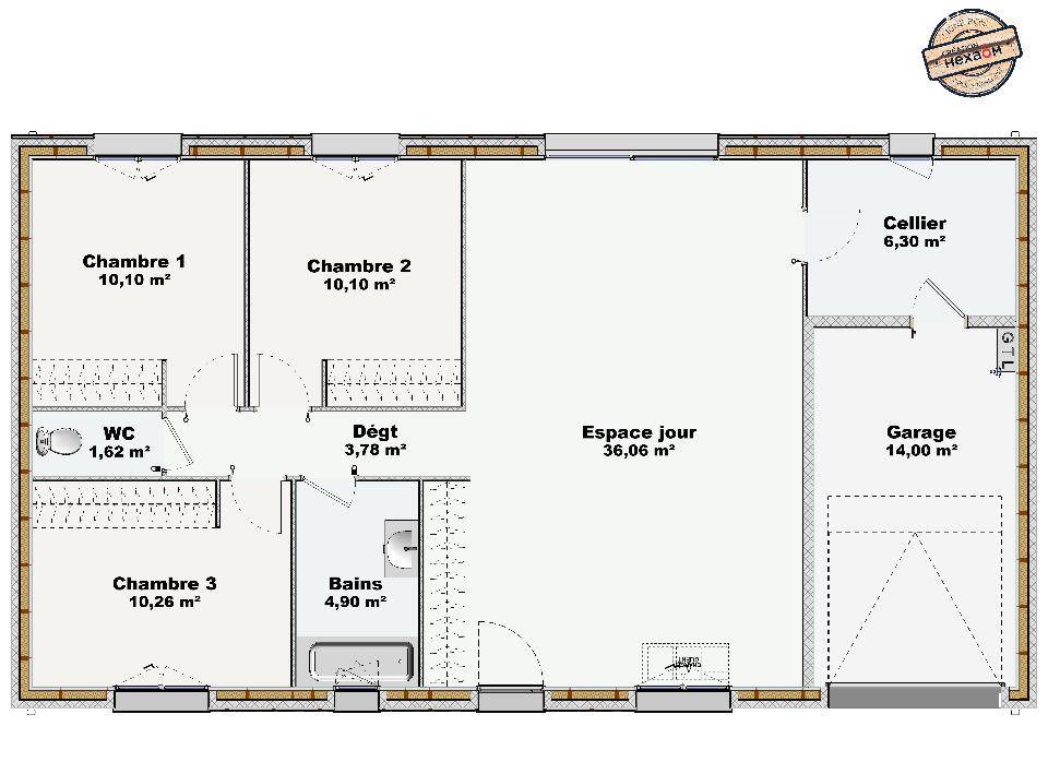
VENTE d'une maison de 5 pièces (83 m²) à La Guerche-sur-l'Aubois
Idéalement située - Maison neuve 5 pièces en vente à La Guerche-sur-l'Aubois (18150) avec une surface de 83 m² sur un terrain de 1 600 m². Conçue de plain-pied, elle compte trois chambres, une cuisine et deux salles de bains.
À dix minutes : gare (La Guerche-sur-l'Aubois), établissements scolaires, tennis, bassin de natation, commerces, boulangeries, épicerie, boucherie-charcuterie et bureau de poste. Autoroute A77 et nationale N7 à 18 km. Nevers à 17 km.
Cette maison de 5 pièces est proposée à l'achat pour 207 500 €.
Contactez Jonathan LEBLANC (tél : (Numéro supprimé)) pour toute question sur la maison, sur les démarches à suivre ou sur les modalités de vente.
Logement susceptibles de vous intéresser
Nous vous proposons de découvrir aussi cette sélection de logements situés à moins de 10km de La Guerche-sur-l'Aubois et qui seraient susceptibles de vous intéresser.
Nérondes
TERRAINEntre Bourges et Nevers sur la commune de Nérondes (18350)A vendre grand terrain à bâtir de plus de 10 000 m2 en plein cœur du village (secteur U).Ce terrain situé proche de la gare peut être divisé en plusieurs parcelles car il dispose de plus de 250m de façade sur la rue.le terrain est plat et parcouru par un chemin stabilisé qui peut recevoir camions en engins de chantier.La parcelle n’est pas viabilisée mais l’ensemble des réseaux passe dans la rue : eau, électricité, tout à l’égout et fibre. Les honoraires d’agence sont à la charge de l’acquéreur, soit 10,78% TTC du prix hors honoraires.Les informations sur les risques auxquels ce bien est exposé sont disponibles sur le site Géorisques : www. georisques. gouv. fr.Réseau Immobilier CAPIFRANCE – Votre agent commercial (RSAC N(Numéro supprimé) – Greffe de TOURS) Laurent DEBAIN Entrepreneur Individuel (Numéro supprimé) – Réf.925775
La Guerche-sur-l'Aubois
TERRAIN ET MAISONLa Guerche-sur-l’Aubois : maison T4 (81 m²) en venteIdéalement située – À La Guerche-sur-l’Aubois (18150), maison neuve à vendre de 4 pièces, 81 m² et 1 600 m² de terrain. Conçue de plain-pied, elle comporte trois chambres, une cuisine et une salle de bains.Proche gare (La Guerche-sur-l’Aubois), établissements scolaires, tennis, bassin de natation, commerces, boulangeries, épicerie, bureau de poste et boucherie-charcuterie. Autoroute A77 et nationale N7 accessibles à 18 km. Nevers à 17 km.Cette maison de 4 pièces est proposée à l’achat pour 169 100 €.Contactez notre agence (Jonathan LEBLANC : (Numéro supprimé)) pour tout renseignement sur la maison.
Cuffy
TERRAIN ET MAISONMaison de 5 pièces (96 m²) en vente à CuffyIdéalement située – À découvrir à Cuffy (18150) : maison neuve 5 pièces à vendre. 2 niveaux, surface de 96 m² sur 6 000 m² de terrain. Elle offre quatre chambres, une cuisine et une salle de bains.À proximité : gares, écoles, tennis et bureau de poste. Accès autoroute A77 à 10 km. Nevers à 10 km.Cette maison de 5 pièces est proposée à l’achat pour 187 000 €.Prenez contact avec notre agence (Jonathan LEBLANC : (Numéro supprimé)) pour plus de renseignements sur la maison ou sur les démarches à suivre.
La Guerche-sur-l'Aubois
TERRAIN ET MAISONVENTE : maison de 4 pièces (118 m²) à La Guerche-sur-l’AuboisIdéalement située – Maison neuve 4 pièces à vendre à La Guerche-sur-l’Aubois (18150) avec une surface de 118 m² sur un terrain de 1 600 m². Elle propose quatre chambres, une cuisine et deux salles de bains.À dix minutes : gare (La Guerche-sur-l’Aubois), établissements scolaires, tennis, bassin de natation, commerces, boulangeries, boucherie-charcuterie, bureau de poste et épicerie. Autoroute A77 et nationale N7 accessibles à 18 km. Nevers à 17 km.Cette maison de 4 pièces est à vendre pour la somme de 222 500 €.Contactez notre agence (LEBLANC Jonathan : (Numéro supprimé)) pour obtenir de plus amples renseignements sur la maison de plain-pied, sur les démarches à suivre ou sur les modalités de vente. Maisons Bruno Petit MJB Bourges est là pour vous accompagner à toutes les étapes de votre projet.
Cuffy
TERRAIN ET MAISONMaison de 4 pièces (100 m²) à vendre à CuffyIdéalement située – Maison neuve 4 pièces en vente à Cuffy (18150) avec une surface de 100 m² et de 6 000 m² de terrain. Son intérieur compte trois chambres, une cuisine et une salle de bains.Proche gares, écoles, tennis et bureau de poste. Autoroute A77 accessible à 10 km. Nevers à 10 km.Cette maison de 4 pièces est à vendre pour la somme de 193 200 €.Contactez Jonathan LEBLANC (tél : (Numéro supprimé)) pour toute information sur la maison de plain-pied. Maisons Bruno Petit MJB Bourges est là pour vous accompagner dans toutes vos démarches.
La Guerche-sur-l'Aubois
TERRAIN ET MAISONVENTE d’une maison T4 (100 m²) à La Guerche-sur-l’AuboisIdéalement située – À vendre à La Guerche-sur-l’Aubois (18150) : maison neuve 4 pièces de 100 m² et de 1 600 m² de terrain. Elle compte trois chambres, une cuisine et une salle de bains.À proximité : gare (La Guerche-sur-l’Aubois), établissements scolaires, tennis, bassin de natation, commerces, boulangeries, boucherie-charcuterie, bureau de poste et épicerie. Autoroute A77 et nationale N7 accessibles à 18 km. Nevers à 17 km.Cette maison de 4 pièces est à vendre pour la somme de 196 200 €.Contactez Jonathan LEBLANC ((Numéro supprimé)) pour toute information sur la maison ou sur les démarches à suivre.
La Guerche-sur-l'Aubois
TERRAIN ET MAISONMaison T4 (85 m²) à vendre à La Guerche-sur-l’AuboisIdéalement située – Maison neuve 4 pièces à vendre à La Guerche-sur-l’Aubois (18150) avec une surface de 85 m² et de 1 600 m² de terrain. Conçue de plain-pied, elle comporte trois chambres, une cuisine et une salle de bains.À dix minutes : gare (La Guerche-sur-l’Aubois), établissements scolaires, tennis, bassin de natation, commerces, boulangeries, épicerie, bureau de poste et boucherie-charcuterie. Accès autoroute A77 et nationale N7 à 18 km. Nevers à 17 km.Cette maison de 4 pièces est proposée à l’achat pour 169 100 €.Contactez notre agence (LEBLANC Jonathan : (Numéro supprimé)) pour tout renseignement sur la maison.
Cuffy
TERRAINCuffy : terrain de 6 000 m² à vendreIdéalement situé – À vendre : terrain de 6 000 m² à Cuffy (18150).À dix minutes : gares, écoles, tennis et bureau de poste. Autoroute A77 accessible à 10 km. Nevers à 10 km.Il est proposé à l’achat pour 22 000 €. N’hésitez pas à prendre contact avec notre agence (Jonathan LEBLANC : (Numéro supprimé)) pour toute information sur le terrain, sur les démarches à suivre et sur les modalités de vente. Maisons Bruno Petit MJB Bourges est là pour vous accompagner à toutes les étapes de l’achat.
La Guerche-sur-l'Aubois
TERRAINTerrain de 1 600 m² à vendre à La Guerche-sur-l’AuboisIdéalement situé – À vendre à La Guerche-sur-l’Aubois (18150) : terrain de 1 600 m².À proximité : gare (La Guerche-sur-l’Aubois), établissements scolaires, tennis, bassin de natation, commerces, boulangeries, épicerie, bureau de poste et boucherie-charcuterie. Autoroute A77 et nationale N7 à 18 km. Nevers à 17 km.Son prix de vente est de 25 000 €. Prenez contact avec Jonathan LEBLANC ((Numéro supprimé)) pour plus d’informations sur le terrain, sur les démarches à suivre ou sur les modalités de vente. Maisons Bruno Petit MJB Bourges vous accompagne dans tous vos projets immobiliers et dans toutes vos démarches.
L’actualité immobilière à La Guerche-sur-l'Aubois
27/11/2023
02/11/2023
30/10/2023
20/10/2023
16/10/2023
16/10/2023