Images
Description
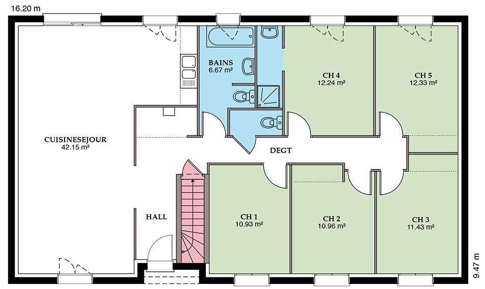
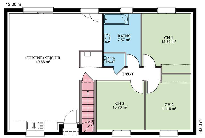
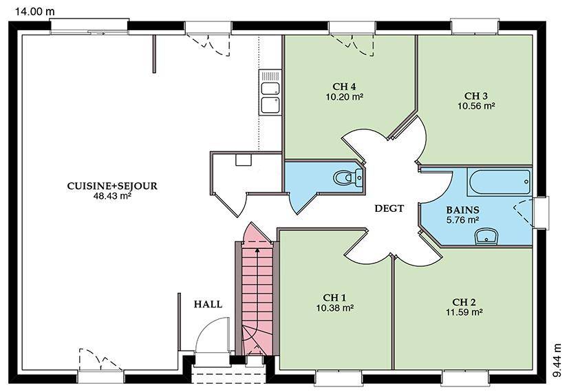
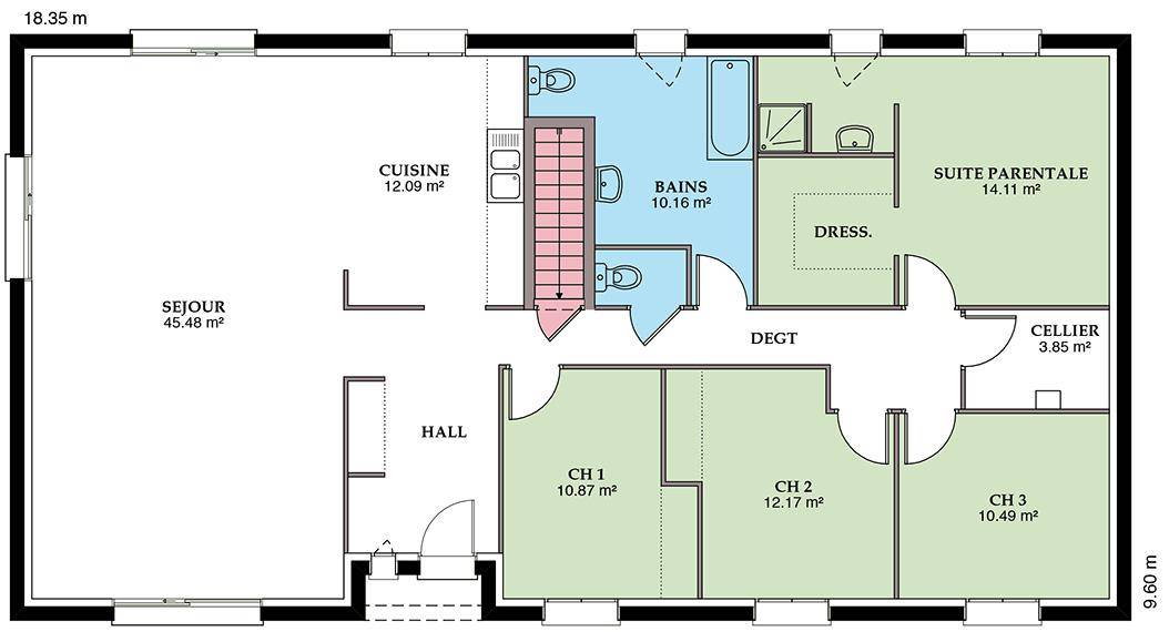
Nous vous proposons cette maison neuve, baptisée ""Aubetière"", un modèle d'habitation qui allie élégance et performance énergétique, conforme aux exigences de la norme RE2020. Avec une surface habitable de 131 m², cette maison est conçue pour offrir confort et bien-être à ses occupants.
L'Aubetière se distingue par son architecture moderne, disponible en versions à 2 ou 4 pans, permettant ainsi de s'adapter à vos préférences esthétiques et aux spécificités de votre terrain. Cette maison basse consommation est pensée pour minimiser son impact environnemental tout en garantissant des économies d'énergie significatives sur le long terme.
Le logement se compose de 4 chambres spacieuses, promettant intimité et confort pour chaque membre de la famille. Les 4 pièces de la maison sont réparties de manière à optimiser les espaces de vie, offrant une circulation fluide et agréable entre les différentes zones de la maison.
L'Aubetière est conçue selon les standards de la RE2020, la réglementation environnementale de 2020, qui vise à réduire les consommations énergétiques des bâtiments neufs et à améliorer leur performance environnementale. Cette maison neuve bénéficie donc des dernières innovations en matière d'isolation, de chauffage, et de production d'énergie renouvelable, assurant un confort optimal en toutes saisons tout en réduisant l'empreinte écologique.
En choisissant l'Aubetière, vous optez pour une maison à la pointe de la technologie, conçue pour répondre aux défis de demain. Son design soigné et ses performances énergétiques en font un lieu de vie idéal pour ceux qui cherchent à allier qualité de vie et respect de l'environnement.
N'attendez plus pour faire de l'Aubetière le foyer de vos rêves, un espace où bien-être rime avec durabilité.
Logement susceptibles de vous intéresser
Nous vous proposons de découvrir aussi cette sélection de logements situés à moins de 10km de La Guerche-sur-l'Aubois et qui seraient susceptibles de vous intéresser.
La Guerche-sur-l'Aubois
TERRAINBeau terrain à bâtir à vendre.Proche de la base de loisirs de Robinson, zone résidentielle,Entièrement clos avec grand portail,Déjà viabilisé (eau, électricité et également assainissement collectif)Dépendance existante, avec une partie atelier + une partie garage pour un véhicule.Plus de photos et informations sur demande. Les honoraires sont à la charge du vendeur.Les informations sur les risques auxquels ce bien est exposé sont disponibles sur le site Géorisques : www. georisques. gouv. fr.Réseau Immobilier CAPIFRANCE – Votre agent commercial (RSAC N(Numéro supprimé) – Greffe de NEVERS) Léa MERIT Entrepreneur Individuel (Numéro supprimé) – Réf.908552
Le Chautay
TERRAINRARE A SAISIRA 10 min de Nevers,Terrain à bâtir non viabilisé sur une surface plane de plus d’un hectare,Dans un cadre nature et arboré, idéal pour implanter votre maison en bois, maison contemporaine ou maison bioclimatique,Plus de photos et informations sur demande, Les honoraires sont à la charge du vendeur.Les informations sur les risques auxquels ce bien est exposé sont disponibles sur le site Géorisques : www. georisques. gouv. fr.Réseau Immobilier CAPIFRANCE – Votre agent commercial (RSAC N(Numéro supprimé) – Greffe de BOURGES) Aude KALUZNY Entrepreneur Individuel (Numéro supprimé) – Réf.932377
La Guerche-sur-l'Aubois
TERRAIN ET MAISONNous vous proposons cette maison neuve, baptisée « »Aubetière » », un modèle d’habitation qui allie élégance et performance énergétique, conforme aux exigences de la norme RE2020. Avec une surface habitable de 131 m², cette maison est conçue pour offrir confort et bien-être à ses occupants. L’Aubetière se distingue par son architecture moderne, disponible en versions à 2 ou 4 pans, permettant ainsi de s’adapter à vos préférences esthétiques et aux spécificités de votre terrain. Cette maison basse consommation est pensée pour minimiser son impact environnemental tout en garantissant des économies d’énergie significatives sur le long terme. Le logement se compose de 4 chambres spacieuses, promettant intimité et confort pour chaque membre de la famille. Les 4 pièces de la maison sont réparties de manière à optimiser les espaces de vie, offrant une circulation fluide et agréable entre les différentes zones de la maison. L’Aubetière est conçue selon les standards de la RE2020, la réglementation environnementale de 2020, qui vise à réduire les consommations énergétiques des bâtiments neufs et à améliorer leur performance environnementale. Cette maison neuve bénéficie donc des dernières innovations en matière d’isolation, de chauffage, et de production d’énergie renouvelable, assurant un confort optimal en toutes saisons tout en réduisant l’empreinte écologique. En choisissant l’Aubetière, vous optez pour une maison à la pointe de la technologie, conçue pour répondre aux défis de demain. Son design soigné et ses performances énergétiques en font un lieu de vie idéal pour ceux qui cherchent à allier qualité de vie et respect de l’environnement. N’attendez plus pour faire de l’Aubetière le foyer de vos rêves, un espace où bien-être rime avec durabilité.
La Guerche-sur-l'Aubois
TERRAINNous vous proposons ce Terrain entièrement viabilisé sur la commune de La Guerche sur l’Aubois . Proche écoles , commerces , services médicaux … 15 minutes de NEVERS Au calme
Nérondes
TERRAINEntre Bourges et Nevers sur la commune de Nérondes (18350)A vendre grand terrain à bâtir de plus de 10 000 m2 en plein cœur du village (secteur U).Ce terrain situé proche de la gare peut être divisé en plusieurs parcelles car il dispose de plus de 250m de façade sur la rue.le terrain est plat et parcouru par un chemin stabilisé qui peut recevoir camions en engins de chantier.La parcelle n’est pas viabilisée mais l’ensemble des réseaux passe dans la rue : eau, électricité, tout à l’égout et fibre. Les honoraires d’agence sont à la charge de l’acquéreur, soit 10,78% TTC du prix hors honoraires.Les informations sur les risques auxquels ce bien est exposé sont disponibles sur le site Géorisques : www. georisques. gouv. fr.Réseau Immobilier CAPIFRANCE – Votre agent commercial (RSAC N(Numéro supprimé) – Greffe de TOURS) Laurent DEBAIN Entrepreneur Individuel (Numéro supprimé) – Réf.925775
La Guerche-sur-l'Aubois
TERRAIN ET MAISONVENTE : maison de 4 pièces (118 m²) à La Guerche-sur-l’AuboisIdéalement située – Maison neuve 4 pièces à vendre à La Guerche-sur-l’Aubois (18150) avec une surface de 118 m² sur un terrain de 1 600 m². Elle propose quatre chambres, une cuisine et deux salles de bains.À dix minutes : gare (La Guerche-sur-l’Aubois), établissements scolaires, tennis, bassin de natation, commerces, boulangeries, boucherie-charcuterie, bureau de poste et épicerie. Autoroute A77 et nationale N7 accessibles à 18 km. Nevers à 17 km.Cette maison de 4 pièces est à vendre pour la somme de 222 500 €.Contactez notre agence (LEBLANC Jonathan : (Numéro supprimé)) pour obtenir de plus amples renseignements sur la maison de plain-pied, sur les démarches à suivre ou sur les modalités de vente. Maisons Bruno Petit MJB Bourges est là pour vous accompagner à toutes les étapes de votre projet.
La Guerche-sur-l'Aubois
TERRAIN ET MAISONMaison T4 (85 m²) à vendre à La Guerche-sur-l’AuboisIdéalement située – Maison neuve 4 pièces à vendre à La Guerche-sur-l’Aubois (18150) avec une surface de 85 m² et de 1 600 m² de terrain. Conçue de plain-pied, elle comporte trois chambres, une cuisine et une salle de bains.À dix minutes : gare (La Guerche-sur-l’Aubois), établissements scolaires, tennis, bassin de natation, commerces, boulangeries, épicerie, bureau de poste et boucherie-charcuterie. Accès autoroute A77 et nationale N7 à 18 km. Nevers à 17 km.Cette maison de 4 pièces est proposée à l’achat pour 169 100 €.Contactez notre agence (LEBLANC Jonathan : (Numéro supprimé)) pour tout renseignement sur la maison.
La Guerche-sur-l'Aubois
TERRAINTerrain de 1 600 m² à vendre à La Guerche-sur-l’AuboisIdéalement situé – À vendre à La Guerche-sur-l’Aubois (18150) : terrain de 1 600 m².À proximité : gare (La Guerche-sur-l’Aubois), établissements scolaires, tennis, bassin de natation, commerces, boulangeries, épicerie, bureau de poste et boucherie-charcuterie. Autoroute A77 et nationale N7 à 18 km. Nevers à 17 km.Son prix de vente est de 25 000 €. Prenez contact avec Jonathan LEBLANC ((Numéro supprimé)) pour plus d’informations sur le terrain, sur les démarches à suivre ou sur les modalités de vente. Maisons Bruno Petit MJB Bourges vous accompagne dans tous vos projets immobiliers et dans toutes vos démarches.
Cuffy
TERRAINCuffy : terrain de 6 000 m² à vendreIdéalement situé – À vendre : terrain de 6 000 m² à Cuffy (18150).À dix minutes : gares, écoles, tennis et bureau de poste. Autoroute A77 accessible à 10 km. Nevers à 10 km.Il est proposé à l’achat pour 22 000 €. N’hésitez pas à prendre contact avec notre agence (Jonathan LEBLANC : (Numéro supprimé)) pour toute information sur le terrain, sur les démarches à suivre et sur les modalités de vente. Maisons Bruno Petit MJB Bourges est là pour vous accompagner à toutes les étapes de l’achat.
L’actualité immobilière à La Guerche-sur-l'Aubois
27/11/2023
02/11/2023
30/10/2023
20/10/2023
16/10/2023
16/10/2023