Images
Description
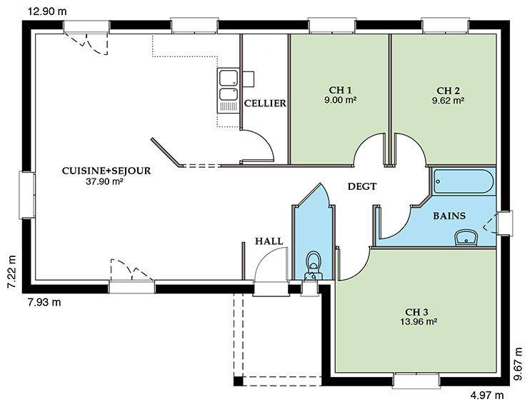
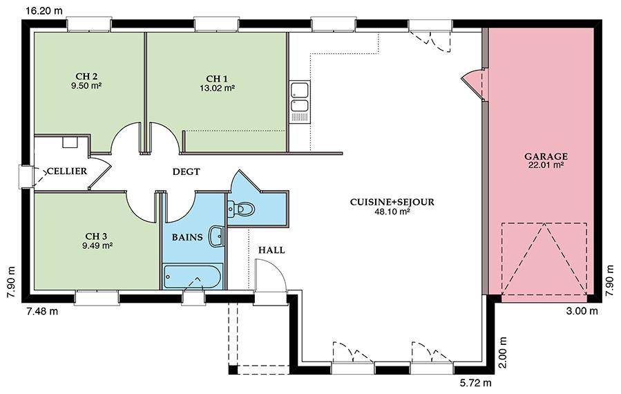
Nous vous proposons cette maison neuve, baptisée ""Mezière"", un modèle de construction qui allie élégance et performance énergétique. Avec une surface habitable de 109 m², cette demeure est conçue pour offrir confort et bien-être à ses occupants. Elle se compose de 4 chambres spacieuses et lumineuses, réparties dans un agencement de 4 pièces pensé pour optimiser l'espace et la fonctionnalité.
La maison Mezière se distingue par son architecture moderne, disponible en versions à 2 ou 4 pans, selon vos préférences. Son porche accueillant invite à entrer et découvrir un intérieur soigneusement agencé. Cette maison est idéale pour ceux qui cherchent à combiner style et confort de vie.
L'un des atouts majeurs de la Mezière réside dans son engagement envers l'environnement et l'économie d'énergie. Cette maison est conçue pour être basse consommation, conformément aux exigences de la réglementation environnementale RE2020. Cela signifie que vous bénéficierez d'une isolation optimale, d'une excellente performance thermique et d'une réduction significative de vos factures d'énergie, tout en contribuant à la protection de l'environnement.
La maison Mezière est donc une invitation à vivre dans un espace moderne, confortable et respectueux de l'environnement. Elle représente l'opportunité idéale pour les familles cherchant à s'installer dans une maison neuve, pensée pour répondre aux défis du 21e siècle. Ne manquez pas cette chance de construire la maison de vos rêves, un lieu où chaque jour sera empreint de bien-être et d'harmonie.
Logement susceptibles de vous intéresser
Nous vous proposons de découvrir aussi cette sélection de logements situés à moins de 10km de Marmagne et qui seraient susceptibles de vous intéresser.
Mehun-sur-Yèvre
TERRAIN ET MAISONMaison neuve – 5 chambres – Suite parentale – GarageVolumes généreux & luminosité exceptionnelle !Découvrez cette superbe maison idéale pour une grande famille :✨ 5 chambres dont une suite parentale avec dressing et salle d’eau✨ 2 salles de bain✨ Grande pièce de vie ultra lumineuse✨ Cuisine ouverte avec cellier✨ Garage attenantDes beaux volumes, une luminosité remarquable et une conception pensée pour le confort quotidien.Un projet moderne, spacieux et résolument séduisant !Réalisez la maison qui vous ressemble, adaptée à vos besoins avec MAISONS FRANCE CONFORT sur ce terrain en accord avec un partenaire foncier.📞 Contactez Maisons France Confort Saint-Doulchard dès aujourd’hui pour plus d’informations et commencer votre projet de construction !
Saint-Doulchard
TERRAIN ET MAISONMAISONS FRANCE CONFORT – Votre future maison d’exception à Saint-Doulchard !120 m² + garage – Confort, volume et modernité !Saisissez l’opportunité de réaliser une maison sur mesure signée Maisons France Confort, alliant design contemporain, grands espaces et prestations de qualité.Au programme :✨ 3 chambres dont une suite parentale premium avec espace privatif✨ Une grande pièce de vie lumineuse, parfaite pour accueillir famille et amis✨ Cuisine ouverte avec cellier attenant, pour un quotidien facilité✨ Garage, idéal pour stockageUn projet pensé pour offrir bien-être, fonctionnalité et valeur pérenne.Un investissement sûr, un confort durable : construisez l’avenir avec Maisons France Confort !Réalisez la maison qui vous ressemble, adaptée à vos besoins avec MAISONS FRANCE CONFORT sur ce terrain en accord avec un partenaire foncier.📞 Contactez Maisons France Confort Saint-Doulchard pour plus d’informations et commencer votre projet de construction !
Saint-Doulchard
TERRAIN ET MAISONProjet de construction – Maison familiale à Saint-Doulchard (18230)Maisons France Confort Saint-Doulchard vous propose un projet de construction d’une maison moderne et fonctionnelle située à Saint-Doulchard, idéale pour une famille en quête de confort et de sérénité.Cette maison disposera de 4 chambres, dont une suite parentale comprenant un dressing et une salle d’eau privative, offrant un véritable espace intime et indépendant.Un grand cellier/buanderie viendra compléter les espaces pratiques de la maison pour un quotidien plus organisé.Les 3 autres chambres, dédiées aux enfants ou aux invités, sont situées dans un espace nuit séparé et bénéficient d’une belle salle de bain indépendante, garantissant confort et intimité pour toute la famille.La pièce de vie, spacieuse et lumineuse, a été pensée pour être chaleureuse et conviviale, parfaite pour recevoir et partager des moments en famille ou entre amis.Réalisez la maison qui vous ressemble, adaptée à vos besoins avec MAISONS FRANCE CONFORT sur ce terrain en accord avec un partenaire foncier.📞 Contactez Maisons France Confort Saint-Doulchard dès aujourd’hui pour plus d’informations et commencer votre projet de construction !
Saint-Doulchard
TERRAIN ET MAISONProjet de construction d’une maison individuelle moderne et fonctionnelle, idéale pour un couple, une jeune famille ou un investissement patrimonial.Cette maison se compose de :Une belle pièce de vie lumineuse, avec salon, séjour et cuisine ouverte, offrant un espace convivial et agréable au quotidienDeux chambres confortables, bien agencéesUne salle de bain fonctionnelleUn WC séparé, pour plus de confortUn cellier, parfait pour le rangement et les équipements (machine à laver, garde-manger…)Un garage attenant, pratique et sécurisé⭐ Atout majeur : combles aménageablesLes combles offrent un vrai potentiel d’agrandissement : possibilité de créer une ou deux chambres supplémentaires, un bureau ou une salle de jeux dans le futur, selon vos besoins.Cette construction allie confort, modernité et évolutivité, avec une excellente optimisation des espaces et la possibilité d’adapter la maison à l’évolution de votre vie.Possibilité de réaliser votre projet personnalisé avec Maisons France Confort sur ce terrain en accord avec notre partenaire foncier.📞 Contactez Maisons France Confort Saint-Doulchard dès aujourd’hui pour étudier votre projet et faire de cette maison votre futur chez-vous.
Saint-Doulchard
TERRAIN ET MAISONMAISON NEUVE 3 CHAMBRES AVEC GARAGE – MAISONS FRANCE CONFORTMaisons France Confort vous propose ce projet de maison individuelle idéale pour une famille, alliant confort, modernité et fonctionnalité.La maison comprend :✅ 3 chambres✅ Une belle pièce de vie lumineuse avec espace salon/salle à manger✅ Une cuisine ouverte✅ Un cellier pratique✅ Une salle de bain moderne✅ Un WC séparé✅ Un garage attenantMaison conçue selon les dernières normes environnementales (RE2020), offrant d’excellentes performances énergétiques et un confort optimal toute l’année.Projet personnalisable selon vos envies et votre budget.Idéal pour un premier achat ou un projet de vie en famille.Possibilité de réaliser votre projet personnalisé avec Maisons France Confort sur ce terrain en accord avec notre partenaire foncier📞 Contactez Maisons France Confort Saint-Doulchard dès aujourd’hui pour étudier votre projet et faire de cette maison votre futur chez-vous
Saint-Doulchard
TERRAINIdéal pour votre projet de maison avec Maisons France Confort🏠 Un projet de construction personnaliséLe constructeur Maisons France Confort vous accompagne pour imaginer et bâtir la maison de vos rêves :Maisons traditionnelles, modernes ou contemporaines.Plans personnalisables selon vos besoins et votre budget.Garanties et accompagnement complet (CCMI, suivi de chantier, performance énergétique).Pour plus d’informations sur les possibilités de construction avec Maisons France Confort, contactez Jessica DA COSTA au (Numéro supprimé)Nous vous accompagnerons à chaque étape de votre projet pour une réalisation en toute sérénité sur ce terrain proposé en accord avec notre partenaire foncier.
Saint-Doulchard
TERRAIN ET MAISON🏡 Construction à Saint-Doulchard – Maison 2 chambres évolutive avec combles aménageablesDécouvrez ce projet de construction moderne et fonctionnel, proposé par Maisons France Confort, constructeur reconnu du groupe HEXAOM, premier constructeur de maisons individuelles en France.✨ Descriptif du projet :Maison de plain-pied, aux normes PMR (personne à mobilité réduite), pensée pour le confort et l’accessibilité2 chambres lumineuses et bien agencéesCombles aménageables, offrant un fort potentiel d’évolution selon vos besoins futurs (chambres supplémentaires, bureau, salle de jeux, etc.)Belle pièce de vie conviviale, ouverte sur le jardinCuisine ouverte et cellier fonctionnelSalle d’eau moderne et WC 🌿 Maison conforme à la norme RE2020, garantissant confort, performance énergétique et économies d’énergie.💡 Idéale pour un investissement locatif ou un premier achat, cette maison combine accessibilité, évolutivité et rentabilité.📍 Localisation : Saint-Doulchard, commune agréable à vivre, bien desservie et disposant de toutes les commodités (écoles, commerces, services), à quelques minutes de Bourges.🏠 Maisons France Confort vous accompagne pour réaliser un projet sur mesure, fiable et durable.Possibilité de réaliser votre projet personnalisé avec Maisons France Confort sur ce terrain en accord avec notre partenaire foncier📞 Contactez Maisons France Confort Saint-Doulchard dès aujourd’hui pour étudier votre projet et faire de cette maison votre futur chez-vous
Saint-Doulchard
TERRAIN ET MAISON🏡 Construction Maison R+1 – 4 chambres avec garage – Prestations haut de gammeRéalisez votre projet de vie avec Maisons France Confort, constructeur du groupe HEXAOM, premier constructeur de maisons individuelles en France, reconnu pour la qualité et le sérieux de ses réalisations.✨ Caractéristiques de la maison :R+1 complet offrant de beaux volumes et une organisation fonctionnelle4 chambres spacieuses pour toute la famille2 WC et un cellier pratique pour le rangementGrande pièce de vie lumineuse pour profiter d’un espace convivial et confortableMaison conforme aux normes RE2020, garantissant confort thermique et économies d’énergie🌿 Prestations haut de gamme : matériaux de qualité, finitions soignées et conception moderne pour un confort optimal.🏠 Maisons France Confort, c’est la garantie d’une construction fiable, sur mesure, et pensée pour allier fonctionnalité, espace et confort, idéale pour une vie de famille sereine.Possibilité de réaliser votre projet personnalisé avec Maisons France Confort sur ce terrain en accord avec notre partenaire foncier.📞 Contactez Maisons France Confort Saint-Doulchard dès aujourd’hui pour étudier votre projet et faire de cette maison votre futur chez-vous
Marmagne
TERRAINIdéalement situé dans un environnement calme et verdoyant, nous vous proposons ce terrain d’une superficie de 760 m².La parcelle offre une façade de 24 m et une profondeur de 32 m, permettant de réaliser un projet de construction confortable et fonctionnel. Points fortsSecteur recherché et paisibleTerrain rectangulaire facile à exploiterAccès rapide aux commodités Proximité (en minutes)Commerces de Marmagne : 3-4 minÉcole primaire : 3 minCollèges : 8 minBourges et zones commerciales : 10 min Informations complémentairesÉtude de sol à venirDemande de Certificat d’Urbanisme opérationnel (CU)Des questions???… Nous sommes à votre disposition… Les honoraires sont à la charge du vendeur.Les informations sur les risques auxquels ce bien est exposé sont disponibles sur le site Géorisques : www. georisques. gouv. fr.Réseau Immobilier CAPIFRANCE – Votre agent commercial (RSAC N(Numéro supprimé) – Greffe de BOURGES) Véronique MARTINS-FERREIRA Entrepreneur Individuel à Responsabilité Limitée (Numéro supprimé) – Réf.932330
L’actualité immobilière à Marmagne
27/11/2023
02/11/2023
30/10/2023
20/10/2023
16/10/2023
16/10/2023