Images
Description
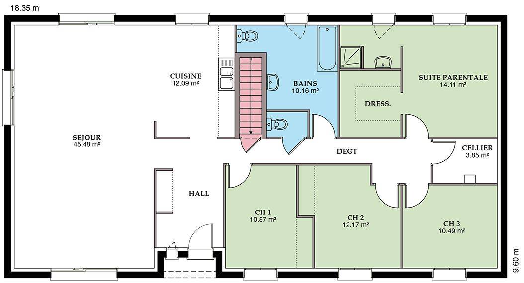
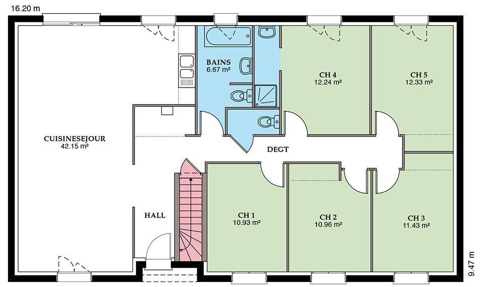
Maison Aubetière – 109 m² de confort moderne
Découvrez l’Aubetière, une maison neuve de 109 m² alliant élégance et performance énergétique. Conforme à la norme RE2020, elle offre un confort durable et une consommation maîtrisée.
Proposée en toit 2 pans ou 4 pans, l’Aubetière s’adapte à tous les styles et s’intègre harmonieusement à son environnement. À l’intérieur, vous profitez d’un espace lumineux avec 4 chambres et un grand séjour ouvert, pensé pour la vie de famille.
Grâce à son isolation performante et ses matériaux écoresponsables, cette maison basse consommation conjugue style, économie et durabilité. L’Aubetière, c’est le choix d’une maison moderne où bien-être et éco-responsabilité vont de pair.
Logement susceptibles de vous intéresser
Nous vous proposons de découvrir aussi cette sélection de logements situés à moins de 10km de Nançay et qui seraient susceptibles de vous intéresser.
Nançay
TERRAINDécouvrez cette opportunité rare d’acquérir un terrain viabilisé d’une généreuse surface de 850 m², idéalement situé dans le charmant lotissement de Nançay, dans le département du Cher en Centre-Val de Loire. Ce parcelle vous offre un cadre champêtre parfait pour le projet de construction de la maison de vos rêves. Vous serez séduit par la tranquillité du lieu, le terrain plat, et entouré d’une nature arborée qui favorise une qualité de vie incomparable. Nançay, un village pittoresque, bénéficie d’une situation géographique privilégiée alliant calme et proximité avec les commodités nécessaires au quotidien. À quelques pas, vous trouverez divers commerces, garantissant une vie de village vibrante et pratique. Profitez également des attractions locales, qui rendent cette commune si accueillante, comme la beauté de ses paysages environnants. Le cadre ensoleillé et au calme est parfait pour ceux qui recherchent une vie paisible tout en restant à proximité des services essentiels. Ce terrain représente un potentiel exceptionnel pour concrétiser vos projets et bâtir un lieu de vie chaleureux. Ne laissez pas passer cette chance d’investir dans un cadre de vie de qualité. Contactez-nous pour plus d’informations sur cette occasion unique. À noter qu’en tant que constructeur, nous ne sommes pas mandatés pour réaliser la vente de ce terrain.
Nançay
TERRAIN ET MAISONMaison Aubetière – 109 m² de confort moderneDécouvrez l’Aubetière, une maison neuve de 109 m² alliant élégance et performance énergétique. Conforme à la norme RE2020, elle offre un confort durable et une consommation maîtrisée.Proposée en toit 2 pans ou 4 pans, l’Aubetière s’adapte à tous les styles et s’intègre harmonieusement à son environnement. À l’intérieur, vous profitez d’un espace lumineux avec 4 chambres et un grand séjour ouvert, pensé pour la vie de famille.Grâce à son isolation performante et ses matériaux écoresponsables, cette maison basse consommation conjugue style, économie et durabilité. L’Aubetière, c’est le choix d’une maison moderne où bien-être et éco-responsabilité vont de pair.
Nançay
TERRAIN18330 – NANCAY – CENTRE VILLE – TERRAIN CONSTRUCTIBLE – 1602 M2 – OPPORTUNITÉ À SAISIRRudy BELLEFLEUR et efficity, l’agence qui estime votre bien en ligne, vous propose ce terrain constructible de 1602 m2 avec coefficient de superficie au sol de 30% au cœur de Nançay (18330). À vendre : Terrain idéalement situé à Nançay – Opportunité rare !Découvrez ce superbe terrain offrant de nombreuses possibilités pour la construction de votre future résidence. Grâce à sa surface généreuse, vous pourrez laisser libre cours à toutes vos envies d’aménagement : maison familiale, villa contemporaine, jardin spacieux, espace détente… tout est envisageable ! Un emplacement stratégique et recherchéIdéalement situé, ce terrain bénéficie du parfait équilibre entre tranquillité et commodités. Vous profiterez d’un cadre calme, agréable et propice à la détente, tout en restant proche des services essentiels :École, coiffeur et bar-tabac en plein cœur de NançayPharmacie à seulement 5 minutesSupermarché à Salbris, à environ 12 minutesVierzon et toutes ses commodités à 20 minutesBourges à 35 minutesAccès rapide aux commerces et services de proximité pour simplifier votre quotidien Pourquoi choisir ce terrain ?-Belle surface permettant de multiples projets de construction-Environnement paisible et agréable-Services essentiels à proximité immédiate-Supermarché accessible en 12 minutes-Pharmacie à 5 minutes-Accès facilité vers Vierzon (20 min) et Bourges (35 min)Emplacement stratégique dans un secteur priséNe laissez pas passer cette opportunité rare d’acquérir un terrain de cette taille dans un cadre aussi recherché.N’hésitez pas à me contacter pour plus d’informations :Rudy BELLEFLEUR(Numéro supprimé)(Email supprimé) Les informations sur les risques auxquels ce bien est exposé sont disponibles sur le site Georisque : georisques. gouv. fr Rudy Bellefleur – EI – est Agent Commercial mandataire en immobilier, immatriculé au Registre Spécial des Agents Commerciaux du Tribunal de Commerce de Bourges sous le n(Numéro supprimé).Siège social du mandant : effiCity, 48 avenue de Villiers – 75017 PARIS – Société par Actions Simplifiée, société au capital de 132 373,05 euros, immatriculée au RCS Paris 497 617 746 et titulaire de la Carte professionnelle CPI 7501 2015 000 002 025 – CCI Paris IDF – Caisse de Garantie : GALIAN Assurances 89 rue de la Boétie 75008 Paris
Nançay
TERRAINVous rêvez de construire votre petit cocon familial dans un cadre paisible, naturel et reposant?J’ai potentiellement trouver le terrain qu’il vous faut! Localisation idéaleSitué dans la triangulaire Salbris-Vierzon-Bourges et plus exactement sur la commune de Nançay (18330) proche du bourg et de la fameuse ‘biscuiterie de Nançay’, ce terrain de 1646 m² vous offre un environnement verdoyant et extrêmement calme avec accès facile à des sentiers forestiers.Ideal pour les amoureux de nature! Terrain viabilisé (eau et électricité déjà en place)Zone non inondable, sol platAssainissement collectif Situation & accessibilitéA seulement 20 minutes de la gare SNCF de Vierzon (ligne Paris – Limoges – Toulouse) et à 10 minute de l’autoroute A71A 40 minutes de Bourges, capitale historique du BerryA 10 min de SalbrisAccès rapide à la départementale D79 et à la D926 Commodités à proximitéCommerces, école primaire, services de santé dans les villages alentoursSupermarchés, collèges, lycées à Mehun-sur-Yèvre et VierzonProximité des zones naturelles et sentiers de randonnée Pourquoi ce terrain ?Terrain constructible , sans gros travaux de viabilisationCadre de vie rural et préservé, au cœur du BerryIdéal pour un projet de maison principale, résidence secondaire, ou habitat légerEnvironnement sans nuisances, parfait pour télétravail ou retraite au vertEtude de sol et Certificat d’urbanisme à disposition. À visiter sans tarderCette annonce référence 294727 vous est présentée par votre agent commercial BSK Immobilier MICKAËL SKOWRONSKI (EI) immatriculé au RSAC de BOURGES (18000) sous le numéro 9(Numéro supprimé)017.Prix du bien : 38 490,00 €Les honoraires d’agence sont à la charge du vendeur.Les informations sur les risques auxquels ce bien est exposé sont disponibles sur le site Géorisques : www.georisques.gouv.fr
L’actualité immobilière à Nançay
27/11/2023
02/11/2023
30/10/2023
20/10/2023
16/10/2023
16/10/2023