Images
Description
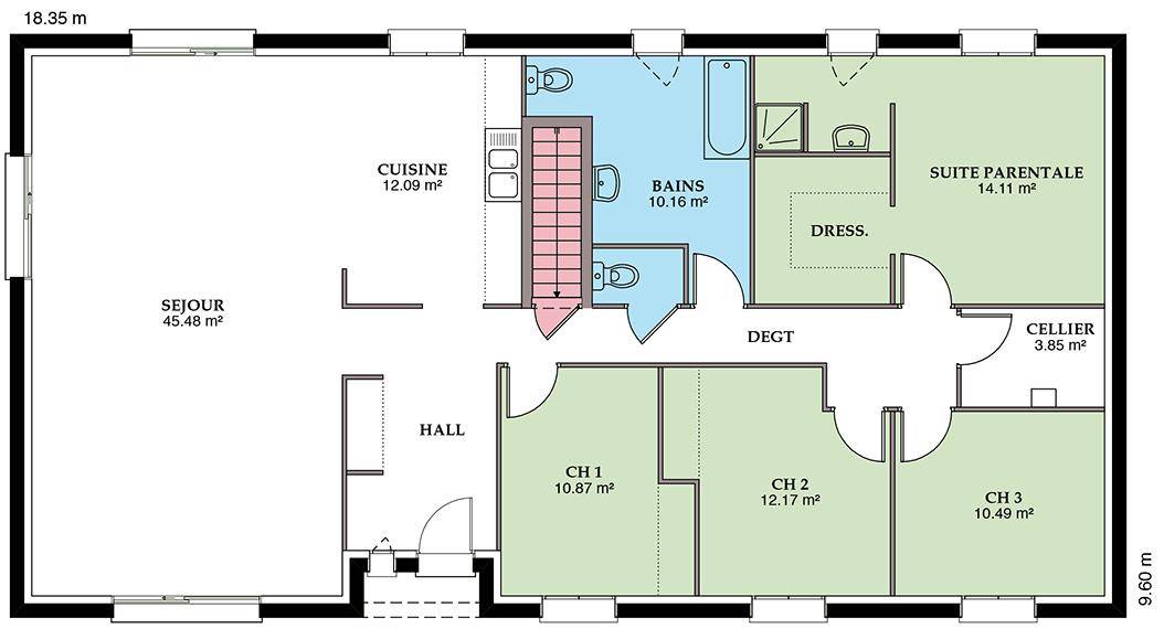
Maison Aubetière – 109 m² de confort moderne
Découvrez l’Aubetière, une maison neuve de 109 m² alliant élégance et performance énergétique. Conforme à la norme RE2020, elle offre un confort durable et une consommation maîtrisée.
Proposée en toit 2 pans ou 4 pans, l’Aubetière s’adapte à tous les styles et s’intègre harmonieusement à son environnement. À l’intérieur, vous profitez d’un espace lumineux avec 4 chambres et un grand séjour ouvert, pensé pour la vie de famille.
Grâce à son isolation performante et ses matériaux écoresponsables, cette maison basse consommation conjugue style, économie et durabilité. L’Aubetière, c’est le choix d’une maison moderne où bien-être et éco-responsabilité vont de pair.
Logement susceptibles de vous intéresser
Nous vous proposons de découvrir aussi cette sélection de logements situés à moins de 10km de Plaimpied-Givaudins et qui seraient susceptibles de vous intéresser.
Trouy
TERRAIN ET MAISONNous vous proposons cette maison neuve, baptisée Focus 73, un modèle de construction qui allie modernité, confort et respect de l’environnement. Avec une surface habitable de 73 m², cette maison est parfaitement conçue pour accueillir confortablement votre famille, offrant 3 chambres spacieuses et un total de 4 pièces bien agencées pour maximiser l’espace et la luminosité. Le modèle Focus 73 se distingue par son garage intégré, offrant non seulement un espace de stationnement sécurisé pour votre véhicule mais aussi un accès direct à votre domicile, facilitant ainsi votre quotidien. Cette maison est conçue pour répondre aux exigences de la norme RE2020, la réglementation environnementale la plus récente, garantissant une construction basse consommation. Cela signifie que vous bénéficierez d’une isolation optimale, d’une excellente performance énergétique et d’une réduction significative de vos factures d’énergie, tout en contribuant à la protection de l’environnement. La Focus 73 est l’incarnation de l’habitat du futur, offrant un cadre de vie sain et économique. Son architecture moderne et ses finitions de qualité en font un lieu de vie agréable et fonctionnel. La maison est conçue pour offrir un confort optimal en toutes saisons, grâce à une gestion intelligente de la température intérieure et à l’utilisation de matériaux durables et écologiques. En choisissant la Focus 73, vous optez pour une maison neuve qui respecte les plus hauts standards de qualité et de performance énergétique. C’est l’assurance de vivre dans un espace sain, confortable et respectueux de l’environnement, conçu pour répondre aux besoins de votre famille aujourd’hui et demain. Ne manquez pas cette opportunité de construire la maison de vos rêves, conforme aux dernières normes environnementales. La Focus 73 est la promesse d’un avenir durable et d’un investissement pérenne pour vous et vos proches. Contactez-nous dès maintenant pour plus d’informations et débutons ensemble le projet
Bourges
TERRAINNous vous présentons un superbe terrain viabilisé de 430 m², situé dans le charmant quartier en lotissement de Bourges, parfait pour donner vie à votre projet de construction. Ce bien rare, le dernier terrain disponible de la zone, offre une occasion unique de bâtir la maison de vos rêves au cœur de cette ville historique. Sa superficie généreuse vous permettra de concevoir un espace de vie adapté à vos envies et à votre style de vie. Bourges, située dans le département du Cher en Centre-Val de Loire, est une ville réputée pour sa qualité de vie et son riche patrimoine culturel. Vous bénéficierez de l’animation du centre-ville avec ses commerces variés et ses commodités accessibles à pied. À proximité, vous trouverez également un accès facile aux axes routiers importants, facilitant vos déplacements. La ville est entourée de magnifiques sites naturels et historiques, vous permettant ainsi de profiter pleinement de votre cadre de vie. Ne laissez pas passer cette opportunité d’acquérir un terrain au potentiel exceptionnel dans une ville pleine de charme. Contactez-nous dès maintenant pour plus d’informations et laissez libre cours à votre imagination ! À noter qu’en tant que constructeur, nous ne sommes pas mandatés pour réaliser la vente de ce terrain.
Plaimpied-Givaudins
TERRAINDécouvrez ce magnifique terrain viabilisé de 820 m², idéalement situé à Plaimpied-Givaudins, dans le département du Cher. Ce terrain, dernier disponible du lotissement, offre une surface plane parfaite pour la construction de votre maison de rêve. Avec ses caractéristiques uniques, ce bien vous permettra de bénéficier d’un cadre de vie paisible en toute proximité des commodités nécessaires à votre quotidien. Plaimpied-Givaudins, située en Centre-Val de Loire, est une ville qui allie qualité de vie et accessibilité. À quelques pas des commerces et des services locaux, vous profiterez d’un environnement agréable avec une vue dégagée. Les nombreux atouts de cette localité, notamment ses infrastructures et son dynamisme, en font un lieu de vie prisé, idéal pour les familles et les futurs propriétaires souhaitant s’installer dans un cadre harmonieux. Ne laissez pas passer cette opportunité unique d’acquérir un terrain au potentiel sans pareil, parfait pour concrétiser votre projet de construction. Contactez-nous pour plus d’informations! À noter qu’en tant que constructeur, nous ne sommes pas mandatés pour réaliser la vente de ce terrain.
Bourges
TERRAIN ET MAISONNous vous proposons cette maison neuve, baptisée Focus 73, un modèle de construction qui allie modernité, confort et respect de l’environnement. Avec une surface habitable de 73 m², cette maison est parfaitement conçue pour accueillir confortablement votre famille, offrant 3 chambres spacieuses et un total de 4 pièces bien agencées pour maximiser l’espace et la luminosité. Le modèle Focus 73 se distingue par son garage intégré, offrant non seulement un espace de stationnement sécurisé pour votre véhicule mais aussi un accès direct à votre domicile, facilitant ainsi votre quotidien. Cette maison est conçue pour répondre aux exigences de la norme RE2020, la réglementation environnementale la plus récente, garantissant une construction basse consommation. Cela signifie que vous bénéficierez d’une isolation optimale, d’une excellente performance énergétique et d’une réduction significative de vos factures d’énergie, tout en contribuant à la protection de l’environnement. La Focus 73 est l’incarnation de l’habitat du futur, offrant un cadre de vie sain et économique. Son architecture moderne et ses finitions de qualité en font un lieu de vie agréable et fonctionnel. La maison est conçue pour offrir un confort optimal en toutes saisons, grâce à une gestion intelligente de la température intérieure et à l’utilisation de matériaux durables et écologiques. En choisissant la Focus 73, vous optez pour une maison neuve qui respecte les plus hauts standards de qualité et de performance énergétique. C’est l’assurance de vivre dans un espace sain, confortable et respectueux de l’environnement, conçu pour répondre aux besoins de votre famille aujourd’hui et demain. Ne manquez pas cette opportunité de construire la maison de vos rêves, conforme aux dernières normes environnementales. La Focus 73 est la promesse d’un avenir durable et d’un investissement pérenne pour vous et vos proches. Contactez-nous dès maintenant pour plus d’informations et débutons ensemble le projet
Bourges
TERRAINNous vous présentons une occasion rare d’acquérir un terrain d’une superficie de 430 m², idéalement situé dans un secteur calme et agréable de Bourges, dans le département du Cher. Ce terrain, entièrement viabilisé, vous permettra de réaliser votre projet de construction de maison selon vos besoins et aspirations. Sa platitude et son aménagement optimal en font un endroit privilégié pour accueillir votre futur foyer, créant ainsi un cadre de vie confortable et harmonieux. Bourges, charmante ville au cœur de la région Centre-Val de Loire, est reconnue pour son riche patrimoine historique et culturel. En plus de sa cathédrale classée au patrimoine mondial de l’UNESCO, cette ville dynamique offre de nombreuses attractions locales, des commerces de proximité et des commodités variées, garantissant un quotidien agréable. Les espaces verts et les infrastructures de loisirs à proximité ajoutent une valeur indéniable à ce terrain, faisant de cet emplacement un choix idéal pour les familles et les amoureux de tranquillité. Ne manquez pas cette opportunité d’investir dans un terrain au potentiel exceptionnel, apte à réaliser la maison de vos rêves. Contactez-nous pour en savoir plus sur ce bien unique et envisagez dès maintenant votre futur projet ! À noter qu’en tant que constructeur, nous ne sommes pas mandatés pour réaliser la vente de ce terrain.
Plaimpied-Givaudins
TERRAIN ET MAISONSur ce terrain, découvrez la Focus 89, une maison neuve signée Styl Habitat, constructeur reconnu pour offrir le meilleur rapport qualité/prix du marché. Conçue pour allier confort et économies, cette maison familiale à prix mini est idéale pour accéder à la propriété sans compromis.Avec ses 89 m² habitables, la Focus 89 vous propose un agencement optimisé, comprenant 4 chambres, parfaites pour accueillir toute votre famille, et un séjour traversant avec cuisine ouverte, offrant un espace de vie convivial et lumineux. Son garage intégré ajoute une touche de praticité, que ce soit pour stationner votre véhicule ou disposer d’un espace de rangement supplémentaire.L’esthétique n’est pas en reste : sa façade bi-ton lui confère un style moderne et élégant, tandis que diverses options, comme les menuiseries en aluminium, permettent de personnaliser votre future maison selon vos envies.Conforme à la réglementation RE2020, la Focus 89 est une maison basse consommation, équipée des dernières technologies pour une isolation thermique et phonique optimale. Économique et respectueuse de l’environnement, elle vous garantit un confort durable tout en réduisant vos dépenses énergétiques.Avec Styl Habitat, vous bénéficiez d’un savoir-faire éprouvé et de matériaux de qualité, notamment une charpente traditionnelle, pour une maison solide et pérenne.N’attendez plus pour concrétiser votre projet ! La Focus 89 est la maison idéale pour les familles à la recherche d’un logement spacieux, écologique et abordable.
Trouy
TERRAINDécouvrez ce terrain d’une surface généreuse de 750 m², idéalement situé dans la charmante commune de Trouy, dans le département du Cher en région Centre-Val de Loire. Ce terrain, viabilisé et en pente, offre un emplacement top pour votre projet de construction de maison. Bénéficiant d’un cadre paisible tout en étant proche des commodités, il constitue une opportunité rêvée pour donner vie à votre vision habitation. La ville de Trouy est réputée pour son ambiance conviviale et son environnement accueillant. Vous serez séduit par les diverses attractions locales, allant des parcs verdoyants propices à la détente aux infrastructures de loisirs qui animent le quartier. Les commodités telles que les commerces de proximité et les services publics sont facilement accessibles, offrant ainsi un cadre de vie agréable et pratique pour toute la famille. Profitez d’une localisation privilégiée tout en gardant la tranquillité nécessaire pour construire votre havre de paix. Ce terrain représente une véritable opportunité d’investissement dans un secteur en pleine expansion. N’attendez plus pour envisager ce projet de construction unique qui répondra à vos aspirations. À noter qu’en tant que constructeur, nous ne sommes pas mandatés pour réaliser la vente de ce terrain.
Bourges
TERRAIN ET MAISONNous vous proposons cette maison neuve, modèle Focus 74 SG, conçue pour répondre aux attentes des familles modernes cherchant confort, fonctionnalité et respect de l’environnement. Avec une surface habitable de 74 m², cette maison basse consommation est parfaitement conforme à la norme RE2020, garantissant ainsi une efficacité énergétique optimale et un impact environnemental réduit. Le modèle Focus 74 SG se distingue par son agencement intelligent et son design contemporain. Elle offre un espace de vie lumineux et accueillant, composé de 4 pièces bien réparties, dont 3 chambres confortables, permettant à chaque membre de la famille de bénéficier de son propre espace de tranquillité. La pièce à vivre, spacieuse et conviviale, est conçue pour être le cœur de la maison, un lieu de partage et de convivialité. Cette maison est bâtie selon les dernières normes RE2020, ce qui signifie qu’elle bénéficie des meilleures innovations en matière d’isolation, de ventilation et de production d’énergie. Ces caractéristiques assurent non seulement un confort thermique été comme hiver mais aussi des économies significatives sur les factures d’énergie. La maison Focus 74 SG est donc une solution d’habitat durable qui répond aux enjeux écologiques actuels, tout en offrant un cadre de vie agréable et sain pour ses occupants. En choisissant ce modèle, vous optez pour une maison à la pointe de la technologie, respectueuse de l’environnement et économiquement avantageuse. La Focus 74 SG est la promesse d’un foyer chaleureux, économe en énergie et conçu pour durer. Ne manquez pas l’opportunité de construire la maison de vos rêves, une maison qui allie esthétique, confort et responsabilité environnementale.
Plaimpied-Givaudins
TERRAIN ET MAISONMaison Aubetière – 109 m² de confort moderneDécouvrez l’Aubetière, une maison neuve de 109 m² alliant élégance et performance énergétique. Conforme à la norme RE2020, elle offre un confort durable et une consommation maîtrisée.Proposée en toit 2 pans ou 4 pans, l’Aubetière s’adapte à tous les styles et s’intègre harmonieusement à son environnement. À l’intérieur, vous profitez d’un espace lumineux avec 4 chambres et un grand séjour ouvert, pensé pour la vie de famille.Grâce à son isolation performante et ses matériaux écoresponsables, cette maison basse consommation conjugue style, économie et durabilité. L’Aubetière, c’est le choix d’une maison moderne où bien-être et éco-responsabilité vont de pair.
L’actualité immobilière à Plaimpied-Givaudins
27/11/2023
02/11/2023
30/10/2023
20/10/2023
16/10/2023
16/10/2023