Maison à construire à Quantilly (18110)
Images
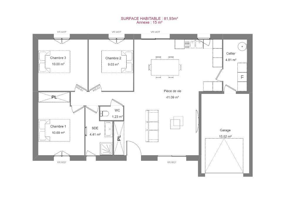
Description
Vous souhaitez faire construire une maison moderne, élégante et confortable ?
Ce projet de construction de maison individuelle est conçu pour offrir des prestations de qualité et un cadre de vie exceptionnel.
La maison comprend :
Une grande pièce de vie lumineuse avec salon, séjour et cuisine ouverte
3 chambres confortables
Une salle de bain moderne et fonctionnelle
WC séparés
Un cellier / buanderie pratique
Un garage attenant
Construction respectant les normes RE2020, avec des matériaux et équipements haut de gamme : isolation performante, confort thermique optimal, finitions soignées.
Projet entièrement personnalisable : surface, plans, prestations, style architectural.
Possibilité de réaliser votre projet personnalisé avec Maisons France Confort sur ce terrain en accord avec notre partenaire foncier.
📞 Contactez Maisons France Confort Saint-Doulchard dès aujourd'hui pour étudier votre projet et faire de cette maison votre futur chez-vous.
Logement susceptibles de vous intéresser
Nous vous proposons de découvrir aussi cette sélection de logements situés à moins de 10km de Quantilly et qui seraient susceptibles de vous intéresser.
Pigny
TERRAIN ET MAISONMaison neuve – 5 chambres – Suite parentale – GarageVolumes généreux & luminosité exceptionnelle !Découvrez cette superbe maison idéale pour une grande famille :✨ 5 chambres dont une suite parentale avec dressing et salle d’eau✨ 2 salles de bain✨ Grande pièce de vie ultra lumineuse✨ Cuisine ouverte avec cellier✨ Garage attenantDes beaux volumes, une luminosité remarquable et une conception pensée pour le confort quotidien.Un projet moderne, spacieux et résolument séduisant !Réalisez la maison qui vous ressemble, adaptée à vos besoins avec MAISONS FRANCE CONFORT sur ce terrain en accord avec un partenaire foncier.📞 Contactez Maisons France Confort Saint-Doulchard dès aujourd’hui pour plus d’informations et commencer votre projet de construction !
Saint-Martin-d'Auxigny
TERRAIN ET MAISONMaison neuve – 5 chambres – Suite parentale – GarageVolumes généreux & luminosité exceptionnelle !Découvrez cette superbe maison idéale pour une grande famille :✨ 5 chambres dont une suite parentale avec dressing et salle d’eau✨ 2 salles de bain✨ Grande pièce de vie ultra lumineuse✨ Cuisine ouverte avec cellier✨ Garage attenantDes beaux volumes, une luminosité remarquable et une conception pensée pour le confort quotidien.Un projet moderne, spacieux et résolument séduisant !Réalisez la maison qui vous ressemble, adaptée à vos besoins avec MAISONS FRANCE CONFORT sur ce terrain en accord avec un partenaire foncier.📞 Contactez Maisons France Confort Saint-Doulchard dès aujourd’hui pour plus d’informations et commencer votre projet de construction !
Saint-Martin-d'Auxigny
TERRAIN ET MAISON🏡 Construction – Maison 2 chambres + garage évolutive avec combles aménageablesDécouvrez ce projet de construction moderne et fonctionnel, proposé par Maisons France Confort, constructeur reconnu du groupe HEXAOM, premier constructeur de maisons individuelles en France.✨ Descriptif du projet :Maison de plain-pied, aux normes PMR (personne à mobilité réduite), pensée pour le confort et l’accessibilité2 chambres lumineuses et bien agencéesCombles aménageables, offrant un fort potentiel d’évolution selon vos besoins futurs (chambres supplémentaires, bureau, salle de jeux, etc.)Belle pièce de vie conviviale, ouverte sur le jardinCuisine ouverte et cellier fonctionnelSalle d’eau moderne et WC 🌿 Maison conforme à la norme RE2020, garantissant confort, performance énergétique et économies d’énergie.💡 Idéale pour un investissement locatif ou un premier achat, cette maison combine accessibilité, évolutivité et rentabilité.🏠 Maisons France Confort vous accompagne pour réaliser un projet sur mesure, fiable et durable sur ce terrain en accord avec notre partenaire foncier📞 Contactez Maisons France Confort Saint-Doulchard pour étudier votre projet et faire de cette maison votre futur chez-vous !
Saint-Martin-d'Auxigny
TERRAIN ET MAISON🏡 Superbe maison à construire – 4 chambres & garageDécouvrez cette maison familiale moderne, pensée pour offrir confort, espace et convivialité à toute votre famille.Elle propose 4 chambres parfaitement agencées, une salle de bain fonctionnelle, ainsi qu’un WC séparé pour plus de confort au quotidien.Vous apprécierez également le garage intégré, pratique pour le stationnement et le rangement.Au coeur de la maison, une superbe pièce de vie lumineuse et conviviale vous attend : un espace idéal pour partager tous vos moments en famille.Une création signée Maisons France Confort, alliant qualité, modernité et bien-être.Possibilité de réaliser votre projet personnalisé avec Maisons France Confort sur ce terrain en accord avec notre partenaire foncier📞 Contactez Maisons France Confort Saint-Doulchard pour étudier votre projet et faire de cette maison votre futur chez-vous !
Saint-Martin-d'Auxigny
TERRAIN ET MAISON🏡 Construction Maison R+1 – 4 chambres avec garage – Prestations haut de gammeRéalisez votre projet de vie avec Maisons France Confort, constructeur du groupe HEXAOM, premier constructeur de maisons individuelles en France, reconnu pour la qualité et le sérieux de ses réalisations.✨ Caractéristiques de la maison :R+1 complet offrant de beaux volumes et une organisation fonctionnelle4 chambres spacieuses pour toute la famille2 WC et un cellier pratique pour le rangementGrande pièce de vie lumineuse pour profiter d’un espace convivial et confortableMaison conforme aux normes RE2020, garantissant confort thermique et économies d’énergie🌿 Prestations haut de gamme : matériaux de qualité, finitions soignées et conception moderne pour un confort optimal.🏠 Maisons France Confort, c’est la garantie d’une construction fiable, sur mesure, et pensée pour allier fonctionnalité, espace et confort, idéale pour une vie de famille sereine.Réalisez la maison qui vous ressemble, adaptée à vos besoins avec MAISONS FRANCE CONFORT sur ce terrain en accord avec un partenaire foncier.📞 Contactez Maisons France Confort Saint-Doulchard dès aujourd’hui pour plus d’informations et commencer votre projet de construction !
Saint-Martin-d'Auxigny
TERRAIN ET MAISONUne maison optimisée pour les investisseurs, conforme aux normes PMR à partir de 151 900€ euros sur la commune de Saint Martin d’Auxigny.Ce plan de maison est conçu pour répondre parfaitement aux besoins des investisseurs immobiliers cherchant un bien à forte attractivité locative. Avec un agencement optimisé et conforme aux normes PMR (Personnes à Mobilité Réduite), cette maison garantit accessibilité, confort et fonctionnalité pour tous les occupants.Cette maison offre un beau potentiel d’agrandissement grâce à ses combles aménageables déjà préparés avec trémie existante (accès prévu pour escalier).L’espace de vie principal se distingue par sa grande luminosité, grâce à de larges ouvertures permettant une belle connexion avec l’extérieur. Cette pièce spacieuse offre de multiples possibilités d’aménagement, alliant convivialité et praticité.La partie nuit est composée de deux chambres confortables, idéales pour accueillir des locataires ou une petite famille. La salle de bain entièrement adaptée aux besoins des personnes à mobilité réduite, est équipée d’une douche à l’italienne et d’un agencement ergonomique. Le dégagement compact facilite la circulation fluide dans toute la maison.Ce bien, pensé pour répondre aux exigences du marché locatif, est une solution clé en main pour les investisseurs soucieux de garantir un rendement durable tout en offrant un cadre de vie adapté à tous.Réalisez la maison qui vous ressemble, adaptée à vos besoins avec MAISONS FRANCE CONFORT sur ce terrain en accord avec un partenaire foncier.📞 Contactez Maisons France Confort Saint-Doulchard dès aujourd’hui pour plus d’informations et commencer votre projet de construction !
Saint-Martin-d'Auxigny
TERRAINIdéal pour votre projet de maison avec Maisons France Confort🏠 Un projet de construction personnaliséLe constructeur Maisons France Confort vous accompagne pour imaginer et bâtir la maison de vos rêves :Maisons traditionnelles, modernes ou contemporaines.Plans personnalisables selon vos besoins et votre budget.Garanties et accompagnement complet (CCMI, suivi de chantier, performance énergétique).Pour plus d’informations sur les possibilités de construction avec Maisons France Confort, contactez Jessica DA COSTANous vous accompagnerons à chaque étape de votre projet pour une réalisation en toute sérénité sur ce terrain proposé en accord avec notre partenaire foncier.
Saint-Martin-d'Auxigny
TERRAIN ET MAISON🏡 VOTRE MAISON NEUVE – 3 CHAMBRES – À PARTIR DE 172 900 €Réalisez votre rêve de propriété dans cette charmante commune du Cher, à seulement 20 minutes de Bourges !Nous vous proposons un projet de construction complet alliant confort, modernité et qualité de vie.🏠 Modèle proposé :Maison moderne de 3 chambres de plain-pied (ou à étage selon configuration), idéale pour une famille ou un premier achat.✨ Caractéristiques principales :Surface habitable : 82 m²3 chambres spacieusesBelle pièce à vivre lumineuse avec cuisine ouverteSalle de bains moderneGarage intégréChauffage performant et faible consommation énergétique🔑 Une opportunité unique de devenir propriétaire d’une maison neuve à petit prix, dans un cadre de vie privilégié ! Réalisez la maison qui vous ressemble, adaptée à vos besoins avec MAISONS FRANCE CONFORT sur ce terrain en accord avec un partenaire foncier.📞 Contactez Maisons France Confort Saint-Doulchard dès aujourd’hui pour plus d’informations et commencer votre projet de construction !
Quantilly
TERRAIN ET MAISONVous souhaitez faire construire une maison moderne, élégante et confortable ?Ce projet de construction de maison individuelle est conçu pour offrir des prestations de qualité et un cadre de vie exceptionnel.La maison comprend :Une grande pièce de vie lumineuse avec salon, séjour et cuisine ouverte3 chambres confortablesUne salle de bain moderne et fonctionnelleWC séparésUn cellier / buanderie pratiqueUn garage attenantConstruction respectant les normes RE2020, avec des matériaux et équipements haut de gamme : isolation performante, confort thermique optimal, finitions soignées.Projet entièrement personnalisable : surface, plans, prestations, style architectural.Possibilité de réaliser votre projet personnalisé avec Maisons France Confort sur ce terrain en accord avec notre partenaire foncier.📞 Contactez Maisons France Confort Saint-Doulchard dès aujourd’hui pour étudier votre projet et faire de cette maison votre futur chez-vous.
L’actualité immobilière à Quantilly
27/11/2023
02/11/2023
30/10/2023
20/10/2023
16/10/2023
16/10/2023