Maison à construire à Saint-Éloy-de-Gy (18110)
Images
Description
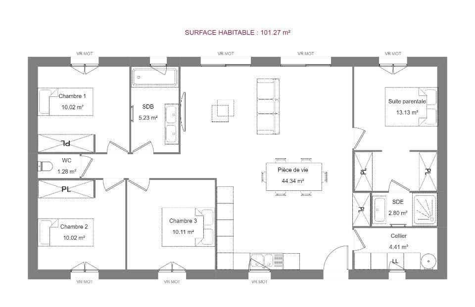
🏡 Maison neuve 4 chambres - dont une suite parentale à Saint-Eloy-De-Gy- par MAISONS FRANCE CONFORT
Découvrez cette superbe maison familiale moderne et fonctionnelle, pensée pour votre confort au quotidien.
✨ Caractéristiques principales :
4 chambres dont une belle suite parentale avec salle d'eau privative et dressing
Grande pièce de vie lumineuse grâce à ses deux baies vitrées, offrant un espace convivial et chaleureux
Cuisine ouverte donnant sur le séjour, idéale pour partager des moments en famille
Cellier spacieux, parfait pour le rangement
Salle de bain moderne avec baignoire
WC séparé
Cette maison combine confort, luminosité et praticité pour répondre aux besoins de toute la famille.
📍 Proposée par Maisons France Confort, constructeur reconnu pour la qualité et le savoir-faire de ses réalisations.
📞 Envie de concrétiser votre projet ?
Prenez rendez-vous avec Jessica DA COSTA au (Numéro supprimé) et imaginons ensemble votre future maison.
Logement susceptibles de vous intéresser
Nous vous proposons de découvrir aussi cette sélection de logements situés à moins de 10km de Saint-Éloy-de-Gy et qui seraient susceptibles de vous intéresser.
Pigny
TERRAIN ET MAISONMaison neuve – 5 chambres – Suite parentale – GarageVolumes généreux & luminosité exceptionnelle !Découvrez cette superbe maison idéale pour une grande famille :✨ 5 chambres dont une suite parentale avec dressing et salle d’eau✨ 2 salles de bain✨ Grande pièce de vie ultra lumineuse✨ Cuisine ouverte avec cellier✨ Garage attenantDes beaux volumes, une luminosité remarquable et une conception pensée pour le confort quotidien.Un projet moderne, spacieux et résolument séduisant !Réalisez la maison qui vous ressemble, adaptée à vos besoins avec MAISONS FRANCE CONFORT sur ce terrain en accord avec un partenaire foncier.📞 Contactez Maisons France Confort Saint-Doulchard dès aujourd’hui pour plus d’informations et commencer votre projet de construction !
Allogny
TERRAIN ET MAISONMaison neuve – 5 chambres – Suite parentale – GarageVolumes généreux & luminosité exceptionnelle !Découvrez cette superbe maison idéale pour une grande famille :✨ 5 chambres dont une suite parentale avec dressing et salle d’eau✨ 2 salles de bain✨ Grande pièce de vie ultra lumineuse✨ Cuisine ouverte avec cellier✨ Garage attenantDes beaux volumes, une luminosité remarquable et une conception pensée pour le confort quotidien.Un projet moderne, spacieux et résolument séduisant !Réalisez la maison qui vous ressemble, adaptée à vos besoins avec MAISONS FRANCE CONFORT sur ce terrain en accord avec un partenaire foncier.📞 Contactez Maisons France Confort Saint-Doulchard dès aujourd’hui pour plus d’informations et commencer votre projet de construction !
Mehun-sur-Yèvre
TERRAIN ET MAISONMaison neuve – 5 chambres – Suite parentale – GarageVolumes généreux & luminosité exceptionnelle !Découvrez cette superbe maison idéale pour une grande famille :✨ 5 chambres dont une suite parentale avec dressing et salle d’eau✨ 2 salles de bain✨ Grande pièce de vie ultra lumineuse✨ Cuisine ouverte avec cellier✨ Garage attenantDes beaux volumes, une luminosité remarquable et une conception pensée pour le confort quotidien.Un projet moderne, spacieux et résolument séduisant !Réalisez la maison qui vous ressemble, adaptée à vos besoins avec MAISONS FRANCE CONFORT sur ce terrain en accord avec un partenaire foncier.📞 Contactez Maisons France Confort Saint-Doulchard dès aujourd’hui pour plus d’informations et commencer votre projet de construction !
Saint-Martin-d'Auxigny
TERRAIN ET MAISONMaison neuve – 5 chambres – Suite parentale – GarageVolumes généreux & luminosité exceptionnelle !Découvrez cette superbe maison idéale pour une grande famille :✨ 5 chambres dont une suite parentale avec dressing et salle d’eau✨ 2 salles de bain✨ Grande pièce de vie ultra lumineuse✨ Cuisine ouverte avec cellier✨ Garage attenantDes beaux volumes, une luminosité remarquable et une conception pensée pour le confort quotidien.Un projet moderne, spacieux et résolument séduisant !Réalisez la maison qui vous ressemble, adaptée à vos besoins avec MAISONS FRANCE CONFORT sur ce terrain en accord avec un partenaire foncier.📞 Contactez Maisons France Confort Saint-Doulchard dès aujourd’hui pour plus d’informations et commencer votre projet de construction !
Saint-Éloy-de-Gy
TERRAIN ET MAISONMaison neuve – 5 chambres – Suite parentale – GarageVolumes généreux & luminosité exceptionnelle !Découvrez cette superbe maison idéale pour une grande famille :✨ 5 chambres dont une suite parentale avec dressing et salle d’eau✨ 2 salles de bain✨ Grande pièce de vie ultra lumineuse✨ Cuisine ouverte avec cellier✨ Garage attenantDes beaux volumes, une luminosité remarquable et une conception pensée pour le confort quotidien.Un projet moderne, spacieux et résolument séduisant !Réalisez la maison qui vous ressemble, adaptée à vos besoins avec MAISONS FRANCE CONFORT sur ce terrain en accord avec un partenaire foncier.📞 Contactez Maisons France Confort Saint-Doulchard dès aujourd’hui pour plus d’informations et commencer votre projet de construction !
Saint-Doulchard
TERRAIN ET MAISONMAISONS FRANCE CONFORT – Votre future maison d’exception à Saint-Doulchard !120 m² + garage – Confort, volume et modernité !Saisissez l’opportunité de réaliser une maison sur mesure signée Maisons France Confort, alliant design contemporain, grands espaces et prestations de qualité.Au programme :✨ 3 chambres dont une suite parentale premium avec espace privatif✨ Une grande pièce de vie lumineuse, parfaite pour accueillir famille et amis✨ Cuisine ouverte avec cellier attenant, pour un quotidien facilité✨ Garage, idéal pour stockageUn projet pensé pour offrir bien-être, fonctionnalité et valeur pérenne.Un investissement sûr, un confort durable : construisez l’avenir avec Maisons France Confort !Réalisez la maison qui vous ressemble, adaptée à vos besoins avec MAISONS FRANCE CONFORT sur ce terrain en accord avec un partenaire foncier.📞 Contactez Maisons France Confort Saint-Doulchard pour plus d’informations et commencer votre projet de construction !
Saint-Martin-d'Auxigny
TERRAIN ET MAISON🏡 Construction – Maison 2 chambres + garage évolutive avec combles aménageablesDécouvrez ce projet de construction moderne et fonctionnel, proposé par Maisons France Confort, constructeur reconnu du groupe HEXAOM, premier constructeur de maisons individuelles en France.✨ Descriptif du projet :Maison de plain-pied, aux normes PMR (personne à mobilité réduite), pensée pour le confort et l’accessibilité2 chambres lumineuses et bien agencéesCombles aménageables, offrant un fort potentiel d’évolution selon vos besoins futurs (chambres supplémentaires, bureau, salle de jeux, etc.)Belle pièce de vie conviviale, ouverte sur le jardinCuisine ouverte et cellier fonctionnelSalle d’eau moderne et WC 🌿 Maison conforme à la norme RE2020, garantissant confort, performance énergétique et économies d’énergie.💡 Idéale pour un investissement locatif ou un premier achat, cette maison combine accessibilité, évolutivité et rentabilité.🏠 Maisons France Confort vous accompagne pour réaliser un projet sur mesure, fiable et durable sur ce terrain en accord avec notre partenaire foncier📞 Contactez Maisons France Confort Saint-Doulchard pour étudier votre projet et faire de cette maison votre futur chez-vous !
Saint-Martin-d'Auxigny
TERRAIN ET MAISON🏡 Superbe maison à construire – 4 chambres & garageDécouvrez cette maison familiale moderne, pensée pour offrir confort, espace et convivialité à toute votre famille.Elle propose 4 chambres parfaitement agencées, une salle de bain fonctionnelle, ainsi qu’un WC séparé pour plus de confort au quotidien.Vous apprécierez également le garage intégré, pratique pour le stationnement et le rangement.Au coeur de la maison, une superbe pièce de vie lumineuse et conviviale vous attend : un espace idéal pour partager tous vos moments en famille.Une création signée Maisons France Confort, alliant qualité, modernité et bien-être.Possibilité de réaliser votre projet personnalisé avec Maisons France Confort sur ce terrain en accord avec notre partenaire foncier📞 Contactez Maisons France Confort Saint-Doulchard pour étudier votre projet et faire de cette maison votre futur chez-vous !
Saint-Martin-d'Auxigny
TERRAIN ET MAISON🏡 Construction Maison R+1 – 4 chambres avec garage – Prestations haut de gammeRéalisez votre projet de vie avec Maisons France Confort, constructeur du groupe HEXAOM, premier constructeur de maisons individuelles en France, reconnu pour la qualité et le sérieux de ses réalisations.✨ Caractéristiques de la maison :R+1 complet offrant de beaux volumes et une organisation fonctionnelle4 chambres spacieuses pour toute la famille2 WC et un cellier pratique pour le rangementGrande pièce de vie lumineuse pour profiter d’un espace convivial et confortableMaison conforme aux normes RE2020, garantissant confort thermique et économies d’énergie🌿 Prestations haut de gamme : matériaux de qualité, finitions soignées et conception moderne pour un confort optimal.🏠 Maisons France Confort, c’est la garantie d’une construction fiable, sur mesure, et pensée pour allier fonctionnalité, espace et confort, idéale pour une vie de famille sereine.Réalisez la maison qui vous ressemble, adaptée à vos besoins avec MAISONS FRANCE CONFORT sur ce terrain en accord avec un partenaire foncier.📞 Contactez Maisons France Confort Saint-Doulchard dès aujourd’hui pour plus d’informations et commencer votre projet de construction !
L’actualité immobilière à Saint-Éloy-de-Gy
27/11/2023
02/11/2023
30/10/2023
20/10/2023
16/10/2023
16/10/2023