Maison à construire à Saint-Florent-sur-Cher (18400)
Images
Description
Projet de construction - Maison familiale à Saint-Florent-sur-Cher (18)
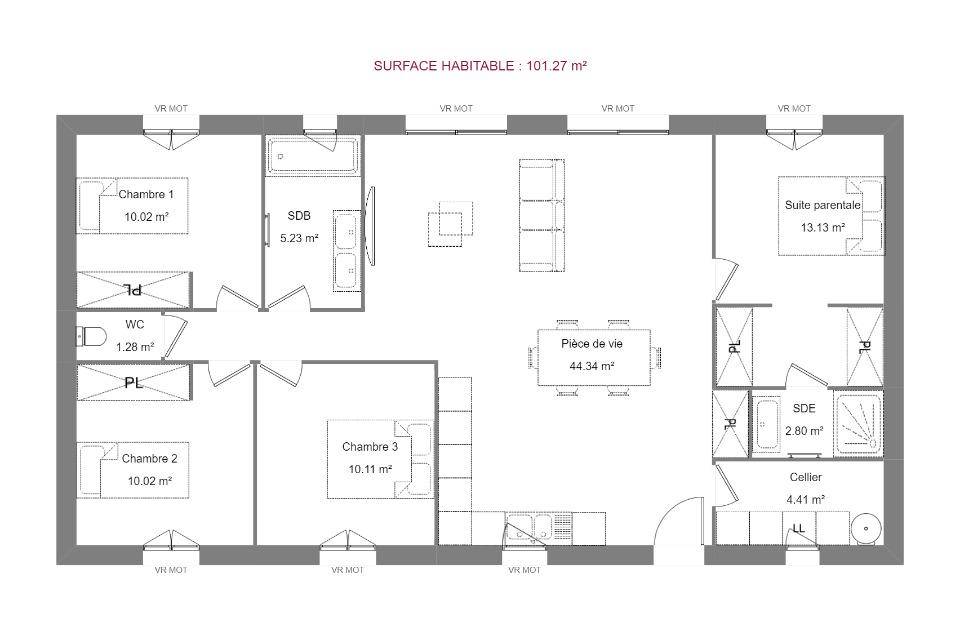
Maisons France Confort Saint-Doulchard vous propose un projet de construction d'une maison moderne et fonctionnelle située à Saint-Florent-sur-Cher, idéale pour une famille en quête de confort et de sérénité.
Cette maison disposera de 4 chambres, dont une suite parentale comprenant un dressing et une salle d'eau privative, offrant un véritable espace intime et indépendant.
Un grand cellier/buanderie viendra compléter les espaces pratiques de la maison pour un quotidien plus organisé.
Les 3 autres chambres, dédiées aux enfants ou aux invités, sont situées dans un espace nuit séparé et bénéficient d'une belle salle de bain indépendante, garantissant confort et intimité pour toute la famille.
La pièce de vie, spacieuse et lumineuse, a été pensée pour être chaleureuse et conviviale, parfaite pour recevoir et partager des moments en famille ou entre amis.
Réalisez la maison qui vous ressemble, adaptée à vos besoins avec MAISONS FRANCE CONFORT sur ce terrain en accord avec un partenaire foncier.
📞 Contactez Maisons France Confort Saint-Doulchard dès aujourd'hui pour plus d'informations et commencer votre projet de construction !
Logement susceptibles de vous intéresser
Nous vous proposons de découvrir aussi cette sélection de logements situés à moins de 10km de Saint-Florent-sur-Cher et qui seraient susceptibles de vous intéresser.
Saint-Florent-sur-Cher
TERRAIN ET MAISONProjet de construction – Maison familiale à Saint-Florent-sur-Cher (18)Maisons France Confort Saint-Doulchard vous propose un projet de construction d’une maison moderne et fonctionnelle située à Saint-Florent-sur-Cher, idéale pour une famille en quête de confort et de sérénité.Cette maison disposera de 4 chambres, dont une suite parentale comprenant un dressing et une salle d’eau privative, offrant un véritable espace intime et indépendant.Un grand cellier/buanderie viendra compléter les espaces pratiques de la maison pour un quotidien plus organisé.Les 3 autres chambres, dédiées aux enfants ou aux invités, sont situées dans un espace nuit séparé et bénéficient d’une belle salle de bain indépendante, garantissant confort et intimité pour toute la famille.La pièce de vie, spacieuse et lumineuse, a été pensée pour être chaleureuse et conviviale, parfaite pour recevoir et partager des moments en famille ou entre amis.Réalisez la maison qui vous ressemble, adaptée à vos besoins avec MAISONS FRANCE CONFORT sur ce terrain en accord avec un partenaire foncier.📞 Contactez Maisons France Confort Saint-Doulchard dès aujourd’hui pour plus d’informations et commencer votre projet de construction !
Saint-Florent-sur-Cher
TERRAIN ET MAISON🏡 Votre future maison 3 chambres à Saint-Florent-sur-Cher avec Maisons France ConfortRéalisez votre projet sur mesure dans cette charmante commune, avec une maison moderne, fonctionnelle et parfaitement adaptée à vos besoins.✨ Les atouts de votre maison :3 chambres spacieuses, idéales pour toute la famillePlan sur mesure : personnalisez chaque espace selon vos enviesMaison lumineuse et bien agencée avec pièce à vivre ouverteBeau Jardin pour profiter pleinement de vos extérieursConstruction de qualité par Maisons France Confort,1er constructeur de maisons en France et marque leader du Groupe HEXAOM💡 Votre projet clé en main : Maisons France Confort vous accompagne à chaque étape, du plan personnalisé jusqu’à la remise des clés.N’hésitez pas à prendre contact avec Maisons France Confort Saint-Doulchard pour obtenir de plus amples renseignements. Donnez vie à vos projets immobiliers avec Maisons France Confort.MAISONS FRANCE CONFORT a sélectionné avec un partenaire foncier un terrain pour construire cette maison.
Saint-Florent-sur-Cher
TERRAIN ET MAISON🏡 Construction – Maison 2 chambres évolutive avec combles aménageablesDécouvrez ce projet de construction moderne et fonctionnel, proposé par Maisons France Confort, constructeur reconnu du groupe HEXAOM, premier constructeur de maisons individuelles en France.✨ Descriptif du projet :Maison de plain-pied, aux normes PMR (personne à mobilité réduite), pensée pour le confort et l’accessibilité2 chambres lumineuses et bien agencéesCombles aménageables, offrant un fort potentiel d’évolution selon vos besoins futurs (chambres supplémentaires, bureau, salle de jeux, etc.)Belle pièce de vie conviviale, ouverte sur le jardinCuisine ouverte et cellier fonctionnelSalle d’eau moderne et WC 🌿 Maison conforme à la norme RE2020, garantissant confort, performance énergétique et économies d’énergie.💡 Idéale pour un investissement locatif ou un premier achat, cette maison combine accessibilité, évolutivité et rentabilité.🏠 Maisons France Confort vous accompagne pour réaliser un projet sur mesure, fiable et durable.Possibilité de réaliser votre projet personnalisé avec Maisons France Confort sur ce terrain en accord avec notre partenaire foncier📞 Contactez Maisons France Confort Saint-Doulchard dès aujourd’hui pour étudier votre projet et faire de cette maison votre futur chez-vous
Saint-Florent-sur-Cher
TERRAINIdéal pour votre projet de maison avec Maisons France Confort Saint-Doulchard🏠 Un projet de construction personnaliséLe constructeur Maisons France Confort vous accompagne pour imaginer et bâtir la maison de vos rêves :Maisons traditionnelles, modernes ou contemporaines.Plans personnalisables selon vos besoins et votre budget.Garanties et accompagnement complet (CCMI, suivi de chantier, performance énergétique).Pour plus d’informations sur les possibilités de construction avec Maisons France Confort, contactez Jessica DA COSTANous vous accompagnerons à chaque étape de votre projet pour une réalisation en toute sérénité sur ce terrain proposé en accord avec notre partenaire foncier.
Saint-Florent-sur-Cher
TERRAIN ET MAISON🏡 Construction Maison R+1 – 4 chambres avec garage à Saint-Florent-sur-Cher – Prestations haut de gammeRéalisez votre projet de vie avec Maisons France Confort, constructeur du groupe HEXAOM, premier constructeur de maisons individuelles en France, reconnu pour la qualité et le sérieux de ses réalisations.✨ Caractéristiques de la maison :R+1 complet offrant de beaux volumes et une organisation fonctionnelle4 chambres spacieuses pour toute la famille2 WC et un cellier pratique pour le rangementGrande pièce de vie lumineuse pour profiter d’un espace convivial et confortableMaison conforme aux normes RE2020, garantissant confort thermique et économies d’énergie🌿 Prestations haut de gamme : matériaux de qualité, finitions soignées et conception moderne pour un confort optimal.🏠 Maisons France Confort, c’est la garantie d’une construction fiable, sur mesure, et pensée pour allier fonctionnalité, espace et confort, idéale pour une vie de famille sereine.Réalisez la maison qui vous ressemble, adaptée à vos besoins avec MAISONS FRANCE CONFORT sur ce terrain en accord avec un partenaire foncier.📞 Contactez Maisons France Confort Saint-Doulchard dès aujourd’hui pour plus d’informations et commencer votre projet de construction !
Trouy
TERRAIN ET MAISONNous vous proposons cette maison neuve, baptisée Focus 73, un modèle de construction qui allie modernité, confort et respect de l’environnement. Avec une surface habitable de 73 m², cette maison est parfaitement conçue pour accueillir confortablement votre famille, offrant 3 chambres spacieuses et un total de 4 pièces bien agencées pour maximiser l’espace et la luminosité. Le modèle Focus 73 se distingue par son garage intégré, offrant non seulement un espace de stationnement sécurisé pour votre véhicule mais aussi un accès direct à votre domicile, facilitant ainsi votre quotidien. Cette maison est conçue pour répondre aux exigences de la norme RE2020, la réglementation environnementale la plus récente, garantissant une construction basse consommation. Cela signifie que vous bénéficierez d’une isolation optimale, d’une excellente performance énergétique et d’une réduction significative de vos factures d’énergie, tout en contribuant à la protection de l’environnement. La Focus 73 est l’incarnation de l’habitat du futur, offrant un cadre de vie sain et économique. Son architecture moderne et ses finitions de qualité en font un lieu de vie agréable et fonctionnel. La maison est conçue pour offrir un confort optimal en toutes saisons, grâce à une gestion intelligente de la température intérieure et à l’utilisation de matériaux durables et écologiques. En choisissant la Focus 73, vous optez pour une maison neuve qui respecte les plus hauts standards de qualité et de performance énergétique. C’est l’assurance de vivre dans un espace sain, confortable et respectueux de l’environnement, conçu pour répondre aux besoins de votre famille aujourd’hui et demain. Ne manquez pas cette opportunité de construire la maison de vos rêves, conforme aux dernières normes environnementales. La Focus 73 est la promesse d’un avenir durable et d’un investissement pérenne pour vous et vos proches. Contactez-nous dès maintenant pour plus d’informations et débutons ensemble le projet
Saint-Florent-sur-Cher
TERRAIN ET MAISONSur ce terrain, découvrez la Focus 89, une maison neuve signée Styl Habitat, constructeur reconnu pour offrir le meilleur rapport qualité/prix du marché. Conçue pour allier confort et économies, cette maison familiale à prix mini est idéale pour accéder à la propriété sans compromis.Avec ses 89 m² habitables, la Focus 89 vous propose un agencement optimisé, comprenant 4 chambres, parfaites pour accueillir toute votre famille, et un séjour traversant avec cuisine ouverte, offrant un espace de vie convivial et lumineux. Son garage intégré ajoute une touche de praticité, que ce soit pour stationner votre véhicule ou disposer d’un espace de rangement supplémentaire.L’esthétique n’est pas en reste : sa façade bi-ton lui confère un style moderne et élégant, tandis que diverses options, comme les menuiseries en aluminium, permettent de personnaliser votre future maison selon vos envies.Conforme à la réglementation RE2020, la Focus 89 est une maison basse consommation, équipée des dernières technologies pour une isolation thermique et phonique optimale. Économique et respectueuse de l’environnement, elle vous garantit un confort durable tout en réduisant vos dépenses énergétiques.Avec Styl Habitat, vous bénéficiez d’un savoir-faire éprouvé et de matériaux de qualité, notamment une charpente traditionnelle, pour une maison solide et pérenne.N’attendez plus pour concrétiser votre projet ! La Focus 89 est la maison idéale pour les familles à la recherche d’un logement spacieux, écologique et abordable.
Saint-Florent-sur-Cher
TERRAINDécouvrez ce magnifique terrain à bâtir d’une surface de 670 m², idéalement situé à Saint-Florent-sur-Cher. Cette parcelle viabilisée, ensoleillée et au calme, est le dernier lot disponible dans le secteur, offrant un cadre de vie privilégié pour votre projet de construction de maison. Profitez d’un terrain plat qui vous permettra de concrétiser tous vos rêves architecturaux, le tout à un prix attractif. Saint-Florent-sur-Cher, situé dans le département du Cher en région Centre-Val de Loire, est une ville dynamique à l’ambiance conviviale. Vous serez à proximité immédiate des commerces et commodités, facilitant ainsi votre quotidien. Profitez des espaces verts et des activités de plein air que propose la région, tout en étant à quelques pas des attractions locales qui font le charme de cette belle ville. Ce terrain représente une opportunité unique d’investir dans un cadre de vie agréable et serein, accessible à tous. Ne manquez pas cette chance exceptionnelle de réaliser votre projet de vie. Contactez-nous dès aujourd’hui pour découvrir ce terrain au potentiel inestimable ! À noter qu’en tant que constructeur, nous ne sommes pas mandatés pour réaliser la vente de ce terrain.
Saint-Florent-sur-Cher
TERRAINNous sommes ravis de vous présenter un terrain d’exception situé à Saint-Florent-sur-Cher, dans le département du Cher (18400). Avec une superficie généreuse de 630 m², ce terrain viabilisé est le choix idéal pour la construction de votre maison de rêve. Profitez d’une localisation de premier choix dans un lotissement dynamique, propice à l’épanouissement d’un projet de construction moderne et fonctionnel. Saint-Florent-sur-Cher est une ville qui allie qualité de vie et commodités. Située en plein cœur de la région Centre-Val de Loire, elle se distingue par son accessibilité aux commerces et services essentiels, garantissant un quotidien agréable et pratique. Sa proximité avec le centre-ville en fait un endroit de choix pour les familles, tout en offrant un cadre paisible, proche de la nature. Ne manquez pas cette opportunité précieuse : un dernier terrain disponible à un prix attractif ! Ce terrain présente un potentiel considérable pour votre projet de construction. Nous vous invitons à envisager cette incroyable occasion d’acquérir un bien rare sur le marché. À noter qu’en tant que constructeur, nous ne sommes pas mandatés pour réaliser la vente de ce terrain.
L’actualité immobilière à Saint-Florent-sur-Cher
27/11/2023
02/11/2023
30/10/2023
20/10/2023
16/10/2023
16/10/2023