Maison à construire à Saint-Laurent (18330)
Images
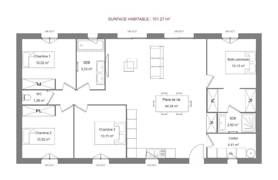
Description
Projet de construction - Maison familiale
Maisons France Confort Saint-Doulchard vous propose un projet de construction d'une maison moderne et fonctionnelle, idéale pour une famille en quête de confort et de sérénité.
Cette maison disposera de 4 chambres, dont une suite parentale comprenant un dressing et une salle d'eau privative, offrant un véritable espace intime et indépendant.
Un grand cellier/buanderie viendra compléter les espaces pratiques de la maison pour un quotidien plus organisé.
Les 3 autres chambres, dédiées aux enfants ou aux invités, sont situées dans un espace nuit séparé et bénéficient d'une belle salle de bain indépendante, garantissant confort et intimité pour toute la famille.
La pièce de vie, spacieuse et lumineuse, a été pensée pour être chaleureuse et conviviale, parfaite pour recevoir et partager des moments en famille ou entre amis.
Réalisez la maison qui vous ressemble, adaptée à vos besoins avec MAISONS FRANCE CONFORT sur ce terrain en accord avec un partenaire foncier.
📞 Contactez Maisons France Confort Saint-Doulchard dès aujourd'hui pour plus d'informations et commencer votre projet de construction !
Logement susceptibles de vous intéresser
Nous vous proposons de découvrir aussi cette sélection de logements situés à moins de 10km de Saint-Laurent et qui seraient susceptibles de vous intéresser.
Allogny
TERRAIN ET MAISONMaison neuve – 5 chambres – Suite parentale – GarageVolumes généreux & luminosité exceptionnelle !Découvrez cette superbe maison idéale pour une grande famille :✨ 5 chambres dont une suite parentale avec dressing et salle d’eau✨ 2 salles de bain✨ Grande pièce de vie ultra lumineuse✨ Cuisine ouverte avec cellier✨ Garage attenantDes beaux volumes, une luminosité remarquable et une conception pensée pour le confort quotidien.Un projet moderne, spacieux et résolument séduisant !Réalisez la maison qui vous ressemble, adaptée à vos besoins avec MAISONS FRANCE CONFORT sur ce terrain en accord avec un partenaire foncier.📞 Contactez Maisons France Confort Saint-Doulchard dès aujourd’hui pour plus d’informations et commencer votre projet de construction !
Saint-Laurent
TERRAIN ET MAISONMaison de plain-pied conçue pour offrir un espace de vie confortable et fonctionnel, idéal pour une famille. L’agencement privilégie la convivialité avec un espace jour spacieux et lumineux, parfait pour les moments de partage. Les trois chambres, de tailles similaires, offrent à chacun son espace d’intimité, tandis que les espaces fonctionnels, tels que le cellier, le garage et la salle de bains, facilitent le quotidien.L’espace jour, véritable coeur de la maison, est baigné de lumière naturelle grâce à de larges ouvertures.Il offre un espace de vie ouvert et accueillant, idéal pour se détendre, recevoir des amis ou partager des repas en famille. Les chambres, quant à elles, sont conçues comme des havres de paix, offrant à chacun son espace personnel.Les espaces fonctionnels, tels que le cellier, le garage et la salle de bains, sont pensés pour faciliter le quotidien. Le dégagement central assure une circulation fluide entre les pièces.L’ensemble de la maison est conçu pour offrir un espace de vie agréable et pratique, où chaque membre de la famille se sentira chez soi.Réalisez la maison qui vous ressemble, adaptée à vos besoins avec MAISONS FRANCE CONFORT sur ce terrain en accord avec un partenaire foncier.📞 Contactez Maisons France Confort dès aujourd’hui pour plus d’informations et commencer votre projet de construction !
Saint-Laurent
TERRAIN ET MAISONProjet de construction – Maison familiale Maisons France Confort Saint-Doulchard vous propose un projet de construction d’une maison moderne et fonctionnelle, idéale pour une famille en quête de confort et de sérénité.Cette maison disposera de 4 chambres, dont une suite parentale comprenant un dressing et une salle d’eau privative, offrant un véritable espace intime et indépendant.Un grand cellier/buanderie viendra compléter les espaces pratiques de la maison pour un quotidien plus organisé.Les 3 autres chambres, dédiées aux enfants ou aux invités, sont situées dans un espace nuit séparé et bénéficient d’une belle salle de bain indépendante, garantissant confort et intimité pour toute la famille.La pièce de vie, spacieuse et lumineuse, a été pensée pour être chaleureuse et conviviale, parfaite pour recevoir et partager des moments en famille ou entre amis.Réalisez la maison qui vous ressemble, adaptée à vos besoins avec MAISONS FRANCE CONFORT sur ce terrain en accord avec un partenaire foncier.📞 Contactez Maisons France Confort Saint-Doulchard dès aujourd’hui pour plus d’informations et commencer votre projet de construction !
Saint-Laurent
TERRAIN ET MAISON🏡 Construction – Maison 2 chambres Garage évolutive avec combles aménageablesDécouvrez ce projet de construction moderne et fonctionnel, proposé par Maisons France Confort, constructeur reconnu du groupe HEXAOM, premier constructeur de maisons individuelles en France.✨ Descriptif du projet :Maison de plain-pied, aux normes PMR (personne à mobilité réduite), pensée pour le confort et l’accessibilité2 chambres lumineuses et bien agencéesCombles aménageables, offrant un fort potentiel d’évolution selon vos besoins futurs (chambres supplémentaires, bureau, salle de jeux, etc.)Belle pièce de vie conviviale, ouverte sur le jardinCuisine ouverte et cellier fonctionnelSalle d’eau moderne et WC 🌿 Maison conforme à la norme RE2020, garantissant confort, performance énergétique et économies d’énergie.💡 Idéale pour un investissement locatif ou un premier achat, cette maison combine accessibilité, évolutivité et rentabilité.🏠 Maisons France Confort vous accompagne pour réaliser un projet sur mesure, fiable et durable.Possibilité de réaliser votre projet personnalisé avec Maisons France Confort sur ce terrain en accord avec notre partenaire foncier📞 Contactez Maisons France Confort Saint-Doulchard dès aujourd’hui pour étudier votre projet et faire de cette maison votre futur chez-vous
Saint-Laurent
TERRAIN ET MAISON🏡 Construction Maison R+1 – 4 chambres avec garage – Prestations haut de gammeRéalisez votre projet de vie avec Maisons France Confort, constructeur du groupe HEXAOM, premier constructeur de maisons individuelles en France, reconnu pour la qualité et le sérieux de ses réalisations.✨ Caractéristiques de la maison :R+1 complet offrant de beaux volumes et une organisation fonctionnelle4 chambres spacieuses pour toute la famille2 WC et un cellier pratique pour le rangementGrande pièce de vie lumineuse pour profiter d’un espace convivial et confortableMaison conforme aux normes RE2020, garantissant confort thermique et économies d’énergie🌿 Prestations haut de gamme : matériaux de qualité, finitions soignées et conception moderne pour un confort optimal.🏠 Maisons France Confort, c’est la garantie d’une construction fiable, sur mesure, et pensée pour allier fonctionnalité, espace et confort, idéale pour une vie de famille sereine.Réalisez la maison qui vous ressemble, adaptée à vos besoins avec MAISONS FRANCE CONFORT sur ce terrain en accord avec un partenaire foncier.📞 Contactez Maisons France Confort Saint-Doulchard dès aujourd’hui pour plus d’informations et commencer votre projet de construction !
Saint-Laurent
TERRAINIdéal pour votre projet de maison avec Maisons France Confort Saint-Doulchard🏠 Un projet de construction personnaliséLe constructeur Maisons France Confort vous accompagne pour imaginer et bâtir la maison de vos rêves :Maisons traditionnelles, modernes ou contemporaines.Plans personnalisables selon vos besoins et votre budget.Garanties et accompagnement complet (CCMI, suivi de chantier, performance énergétique).Pour plus d’informations sur les possibilités de construction avec Maisons France Confort, contactez Jessica DA COSTANous vous accompagnerons à chaque étape de votre projet pour une réalisation en toute sérénité sur ce terrain proposé en accord avec notre partenaire foncier.
Allogny
TERRAIN ET MAISONUne maison optimisée pour les investisseurs, conforme aux normes PMR.Ce plan de maison est conçu pour répondre parfaitement aux besoins des investisseurs immobiliers cherchant un bien à forte attractivité locative. Avec un agencement optimisé et conforme aux normes PMR (Personnes à Mobilité Réduite), cette maison garantit accessibilité, confort et fonctionnalité pour tous les occupants.Cette maison offre un beau potentiel d’agrandissement grâce à ses combles aménageables déjà préparés avec trémie existante (accès prévu pour escalier).L’espace de vie principal se distingue par sa grande luminosité, grâce à de larges ouvertures permettant une belle connexion avec l’extérieur. Cette pièce spacieuse offre de multiples possibilités d’aménagement, alliant convivialité et praticité.La partie nuit est composée de deux chambres confortables, idéales pour accueillir des locataires ou une petite famille. La salle de bain entièrement adaptée aux besoins des personnes à mobilité réduite, est équipée d’une douche à l’italienne et d’un agencement ergonomique. Le dégagement compact facilite la circulation fluide dans toute la maison.Ce bien, pensé pour répondre aux exigences du marché locatif, est une solution clé en main pour les investisseurs soucieux de garantir un rendement durable tout en offrant un cadre de vie adapté à tous.Possibilité de réaliser votre projet personnalisé avec Maisons France Confort sur ce terrain en accord avec notre partenaire foncier📞 Contactez-nous dès aujourd’hui pour étudier votre projet et faire de cette maison votre futur chez-vous ! Jessica DA COSTA au (Numéro supprimé)
Allogny
TERRAIN ET MAISON🏡 Maison à étage – 4 chambres – Suite parentale – Garage & CellierProposée par Maisons France Confort – Groupe HexaomDécouvrez cette maison familiale à étage, moderne et parfaitement pensée pour offrir confort et fonctionnalité au quotidien.✨ Les atouts de cette maisonSuite parentale au rez-de-chaussée : chambre spacieuse avec espace dressing et salle d’eau privative, pour plus d’indépendance et de confort.3 chambres à l’étage : idéales pour les enfants, invités ou espace bureau.Grande pièce de vie lumineuse grâce à ses larges ouvertures, parfaite pour recevoir et partager des moments en famille.Cuisine ouverte ou semi-ouverte, selon vos envies, avec accès direct à un cellier fonctionnel, très pratique pour le rangement.Plan très fonctionnel : circulation fluide, espaces optimisés, rangements intégrés.Salle de bain familiale à l’étage, conçue pour le confort de tous les membres du foyer.Prestations de qualité : isolation performante, matériaux modernes, finitions soignées.Possibilité de réaliser votre projet personnalisé avec Maisons France Confort sur ce terrain en accord avec notre partenaire foncier📞 Contactez-nous dès aujourd’hui pour étudier votre projet et faire de cette maison votre futur chez-vous ! Jessica DA COSTA au (Numéro supprimé)
Foëcy
TERRAINDécouvrez ce charmant terrain à vendre d’une superficie de 850 m², idéalement situé à Foëcy, dans le département du Cher, au cœur de la belle région Centre-Val de Loire. Ce terrain viabilisé offre une multitude de possibilités pour un projet de construction de maison. Vous serez séduit par son cadre champêtre, sa luminosité, ainsi que son environnement arboré, garantissant un confort de vie inégalé. De plus, le PLU non contraignant ajoute une flexibilité précieuse à votre projet. C’est une occasion rare et en exclusivité à ne pas manquer! Foëcy se distingue par son ambiance paisible et conviviale. À proximité directe, vous trouverez tous les commerces nécessaires au quotidien, ainsi que des services variés pour répondre à vos besoins. La localité bénéficie également d’une richesse naturelle et d’un cadre enchanteur qui incite à la détente et aux activités de plein air. Avec son accessibilité et son dynamisme, Foëcy constitue un lieu de vie idéal pour les familles et les personnes cherchant à allier tranquillité et commodités urbaines. Ne laissez pas passer cette opportunité unique d’acquérir un terrain au potentiel exceptionnel. Contactez-nous dès aujourd’hui pour en savoir plus! À noter qu’en tant que constructeur, nous ne sommes pas mandatés pour réaliser la vente de ce terrain.
L’actualité immobilière à Saint-Laurent
27/11/2023
02/11/2023
30/10/2023
20/10/2023
16/10/2023
16/10/2023