Images
Description
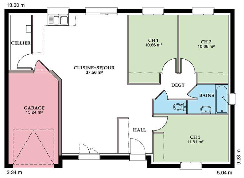
Découvrez la Prunière, une maison neuve de 87,5 m² avec garage intégré, qui marie style moderne et confort au quotidien. Disponible en toit 2 ou 4 pans, elle séduit par son architecture élégante et son agencement fonctionnel, idéal pour un couple ou une jeune famille.
L’intérieur se compose de 3 chambres lumineuses, d’un espace de vie ouvert et convivial, et d’un garage accolé offrant un rangement pratique et un accès direct à la maison. Chaque espace a été pensé pour offrir volume, clarté et bien-être.
Conforme à la réglementation RE2020, la Prunière bénéficie d’une isolation performante, d’une consommation énergétique réduite et d’un confort thermique optimal tout au long de l’année.
La Prunière 87,5 m² + garage, c’est le choix d’une maison moderne, économe et durable, pensée pour un mode de vie simple, serein et tourné vers l’avenir.
Logement susceptibles de vous intéresser
Nous vous proposons de découvrir aussi cette sélection de logements situés à moins de 10km de Sainte-Solange et qui seraient susceptibles de vous intéresser.
Pigny
TERRAIN ET MAISONMaison neuve – 5 chambres – Suite parentale – GarageVolumes généreux & luminosité exceptionnelle !Découvrez cette superbe maison idéale pour une grande famille :✨ 5 chambres dont une suite parentale avec dressing et salle d’eau✨ 2 salles de bain✨ Grande pièce de vie ultra lumineuse✨ Cuisine ouverte avec cellier✨ Garage attenantDes beaux volumes, une luminosité remarquable et une conception pensée pour le confort quotidien.Un projet moderne, spacieux et résolument séduisant !Réalisez la maison qui vous ressemble, adaptée à vos besoins avec MAISONS FRANCE CONFORT sur ce terrain en accord avec un partenaire foncier.📞 Contactez Maisons France Confort Saint-Doulchard dès aujourd’hui pour plus d’informations et commencer votre projet de construction !
Moulins-sur-Yèvre
TERRAIN ET MAISONMaison neuve 150 m² – 5 chambres dont suite parentale – Le confort moderne pour toute la famille !Laissez-vous séduire par cette maison neuve à étage avec garage, pensée pour allier style, confort et fonctionnalité :✨ 5 chambres dont une superbe suite parentale avec salle de bain privative✨ 2 salles de bain à l’étage pour un quotidien fluide✨ Grande pièce de vie lumineuse, idéale pour recevoir✨ Cuisine ouverte moderne et conviviale✨ Cellier communiquant avec le garage, ultra-pratiqueUn projet spacieux, parfait pour une famille en quête de volume, de modernité et de confort haut de gamme.Elle est proposée à l’achat à partir de 376 900 €.Réalisez la maison qui vous ressemble, adaptée à vos besoins avec MAISONS FRANCE CONFORT sur ce terrain en accord avec un partenaire foncier.📞 Contactez Maisons France Confort Saint-Doulchard dès aujourd’hui pour plus d’informations et commencer votre projet de construction !
Fussy
TERRAIN ET MAISONProjet de construction – Maison familiale à FussyMaisons France Confort Saint-Doulchard vous propose un projet de construction d’une maison moderne et fonctionnelle située à Fussy, idéale pour une famille en quête de confort et de sérénité.Cette maison disposera de 4 chambres, dont une suite parentale comprenant un dressing et une salle d’eau privative, offrant un véritable espace intime et indépendant.Un grand cellier/buanderie viendra compléter les espaces pratiques de la maison pour un quotidien plus organisé.Les 3 autres chambres, dédiées aux enfants ou aux invités, sont situées dans un espace nuit séparé et bénéficient d’une belle salle de bain indépendante, garantissant confort et intimité pour toute la famille.La pièce de vie, spacieuse et lumineuse, a été pensée pour être chaleureuse et conviviale, parfaite pour recevoir et partager des moments en famille ou entre amis.Réalisez la maison qui vous ressemble, adaptée à vos besoins avec MAISONS FRANCE CONFORT sur ce terrain en accord avec un partenaire foncier.📞 Contactez Maisons France Confort Saint-Doulchard dès aujourd’hui pour plus d’informations et commencer votre projet de construction !
Moulins-sur-Yèvre
TERRAIN ET MAISONProjet de construction – La maison idéale pour votre familleImaginez une maison où chacun trouve son espace, où les moments partagés prennent tout leur sens et où le confort devient votre quotidien. Ce projet de maison neuve a été pensé pour offrir à votre famille bien-être, sérénité et harmonie.Avec ses 4 chambres, cette maison accueille aussi bien les rires des enfants que les moments de calme des parents.✨ Un espace parents préservé, comprenant une suite parentale avec dressing et salle d’eau, véritable cocon de tranquillité.✨ Un coin enfants séparé, avec 3 chambres, une salle de bain et un WC indépendant, pour leur offrir autonomie et confort.✨ Une belle pièce de vie lumineuse, coeur de la maison, idéale pour partager les repas, les jeux et les soirées en famille.✨ Un cellier / buanderie attenant, pour garder un intérieur toujours bien organisé.Moderne, fonctionnelle et chaleureuse, cette maison s’adapte à votre style de vie et évolue avec votre famille. Ce projet est entièrement personnalisable pour que chaque détail vous ressemble.Possibilité de réaliser votre projet personnalisé avec Maisons France Confort sur ce terrain en accord avec notre partenaire foncier📞 Contactez dès aujourd’hui Maisons France Confort Saint-Doulchard pour plus d’informations ou une étude gratuite et personnalisée de votre projet !
Sainte-Solange
TERRAIN ET MAISON🏡 Construction Maison R+1 – 4 chambres avec garage sur terrain de un peu plus de 860 m2 à Sainte Solange – Prestations haut de gammeRéalisez votre projet de vie avec Maisons France Confort, constructeur du groupe HEXAOM, premier constructeur de maisons individuelles en France, reconnu pour la qualité et le sérieux de ses réalisations.✨ Caractéristiques de la maison :R+1 complet offrant de beaux volumes et une organisation fonctionnelle4 chambres spacieuses pour toute la famille2 WC et un cellier pratique pour le rangementGrande pièce de vie lumineuse pour profiter d’un espace convivial et confortableMaison conforme aux normes RE2020, garantissant confort thermique et économies d’énergie🌿 Prestations haut de gamme : matériaux de qualité, finitions soignées et conception moderne pour un confort optimal.🏠 Maisons France Confort, c’est la garantie d’une construction fiable, sur mesure, et pensée pour allier fonctionnalité, espace et confort, idéale pour une vie de famille sereine. Maisons France Confort a sélectionné avec un partenaire foncier un terrain pour construire cette maison.
Moulins-sur-Yèvre
TERRAIN ET MAISON🏡 Projet de construction – Maison neuve 3 chambres aux normes PMR – Idéale investissement locatif ou premier achatOpportunité à saisir ! Découvrez ce projet de maison neuve de plain-pied, conforme aux normes PMR, pensé pour allier confort, praticité et accessibilité.Caractéristiques :3 belles chambres lumineusesGrande pièce de vie avec cuisine ouverteSalle de bain très fonctionnelle avec grande doucheWC séparéCellier pour plus de rangementAccessibilité normes PMR (plain-pied, circulation facilitée)Espaces optimisés pour un maximum de confortCe projet est idéal pour un investissement locatif rentable ou pour un premier achat sécurisé, avec un logement moderne, facile à louer ou à habiter.Possibilité de réaliser votre projet personnalisé avec Maisons France Confort sur ce terrain en accord avec notre partenaire foncier.📞 Contactez dès aujourd’hui Maisons France Confort Saint-Doulchard pour plus d’informations ou une étude gratuite et personnalisée de votre projet !
Sainte-Solange
TERRAIN ET MAISON🏡 Construction neuve – Maison 3 chambres avec garage sur terrain d’environ 860 m2 à Sainte Solange – Belles prestations signée Maisons France ConfortDécouvrez ce superbe projet de construction alliant modernité, confort et performance énergétique, proposé par Maisons France Confort, membre du groupe HEXAOM, leader français de la construction de maisons individuelles.✨ Descriptif du projet :3 chambres spacieusesGarage attenant et cellier fonctionnel pour plus de rangementGrande pièce de vie lumineuse, ouverte sur l’extérieur grâce à 2 grandes baies vitrées en aluminiumSalle de bain contemporaine avec grande douche à l’italienneWC séparéVolets roulants électriques pour plus de confort au quotidien🌿 Maison conforme à la réglementation environnementale RE2020, garantissant des économies d’énergie et un excellent confort thermique toute l’année.🏠 Maisons France Confort, c’est la garantie d’une construction de qualité, de prestations haut de gamme et d’un accompagnement sur mesure dans votre projet de vie.Maisons France Confort a sélectionné avec un partenaire foncier un terrain pour construire cette maison.
Moulins-sur-Yèvre
TERRAINIdéal pour votre projet de maison avec Maisons France Confort🏠 Un projet de construction personnaliséLe constructeur Maisons France Confort vous accompagne pour imaginer et bâtir la maison de vos rêves :Maisons traditionnelles, modernes ou contemporaines.Plans personnalisables selon vos besoins et votre budget.Garanties et accompagnement complet (CCMI, suivi de chantier, performance énergétique).Pour plus d’informations sur les possibilités de construction avec Maisons France Confort, contactez Jessica DA COSTA au (Numéro supprimé)Nous vous accompagnerons à chaque étape de votre projet pour une réalisation en toute sérénité sur ce terrain proposé en accord avec notre partenaire foncier.
Moulins-sur-Yèvre
TERRAIN ET MAISON🏡 Construction – Maison 2 chambres évolutive avec combles aménageablesDécouvrez ce projet de construction moderne et fonctionnel, proposé par Maisons France Confort, constructeur reconnu du groupe HEXAOM, premier constructeur de maisons individuelles en France.✨ Descriptif du projet :Maison de plain-pied, pensée pour le confort et l’accessibilité2 chambres lumineuses et bien agencéesCombles aménageables, offrant un fort potentiel d’évolution selon vos besoins futurs (chambres supplémentaires, bureau, salle de jeux, etc.)Belle pièce de vie conviviale, ouverte sur le jardinCuisine ouverte et cellier fonctionnelSalle d’eau moderne et WC 🌿 Maison conforme à la norme RE2020, garantissant confort, performance énergétique et économies d’énergie.💡 Idéale pour un investissement locatif ou un premier achat, cette maison combine accessibilité, évolutivité et rentabilité.Possibilité de réaliser votre projet personnalisé avec Maisons France Confort sur ce terrain en accord avec notre partenaire foncier📞 Contactez dès aujourd’hui Maisons France Confort Saint-Doulchard pour plus d’informations ou une étude gratuite et personnalisée de votre projet !
L’actualité immobilière à Sainte-Solange
27/11/2023
02/11/2023
30/10/2023
20/10/2023
16/10/2023
16/10/2023