Images
Description
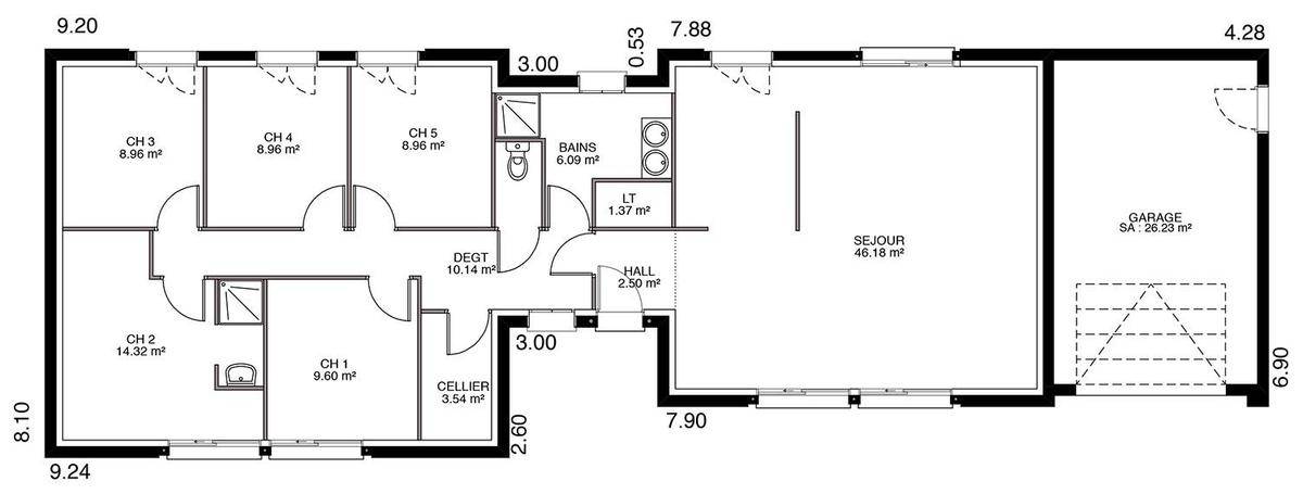
Nous vous proposons cette maison neuve, baptisée ""Harmonie"", un modèle conçu avec soin par nos architectes, intégrant un garage pour allier fonctionnalité et esthétique. Cette maison, d'une surface de 109 m², est pensée pour offrir confort et bien-être à ses habitants. Elle se compose de 5 pièces, dont 4 chambres spacieuses, permettant à chaque membre de la famille de bénéficier de son propre espace de tranquillité.
L'architecture de ""Harmonie"" a été étudiée pour s'intégrer parfaitement à son environnement tout en mettant en avant une esthétique moderne et épurée. Le garage intégré est un atout majeur, offrant non seulement un espace de stationnement sécurisé mais aussi une facilité d'accès à la maison, quelles que soient les conditions météorologiques.
Cette maison est également une prouesse en termes de performance énergétique. Conforme à la norme RE2020, elle est classée comme maison basse consommation. Cela signifie que ""Harmonie"" a été conçue pour réduire au minimum votre empreinte carbone tout en vous permettant de réaliser d'importantes économies d'énergie. L'isolation thermique optimisée, le système de chauffage de dernière génération et la ventilation performante garantissent un confort inégalé en toutes saisons, avec un impact environnemental réduit.
Vivre dans ""Harmonie"", c'est choisir un habitat qui respecte l'environnement tout en offrant un cadre de vie exceptionnel. Cette maison est idéale pour ceux qui recherchent un lieu de vie sain, économique en énergie et doté de tout le confort moderne. Ne manquez pas l'opportunité de construire la maison de vos rêves, une maison qui sera en parfaite harmonie avec vos valeurs et votre style de vie.
Logement susceptibles de vous intéresser
Nous vous proposons de découvrir aussi cette sélection de logements situés à moins de 10km de Vasselay et qui seraient susceptibles de vous intéresser.
Pigny
TERRAIN ET MAISONMaison neuve – 5 chambres – Suite parentale – GarageVolumes généreux & luminosité exceptionnelle !Découvrez cette superbe maison idéale pour une grande famille :✨ 5 chambres dont une suite parentale avec dressing et salle d’eau✨ 2 salles de bain✨ Grande pièce de vie ultra lumineuse✨ Cuisine ouverte avec cellier✨ Garage attenantDes beaux volumes, une luminosité remarquable et une conception pensée pour le confort quotidien.Un projet moderne, spacieux et résolument séduisant !Réalisez la maison qui vous ressemble, adaptée à vos besoins avec MAISONS FRANCE CONFORT sur ce terrain en accord avec un partenaire foncier.📞 Contactez Maisons France Confort Saint-Doulchard dès aujourd’hui pour plus d’informations et commencer votre projet de construction !
Saint-Martin-d'Auxigny
TERRAIN ET MAISONMaison neuve – 5 chambres – Suite parentale – GarageVolumes généreux & luminosité exceptionnelle !Découvrez cette superbe maison idéale pour une grande famille :✨ 5 chambres dont une suite parentale avec dressing et salle d’eau✨ 2 salles de bain✨ Grande pièce de vie ultra lumineuse✨ Cuisine ouverte avec cellier✨ Garage attenantDes beaux volumes, une luminosité remarquable et une conception pensée pour le confort quotidien.Un projet moderne, spacieux et résolument séduisant !Réalisez la maison qui vous ressemble, adaptée à vos besoins avec MAISONS FRANCE CONFORT sur ce terrain en accord avec un partenaire foncier.📞 Contactez Maisons France Confort Saint-Doulchard dès aujourd’hui pour plus d’informations et commencer votre projet de construction !
Saint-Éloy-de-Gy
TERRAIN ET MAISONMaison neuve – 5 chambres – Suite parentale – GarageVolumes généreux & luminosité exceptionnelle !Découvrez cette superbe maison idéale pour une grande famille :✨ 5 chambres dont une suite parentale avec dressing et salle d’eau✨ 2 salles de bain✨ Grande pièce de vie ultra lumineuse✨ Cuisine ouverte avec cellier✨ Garage attenantDes beaux volumes, une luminosité remarquable et une conception pensée pour le confort quotidien.Un projet moderne, spacieux et résolument séduisant !Réalisez la maison qui vous ressemble, adaptée à vos besoins avec MAISONS FRANCE CONFORT sur ce terrain en accord avec un partenaire foncier.📞 Contactez Maisons France Confort Saint-Doulchard dès aujourd’hui pour plus d’informations et commencer votre projet de construction !
Saint-Doulchard
TERRAIN ET MAISONMAISONS FRANCE CONFORT – Votre future maison d’exception à Saint-Doulchard !120 m² + garage – Confort, volume et modernité !Saisissez l’opportunité de réaliser une maison sur mesure signée Maisons France Confort, alliant design contemporain, grands espaces et prestations de qualité.Au programme :✨ 3 chambres dont une suite parentale premium avec espace privatif✨ Une grande pièce de vie lumineuse, parfaite pour accueillir famille et amis✨ Cuisine ouverte avec cellier attenant, pour un quotidien facilité✨ Garage, idéal pour stockageUn projet pensé pour offrir bien-être, fonctionnalité et valeur pérenne.Un investissement sûr, un confort durable : construisez l’avenir avec Maisons France Confort !Réalisez la maison qui vous ressemble, adaptée à vos besoins avec MAISONS FRANCE CONFORT sur ce terrain en accord avec un partenaire foncier.📞 Contactez Maisons France Confort Saint-Doulchard pour plus d’informations et commencer votre projet de construction !
Saint-Martin-d'Auxigny
TERRAIN ET MAISON🏡 Construction – Maison 2 chambres + garage évolutive avec combles aménageablesDécouvrez ce projet de construction moderne et fonctionnel, proposé par Maisons France Confort, constructeur reconnu du groupe HEXAOM, premier constructeur de maisons individuelles en France.✨ Descriptif du projet :Maison de plain-pied, aux normes PMR (personne à mobilité réduite), pensée pour le confort et l’accessibilité2 chambres lumineuses et bien agencéesCombles aménageables, offrant un fort potentiel d’évolution selon vos besoins futurs (chambres supplémentaires, bureau, salle de jeux, etc.)Belle pièce de vie conviviale, ouverte sur le jardinCuisine ouverte et cellier fonctionnelSalle d’eau moderne et WC 🌿 Maison conforme à la norme RE2020, garantissant confort, performance énergétique et économies d’énergie.💡 Idéale pour un investissement locatif ou un premier achat, cette maison combine accessibilité, évolutivité et rentabilité.🏠 Maisons France Confort vous accompagne pour réaliser un projet sur mesure, fiable et durable sur ce terrain en accord avec notre partenaire foncier📞 Contactez Maisons France Confort Saint-Doulchard pour étudier votre projet et faire de cette maison votre futur chez-vous !
Saint-Martin-d'Auxigny
TERRAIN ET MAISON🏡 Superbe maison à construire – 4 chambres & garageDécouvrez cette maison familiale moderne, pensée pour offrir confort, espace et convivialité à toute votre famille.Elle propose 4 chambres parfaitement agencées, une salle de bain fonctionnelle, ainsi qu’un WC séparé pour plus de confort au quotidien.Vous apprécierez également le garage intégré, pratique pour le stationnement et le rangement.Au coeur de la maison, une superbe pièce de vie lumineuse et conviviale vous attend : un espace idéal pour partager tous vos moments en famille.Une création signée Maisons France Confort, alliant qualité, modernité et bien-être.Possibilité de réaliser votre projet personnalisé avec Maisons France Confort sur ce terrain en accord avec notre partenaire foncier📞 Contactez Maisons France Confort Saint-Doulchard pour étudier votre projet et faire de cette maison votre futur chez-vous !
Saint-Martin-d'Auxigny
TERRAIN ET MAISON🏡 Construction Maison R+1 – 4 chambres avec garage – Prestations haut de gammeRéalisez votre projet de vie avec Maisons France Confort, constructeur du groupe HEXAOM, premier constructeur de maisons individuelles en France, reconnu pour la qualité et le sérieux de ses réalisations.✨ Caractéristiques de la maison :R+1 complet offrant de beaux volumes et une organisation fonctionnelle4 chambres spacieuses pour toute la famille2 WC et un cellier pratique pour le rangementGrande pièce de vie lumineuse pour profiter d’un espace convivial et confortableMaison conforme aux normes RE2020, garantissant confort thermique et économies d’énergie🌿 Prestations haut de gamme : matériaux de qualité, finitions soignées et conception moderne pour un confort optimal.🏠 Maisons France Confort, c’est la garantie d’une construction fiable, sur mesure, et pensée pour allier fonctionnalité, espace et confort, idéale pour une vie de famille sereine.Réalisez la maison qui vous ressemble, adaptée à vos besoins avec MAISONS FRANCE CONFORT sur ce terrain en accord avec un partenaire foncier.📞 Contactez Maisons France Confort Saint-Doulchard dès aujourd’hui pour plus d’informations et commencer votre projet de construction !
Saint-Martin-d'Auxigny
TERRAIN ET MAISONUne maison optimisée pour les investisseurs, conforme aux normes PMR à partir de 151 900€ euros sur la commune de Saint Martin d’Auxigny.Ce plan de maison est conçu pour répondre parfaitement aux besoins des investisseurs immobiliers cherchant un bien à forte attractivité locative. Avec un agencement optimisé et conforme aux normes PMR (Personnes à Mobilité Réduite), cette maison garantit accessibilité, confort et fonctionnalité pour tous les occupants.Cette maison offre un beau potentiel d’agrandissement grâce à ses combles aménageables déjà préparés avec trémie existante (accès prévu pour escalier).L’espace de vie principal se distingue par sa grande luminosité, grâce à de larges ouvertures permettant une belle connexion avec l’extérieur. Cette pièce spacieuse offre de multiples possibilités d’aménagement, alliant convivialité et praticité.La partie nuit est composée de deux chambres confortables, idéales pour accueillir des locataires ou une petite famille. La salle de bain entièrement adaptée aux besoins des personnes à mobilité réduite, est équipée d’une douche à l’italienne et d’un agencement ergonomique. Le dégagement compact facilite la circulation fluide dans toute la maison.Ce bien, pensé pour répondre aux exigences du marché locatif, est une solution clé en main pour les investisseurs soucieux de garantir un rendement durable tout en offrant un cadre de vie adapté à tous.Réalisez la maison qui vous ressemble, adaptée à vos besoins avec MAISONS FRANCE CONFORT sur ce terrain en accord avec un partenaire foncier.📞 Contactez Maisons France Confort Saint-Doulchard dès aujourd’hui pour plus d’informations et commencer votre projet de construction !
Saint-Martin-d'Auxigny
TERRAINIdéal pour votre projet de maison avec Maisons France Confort🏠 Un projet de construction personnaliséLe constructeur Maisons France Confort vous accompagne pour imaginer et bâtir la maison de vos rêves :Maisons traditionnelles, modernes ou contemporaines.Plans personnalisables selon vos besoins et votre budget.Garanties et accompagnement complet (CCMI, suivi de chantier, performance énergétique).Pour plus d’informations sur les possibilités de construction avec Maisons France Confort, contactez Jessica DA COSTANous vous accompagnerons à chaque étape de votre projet pour une réalisation en toute sérénité sur ce terrain proposé en accord avec notre partenaire foncier.
L’actualité immobilière à Vasselay
27/11/2023
02/11/2023
30/10/2023
20/10/2023
16/10/2023
16/10/2023