Images
Description
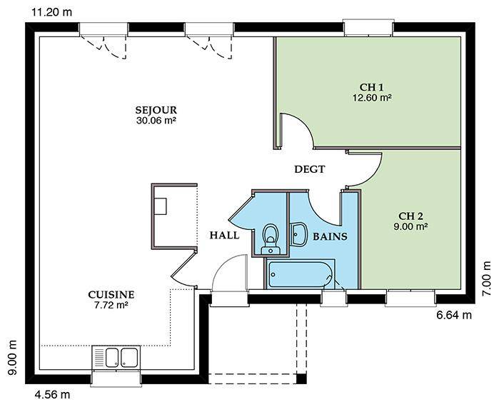
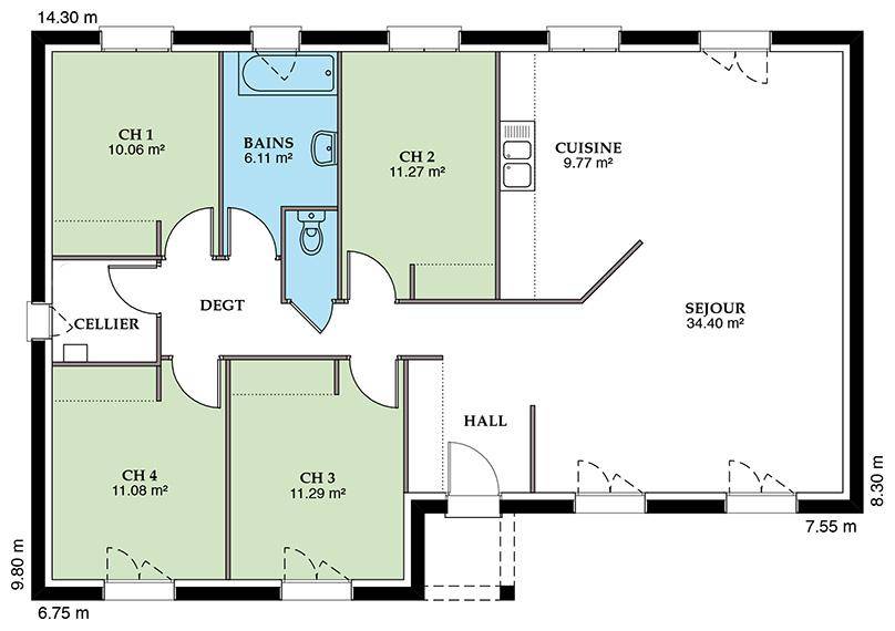
Nous vous proposons cette maison neuve, baptisée ""Mezière"", un modèle de construction qui allie élégance et fonctionnalité sur une surface habitable de 89 m². Conçue pour répondre aux attentes des plus exigeants, cette maison se distingue par son architecture moderne, disponible en versions à 2 ou 4 pans, complétée par un charmant porche qui accueille vos visiteurs avec style et distinction.
La ""Mezière"" se compose de 3 pièces judicieusement agencées pour maximiser l'espace et le confort. Elle offre 2 chambres spacieuses, promettant un havre de paix pour chaque membre de la famille. L'espace de vie, lumineux et accueillant, est conçu pour partager des moments précieux, que ce soit dans le cadre familial ou lors de réceptions amicales.
Ce modèle se distingue également par son engagement envers l'environnement et votre portefeuille. En effet, la ""Mezière"" est une maison basse consommation, rigoureusement conçue pour respecter les normes de la RE2020. Cette réglementation environnementale de 2020 garantit une efficacité énergétique supérieure, réduisant considérablement vos factures d'énergie tout en contribuant à la protection de notre planète.
Chaque détail de la ""Mezière"" a été pensé pour offrir un confort de vie inégalé, dans le respect des normes écologiques les plus strictes. Que vous optiez pour une toiture à 2 ou 4 pans, vous bénéficierez d'une maison qui allie esthétique contemporaine et performances énergétiques de pointe.
En choisissant la ""Mezière"", vous faites le choix d'une maison neuve, personnalisable selon vos goûts et vos besoins, et d'un habitat durable qui vous accompagnera pendant de nombreuses années. Ne manquez pas l'opportunité de construire la maison de vos rêves, une maison qui respecte à la fois votre confort et l'environnement.
Logement susceptibles de vous intéresser
Nous vous proposons de découvrir aussi cette sélection de logements situés à moins de 10km de Vasselay et qui seraient susceptibles de vous intéresser.
Pigny
TERRAIN ET MAISONMaison neuve – 5 chambres – Suite parentale – GarageVolumes généreux & luminosité exceptionnelle !Découvrez cette superbe maison idéale pour une grande famille :✨ 5 chambres dont une suite parentale avec dressing et salle d’eau✨ 2 salles de bain✨ Grande pièce de vie ultra lumineuse✨ Cuisine ouverte avec cellier✨ Garage attenantDes beaux volumes, une luminosité remarquable et une conception pensée pour le confort quotidien.Un projet moderne, spacieux et résolument séduisant !Réalisez la maison qui vous ressemble, adaptée à vos besoins avec MAISONS FRANCE CONFORT sur ce terrain en accord avec un partenaire foncier.📞 Contactez Maisons France Confort Saint-Doulchard dès aujourd’hui pour plus d’informations et commencer votre projet de construction !
Saint-Martin-d'Auxigny
TERRAIN ET MAISONMaison neuve – 5 chambres – Suite parentale – GarageVolumes généreux & luminosité exceptionnelle !Découvrez cette superbe maison idéale pour une grande famille :✨ 5 chambres dont une suite parentale avec dressing et salle d’eau✨ 2 salles de bain✨ Grande pièce de vie ultra lumineuse✨ Cuisine ouverte avec cellier✨ Garage attenantDes beaux volumes, une luminosité remarquable et une conception pensée pour le confort quotidien.Un projet moderne, spacieux et résolument séduisant !Réalisez la maison qui vous ressemble, adaptée à vos besoins avec MAISONS FRANCE CONFORT sur ce terrain en accord avec un partenaire foncier.📞 Contactez Maisons France Confort Saint-Doulchard dès aujourd’hui pour plus d’informations et commencer votre projet de construction !
Saint-Éloy-de-Gy
TERRAIN ET MAISONMaison neuve – 5 chambres – Suite parentale – GarageVolumes généreux & luminosité exceptionnelle !Découvrez cette superbe maison idéale pour une grande famille :✨ 5 chambres dont une suite parentale avec dressing et salle d’eau✨ 2 salles de bain✨ Grande pièce de vie ultra lumineuse✨ Cuisine ouverte avec cellier✨ Garage attenantDes beaux volumes, une luminosité remarquable et une conception pensée pour le confort quotidien.Un projet moderne, spacieux et résolument séduisant !Réalisez la maison qui vous ressemble, adaptée à vos besoins avec MAISONS FRANCE CONFORT sur ce terrain en accord avec un partenaire foncier.📞 Contactez Maisons France Confort Saint-Doulchard dès aujourd’hui pour plus d’informations et commencer votre projet de construction !
Saint-Doulchard
TERRAIN ET MAISONMAISONS FRANCE CONFORT – Votre future maison d’exception à Saint-Doulchard !120 m² + garage – Confort, volume et modernité !Saisissez l’opportunité de réaliser une maison sur mesure signée Maisons France Confort, alliant design contemporain, grands espaces et prestations de qualité.Au programme :✨ 3 chambres dont une suite parentale premium avec espace privatif✨ Une grande pièce de vie lumineuse, parfaite pour accueillir famille et amis✨ Cuisine ouverte avec cellier attenant, pour un quotidien facilité✨ Garage, idéal pour stockageUn projet pensé pour offrir bien-être, fonctionnalité et valeur pérenne.Un investissement sûr, un confort durable : construisez l’avenir avec Maisons France Confort !Réalisez la maison qui vous ressemble, adaptée à vos besoins avec MAISONS FRANCE CONFORT sur ce terrain en accord avec un partenaire foncier.📞 Contactez Maisons France Confort Saint-Doulchard pour plus d’informations et commencer votre projet de construction !
Saint-Martin-d'Auxigny
TERRAIN ET MAISON🏡 Construction – Maison 2 chambres + garage évolutive avec combles aménageablesDécouvrez ce projet de construction moderne et fonctionnel, proposé par Maisons France Confort, constructeur reconnu du groupe HEXAOM, premier constructeur de maisons individuelles en France.✨ Descriptif du projet :Maison de plain-pied, aux normes PMR (personne à mobilité réduite), pensée pour le confort et l’accessibilité2 chambres lumineuses et bien agencéesCombles aménageables, offrant un fort potentiel d’évolution selon vos besoins futurs (chambres supplémentaires, bureau, salle de jeux, etc.)Belle pièce de vie conviviale, ouverte sur le jardinCuisine ouverte et cellier fonctionnelSalle d’eau moderne et WC 🌿 Maison conforme à la norme RE2020, garantissant confort, performance énergétique et économies d’énergie.💡 Idéale pour un investissement locatif ou un premier achat, cette maison combine accessibilité, évolutivité et rentabilité.🏠 Maisons France Confort vous accompagne pour réaliser un projet sur mesure, fiable et durable sur ce terrain en accord avec notre partenaire foncier📞 Contactez Maisons France Confort Saint-Doulchard pour étudier votre projet et faire de cette maison votre futur chez-vous !
Saint-Martin-d'Auxigny
TERRAIN ET MAISON🏡 Superbe maison à construire – 4 chambres & garageDécouvrez cette maison familiale moderne, pensée pour offrir confort, espace et convivialité à toute votre famille.Elle propose 4 chambres parfaitement agencées, une salle de bain fonctionnelle, ainsi qu’un WC séparé pour plus de confort au quotidien.Vous apprécierez également le garage intégré, pratique pour le stationnement et le rangement.Au coeur de la maison, une superbe pièce de vie lumineuse et conviviale vous attend : un espace idéal pour partager tous vos moments en famille.Une création signée Maisons France Confort, alliant qualité, modernité et bien-être.Possibilité de réaliser votre projet personnalisé avec Maisons France Confort sur ce terrain en accord avec notre partenaire foncier📞 Contactez Maisons France Confort Saint-Doulchard pour étudier votre projet et faire de cette maison votre futur chez-vous !
Saint-Martin-d'Auxigny
TERRAIN ET MAISON🏡 Construction Maison R+1 – 4 chambres avec garage – Prestations haut de gammeRéalisez votre projet de vie avec Maisons France Confort, constructeur du groupe HEXAOM, premier constructeur de maisons individuelles en France, reconnu pour la qualité et le sérieux de ses réalisations.✨ Caractéristiques de la maison :R+1 complet offrant de beaux volumes et une organisation fonctionnelle4 chambres spacieuses pour toute la famille2 WC et un cellier pratique pour le rangementGrande pièce de vie lumineuse pour profiter d’un espace convivial et confortableMaison conforme aux normes RE2020, garantissant confort thermique et économies d’énergie🌿 Prestations haut de gamme : matériaux de qualité, finitions soignées et conception moderne pour un confort optimal.🏠 Maisons France Confort, c’est la garantie d’une construction fiable, sur mesure, et pensée pour allier fonctionnalité, espace et confort, idéale pour une vie de famille sereine.Réalisez la maison qui vous ressemble, adaptée à vos besoins avec MAISONS FRANCE CONFORT sur ce terrain en accord avec un partenaire foncier.📞 Contactez Maisons France Confort Saint-Doulchard dès aujourd’hui pour plus d’informations et commencer votre projet de construction !
Saint-Martin-d'Auxigny
TERRAIN ET MAISONUne maison optimisée pour les investisseurs, conforme aux normes PMR à partir de 151 900€ euros sur la commune de Saint Martin d’Auxigny.Ce plan de maison est conçu pour répondre parfaitement aux besoins des investisseurs immobiliers cherchant un bien à forte attractivité locative. Avec un agencement optimisé et conforme aux normes PMR (Personnes à Mobilité Réduite), cette maison garantit accessibilité, confort et fonctionnalité pour tous les occupants.Cette maison offre un beau potentiel d’agrandissement grâce à ses combles aménageables déjà préparés avec trémie existante (accès prévu pour escalier).L’espace de vie principal se distingue par sa grande luminosité, grâce à de larges ouvertures permettant une belle connexion avec l’extérieur. Cette pièce spacieuse offre de multiples possibilités d’aménagement, alliant convivialité et praticité.La partie nuit est composée de deux chambres confortables, idéales pour accueillir des locataires ou une petite famille. La salle de bain entièrement adaptée aux besoins des personnes à mobilité réduite, est équipée d’une douche à l’italienne et d’un agencement ergonomique. Le dégagement compact facilite la circulation fluide dans toute la maison.Ce bien, pensé pour répondre aux exigences du marché locatif, est une solution clé en main pour les investisseurs soucieux de garantir un rendement durable tout en offrant un cadre de vie adapté à tous.Réalisez la maison qui vous ressemble, adaptée à vos besoins avec MAISONS FRANCE CONFORT sur ce terrain en accord avec un partenaire foncier.📞 Contactez Maisons France Confort Saint-Doulchard dès aujourd’hui pour plus d’informations et commencer votre projet de construction !
Saint-Martin-d'Auxigny
TERRAINIdéal pour votre projet de maison avec Maisons France Confort🏠 Un projet de construction personnaliséLe constructeur Maisons France Confort vous accompagne pour imaginer et bâtir la maison de vos rêves :Maisons traditionnelles, modernes ou contemporaines.Plans personnalisables selon vos besoins et votre budget.Garanties et accompagnement complet (CCMI, suivi de chantier, performance énergétique).Pour plus d’informations sur les possibilités de construction avec Maisons France Confort, contactez Jessica DA COSTANous vous accompagnerons à chaque étape de votre projet pour une réalisation en toute sérénité sur ce terrain proposé en accord avec notre partenaire foncier.
L’actualité immobilière à Vasselay
27/11/2023
02/11/2023
30/10/2023
20/10/2023
16/10/2023
16/10/2023