Images
Description
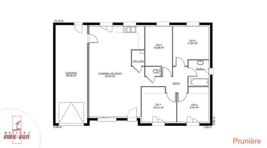
Sur ce terrain, nous vous proposons cette maison neuve, la Prunière, l’un des modèles les plus vendus par Babeau-Seguin, constructeur offrant le meilleur rapport qualité/prix du marché. Figurant dans le top 5 des maisons individuelles Babeau-Seguin, cette maison plain-pied Prunière séduit par son renfoncement qui casse la monotonie de la façade avant et offre un abri de seuil.
Avec une surface de 73 m², cette maison traditionnelle comprend 3 pièces, dont 2 chambres, et un garage intégré. Vous avez le choix entre une toiture à 2 pans ou à 4 pans, selon vos préférences esthétiques.
La Prunière est également une maison basse consommation, conforme à la réglementation environnementale RE2020, ce qui vous garantit des économies d'énergie et un confort optimal tout au long de l'année.
Si on devait retenir la Prunière, ce serait toutefois son prix ! La Prunière est en effet la maison à petit prix par excellence, tout en offrant des prestations de qualité.
Ne manquez pas cette opportunité de construire une maison qui allie confort, économie et esthétisme. Contactez-nous pour plus d'informations et pour découvrir toutes les options disponibles pour personnaliser votre future maison.
Logement susceptibles de vous intéresser
Nous vous proposons de découvrir aussi cette sélection de logements situés à moins de 10km de Albussac et qui seraient susceptibles de vous intéresser.
Beynat
TERRAINÀ saisir ! Ce terrain d’une surface généreuse de 1 285 m², situé à Beynat, est la toile parfaite pour concrétiser votre projet de construction. Avec une vue dégagée, sans vis-à-vis et dans un cadre calme, il offre des caractéristiques uniques pour accueillir la maison de vos rêves. Ce terrain non viabilisé possède un potentiel incroyable pour ceux qui souhaitent développer un espace de vie sur mesure. Beynat, situé dans le département de la Corrèze en Nouvelle-Aquitaine, est une charmante commune qui allie tranquillité et accessibilité. Les habitants bénéficient d’une multitude d’attractions locales, notamment des chemins de randonnée pittoresques et des sites naturels préservés, parfaits pour les amoureux de la nature. La vie quotidienne est facilitée par des commodités à proximité, comme des commerces et des services essentiels, vous assurant un cadre de vie agréable et dynamique. Ne manquez pas cette opportunité unique d’investir dans un terrain au fort potentiel, propice à la construction d’une maison qui vous ressemble. Contactez-nous dès aujourd’hui pour envisager cette belle aventure immobilière ! À noter qu’en tant que constructeur, nous ne sommes pas mandatés pour réaliser la vente de ce terrain.
Albussac
TERRAIN ET MAISONSur ce terrain, nous vous proposons cette maison neuve, le modèle Ménilière, une maison plain-pied moderne qui intègre de base un garage et une longue galerie sur la face avant. Avec une surface de 100 m², cette maison dispose de 4 chambres et de 4 pièces, offrant ainsi un espace de vie confortable et fonctionnel pour toute la famille.Véritable « »tout-en-un » » de la maison individuelle, ce modèle est idéal pour votre projet de construction sur-mesure. La Ménilière est disponible avec un toit à 2 pans ou 4 pans, selon vos préférences esthétiques. Le garage intégré et la galerie avant ajoutent une touche pratique et élégante à cette maison.Les options les plus demandées par nos clients, telles que les menuiseries en aluminium et le sous-sol, sont également disponibles pour personnaliser davantage votre future maison. De plus, cette maison neuve est basse consommation et conforme à la réglementation environnementale RE2020, garantissant ainsi des performances énergétiques optimales et un impact environnemental réduit.Le constructeur Babeau-Seguin, reconnu pour offrir le meilleur rapport qualité/prix du marché, vous accompagne dans la réalisation de votre projet immobilier. Avec un prix serré et une personnalisation facile, il n’est pas étonnant que la Ménilière soit dans le top 5 des ventes de Babeau-Seguin.Ne manquez pas cette opportunité unique de devenir propriétaire d’une maison moderne, économe en énergie et parfaitement adaptée à vos besoins. Contactez-nous dès maintenant pour plus d’informations et pour planifier une visite de ce modèle exceptionnel.
Albussac
TERRAINDécouvrez ce magnifique terrain à vendre, d’une superficie généreuse de 1800 m², situé dans la charmante commune d’Albussac, en Corrèze. Ce terrain plat, situé dans un cadre champêtre au calme, offre des caractéristiques uniques et un potentiel exceptionnel pour votre futur projet de construction de maison. Profitez d’une qualité de vie inégalée, où sérénité et nature se rencontrent pour créer l’environnement résidentiel de vos rêves. Albussac, nichée en plein cœur de la région Nouvelle-Aquitaine, est une ville riche en attractions locales et commodités. Vous y trouverez des paysages pittoresques, parfaits pour les amoureux de la nature et les activités de plein air. La ville est également à proximité des commodités essentielles, offrant un accès facile aux commerces, écoles et services de santé. Avec son atmosphère paisible et ses infrastructures de qualité, Albussac représente un cadre de vie idéal pour les familles et les personnes en quête de tranquillité. Ce terrain présente ainsi un potentiel considérable pour un projet immobilier. N’hésitez pas à envisager cette opportunité d’achat unique qui saura répondre à vos aspirations. À noter qu’en tant que constructeur, nous ne sommes pas mandatés pour réaliser la vente de ce terrain.
Beynat
TERRAIN ET MAISONSur ce terrain, nous vous proposons cette maison neuve Aubetière. Avec une surface de 59 m² et équipée d’une chambre, cette maison traditionnelle est appréciée pour son excellent rapport qualité/prix. Personnalisez le plan de votre Aubetière 59 m² avec des options comme un garage ou un sous-sol.L’Aubetière est une maison moderne qui se distingue par son excellent rapport qualité/prix. Vous pouvez choisir entre une toiture à 2 pans ou à 4 pans, selon vos préférences esthétiques et pratiques. Cette maison neuve est basse consommation et conforme à la RE2020, garantissant ainsi des performances énergétiques optimales et un respect des normes environnementales les plus récentes. Le constructeur Babeau-Seguin, reconnu pour offrir le meilleur rapport qualité/prix du marché, vous accompagne dans la réalisation de votre projet de construction. Donnez vie à votre projet de construction en optant pour notre modèle traditionnel Aubetière et profitez d’une maison individuelle sur mesure, adaptée à vos besoins et à vos envies.
Palazinges
TERRAIN ET MAISONMaison neuve à construire – 100 m² Palazinges Grand terrain + vueA Palazinges – Cadre nature exceptionnelDécouvrez ce projet de maison neuve de 100 m², idéale pour une famille :- 3 chambres- Garage intégré avec accès cellier/cuisine- Construction aux dernières normes, bâti haut de gamme- Performances, durabilité et confort optimisésLe tout sur un magnifique terrain de +3500 m², avec une vue dominante sur la campagne et un environnement boisé et ultra paisible.Un lieu parfait pour ceux qui recherchent calme, espace et nature, tout en profitant d’une maison moderne et bien pensée.Opportunité rare dans un cadre privilégié.Contactez Thibault JUILLARD CONDAT (tél : (Numéro supprimé)). Plusieurs autres projets possibles sur ce terrain selon vos envies et besoins. Alpha Constructions Brive-la-Gaillarde est là pour vous accompagner dans tous vos projets immobiliers.
Palazinges
TERRAIN ET MAISONMaison neuve à construire – 115 m² Palazinges Grand terrain + vueA Palazinges – Cadre nature exceptionnelDécouvrez ce projet de maison neuve de 115 m², idéale pour une famille :- 4 chambres dont suite parentale- Garage intégré avec accès cellier/cuisine- Construction aux dernières normes, bâti haut de gamme- Performances, durabilité et confort optimisésLe tout sur un magnifique terrain de +3500 m², avec une vue dominante sur la campagne et un environnement boisé et ultra paisible.Un lieu parfait pour ceux qui recherchent calme, espace et nature, tout en profitant d’une maison moderne et bien pensée.Opportunité rare dans un cadre privilégié.Contactez Thibault JUILLARD CONDAT (tél : (Numéro supprimé)). Plusieurs autres projets possibles sur ce terrain selon vos envies et besoins. Alpha Constructions Brive-la-Gaillarde est là pour vous accompagner dans tous vos projets immobiliers.
Lagarde-Marc-la-Tour
TERRAINNous vous présentons un terrain à vendre d’une superficie généreuse de 2990 m², idéalement situé à Marc-la-Tour, dans le département de la Corrèze. Ce terrain non viabilisé représente une opportunité rare pour les acheteurs en quête d’un emplacement privilégié pour un projet de construction de maison. Avec sa vue dégagée et son ensoleillement optimal, il promet un cadre de vie agréable, propice à l’épanouissement familial. Située au cœur d’une région verdoyante, Marc-la-Tour offre un cadre champêtre idéal pour ceux en quête de tranquillité, tout en étant proche des commodités. La commune bénéficie d’un environnement calme, riche en paysages naturels, tout en étant à proximité de services essentiels. Ses attraits locaux, tels que des sentiers de randonnée et des espaces verts, en font un lieu de vie prisé pour les amateurs de nature. Investir dans ce terrain, c’est bien plus qu’un projet immobilier, c’est un choix de style de vie équilibré et enrichissant. Ne laissez pas passer cette opportunité unique d’acquérir un terrain au potentiel illimité. Contactez-nous pour explorer ce bien et envisagez d’y réaliser vos rêves de construction. À noter qu’en tant que constructeur, nous ne sommes pas mandatés pour réaliser la vente de ce terrain.
Lagarde-Marc-la-Tour
TERRAINÀ la recherche d’un terrain unique pour concrétiser votre projet de construction de maison ? Ne cherchez plus ! Ce magnifique terrain de 1600 m² vous offre un cadre champêtre idéal, ensoleillé et au calme, parfait pour bâtir la maison de vos rêves. Situé dans la commune de Lagarde-Marc-La-Tour, dans le département de la Corrèze, ce terrain non viabilisé présente un fort potentiel pour une construction future, grâce à ses caractéristiques environnantes exceptionnelles. La ville de Lagarde-Marc-La-Tour est un endroit privilégié qui allie sérénité et commodités à proximité. Vous pourrez profiter des paysages verdoyants de la Corrèze tout en étant proche des commerces, établissements scolaires et autres services nécessaires au quotidien. La région est également riche en attractions naturelles et culturelles, vous proposant un cadre de vie agréable, loin du tumulte urbain. Que vous soyez passionné de randonnées, amateur d’activités en plein air ou tout simplement à la recherche d’un lieu apaisant, Lagarde-Marc-La-Tour saura vous séduire par son charme et ses multiples atouts. Ce terrain représente une opportunité d’achat rare dans une région en pleine expansion. Ne manquez pas la chance de réaliser votre rêve de construction ! Pour plus d’informations, n’hésitez pas à nous contacter. À noter qu’en tant que constructeur, nous ne sommes pas mandatés pour réaliser la vente de ce terrain.
Lagarde-Marc-la-Tour
TERRAIN ET MAISONSur ce terrain, nous vous proposons cette maison neuve Aubetière, un modèle traditionnel de la gamme Babeau-Seguin, constructeur reconnu pour offrir le meilleur rapport qualité/prix du marché. Avec une surface de 88 m², cette maison de plain-pied se compose de 4 pièces, dont 3 chambres spacieuses, idéales pour accueillir toute votre famille.L’Aubetière se distingue par son excellent rapport qualité/prix et sa conformité aux normes RE2020, garantissant une basse consommation énergétique. Vous avez la possibilité de personnaliser votre maison en choisissant entre un toit à 2 pans ou à 4 pans, ainsi qu’en ajoutant un garage ou un sous-sol selon vos besoins.Cette maison moderne et fonctionnelle est conçue pour s’adapter à vos envies et à votre mode de vie. Profitez de la flexibilité offerte par les nombreux plans et déclinaisons disponibles pour créer votre maison individuelle sur mesure.Ne manquez pas cette opportunité de donner vie à votre projet de construction avec le modèle Aubetière, une maison neuve qui allie confort, économie d’énergie et personnalisation. Contactez-nous dès maintenant pour plus d’informations et pour découvrir toutes les options disponibles pour votre future maison.
L’actualité immobilière à Albussac
27/11/2023
02/11/2023
30/10/2023
20/10/2023
16/10/2023
16/10/2023