Images
Description
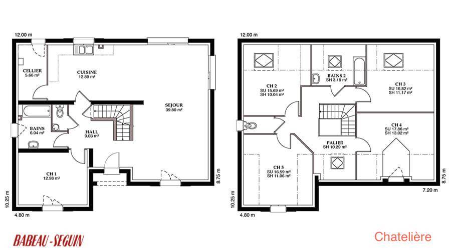
Sur ce terrain, nous vous proposons cette maison neuve : la Chatelière. Avec une surface généreuse de 189 m², cette somptueuse maison de prestige est idéale pour une grande famille. Elle dispose de 4 chambres et de 4 pièces, offrant tout l'espace nécessaire pour vivre confortablement.
Tout est dans son nom ! La Chatelière a vraiment tout d'une grande maison familiale de prestige, elle vous séduira dès le premier regard. Cette maison neuve est basse consommation et conforme à la RE2020, garantissant ainsi des performances énergétiques optimales et un respect de l'environnement.
Un intérieur idéal et bien conçu : à l'intérieur, vous serez immédiatement conquis par le plancher de l'étage en béton ainsi que la charpente traditionnelle qui lui donnent une belle impression de solidité et de qualité. La distribution des pièces et les trois salles d'eau et/ou de bains sont élégamment conçues pour répondre à tous vos besoins en matière de confort et de relaxation.
Un équilibre parfait entre confort et design : la Chatelière est bien plus qu'une simple maison de prestige. C'est un véritable modèle de fusion entre confort et design. Tout a été conçu pour répondre aux attentes de ceux qui recherchent un équilibre parfait entre les beaux volumes intérieurs et des lignes modernes parfaites.
Sur ce terrain à bâtir, optez pour ce prestigieux modèle à étage ! La Chatelière, avec ses 189 m² dans son écrin alliant luxe et design, vous propose 4 belles chambres ainsi qu’un vaste séjour. Véritable icône du bon goût, elle est personnalisable en fonction de vos besoins.
Le constructeur Babeau-Seguin, reconnu pour offrir le meilleur rapport qualité/prix du marché, vous garantit une maison de qualité supérieure, alliant confort, design et performance énergétique. Ne manquez pas cette opportunité unique de devenir propriétaire de cette magnifique maison de prestige.
Logement susceptibles de vous intéresser
Nous vous proposons de découvrir aussi cette sélection de logements situés à moins de 10km de Allassac et qui seraient susceptibles de vous intéresser.
Voutezac
TERRAINNous vous présentons un terrain d’exception à Voutezac, s’étendant sur une surface généreuse de 2066 m². Ce bien rare se distingue par sa vue dégagée et son cadre champêtre, offrant ainsi un environnement paisible et serein parfait pour concrétiser votre projet de construction de maison. Sa qualité de vie inégalée séduira les amateurs de nature et de tranquillité, une toile de fond idéale pour la réalisation de votre rêve immobilier. Située dans le département de la Corrèze, en région Nouvelle-Aquitaine, Voutezac est une ville charmante qui offre une multitude d’attractions locales et de commodités. Les amoureux de la nature apprécieront les paysages pittoresques qui entourent la commune, tandis que les collectivités locales proposent des services variés pour le bien-être de ses habitants. Profitez d’une ambiance conviviale et de nombreuses activités de plein air, le tout à proximité des commerces et des infrastructures essentielles. Ce terrain représente une opportunité exceptionnelle au cœur d’un environnement épanouissant. Cet emplacement de choix promet un immense potentiel pour votre futur projet. N’hésitez pas à considérer cette chance unique d’investir dans un terrain qui allie tranquillité et qualité de vie. À noter qu’en tant que constructeur, nous ne sommes pas mandatés pour réaliser la vente de ce terrain.
Voutezac
TERRAIN ET MAISONSur ce terrain, nous vous proposons cette maison neuve : le modèle Focus Cosy city. Conçue par Babeau-Seguin, constructeur reconnu pour offrir le meilleur rapport qualité/prix du marché, cette maison de plain-pied traditionnelle offre une surface habitable de 79 m², parfaitement optimisée pour répondre aux besoins des familles.Idéale pour les petits budgets, la Focus Cosy city est une maison neuve écologique, conforme aux normes strictes de la RE2020. Elle garantit une basse consommation énergétique, ce qui se traduit par des coûts d’usage et d’entretien très faibles, notamment pour le chauffage.Cette maison se compose de 4 pièces, dont 3 chambres lumineuses, parfaites pour accueillir une famille. Le grand séjour de 33 m² est baigné de lumière naturelle grâce à une baie vitrée coulissante, créant un espace de vie convivial et chaleureux. La cuisine ouverte sur le séjour permet de partager des moments agréables en famille ou entre amis. Un cellier, situé dans le prolongement de la cuisine, offre un espace de rangement pratique pour les provisions.La maison dispose également d’une salle de bain avec des WC séparés, offrant un espace de vie fonctionnel et bien organisé pour toute la famille. Les options les plus demandées par les clients, telles que la domotique et l’enduit bi-ton, peuvent être intégrées pour personnaliser votre maison selon vos préférences.En résumé, le modèle Focus Cosy city est une maison neuve économique et écologique, qui combine une conception pratique avec une haute efficacité énergétique. Elle offre ainsi un cadre de vie confortable et abordable pour les familles à la recherche d’un logement durable et respectueux de l’environnement. Économie à la construction, économie à la consommation !
Voutezac
TERRAINÀ vendre, un terrain spacieux de 2066 m², situé dans la charmante commune de Voutezac, au coeur de la Corrèze en Nouvelle-Aquitaine. Ce terrain, bénéficiant d’une superbe vue dégagée et d’une exposition ensoleillée, représente un cadre idéal pour la construction de votre future maison. à l’abri des nuisances sonores, ce lieu paisible offre une qualité de vie exceptionnelle, permettant de réaliser votre projet de construction dans un environnement verdoyant et calme. Voutezac se distingue par son atmosphère conviviale et ses richesses naturelles, offrant à ses résidents un accès aisé aux commodités locales. Profitez de la proximité des marchés, écoles, et autres services essentiels pour un quotidien simplifié. De plus, la région regorge de paysages pittoresques et d’activités de plein air, favorisant une vie équilibrée et active. Ce terrain est idéalement situé, à deux pas des beautés naturelles que la Corrèze a à offrir. Ne manquez pas cette opportunité unique d’acquérir un terrain avec un potentiel immense dans un environnement de qualité. Contactez-nous pour plus d’informations et envisagez de réaliser votre rêve immobilier ici. À noter qu’en tant que constructeur, nous ne sommes pas mandatés pour réaliser la vente de ce terrain.
Voutezac
TERRAIN ET MAISONSur ce terrain, nous vous proposons cette maison neuve : l’Intimity U de la gamme Evasihome, le confort pour les parents?!Avec une surface de 124 m², cette maison en U est idéale pour les familles en quête d’intimité et de confort. Elle dispose de 4 chambres, dont une superbe suite parentale avec dressing et salle d’eau privative, offrant un espace de détente rien que pour vous. La suite parentale bénéficie également d’un accès direct à la terrasse, parfaite pour profiter des beaux jours.Le reste de la maison se compose de trois autres chambres avec placards, d’un grand séjour-cuisine central baigné de lumière grâce à une verrière, et d’un garage intégré pour votre confort. Les prises USB murales ajoutent une touche de modernité et de praticité à votre quotidien.Les options les plus demandées par nos clients, telles que l’enduit bi-ton et la domotique, sont disponibles pour personnaliser votre maison selon vos goûts et besoins.Cette maison neuve est basse consommation et conforme à la RE2020, garantissant des performances énergétiques optimales et un respect de l’environnement.Le constructeur Babeau-Seguin, reconnu pour offrir le meilleur rapport qualité/prix du marché, vous accompagne dans la réalisation de votre projet immobilier. Offrez-vous la tranquillité que vous méritez avec l’Intimity U, la maison que vous attendiez?! Rencontrons-nous en agence pour donner forme à votre rêve dès aujourd’hui?!
Allassac
TERRAINDécouvrez ce terrain d’exception de 1500 m², idéalement situé dans la charmante ville d’Allassac, en Corrèze, au cœur de la paisible région de la Nouvelle-Aquitaine. Ce terrain plat, au calme et offrant une vue dégagée, constitue un cadre parfait pour réaliser votre projet de construction de maison. Situé dans un quartier privilégié et recherché, il vous permettra de profiter d’une qualité de vie inégalée, loin de l’agitation urbaine. Allassac est une ville qui séduit par son authenticité et son cadre de vie agréable. Au sein de cette commune dynamique, vous trouverez un riche patrimoine culturel ainsi que des services de proximité qui facilitent le quotidien. Les amateurs de nature apprécieront les nombreux sentiers de randonnée et espaces verts qui entourent la ville. De plus, la proximité des infrastructures scolaires, des commerces et des commodités essentielles feront de votre future maison un havre de paix et de confort. Ce terrain représente une opportunité unique pour les investisseurs et les futurs propriétaires souhaitant construire leur rêve maison. N’attendez plus pour concrétiser votre projet dans ce cadre idyllique. À noter qu’en tant que constructeur, nous ne sommes pas mandatés pour réaliser la vente de ce terrain.
Allassac
TERRAIN ET MAISONSur ce terrain, nous vous proposons cette maison neuve : la Chatelière. Avec une surface généreuse de 189 m², cette somptueuse maison de prestige est idéale pour une grande famille. Elle dispose de 4 chambres et de 4 pièces, offrant tout l’espace nécessaire pour vivre confortablement.Tout est dans son nom ! La Chatelière a vraiment tout d’une grande maison familiale de prestige, elle vous séduira dès le premier regard. Cette maison neuve est basse consommation et conforme à la RE2020, garantissant ainsi des performances énergétiques optimales et un respect de l’environnement.Un intérieur idéal et bien conçu : à l’intérieur, vous serez immédiatement conquis par le plancher de l’étage en béton ainsi que la charpente traditionnelle qui lui donnent une belle impression de solidité et de qualité. La distribution des pièces et les trois salles d’eau et/ou de bains sont élégamment conçues pour répondre à tous vos besoins en matière de confort et de relaxation.Un équilibre parfait entre confort et design : la Chatelière est bien plus qu’une simple maison de prestige. C’est un véritable modèle de fusion entre confort et design. Tout a été conçu pour répondre aux attentes de ceux qui recherchent un équilibre parfait entre les beaux volumes intérieurs et des lignes modernes parfaites.Sur ce terrain à bâtir, optez pour ce prestigieux modèle à étage ! La Chatelière, avec ses 189 m² dans son écrin alliant luxe et design, vous propose 4 belles chambres ainsi qu’un vaste séjour. Véritable icône du bon goût, elle est personnalisable en fonction de vos besoins.Le constructeur Babeau-Seguin, reconnu pour offrir le meilleur rapport qualité/prix du marché, vous garantit une maison de qualité supérieure, alliant confort, design et performance énergétique. Ne manquez pas cette opportunité unique de devenir propriétaire de cette magnifique maison de prestige.
Sainte-Féréole
TERRAINDécouvrez ce terrain exceptionnel de 1600 m², situé dans le charmant quartier de Sainte-Féréole, dans le département de la Corrèze. Ce site plat offre une opportunité unique pour concrétiser votre projet de construction de maison dans un cadre de vie privilégié. Bénéficiant d’un Plan Local d’Urbanisme (PLU) non contraignant, vous pourrez laisser libre cours à votre créativité et réaliser la maison de vos rêves dans un environnement agréable et serein. Sainte-Féréole est une commune dynamique de la Nouvelle-Aquitaine, offrant un cadre de vie idéal entre nature et proximité des commodités. À proximité, vous profiterez de paysages pittoresques et d’un accès facile aux commerces locaux, restaurants et services de santé. La région regorge également d’activités de plein air, de sentiers de randonnée et d’événements culturels, faisant de ce lieu un choix privilégié pour les familles et les amoureux de la nature. Ce terrain est plus qu’un simple investissement, c’est une promesse de qualité de vie. Ne manquez pas cette occasion d’acquérir un terrain idéal pour votre future maison. Contactez-nous pour explorer cette opportunité d’achat unique. À noter qu’en tant que constructeur, nous ne sommes pas mandatés pour réaliser la vente de ce terrain.
Sainte-Féréole
TERRAIN ET MAISONSur ce terrain, nous vous proposons cette maison neuve, Harmonie, conçue par Babeau-Seguin, constructeur offrant le meilleur rapport qualité/prix du marché. Avec une surface de 109 m², cette maison contemporaine en L est un véritable coup de cœur pour les amoureux de modernité.Harmonie se distingue par son plan en L et ses baies coulissantes, qui apportent un effet saisissant de modernité grâce à un travail de contraste sur ses ouvertures. Son toit plat, pouvant être remplacé par une toiture à 4 pans à faible pente, en fait la maison contemporaine de référence de notre catalogue.Cette maison dispose de 4 chambres spacieuses et de 4 pièces, offrant un espace de vie confortable et fonctionnel. Le garage intégré ajoute une touche de praticité supplémentaire.Les options les plus demandées par nos clients sont également disponibles pour ce modèle : une deuxième salle de bains, des menuiseries en aluminium et un système de domotique pour une maison connectée et intelligente.En choisissant Harmonie, vous optez pour une maison neuve basse consommation, conforme à la réglementation environnementale RE2020, garantissant ainsi des performances énergétiques optimales et un respect de l’environnement.Ne manquez pas cette opportunité unique de construire la maison de vos rêves avec Babeau-Seguin, le constructeur qui allie qualité, modernité et économies d’énergie.
Sadroc
TERRAINNous vous proposons un terrain plat exceptionnel de 1570 m², idéalement situé à Sadroc, en Corrèze, qui constitue l’emplacement parfait pour réaliser votre projet de construction de maison. Ce terrain bénéficie d’une proximité avec un axe routier important, offrant ainsi un accès facile aux commodités environnantes. Avec ses caractéristiques uniques, ce terrain représente une opportunité rare dans un marché en pleine croissance. Sadroc, charmante commune de Nouvelle-Aquitaine, offre un cadre de vie agréable avec de nombreuses attractions locales, notamment des espaces verts et des loisirs en plein air. La ville est également bien desservie par des commerces, des écoles et des services, garantissant un quotidien pratique et stimulant. La richesse culturelle et les paysages environnants font de cette région un lieu prisé pour établir son foyer. Ne laissez pas passer cette opportunité d’acquérir un terrain au potentiel remarquable. Contactez-nous dès maintenant pour plus d’informations et envisagez de faire de ce terrain le site de votre future maison ! À noter qu’en tant que constructeur, nous ne sommes pas mandatés pour réaliser la vente de ce terrain.
L’actualité immobilière à Allassac
27/11/2023
02/11/2023
30/10/2023
20/10/2023
16/10/2023
16/10/2023