Images
Description
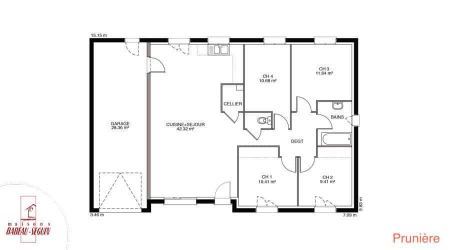
Sur ce terrain, nous vous proposons cette maison neuve, la Prunière, l’un des modèles les plus vendus par Babeau-Seguin, constructeur offrant le meilleur rapport qualité/prix du marché. Figurant dans le top 5 des maisons individuelles Babeau-Seguin, cette maison plain-pied Prunière séduit par son renfoncement qui casse la monotonie de la façade avant et offre un abri de seuil.
Avec une surface de 73 m², cette maison traditionnelle comprend 3 pièces, dont 2 chambres, et un garage intégré. Vous avez le choix entre une toiture à 2 pans ou à 4 pans, selon vos préférences esthétiques.
La Prunière est également une maison basse consommation, conforme à la réglementation environnementale RE2020, ce qui vous garantit des économies d'énergie et un confort optimal tout au long de l'année.
Si on devait retenir la Prunière, ce serait toutefois son prix ! La Prunière est en effet la maison à petit prix par excellence, tout en offrant des prestations de qualité.
Ne manquez pas cette opportunité de construire une maison qui allie confort, économie et esthétisme. Contactez-nous pour plus d'informations et pour découvrir toutes les options disponibles pour personnaliser votre future maison.
Logement susceptibles de vous intéresser
Nous vous proposons de découvrir aussi cette sélection de logements situés à moins de 10km de Allassac et qui seraient susceptibles de vous intéresser.
Sainte-Féréole
TERRAINÀ la recherche d’un terrain exceptionnel pour réaliser votre projet de construction de maison ? Ne cherchez plus ! Ce terrain à vendre d’une superficie généreuse, situé à Sainte-Féréole, au cœur de la Corrèze, vous offre une vue dégagée dans un quartier recherché et privilégié. Profitez de l’opportunité d’acquérir ce terrain non viabilisé, idéal pour bâtir la maison de vos rêves dans un cadre enchanteur. Avec des caractéristiques uniques et un prix attractif, ce terrain est à saisir sans tarder. Sainte-Féréole se distingue par son ambiance paisible et son accessibilité. Située en Nouvelle-Aquitaine, cette charmante commune offre un cadre de vie agréable tout en étant à proximité des commodités locales. Vous pourrez bénéficier des jolies promenades environnantes, des commerces de proximité, ainsi que des services qui accompagne la vie de la communauté. Découvrez les attractions locales qui font la renommée de la Corrèze et profitez d’un environnement naturel exceptionnel à deux pas de chez vous. Ne manquez pas cette belle opportunité d’investir dans un terrain prometteur qui saura répondre à toutes vos attentes. Contactez-nous pour découvrir le potentiel de cette parcelle et commencer à imaginer votre future maison ! À noter qu’en tant que constructeur, nous ne sommes pas mandatés pour réaliser la vente de ce terrain.
Objat
TERRAIN ET MAISONSur ce terrain, nous vous proposons cette maison neuve, la Crescendo, conçue par Babeau-Seguin, constructeur reconnu pour offrir le meilleur rapport qualité/prix du marché. Cette maison contemporaine porte bien son nom « »Crescendo » ». Partant de formes cubiques très modernes, elle adoucit ses traits grâce à un toit en demi-pente suggérant une élévation ! Résolument moderne tout en offrant une touche traditionnelle rassurante, cette Crescendo est totalement exclusive.Avec une surface de 110 m², cette maison spacieuse et lumineuse dispose de 4 chambres et de 4 pièces, offrant ainsi tout le confort nécessaire pour une famille. Le garage intégré ajoute une touche de praticité supplémentaire, permettant de protéger votre véhicule tout en offrant un espace de rangement supplémentaire.Ce modèle cubique est parfait pour les amoureux des maisons aux architectures atypiques. De plus, cette maison neuve est basse consommation et conforme à la RE2020, garantissant ainsi des performances énergétiques optimales et un respect des normes environnementales les plus récentes.Ne manquez pas cette opportunité unique de devenir propriétaire d’une maison moderne et économe en énergie, alliant design contemporain et touches traditionnelles. Contactez-nous dès maintenant pour plus d’informations et pour découvrir le plan de votre future maison Crescendo.
Sainte-Féréole
TERRAIN ET MAISONSur ce terrain, nous vous proposons cette maison neuve : l’Intimity L de la gamme Evasihome, un confort absolu. Parce qu’être parent n’est pas toujours facile quand la petite tribu remue dans la maison, et qu’on a tous besoin d’intimité et d’un lieu bien à soi, Babeau-Seguin propose une nouvelle gamme de maisons avec suite parentale, Evasihome. L’Intimity L va vous séduire, vous qui, après une longue journée, avez besoin de vous ressourcer dans votre espace privatif.Intimity L, parce que les parents aussi ont droit au meilleur?! Lorsqu’on construit une maison neuve, on pense avant tout au confort des enfants. Et si pour une fois cela changeait un peu?? Offrez-vous la chambre parentale que vous méritez?! Dotée d’un beau dressing et d’une salle d’eau, celle-ci est autonome, grâce à une porte-fenêtre donnant directement sur la terrasse bétonnée. Dans le reste de cette très belle maison en L, vous disposerez de trois chambres supplémentaires avec placards, un confortable espace de jour avec cuisine ouverte, un cellier et un garage intégré.Laissez-vous séduire par cette si belle maison où chaque membre de la famille trouvera sa place. Avec une surface de 124 m², cette demeure offre un espace de vie optimisé et lumineux pour que toute la famille s’épanouisse. Les caractéristiques principales incluent une verrière, des prises USB murales, une suite parentale, une terrasse bétonnée et un garage intégré. De plus, cette maison neuve est basse consommation et conforme à la RE2020, garantissant des économies d’énergie et un confort thermique optimal. Les options les plus demandées par nos clients, telles que l’enduit bi-ton et la domotique, sont également disponibles pour personnaliser votre maison selon vos envies.Babeau-Seguin, constructeur offrant le meilleur rapport qualité/prix du marché, vous invite à découvrir l’Intimity L. Vous êtes convaincus?? Alors n’attendez pas, venez à notre rencontre, nous évoquerons ensemble votre projet de construction?!
Objat
TERRAINNous vous présentons un terrain à vendre d’une superficie généreuse de 3500 m², idéal pour un projet de construction de maison. Situé à Objat, dans le département de la Corrèze en Nouvelle-Aquitaine, ce terrain bénéficie d’un cadre champêtre sans vis-à-vis, offrant une sécurité et une tranquillité inégalées. Son exposition ensoleillée et sa situation idéale en font un emplacement de choix pour réaliser vos rêves d’habitat. Objat est une ville dynamique qui allie charme et commodité. Vous pourrez profiter de toutes les infrastructures nécessaires à votre quotidien, notamment des commerces, des écoles et des services de santé à proximité. De plus, la région est riche en attractions locales, vous permettant d’explorer la belle nature environnante ainsi que des sites historiques. C’est un lieu où il fait bon vivre, idéal pour les familles ainsi que pour ceux recherchants la sérénité. Ce terrain offre donc un potentiel exceptionnel pour construire la maison de vos rêves dans un environnement paisible et verdoyant. N’hésitez pas à nous contacter pour envisager cette opportunité d’achat unique. À noter qu’en tant que constructeur, nous ne sommes pas mandatés pour réaliser la vente de ce terrain.
Ussac
TERRAIN ET MAISONMaison contemporaine à Seilhac – 138 m² sur 3 450 m²Découvrez ce projet haut de gamme au coeur de Seilhac : une maison contemporaine à étage partiel, pensée pour allier design moderne, confort et fonctionnalité.138 m² pour votre famille :3 chambres, dont une suite parentale luxueuse à l’étage pour profiter de la vue à 180 degrés sur BriveGarage intégré pour une parfaite commoditéEspaces de vie ouverts et lumineuxConstruction aux normes les plus récentes, avec bâti haut de gamme offrant durabilité, performance énergétique et qualité premium.Implantée sur un beau terrain constructible de 3450 m², cette maison offre espace, nature et intimité dans un cadre paisible et prestigieux, à 5 minutes du centre de Brive.Un projet d’exception pour les familles exigeantes, à la recherche de modernité et de bien-être absolu.Contactez-nous dès maintenant pour vivre l’expérience haut standing à Ussac !Contactez Thibault JUILLARD CONDAT (tél : (Numéro supprimé)). Plusieurs autres projets possibles sur ce terrain selon vos envies et besoins. Alpha Constructions Brive-la-Gaillarde est là pour vous accompagner dans tous vos projets immobiliers.
Sadroc
TERRAIN ET MAISONIdéal jeune couple, à seulement 5 minutes du bourg de Sadroc et 5 minutes de l’autoroute, vous aimerez ce joli coin de verdure de 1500 m², au coeur d’un village offrant les écoles, commerces de proximité, loisirs… Vous apprécierez le projet contemporain avec son architecture en L. Spacieuse, elle possède trois belles chambres ainsi qu’une salle de bains, un somptueux salon séjour ouvert de près de 45 m² sur une cuisine, très lumineux. Le tout sur 100 m² de surface, adossé à un garage, accessible par le cellier. Contactez Thibault JUILLARD CONDAT (tél : (Numéro supprimé)) pour obtenir de plus amples renseignements sur la maison. Plusieurs autres projets possibles sur ce terrain selon vos envies et besoins. Alpha Constructions Brive-la-Gaillarde est là pour vous accompagner dans tous vos projets immobiliers.
Objat
TERRAIN ET MAISONMaison neuve à construire – 100 m² Objat Beau terrain + emplacement idéalA Objat – Proche école, collège et piscineDécouvrez ce projet de maison neuve de 100 m², idéale pour une famille :- 3 chambres- Garage intégré- Construction aux dernières normes, bâti haut de gamme- Performances, durabilité et confort optimisésLe tout sur un beau terrain de 1000 m², à 5 minutes du centre-ville d’Objat et 20 minutes de la zone Ouest de Brive.Un lieu parfait pour ceux qui recherchent la proximité des commerces, du centre-ville et des écoles/collèges.Opportunité rare dans un cadre privilégié.Contactez Thibault JUILLARD CONDAT (tél : (Numéro supprimé)). Plusieurs autres projets possibles sur ce terrain selon vos envies et besoins. Alpha Constructions Brive-la-Gaillarde est là pour vous accompagner dans tous vos projets immobiliers.
Objat
TERRAIN ET MAISONMaison neuve à construire – 90 m² Objat Beau terrain + emplacement idéalA Objat – Proche école, collège et piscineDécouvrez ce projet de maison neuve de 90 m², idéale pour une famille :- 3 chambres- Construction aux dernières normes, bâti haut de gamme- Performances, durabilité et confort optimisésLe tout sur un beau terrain de 1000 m², à 5 minutes du centre-ville d’Objat et 20 minutes de la zone Ouest de Brive.Un lieu parfait pour ceux qui recherchent la proximité des commerces, du centre-ville et des écoles/collèges.Opportunité rare dans un cadre privilégié.Contactez Thibault JUILLARD CONDAT (tél : (Numéro supprimé)). Plusieurs autres projets possibles sur ce terrain selon vos envies et besoins. Alpha Constructions Brive-la-Gaillarde est là pour vous accompagner dans tous vos projets immobiliers.
Objat
TERRAIN ET MAISONMaison neuve à construire – 110 m² Objat Beau terrain + emplacement idéalA Objat – Proche école, collège et piscineDécouvrez ce projet de maison neuve de 110 m², idéale pour une famille :- 4 chambres- Garage intégré avec accès cellier/cuisine- Construction aux dernières normes, bâti haut de gamme- Performances, durabilité et confort optimisésLe tout sur un beau terrain de 1000 m², à 5 minutes du centre-ville d’Objat et 20 minutes de la zone Ouest de Brive.Un lieu parfait pour ceux qui recherchent la proximité des commerces, du centre-ville et des écoles/collèges.Opportunité rare dans un cadre privilégié.Contactez Thibault JUILLARD CONDAT (tél : (Numéro supprimé)). Plusieurs autres projets possibles sur ce terrain selon vos envies et besoins. Alpha Constructions Brive-la-Gaillarde est là pour vous accompagner dans tous vos projets immobiliers.
L’actualité immobilière à Allassac
27/11/2023
02/11/2023
30/10/2023
20/10/2023
16/10/2023
16/10/2023