Images
Description
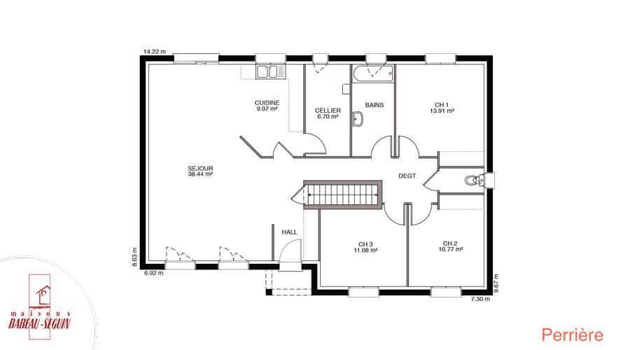
Sur ce terrain, nous vous proposons cette maison neuve Perrière de 89 m², conçue par Babeau-Seguin, le constructeur offrant le meilleur rapport qualité/prix du marché. Cette maison traditionnelle se distingue par une avancée de toit qui protège les portes-fenêtres de la façade avant ainsi que la porte d’entrée, ajoutant à la fois charme et fonctionnalité.
La Perrière dispose de 4 pièces, dont 3 chambres, ce qui en fait une maison familiale par excellence. Vous avez la possibilité de choisir entre une toiture à 2 pans ou à 4 pans, selon vos préférences esthétiques. De plus, ce modèle peut être agrémenté d’un garage ou d’un sous-sol, disponibles en option, pour répondre à vos besoins spécifiques.
Cette maison neuve est basse consommation et conforme à la RE2020, garantissant des performances énergétiques optimales et un respect des normes environnementales actuelles. Avec un très bon rapport qualité/prix et tout le savoir-faire de Babeau-Seguin, la Perrière est une maison à prix réduit sans pour autant être une maison low-cost.
Le plan de cette maison est personnalisable en fonction de votre mode de vie, vous permettant de créer un espace qui vous ressemble. Ne manquez pas cette opportunité de construire la maison de vos rêves sur ce terrain !
Logement susceptibles de vous intéresser
Nous vous proposons de découvrir aussi cette sélection de logements situés à moins de 10km de Favars et qui seraient susceptibles de vous intéresser.
Sainte-Féréole
TERRAINÀ la recherche d’un terrain exceptionnel pour réaliser votre projet de construction de maison ? Ne cherchez plus ! Ce terrain à vendre d’une superficie généreuse, situé à Sainte-Féréole, au cœur de la Corrèze, vous offre une vue dégagée dans un quartier recherché et privilégié. Profitez de l’opportunité d’acquérir ce terrain non viabilisé, idéal pour bâtir la maison de vos rêves dans un cadre enchanteur. Avec des caractéristiques uniques et un prix attractif, ce terrain est à saisir sans tarder. Sainte-Féréole se distingue par son ambiance paisible et son accessibilité. Située en Nouvelle-Aquitaine, cette charmante commune offre un cadre de vie agréable tout en étant à proximité des commodités locales. Vous pourrez bénéficier des jolies promenades environnantes, des commerces de proximité, ainsi que des services qui accompagne la vie de la communauté. Découvrez les attractions locales qui font la renommée de la Corrèze et profitez d’un environnement naturel exceptionnel à deux pas de chez vous. Ne manquez pas cette belle opportunité d’investir dans un terrain prometteur qui saura répondre à toutes vos attentes. Contactez-nous pour découvrir le potentiel de cette parcelle et commencer à imaginer votre future maison ! À noter qu’en tant que constructeur, nous ne sommes pas mandatés pour réaliser la vente de ce terrain.
Sainte-Féréole
TERRAIN ET MAISONSur ce terrain, nous vous proposons cette maison neuve : l’Intimity L de la gamme Evasihome, un confort absolu. Parce qu’être parent n’est pas toujours facile quand la petite tribu remue dans la maison, et qu’on a tous besoin d’intimité et d’un lieu bien à soi, Babeau-Seguin propose une nouvelle gamme de maisons avec suite parentale, Evasihome. L’Intimity L va vous séduire, vous qui, après une longue journée, avez besoin de vous ressourcer dans votre espace privatif.Intimity L, parce que les parents aussi ont droit au meilleur?! Lorsqu’on construit une maison neuve, on pense avant tout au confort des enfants. Et si pour une fois cela changeait un peu?? Offrez-vous la chambre parentale que vous méritez?! Dotée d’un beau dressing et d’une salle d’eau, celle-ci est autonome, grâce à une porte-fenêtre donnant directement sur la terrasse bétonnée. Dans le reste de cette très belle maison en L, vous disposerez de trois chambres supplémentaires avec placards, un confortable espace de jour avec cuisine ouverte, un cellier et un garage intégré.Laissez-vous séduire par cette si belle maison où chaque membre de la famille trouvera sa place. Avec une surface de 124 m², cette demeure offre un espace de vie optimisé et lumineux pour que toute la famille s’épanouisse. Les caractéristiques principales incluent une verrière, des prises USB murales, une suite parentale, une terrasse bétonnée et un garage intégré. De plus, cette maison neuve est basse consommation et conforme à la RE2020, garantissant des économies d’énergie et un confort thermique optimal. Les options les plus demandées par nos clients, telles que l’enduit bi-ton et la domotique, sont également disponibles pour personnaliser votre maison selon vos envies.Babeau-Seguin, constructeur offrant le meilleur rapport qualité/prix du marché, vous invite à découvrir l’Intimity L. Vous êtes convaincus?? Alors n’attendez pas, venez à notre rencontre, nous évoquerons ensemble votre projet de construction?!
Aubazines
TERRAIN ET MAISONMaison neuve à construire – 90 m² Palazinges Grand terrain + vueA Palazinges – Cadre nature exceptionnelDécouvrez ce projet de maison neuve de 90 m², idéale pour une famille :- 3 chambres- Garage accolé avec accès cellier/cuisine- Construction aux dernières normes, bâti haut de gamme- Performances, durabilité et confort optimisésLe tout sur un magnifique terrain de 1650 m², avec une vue dominante sur la campagne et une proximité des commerces et de la zone Est de Malemort.Un lieu parfait pour ceux qui recherchent calme, espace et nature, tout en profitant d’une maison moderne et bien pensée.Opportunité rare dans un cadre privilégié.Contactez Thibault JUILLARD CONDAT (tél : (Numéro supprimé)). Plusieurs autres projets possibles sur ce terrain selon vos envies et besoins. Alpha Constructions Brive-la-Gaillarde est là pour vous accompagner dans tous vos projets immobiliers.
Aubazines
TERRAIN ET MAISONMaison neuve à construire – 110 m² Aubazines Grand terrain + vue incroyableA Aubazines- Cadre nature exceptionnel et vue à 180 degrés dominanteDécouvrez ce projet de maison neuve sur sous-sol ou semi-enterré de 110 m² :- 3 chambres- Espace jour lumineux avec terrasse couverte au Sud sur la vue- Double garage avec atelier et grands espaces de rangement- Construction aux dernières normes, bâti haut de gamme- Performances, durabilité et confort optimisésA 10 minutes des commerces de la zone Est de Malemort, le tout sur un magnifique terrain de 2300 m², avec une vue dominante sur la campagne et un environnement boisé et ultra paisible.Un lieu parfait pour ceux qui recherchent calme, espace et nature, tout en profitant d’une maison moderne et bien pensée.Opportunité rare dans un cadre privilégié.Contactez Thibault JUILLARD CONDAT (tél : (Numéro supprimé)). Plusieurs autres projets possibles sur ce terrain selon vos envies et besoins. Alpha Constructions Brive-la-Gaillarde est là pour vous accompagner dans tous vos projets immobiliers.
Sadroc
TERRAIN ET MAISONIdéal jeune couple, à seulement 5 minutes du bourg de Sadroc et 5 minutes de l’autoroute, vous aimerez ce joli coin de verdure de 1500 m², au coeur d’un village offrant les écoles, commerces de proximité, loisirs… Vous apprécierez le projet contemporain avec son architecture en L. Spacieuse, elle possède trois belles chambres ainsi qu’une salle de bains, un somptueux salon séjour ouvert de près de 45 m² sur une cuisine, très lumineux. Le tout sur 100 m² de surface, adossé à un garage, accessible par le cellier. Contactez Thibault JUILLARD CONDAT (tél : (Numéro supprimé)) pour obtenir de plus amples renseignements sur la maison. Plusieurs autres projets possibles sur ce terrain selon vos envies et besoins. Alpha Constructions Brive-la-Gaillarde est là pour vous accompagner dans tous vos projets immobiliers.
Aubazines
TERRAIN ET MAISONMaison neuve à construire – 140 m² Aubazines Grand terrain + vue incroyableA Aubazines- Cadre nature exceptionnel et vue à 180 degrés dominanteDécouvrez ce projet de maison neuve sur sous-sol ou semi-enterré de 140 m² :- 4 chambres- Espace jour lumineux avec terrasse couverte au Sud sur la vue- Double garage avec atelier et grands espaces de rangement- Construction aux dernières normes, bâti haut de gamme- Toit terrasse pour un toit plat de qualité et durable- Performances, durabilité et confort optimisésA 10 minutes des commerces de la zone Est de Malemort, le tout sur un magnifique terrain de 2300 m², avec une vue dominante sur la campagne et un environnement boisé et ultra paisible.Un lieu parfait pour ceux qui recherchent calme, espace et nature, tout en profitant d’une maison moderne et bien pensée.Opportunité rare dans un cadre privilégié.Contactez Thibault JUILLARD CONDAT (tél : (Numéro supprimé)). Plusieurs autres projets possibles sur ce terrain selon vos envies et besoins. Alpha Constructions Brive-la-Gaillarde est là pour vous accompagner dans tous vos projets immobiliers.
Sadroc
TERRAIN ET MAISONIdéal jeune couple ou famille recomposée, à seulement 5 minutes du bourg de Sadroc et 5 minutes de l’autoroute, vous aimerez ce joli coin de verdure de 1500 m², au coeur d’un village offrant les écoles, commerces de proximité, loisirs… Vous apprécierez le projet contemporain avec sa domotique dernière génération et ses performances thermiques incomparables. Spacieuse, elle possède quatre belles chambres ainsi qu’une salle de bains, un somptueux salon séjour ouvert de près de 50 m² sur une cuisine, très lumineux. Le tout sur 110 m² de surface, adossé à un garage, accessible par le cellier. Contactez Thibault JUILLARD CONDAT (tél : (Numéro supprimé)) pour obtenir de plus amples renseignements sur la maison. Plusieurs autres projets possibles sur ce terrain selon vos envies et besoins. Alpha Constructions Brive-la-Gaillarde est là pour vous accompagner dans tous vos projets immobiliers.
Sadroc
TERRAIN ET MAISONA 15 minutes de Brive Ouest, au coeur de la campagne et à quelques pas d’un village paisible, sur un terrain de plus de 1500 m² borné, réalisez votre future habitation contemporaine Dotée de 4 chambres avec deux salles de bain entièrement équipées avec douche, baignoire et vasque ainsi que des toilettes séparées. Vous bénéficierez également d’une entrée sous porche avec un placard, un cellier ainsi qu’un lumineux salon séjour, ouvrant sur une terrasse couverte pour en profiter toute l’année et prolongez vos repas à l’extérieur, face à la campagne. Ce projet intègre également un garage, pour protéger votre véhicule.Prenez contact avec Thibault JUILLARD CONDAT (tél : (Numéro supprimé)) pour toute information sur le terrain et le projet de construction réalisable. Alpha Constructions Brive-la-Gaillarde vous accompagne de A à Z dans la concrétisation de votre projet immobilier.
Saint-Hilaire-Peyroux
TERRAIN ET MAISONSur ce terrain, nous vous proposons cette maison neuve : l’Intimity I de notre gamme Evasihome.Chez Babeau-Seguin, constructeur offrant le meilleur rapport qualité/prix du marché, nous voulons en faire toujours plus pour nos clients?! C’est pourquoi notre bureau d’étude a imaginé cette gamme de modèles tous dotés d’une suite parentale généreuse. Parce qu’en tant que parents, vous avez besoin d’un peu d’intimité et de tranquillité, même si vous adorez être avec votre petite famille?! Evasihome Intimity I répond à cette attente.Un joli pavillon où tout le monde se sent à l’aiseEvasihome Intimity I est un pavillon de plain-pied avec garage intégré, agrémenté d’une terrasse semi-couverte. La suite parentale comprend un beau dressing et une salle d’eau, pour un confort maximum. Une porte-fenêtre donne directement sur la terrasse, pour plus d’autonomie?! Disponible en trois dimensions, avec deux ou trois chambres, en plus de la suite parentale, toutes dotées de placards, pour la tribu. Une salle de bain avec w.c. séparés, une grande pièce de vie avec cuisine ouverte et un cellier complètent l’ensemble.Une maison aux dimensions adaptéesL’Intimity I vous est proposée dans trois dimensions : 95 m², 110 m² et 125 m² pour s’adapter aux besoins de votre famille. Craquez dès aujourd’hui pour ce merveilleux modèle et venez nous rendre visite en agence, nous vous dirons tout ce que vous voulez savoir sur votre future maison?! De plus, nous vous présenterons, si vous le souhaitez, un catalogue de terrains à bâtir afin de vous simplifier la vie.Quoi de mieux pour ce terrain que le modèle Intimity I de 94 m². L’objectif de cette maison est simple : allier une forme traditionnelle rassurante et un intérieur moderne et adapté aux exigences d’aujourd’hui, le tout avec un maximum d’équipements de série. Cette maison dispose de 3 chambres, une suite parentale avec dressing et salle de bain, et une terrasse couverte.Les caractéristiques principales de cette maison sont : une
L’actualité immobilière à Favars
27/11/2023
02/11/2023
30/10/2023
20/10/2023
16/10/2023
16/10/2023