Images
Description
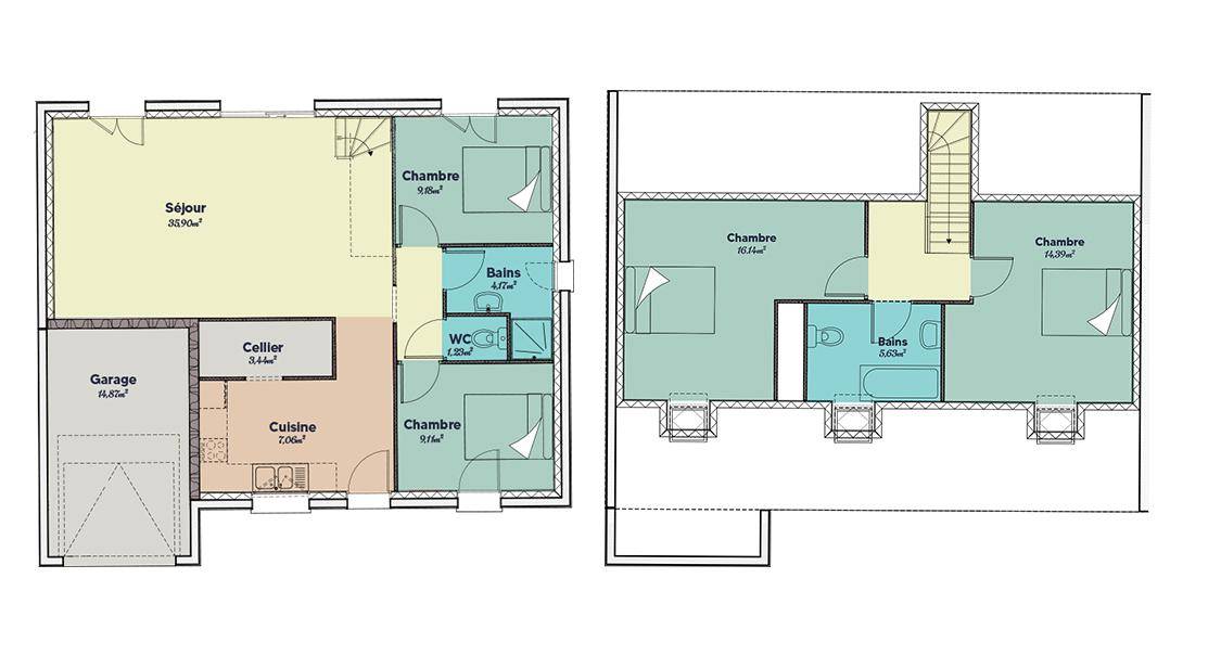
Sur ce terrain, nous vous proposons cette maison neuve : la Focus EVO, un modèle unique de 110 m² conçu par Babeau-Seguin, constructeur offrant le meilleur rapport qualité/prix du marché. Cette maison basse consommation est conforme à la norme RE2020, garantissant des performances énergétiques exceptionnelles.
La Focus EVO se distingue par son concept évolutif, alliant une maison neuve prête à vivre et une maison prête à finir. Livrée avec 73 m² habitables, elle est conçue pour évoluer avec vos besoins futurs. Grâce à ses combles aménageables, vous pouvez facilement augmenter votre surface habitable à 110 m², ajoutant ainsi deux chambres supplémentaires et une salle de bain, pour un total de 4 chambres et 2 salles de bains.
Les caractéristiques principales de cette maison incluent un garage intégré, un cellier, et des combles aménageables. Les options les plus demandées par nos clients, telles que la version Investisseur et les prises USB murales, sont également disponibles.
La Focus EVO est idéale pour tous ceux qui recherchent une maison complète à un prix compétitif. Elle comprend une grande pièce de jour traversante, 4 chambres, une salle de bain, et un garage de 15 m². Que vous soyez un jeune couple, un célibataire ou une famille en pleine expansion, cette maison saura s'adapter à vos besoins et à vos envies.
Ne manquez pas cette occasion unique de devenir propriétaire d'une maison évolutive, économe en énergie et conforme aux dernières normes environnementales. Contactez-nous dès aujourd'hui pour plus d'informations et pour planifier une visite.
Logement susceptibles de vous intéresser
Nous vous proposons de découvrir aussi cette sélection de logements situés à moins de 10km de Seilhac et qui seraient susceptibles de vous intéresser.
Chamboulive
TERRAIN ET MAISONSur ce terrain, nous vous proposons cette maison neuve : la Focus EVO, un modèle unique de 110 m² conçu par Babeau-Seguin, constructeur offrant le meilleur rapport qualité/prix du marché. Cette maison basse consommation est conforme à la norme RE2020, garantissant des performances énergétiques exceptionnelles.La Focus EVO se distingue par son concept évolutif, alliant une maison neuve prête à vivre et une maison prête à finir. Livrée avec 73 m² habitables, elle est conçue pour évoluer avec vos besoins futurs. Grâce à ses combles aménageables, vous pouvez facilement augmenter votre surface habitable à 110 m², ajoutant ainsi deux chambres supplémentaires et une salle de bain, pour un total de 4 chambres et 2 salles de bains.Les caractéristiques principales de cette maison incluent un garage intégré, un cellier, et des combles aménageables. Les options les plus demandées par nos clients, telles que la version Investisseur et les prises USB murales, sont également disponibles.La Focus EVO est idéale pour tous ceux qui recherchent une maison complète à un prix compétitif. Elle comprend une grande pièce de jour traversante, 4 chambres, une salle de bain, et un garage de 15 m². Que vous soyez un jeune couple, un célibataire ou une famille en pleine expansion, cette maison saura s’adapter à vos besoins et à vos envies.Ne manquez pas cette occasion unique de devenir propriétaire d’une maison évolutive, économe en énergie et conforme aux dernières normes environnementales. Contactez-nous dès aujourd’hui pour plus d’informations et pour planifier une visite.
Chamboulive
TERRAINÀ la recherche d’un terrain idéal pour votre projet de construction de maison ? Ce terrain de 1400 m² situé à Chamboulive, dans le département de la Corrèze, est une opportunité en or. Présentant un caractère plat et sans vis-à-vis, il offre un cadre de vie paisible tout en étant à proximité des commodités. Son prix attractif en fait un choix judicieux pour toute première acquisition immobilière ou projet d’investissement. Chamboulive, nichée en Nouvelle-Aquitaine, est une ville au charme indéniable, offrant une qualité de vie optimale. Profitez d’une atmosphère tranquille, de commerces à proximité et d’un accès facile aux diverses attractions locales. L’environnement verdoyant et la diversité des activités proposées en font une destination prisée pour les amoureux de la nature et les familles. Laissez-vous séduire par le potentiel de ce terrain et imaginez y bâtir votre havre de paix. Découvrez cette occasion unique d’investir dans un terrain avec de réelles possibilités pour construire la maison de vos rêves. N’attendez pas pour concrétiser votre projet ! À noter qu’en tant que constructeur, nous ne sommes pas mandatés pour réaliser la vente de ce terrain.
Seilhac
TERRAIN ET MAISONMaison moderne à Seilhac – 138 m² sur 1 600 m² + 1 hectare agricoleDécouvrez ce projet haut de gamme au coeur de Seilhac : une maison moderne, pensée pour allier design moderne, confort et fonctionnalité.80 m² pour votre famille :3 chambresGarage intégré avec accès direct au cellier puis à la cuisineEspaces de vie ouverts et lumineux(Hors cuisine d’été : présentée sur les photos en option)Construction aux normes les plus récentes, avec bâti haut de gamme offrant durabilité, performance énergétique et qualité premium.Implantée sur un beau terrain constructible de 1 600 m², avec 1 hectare agricole attenant, cette maison offre espace, nature et intimité dans un cadre paisible et prestigieux.Un projet agréable et moderne pour les jeunes familles ou couples, à la recherche de modernité et de bien-être.Contactez-nous dès maintenant pour vivre l’expérience de l’accession à la propriété à Seilhac !Contactez Thibault JUILLARD CONDAT (tél : (Numéro supprimé)). Plusieurs autres projets possibles sur ce terrain selon vos envies et besoins. Alpha Constructions Brive-la-Gaillarde est là pour vous accompagner dans tous vos projets immobiliers.
Seilhac
TERRAIN ET MAISONMaison de rêve à Seilhac – 146 m² sur 1 600 m² + 1 hectare agricoleImaginez votre maison neuve de 146 m², pensée pour le confort de votre famille :- 3 chambres, dont une suite parentale pour votre intimité- Garage intégré pratique et fonctionnel, pour deux véhicules- Bâti haut de gamme, aux dernières normes pour durabilité et confortEt tout ça sur un terrain constructible de 1 600 m², avec 1 hectare agricole pour profiter pleinement de la nature et de la tranquillité.Un cadre unique, loin du tumulte, pour vivre pleinement vos rêves !Ne laissez pas passer cette opportunité : contactez-nous dès maintenant pour en savoir plus !Contactez Thibault JUILLARD CONDAT (tél : (Numéro supprimé)). Plusieurs autres projets possibles sur ce terrain selon vos envies et besoins. Alpha Constructions Brive-la-Gaillarde est là pour vous accompagner dans tous vos projets immobiliers.
Seilhac
TERRAIN ET MAISONMaison contemporaine à Seilhac – 138 m² sur 1 600 m² + 1 hectare agricoleDécouvrez ce projet haut de gamme au coeur de Seilhac : une maison contemporaine à étage partiel, pensée pour allier design moderne, confort et fonctionnalité.138 m² pour votre famille :3 chambres, dont une suite parentale luxueuseGarage intégré avec accès direct à la cuisineEspaces de vie ouverts et lumineuxConstruction aux normes les plus récentes, avec bâti haut de gamme offrant durabilité, performance énergétique et qualité premium.Implantée sur un beau terrain constructible de 1 600 m², avec 1 hectare agricole attenant, cette maison offre espace, nature et intimité dans un cadre paisible et prestigieux.Un projet d’exception pour les familles exigeantes, à la recherche de modernité et de bien-être absolu.Contactez-nous dès maintenant pour vivre l’expérience haut standing à Seilhac !Contactez Thibault JUILLARD CONDAT (tél : (Numéro supprimé)). Plusieurs autres projets possibles sur ce terrain selon vos envies et besoins. Alpha Constructions Brive-la-Gaillarde est là pour vous accompagner dans tous vos projets immobiliers.
Seilhac
TERRAIN ET MAISONSur ce terrain, nous vous proposons cette maison neuve : la Focus EVO, un modèle unique de 110 m² conçu par Babeau-Seguin, constructeur offrant le meilleur rapport qualité/prix du marché. Cette maison basse consommation est conforme à la norme RE2020, garantissant des performances énergétiques exceptionnelles.La Focus EVO se distingue par son concept évolutif, alliant une maison neuve prête à vivre et une maison prête à finir. Livrée avec 73 m² habitables, elle est conçue pour évoluer avec vos besoins futurs. Grâce à ses combles aménageables, vous pouvez facilement augmenter votre surface habitable à 110 m², ajoutant ainsi deux chambres supplémentaires et une salle de bain, pour un total de 4 chambres et 2 salles de bains.Les caractéristiques principales de cette maison incluent un garage intégré, un cellier, et des combles aménageables. Les options les plus demandées par nos clients, telles que la version Investisseur et les prises USB murales, sont également disponibles.La Focus EVO est idéale pour tous ceux qui recherchent une maison complète à un prix compétitif. Elle comprend une grande pièce de jour traversante, 4 chambres, une salle de bain, et un garage de 15 m². Que vous soyez un jeune couple, un célibataire ou une famille en pleine expansion, cette maison saura s’adapter à vos besoins et à vos envies.Ne manquez pas cette occasion unique de devenir propriétaire d’une maison évolutive, économe en énergie et conforme aux dernières normes environnementales. Contactez-nous dès aujourd’hui pour plus d’informations et pour planifier une visite.
Chanteix
TERRAINDécouvrez ce terrain exceptionnel de 1700 m², situé à Chanteix, en pleine Corrèze, dans la magnifique région de la Nouvelle-Aquitaine. Avec un cadre champêtre et un environnement calme, ce terrain plat constitue l’emplacement idéal pour réaliser votre projet de construction de maison, où tranquillité et charme rural se rencontrent. Ne manquez pas cette opportunité d’investir dans un lieu où la nature et l’harmonie s’unissent. Chanteix, véritable havre de paix, est une ville qui offre le meilleur de la vie à la campagne tout en étant à proximité de diverses commodités. Profitez de la beauté naturelle environnante, des activités de plein air et des magnifiques paysages qui font la renommée de la Corrèze. À quelques pas, vous trouverez des commerces locaux, des écoles et un accès facile aux axes routiers, vous permettant de rejoindre rapidement les grandes villes environnantes. L’environnement enchanteur et les atouts de la région font de ce terrain un choix de premier ordre pour les acheteurs souhaitant s’installer dans une commune chaleureuse. Ce terrain ravissant présente un potentiel unique pour la construction de votre future maison. Ne laissez pas passer cette opportunité d’achat. Contactez-nous pour plus d’informations ! À noter qu’en tant que constructeur, nous ne sommes pas mandatés pour réaliser la vente de ce terrain.
Saint-Jal
TERRAINDécouvrez ce magnifique terrain de 1200 m², idéalement situé à Saint-Jal, en Corrèze, et offrant une opportunité exceptionnelle pour votre projet de construction de maison. Ce terrain non viabilisé présente un potentiel considérable, avec un ensoleillement optimal et un emplacement de choix en centre-ville. Imaginez-y bâtir votre havre de paix, parfaitement intégré dans un cadre naturel où la qualité de vie est au rendez-vous. Ne laissez pas passer cette chance unique d’acquérir un terrain au potentiel indéniable. Contactez-nous dès maintenant pour explorer cette belle opportunité ! À noter qu’en tant que constructeur, nous ne sommes pas mandatés pour réaliser la vente de ce terrain.
Saint-Jal
TERRAIN ET MAISONSur ce terrain, nous vous proposons cette maison neuve, la Sauvetière, conçue par Babeau-Seguin, constructeur reconnu pour offrir le meilleur rapport qualité/prix du marché. La Sauvetière est sans aucun doute à classer dans la catégorie maison moderne de notre catalogue. Cette maison plain-pied traditionnelle de 80 m² vous séduira par son audacieux plan en forme de L et ses touches résolument modernes. Elle dispose de 3 pièces, dont 2 chambres confortables, et d’un vaste séjour lumineux.L’architecture en L de la Sauvetière abrite un garage accolé, offrant un accès direct à la maison. Vous avez le choix entre une toiture à 2 pans ou à 4 pans, selon vos préférences esthétiques.Cette maison neuve est basse consommation et conforme à la RE2020, garantissant des performances énergétiques optimales et un confort de vie inégalé. Ne manquez pas cette opportunité unique de devenir propriétaire d’une maison moderne, économe en énergie et parfaitement adaptée à vos besoins. Contactez-nous dès maintenant pour plus d’informations et pour planifier une visite du terrain.
L’actualité immobilière à Seilhac
27/11/2023
02/11/2023
30/10/2023
20/10/2023
16/10/2023
16/10/2023