Images
Description
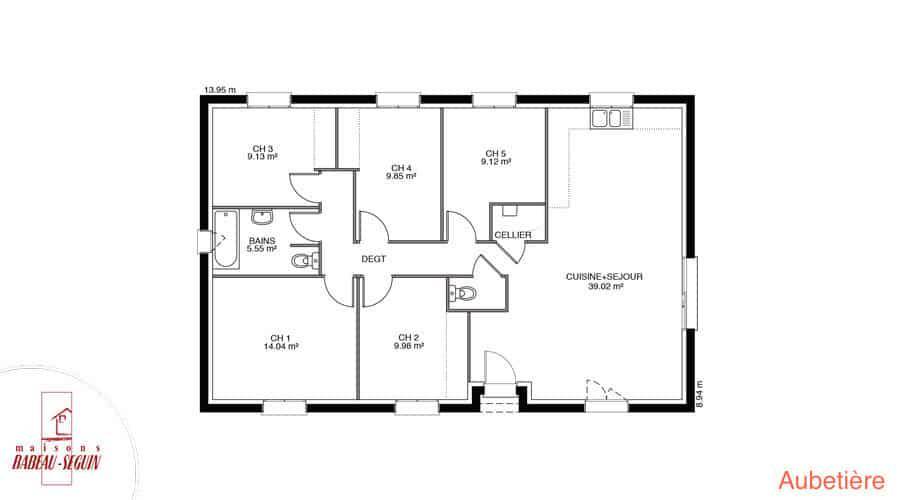
Sur ce terrain, nous vous proposons cette maison neuve Aubetière Sud, un modèle traditionnel plain-pied qui fait partie du top 3 des modèles préférés de nos clients. Avec une surface de 59 m², cette maison dispose d'une chambre et de deux pièces, offrant un espace de vie confortable et fonctionnel.
L'Aubetière Sud se distingue par son toit à faible pente et ses tuiles canal, disponibles en version 2 pans ou 4 pans. Vous avez également la possibilité de personnaliser votre maison avec un garage intégré ou un sous-sol, ainsi qu'un porche accueillant.
Cette maison neuve est basse consommation et conforme à la réglementation environnementale RE2020, garantissant des performances énergétiques optimales et un confort de vie sous le soleil.
Les options les plus demandées par nos clients, telles qu'une deuxième salle de bains, des menuiseries en aluminium, et un garage ou un sous-sol, sont disponibles pour personnaliser votre Aubetière Sud selon vos besoins et vos envies.
Faites confiance à Babeau-Seguin, constructeur offrant le meilleur rapport qualité/prix du marché, pour réaliser votre projet de vie. Découvrez l'Aubetière Sud, une maison traditionnelle appréciée pour son excellent rapport qualité/prix et son adaptabilité pour une maison sur-mesure.
Logement susceptibles de vous intéresser
Nous vous proposons de découvrir aussi cette sélection de logements situés à moins de 10km de Saint-Pantaléon-de-Larche et qui seraient susceptibles de vous intéresser.
Ussac
TERRAIN ET MAISONMaison contemporaine à Seilhac – 138 m² sur 3 450 m²Découvrez ce projet haut de gamme au coeur de Seilhac : une maison contemporaine à étage partiel, pensée pour allier design moderne, confort et fonctionnalité.138 m² pour votre famille :3 chambres, dont une suite parentale luxueuse à l’étage pour profiter de la vue à 180 degrés sur BriveGarage intégré pour une parfaite commoditéEspaces de vie ouverts et lumineuxConstruction aux normes les plus récentes, avec bâti haut de gamme offrant durabilité, performance énergétique et qualité premium.Implantée sur un beau terrain constructible de 3450 m², cette maison offre espace, nature et intimité dans un cadre paisible et prestigieux, à 5 minutes du centre de Brive.Un projet d’exception pour les familles exigeantes, à la recherche de modernité et de bien-être absolu.Contactez-nous dès maintenant pour vivre l’expérience haut standing à Ussac !Contactez Thibault JUILLARD CONDAT (tél : (Numéro supprimé)). Plusieurs autres projets possibles sur ce terrain selon vos envies et besoins. Alpha Constructions Brive-la-Gaillarde est là pour vous accompagner dans tous vos projets immobiliers.
Chasteaux
TERRAINDécouvrez ce terrain de 3000 m² situé à Chasteaux, un véritable bijou niché au cœur de la Corrèze en Nouvelle-Aquitaine. Ce bien rare, idéal pour un projet de construction de maison, bénéficie d’une atmosphère unique grâce à son cadre champêtre, arboré et sans vis-à-vis. Vous serez séduit par le calme qui règne dans ce quartier recherché, propice à l’épanouissement familial. Chasteaux, un charmant village de la Corrèze, est idéalement situé à proximité de plusieurs attractions locales. Profitez de la nature environnante avec des balades en pleine nature, tout en bénéficiant des commodités essentielles à quelques minutes. Les marchés locaux, boutiques artisanales et services de proximité enrichissent votre quotidien. L’environnement paisible et ses atouts font de cette ville un lieu de vie privilégié, parfait pour accueillir votre futur chez-vous. Ne laissez pas passer cette opportunité d’acquérir un terrain prometteur, dans un cadre idyllique pour la construction de vos rêves. À noter qu’en tant que constructeur, nous ne sommes pas mandatés pour réaliser la vente de ce terrain.
Chasteaux
TERRAIN ET MAISONSur ce terrain, nous vous proposons cette maison neuve, le modèle Ménilière, une maison plain-pied moderne qui intègre de base un garage et une longue galerie sur la face avant. Avec une surface de 100 m², cette maison dispose de 4 chambres et de 4 pièces, offrant ainsi un espace de vie confortable et fonctionnel pour toute la famille.Véritable « »tout-en-un » » de la maison individuelle, ce modèle est idéal pour votre projet de construction sur-mesure. La Ménilière est disponible avec un toit à 2 pans ou 4 pans, selon vos préférences esthétiques. Le garage intégré et la galerie avant ajoutent une touche pratique et élégante à cette maison.Les options les plus demandées par nos clients, telles que les menuiseries en aluminium et le sous-sol, sont également disponibles pour personnaliser davantage votre future maison. De plus, cette maison neuve est basse consommation et conforme à la réglementation environnementale RE2020, garantissant ainsi des performances énergétiques optimales et un impact environnemental réduit.Le constructeur Babeau-Seguin, reconnu pour offrir le meilleur rapport qualité/prix du marché, vous accompagne dans la réalisation de votre projet immobilier. Avec un prix serré et une personnalisation facile, il n’est pas étonnant que la Ménilière soit dans le top 5 des ventes de Babeau-Seguin.Ne manquez pas cette opportunité unique de devenir propriétaire d’une maison moderne, économe en énergie et parfaitement adaptée à vos besoins. Contactez-nous dès maintenant pour plus d’informations et pour planifier une visite de ce modèle exceptionnel.
Brive-la-Gaillarde
TERRAINÀ vendre, superbe terrain de 299 m² situé au cœur de Brive-la-Gaillarde, dans la belle région de la Corrèze. Ce terrain non viabilisé offre un cadre idéal pour la réalisation d’un projet de construction de maison, permettant ainsi à vos envies d’architecture de s’exprimer pleinement. Avec son emplacement privilégié dans un quartier recherché, vous bénéficierez d’un cadre de vie agréable et dynamique. Idéalement situé en Nouvelle-Aquitaine, Brive-la-Gaillarde est une ville emblématique dotée de nombreuses attractions locales. Vous pourrez profiter de la proximité immédiate des commerces et commodités, sans oublier un centre-ville vibrant offrant des événements culturels tout au long de l’année. La ville est également réputée pour son riche patrimoine et ses paysages pittoresques, ce qui en fait un lieu de vie où il fait bon s’installer. Ce terrain représente une opportunité rare dans un secteur en plein développement. N’hésitez pas à envisager ce projet d’achat unique pour construire la maison de vos rêves ! À noter qu’en tant que constructeur, nous ne sommes pas mandatés pour réaliser la vente de ce terrain.
Brive-la-Gaillarde
TERRAIN ET MAISONSur ce terrain, nous vous proposons cette maison neuve : la Focus Tiny, un modèle idéal pour les familles à la recherche d’un logement confortable et économique. Conçue par Babeau-Seguin, constructeur reconnu pour offrir le meilleur rapport qualité/prix du marché, cette maison de 73 m² saura répondre à toutes vos attentes.La Focus Tiny est une habitation traditionnelle de plain-pied avec un garage intégré de 15 m². Elle se distingue par son design sobre et moderne, ainsi que par ses excellentes performances en matière d’économie d’énergie, conforme à la norme RE2020. Cette maison basse consommation est parfaite pour ceux qui souhaitent réduire leur empreinte écologique tout en bénéficiant d’un confort optimal.À l’intérieur, vous découvrirez un grand séjour-cuisine traversant qui offre une agréable sensation d’espace. Les trois chambres à coucher de dimensions raisonnables accueilleront confortablement votre famille. Les espaces sont si bien répartis que vous ne vous sentirez jamais à l’étroit.Les caractéristiques principales de la Focus Tiny incluent un enduit bi-ton qui ajoute une touche d’élégance à l’extérieur de la maison. Parmi les options les plus demandées par nos clients, vous trouverez les menuiseries en aluminium et la pompe à chaleur, qui peuvent être ajoutées pour encore plus de confort et d’efficacité énergétique.Pour un prix défiant toute concurrence, vous bénéficiez des meilleures technologies et d’un service irréprochable. Notre équipe d’experts réalisera votre maison avec un haut niveau d’exigence, vous assurant des finitions soignées et une qualité de construction exceptionnelle.Ne manquez pas cette opportunité de construire la maison de vos rêves avec Babeau-Seguin. La Focus Tiny est prête à être construite sur ce terrain, et ce, au meilleur prix. Visitez-la en 3D sur notre site et laissez-vous séduire par ses nombreux atouts. Avec la Focus Tiny, petit prix rime avec grande prestation !
Noailles
TERRAINTerrain de 1980 m² constructible, comprenant également une partie boisée de plus de 8500 m², avec une vue sur la campagne, offrant un emplacement de choix et une qualité de vie remarquable. Ce bien accueillera votre maison de plain-pied ou semi-enterrée, en conservant un style de vie proche des grands commerces de la zone Ouest de Brive et à 15 minutes du centre-ville. Contactez votre conseiller Thibault JUILLARD CONDAT (tél : (Numéro supprimé)). Alpha Constructions Brive-la-Gaillarde vous accompagne de A à Z dans la concrétisation de votre projet immobilier.
Brive-la-Gaillarde
TERRAINÀ vendre, un terrain d’exception de 500 m², idéalement situé à Brive-la-Gaillarde, dans le département de la Corrèze, en Nouvelle-Aquitaine. Ce terrain plat, non-viabilisé, offre un potentiel immense pour la construction de votre future maison. Profitez d’un emplacement privilégié au cœur de la ville, où vous pourrez concevoir un espace de vie accueillant et sur mesure, fusionnant à merveille modernité et confort. Brive-la-Gaillarde est une ville dynamique et attractive, riche en culture et dotée de toutes les commodités nécessaires au quotidien. Avec ses commerces variés, ses écoles et ses établissements de l’enseignement secondaire à proximité, vous bénéficierez d’un cadre de vie agréable et pratique pour toute la famille. De plus, les nombreuses attractions locales, notamment ses espaces verts et ses infrastructures sportives, font de cette ville un lieu de vie idéal où il fait bon se ressourcer. Ce terrain représente une opportunité unique d’investir dans un projet de construction répondant à vos aspirations. N’hésitez pas à nous contacter pour découvrir tout le potentiel de ce bien rare sur le marché. À noter qu’en tant que constructeur, nous ne sommes pas mandatés pour réaliser la vente de ce terrain.
Brive-la-Gaillarde
TERRAIN ET MAISONSur ce terrain, nous vous proposons cette maison neuve : la Focus Cosy. Conçue par Babeau-Seguin, constructeur offrant le meilleur rapport qualité/prix du marché, cette maison de 79 m² est idéale pour les familles à la recherche d’un logement confortable et économique.La Focus Cosy se distingue par son design contemporain et ses finitions soignées. Avec ses 4 pièces, dont 3 chambres, cette maison de plain-pied offre un espace de vie bien pensé et harmonieux. Le vaste séjour-cuisine est un lieu convivial où il fait bon vivre, tandis que l’espace nuit garantit tranquillité et intimité.L’un des atouts majeurs de cette maison est son garage intégré, qui ajoute une touche de praticité supplémentaire. L’enduit bi-ton de la façade apporte une touche esthétique moderne et élégante.Cette maison neuve est également basse consommation et conforme à la RE2020, ce qui en fait un choix écologique et économique. Les options les plus demandées par nos clients, telles que les menuiseries en aluminium, peuvent être intégrées pour encore plus de confort et de modernité.En choisissant la Focus Cosy, vous optez pour une maison accessible à tous les budgets, sans compromis sur les équipements. Avec ses performances énergétiques et écologiques de pointe, cette maison bénéficie des dernières innovations technologiques et de toute l’expertise des Maisons Babeau-Seguin.Ne manquez pas cette opportunité de réaliser votre rêve de maison à un prix incroyablement attractif. La Focus Cosy est une maison pratique et élégante où votre famille se sentira immédiatement chez elle.
Noailles
TERRAIN ET MAISONA seulement 2 minutes du bourg de Noailles et 15 minutes du centre-ville de Brive, vous aimerez ce joli coin de verdure boisé de près de 2000 m² et des grands bois environnants. A deux pas des accès rapides, vous apprécierez le projet contemporain avec ses produits de dernière génération et ses performances thermiques incomparables.Spacieuse, elle possède trois belles chambres dont une suite parentale et une seconde salle de bain, un somptueux salon séjour ouvert de plus de 45 m² sur une cuisine, très lumineux. Profitez de 100 m2 habitables, adossés à un garage, accessible par le cellier. Contactez Thibault JUILLARD CONDAT (tél : (Numéro supprimé)) pour obtenir de plus amples renseignements sur la maison. Plusieurs autres projets possibles sur ce terrain selon vos envies et besoins. Alpha Constructions Brive-la-Gaillarde est là pour vous accompagner dans tous vos projets immobiliers.
L’actualité immobilière à Saint-Pantaléon-de-Larche
27/11/2023
02/11/2023
30/10/2023
20/10/2023
16/10/2023
16/10/2023