Images
Description
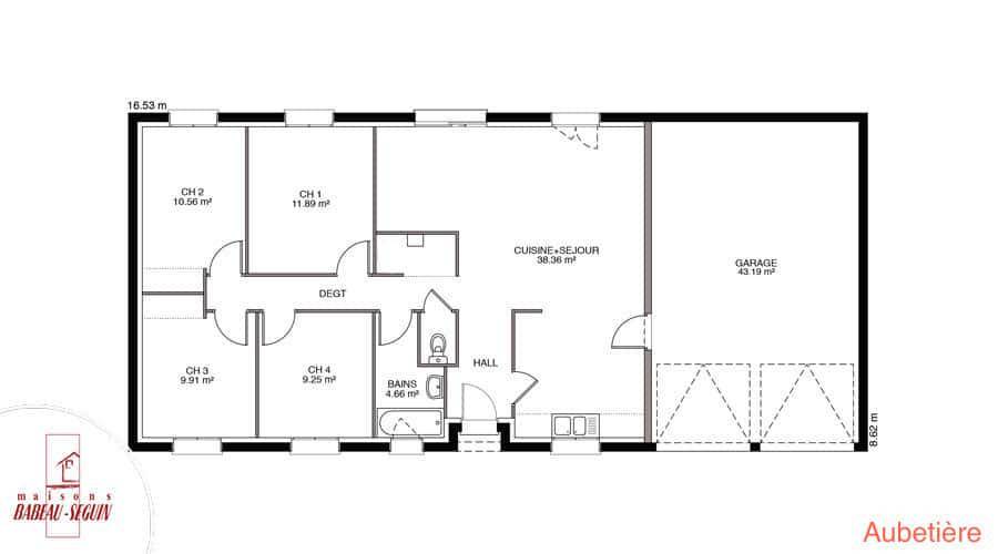
Sur ce terrain, nous vous proposons cette maison neuve Aubetière, un modèle traditionnel de la gamme Babeau-Seguin, constructeur reconnu pour offrir le meilleur rapport qualité/prix du marché. Avec une surface de 88 m², cette maison de plain-pied se compose de 4 pièces, dont 3 chambres spacieuses, idéales pour accueillir toute votre famille.
L'Aubetière se distingue par son excellent rapport qualité/prix et sa conformité aux normes RE2020, garantissant une basse consommation énergétique. Vous avez la possibilité de personnaliser votre maison en choisissant entre un toit à 2 pans ou à 4 pans, ainsi qu'en ajoutant un garage ou un sous-sol selon vos besoins.
Cette maison moderne et fonctionnelle est conçue pour s'adapter à vos envies et à votre mode de vie. Profitez de la flexibilité offerte par les nombreux plans et déclinaisons disponibles pour créer votre maison individuelle sur mesure.
Ne manquez pas cette opportunité de donner vie à votre projet de construction avec le modèle Aubetière, une maison neuve qui allie confort, économie d'énergie et personnalisation. Contactez-nous dès maintenant pour plus d'informations et pour découvrir toutes les options disponibles pour votre future maison.
Logement susceptibles de vous intéresser
Nous vous proposons de découvrir aussi cette sélection de logements situés à moins de 10km de Saint-Viance et qui seraient susceptibles de vous intéresser.
Saint-Viance
TERRAIN ET MAISONSur ce terrain, nous vous proposons cette maison neuve Aubetière, un modèle traditionnel de la gamme Babeau-Seguin, constructeur reconnu pour offrir le meilleur rapport qualité/prix du marché. Avec une surface de 88 m², cette maison de plain-pied se compose de 4 pièces, dont 3 chambres spacieuses, idéales pour accueillir toute votre famille.L’Aubetière se distingue par son excellent rapport qualité/prix et sa conformité aux normes RE2020, garantissant une basse consommation énergétique. Vous avez la possibilité de personnaliser votre maison en choisissant entre un toit à 2 pans ou à 4 pans, ainsi qu’en ajoutant un garage ou un sous-sol selon vos besoins.Cette maison moderne et fonctionnelle est conçue pour s’adapter à vos envies et à votre mode de vie. Profitez de la flexibilité offerte par les nombreux plans et déclinaisons disponibles pour créer votre maison individuelle sur mesure.Ne manquez pas cette opportunité de donner vie à votre projet de construction avec le modèle Aubetière, une maison neuve qui allie confort, économie d’énergie et personnalisation. Contactez-nous dès maintenant pour plus d’informations et pour découvrir toutes les options disponibles pour votre future maison.
Saint-Viance
TERRAINDécouvrez ce terrain exceptionnel de 1800 m², idéalement situé à Saint-Viance, offrant une opportunité rare pour concrétiser votre projet de construction de maison. Ce terrain plat bénéficie d’une vue dégagée sans vis-à-vis, garantissant une qualité de vie incomparable. Niché dans un quartier privilégié, cette parcelle saura séduire les investisseurs et les futurs propriétaires en quête d’un cadre de vie paisible et verdoyant. Saint-Viance, située dans le département de la Corrèze en Nouvelle-Aquitaine, se distingue par ses charmantes attractions locales et ses commodités. La ville est entourée de paysages pittoresques et regorge d’activités pour tous les âges, notamment des espaces naturels préservés. Avec des services à proximité, tels que des commerces, des écoles et des infrastructures sportives, cette ville offre un environnement dynamique et convivial pour les familles et les passionnés de nature. Profitez de tout ce que Saint-Viance a à offrir dans un cadre serein et agréable. Ne manquez pas l’opportunité d’acquérir ce terrain plein de potentiel et envisagez dès maintenant votre future maison dans ce cadre idyllique. Contactez-nous pour plus d’informations. À noter qu’en tant que constructeur, nous ne sommes pas mandatés pour réaliser la vente de ce terrain.
Saint-Pantaléon-de-Larche
TERRAIN ET MAISONSur ce terrain, nous vous proposons cette maison neuve, modèle Prunière, l’un des modèles les plus vendus par Babeau-Seguin, constructeur offrant le meilleur rapport qualité/prix du marché. Figurant dans le top 5 des maisons individuelles Babeau-Seguin, cette maison plain-pied Prunière séduit par son renfoncement qui casse la monotonie de la façade avant et offre un abri de seuil.Avec une surface de 85 m², cette maison traditionnelle comprend 4 pièces, dont 3 chambres, et un garage intégré. Elle se décline en versions à 2 pans ou 4 pans, selon vos préférences. Parfaitement équipée, la Prunière est en effet la maison à petit prix par excellence.En plus de son design attrayant, cette maison neuve est basse consommation et conforme à la RE2020, garantissant ainsi des performances énergétiques optimales et un confort de vie inégalé. Ne manquez pas cette opportunité de construire la maison de vos rêves avec Babeau-Seguin, le constructeur qui allie qualité, prix et satisfaction client.
Saint-Pantaléon-de-Larche
TERRAINÀ vendre : magnifique terrain de 1600 m² situé dans la charmante commune de Saint-Pantaléon-de-Larche, en pleine Corrèze, au cœur de la Nouvelle-Aquitaine. Ce terrain, non viabilisé, se distingue par son cadre champêtre, au calme et sans vis-à-vis, offrant ainsi un environnement propice à la construction d’une maison familiale rêveuse. Laissez libre cours à votre imagination et concrétisez votre projet de vie dans cet emplacement privilégié. Saint-Pantaléon-de-Larche, nichée dans un écrin de verdure, bénéficie d’un accès facile aux commodités locales, tout en conservant l’authenticité et le calme d’un village rural. Vous pourrez profiter des attraits de la nature environnante tout en étant à proximité de la ville de Brive-la-Gaillarde, qui propose écoles, commerces et infrastructures. Cette localité saura séduire les amoureux de la tranquillité et des paysages pittoresques, rendant votre future construction encore plus attrayante. Ne manquez pas cette opportunité unique d’acquérir un terrain d’exception pour concrétiser vos rêves de construction. Contactez-nous dès maintenant pour plus d’informations. À noter qu’en tant que constructeur, nous ne sommes pas mandatés pour réaliser la vente de ce terrain.
Sainte-Féréole
TERRAIN ET MAISONSur ce terrain, nous vous proposons cette maison neuve, la Prunière, l’un des modèles les plus vendus par Babeau-Seguin, constructeur offrant le meilleur rapport qualité/prix du marché. Figurant dans le top 5 des maisons individuelles Babeau-Seguin, cette maison plain-pied Prunière séduit par son renfoncement qui casse la monotonie de la façade avant et offre un abri de seuil.Avec une surface de 73 m², cette maison traditionnelle comprend 3 pièces, dont 2 chambres, et un garage intégré. Vous avez le choix entre une toiture à 2 pans ou à 4 pans, selon vos préférences esthétiques.La Prunière est également une maison basse consommation, conforme à la réglementation environnementale RE2020, ce qui vous garantit des économies d’énergie et un confort optimal tout au long de l’année.Si on devait retenir la Prunière, ce serait toutefois son prix ! La Prunière est en effet la maison à petit prix par excellence, tout en offrant des prestations de qualité.Ne manquez pas cette opportunité de construire une maison qui allie confort, économie et esthétisme. Contactez-nous pour plus d’informations et pour découvrir toutes les options disponibles pour personnaliser votre future maison.
Sainte-Féréole
TERRAINDécouvrez une opportunité rare avec ce terrain à vendre d’une superficie généreuse de 1300 m², situé dans la charmante commune de Sainte-Féréole, en Corrèze. Ce terrain non viabilisé offre un cadre idéal pour la conception de votre future maison, que ce soit une maison familiale ou un projet de retraite. La ville se distingue par sa qualité de vie exceptionnelle et son ambiance paisible, renforcée par un environnement naturel préservé qui invite à la détente et à la convivialité. Sainte-Féréole, nichée au cœur de la magnifique région Nouvelle-Aquitaine, allie tranquillité et accessibilité. La commune bénéficie de commodités pratiques, telles que des commerces locaux, des écoles et des services de santé, tout en offrant un accès facile à des attractions touristiques renommées. En explorant les environs, vous découvrirez des paysages pittoresques, des randonnées en pleine nature et une immersion dans la culture locale. Ce terrain représente ainsi un point de départ idéal pour profiter pleinement des richesses de cette région attractive. Ne laissez pas passer cette chance unique d’acquérir un terrain qui promet de transformer vos projets en réalité. Contactez-nous dès aujourd’hui pour envisager ce potentiel exceptionnel. À noter qu’en tant que constructeur, nous ne sommes pas mandatés pour réaliser la vente de ce terrain.
Saint-Viance
TERRAIN ET MAISONSur ce terrain, nous vous proposons cette maison neuve : la Focus Family city. Conçue par Babeau-Seguin, constructeur reconnu pour offrir le meilleur rapport qualité/prix du marché, cette maison de 91 m² est idéale pour les familles à la recherche d’un logement confortable et économique.### Une surface généreuse pour une maison à petit prixLa Focus Family city est une maison lumineuse et écologique, offrant une belle surface habitable de 91 m². C’est l’option idéale pour les familles cherchant une maison de qualité avec une surface confortable pour un budget limité. Respectueuse de la règlementation RE2020 pour l’environnement, elle offre par conséquent un excellent rapport qualité-prix.### Un agencement parfaitement optimiséCette maison de plain-pied est parfaitement agencée avec ses quatre chambres de plus de 10 m² chacune, offrant ainsi un espace de vie confortable pour chaque membre de la famille. Une grande pièce de vie lumineuse traversante avec cuisine ouverte, un cellier en prolongement ainsi qu’une salle de bain avec baignoire et des WC séparés viennent compléter son aménagement. ### Caractéristiques principales- **Surface habitable** : 91 m²- **Nombre de chambres** : 4- **Nombre de pièces** : 4- **Cellier** : Oui- **Basse Consommation** : Oui, conforme à la RE2020### Options les plus demandéesPour répondre aux attentes des clients, cette maison peut être équipée de domotique pour un confort optimal et d’un enduit bi-ton pour une touche d’originalité sur la façade avant ou arrière.### Économie à la construction, économie à la consommationCette maison neuve écologique répond aux standards stricts de la RE2020, garantissant ainsi des économies à la construction et à la consommation. Ne manquez pas cette opportunité unique d’acquérir une maison neuve, basse consommation, et parfaitement adaptée aux besoins de votre famille. Contactez-nous dès maintenant pour plus d’informations et pour planifier une visite du terrain.
Saint-Viance
TERRAINDécouvrez ce terrain exceptionnel de 1100 m², idéalement situé à Saint-Viance, dans le département de la Corrèze, Nouvelle-Aquitaine. Avec une vue dégagée et sans vis-à-vis, ce terrain plat vous offre un emplacement privilégié pour réaliser votre projet de construction de maison. Son aspect non viabilisé vous permet de personnaliser entièrement votre projet selon vos besoins et envies. Saint-Viance est une charmante commune qui combine le calme de la nature et les avantages d’une vie urbaine. Proche des commodités essentielles, vous trouverez à proximité des écoles, des commerces ainsi que des infrastructures sportives. De plus, la région est riche en attractions naturelles, offrant de nombreuses opportunités pour les amateurs de randonnée et de plein air. Avec son cadre de vie agréable et ses paysages vallonnés, Saint-Viance est une perle rare où il fait bon vivre. Ne manquez pas cette opportunité unique d’acquérir un terrain au potentiel incroyable dans un cadre enchanteur. Contactez-nous pour plus d’informations et commencez à imaginer votre future maison. À noter qu’en tant que constructeur, nous ne sommes pas mandatés pour réaliser la vente de ce terrain.
Saint-Pantaléon-de-Larche
TERRAIN19600 Saint Pantaléon de Larche terrain 1973 m² prix 28 990 euros HAI charge vendeurBeau terrain sur les hauteurs avec belle vue , au calme et CU proche Brive OuestPour visiter et vous accompagner dans votre projet, contactez Sandrine LANNE, au (Numéro supprimé) ou, par courriel à (Email supprimé).Selon l’article L.561.5 du Code Monétaire et Financier, pour l’organisation de la visite, la présentation d’une pièce d’identité vous sera demandée.Cette présente annonce a été rédigée sous la responsabilité éditoriale de Sandrine LANNE agissant sous le statut d’agent commercial immatriculé au RSAC BRIVE 833334972 auprès de SAS PROPRIETES PRIVEES, au capital de 44 920 euros, ZAC LE CHÊNE FERRÉ – 44 ALLÉE DES CINQ CONTINENTS 44120 VERTOU; SIRET 487 624 777 00040, RCS Nantes. Carte Professionnelle Transactions sur immeubles et fonds de commerce (T) et Gestion immobilière (G) n°CPI 4401 2016 000 010 388 délivrée par la CCI Nantes – Saint Nazaire. Compte séquestre n(Numéro supprimé)67 BPA SAINT-SEBASTIEN-SUR-LOIRE (44230). Garantie GALIAN-SMABTP – 89 rue de la Boétie, 75008 Paris – n°28137 J pour 2 000 000 euros pour T et 120 000 euros pour G. Assurance responsabilité civile professionnelle par GALIAN-SMABTP n° de police 28137.JMandat réf : 425734 – Le professionnel garantit et sécurise votre projet immobilier. Sandrine LANNE (EI) Agent Commercial – Numéro RSAC : BRIVE 833334972 – .Les informations sur les risques auxquels ce bien est exposé sont disponibles sur le site Géorisques : www. georisques. gouv. fr
L’actualité immobilière à Saint-Viance
27/11/2023
02/11/2023
30/10/2023
20/10/2023
16/10/2023
16/10/2023