Images
Description
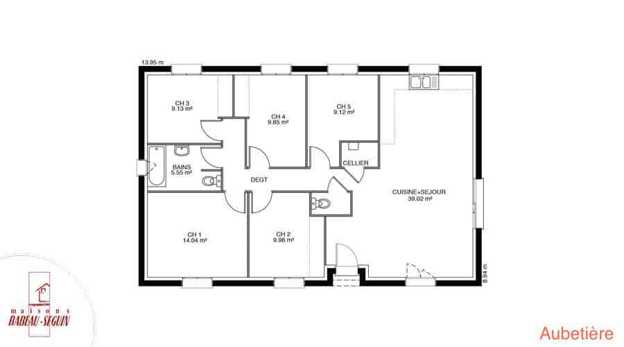
Sur ce terrain, nous vous proposons cette maison neuve Aubetière, un modèle traditionnel de la gamme Babeau-Seguin, constructeur reconnu pour offrir le meilleur rapport qualité/prix du marché. Avec une surface de 88 m², cette maison de plain-pied se compose de 4 pièces, dont 3 chambres spacieuses, idéales pour accueillir toute votre famille.
L'Aubetière se distingue par son excellent rapport qualité/prix et sa conformité aux normes RE2020, garantissant une basse consommation énergétique. Vous avez la possibilité de personnaliser votre maison en choisissant entre un toit à 2 pans ou à 4 pans, ainsi qu'en ajoutant un garage ou un sous-sol selon vos besoins.
Cette maison moderne et fonctionnelle est conçue pour s'adapter à vos envies et à votre mode de vie. Profitez de la flexibilité offerte par les nombreux plans et déclinaisons disponibles pour créer votre maison individuelle sur mesure.
Ne manquez pas cette opportunité de donner vie à votre projet de construction avec le modèle Aubetière, une maison neuve qui allie confort, économie d'énergie et personnalisation. Contactez-nous dès maintenant pour plus d'informations et pour découvrir toutes les options disponibles pour votre future maison.
Logement susceptibles de vous intéresser
Nous vous proposons de découvrir aussi cette sélection de logements situés à moins de 10km de Sainte-Féréole et qui seraient susceptibles de vous intéresser.
Saint-Germain-les-Vergnes
TERRAINIdéal promoteur ou investisseur !A seulement 15 minutes de Tulle et 20 minutes de Brive, au carrefour stratégique des autoroutes A89 et A20, sur une commune très recherchée, terrain à bâtir d’une superficie de 14 790 m² dont environ 9 000 m² en zone constructible et environ 5710 m² en zone naturelle (Bois).Ce terrain fait l’objet d’une OAP (Orientations d’Aménagement et de Programmation).Ce programme d’aménagement prévoit d’implanter à terme au minimum quatre maisons d’habitations pouvant prendre des formes multiples (groupés et/ou individuels).En l’absence de réseau d’assainissement collectif, les constructions devront prévoir un dispositif de traitement des eaux usées autonome.Situé au bout d’une impasse, à quelques pas des écoles, de la crèche et du bourg, ce terrain offre un cadre paisible et verdoyant, typique de la campagne corrézienne.La commune, réputée pour son charme rural, bénéficie d’une atmosphère calme et authentique, idéale pour les amoureux de la nature. À proximité, les commodités essentielles telles que les écoles, commerces et services sont facilement accessibles, garantissant un quotidien pratique et agréable.La commune fait face à une forte demande immobilière, aussi bien à l’achat qu’à la location.L’offre y est rare, créant une opportunité d’investissement exceptionnelle pour un promoteur ou investisseur souhaitant développer un programme résidentiel à fort rendement.Une rare opportunité d’investissement sur un secteur à forte attractivité.Ce mandat de vente N° 137143 vendu 25000€ net vendeur + 4000€ d’honoraires à la charge de l’acquéreur est indissociable du mandat N° 137142 vendu 67 000 € net vendeur+ 4000€ d’honoraires soit un prix d’affichage à 100 000 € soit 92 000 € net Vendeur + 8000 € d’honoraires à la charge de l’acquéreur.Les informations sur les risques auxquels ce bien est exposé sont disponibles sur le site Géorisques : www.georisques.gouv.frPrix de vente : 100 000 €Honoraires charge vendeurContactez votre consultant megAgence : Sandrine DEGORCE, Tél. : (Numéro supprimé), E-mail : (Email supprimé) – EI – Agent commercial immatriculé au RSAC de BRIVE sous le numéro 353 549 355
Malemort
TERRAIN ET MAISONSur les hauteurs de Malemort, installez votre beau projet de construction sur un grand terrain plat de 1000 m2. Découvrez ce projet de maison de 100 m2 de plain pied composée de 3 chambres, une salle d’eau, une pièce de vie lumineuse et parfaitement exposé, un cellier et intégrant un garage. Un cadre agréable pour profiter de la tranquillité d’un quartier résidentiel, avec la proximité des commerces de Malemort centre et de la grande zone commerciale.Plusieurs plans sur-mesure à réaliser selon vos envies et vos besoins, afin de permettre de réaliser votre projet de vie. Contactez dès maintenant votre conseiller, M. Thibault JUILLARD-CONDAT au (Numéro supprimé), pour plus d’informations et concrétiser votre projet de construction !
Allassac
TERRAINDécouvrez ce terrain d’exception de 1500 m², idéalement situé dans la charmante ville d’Allassac, en Corrèze, au cœur de la paisible région de la Nouvelle-Aquitaine. Ce terrain plat, au calme et offrant une vue dégagée, constitue un cadre parfait pour réaliser votre projet de construction de maison. Situé dans un quartier privilégié et recherché, il vous permettra de profiter d’une qualité de vie inégalée, loin de l’agitation urbaine. Allassac est une ville qui séduit par son authenticité et son cadre de vie agréable. Au sein de cette commune dynamique, vous trouverez un riche patrimoine culturel ainsi que des services de proximité qui facilitent le quotidien. Les amateurs de nature apprécieront les nombreux sentiers de randonnée et espaces verts qui entourent la ville. De plus, la proximité des infrastructures scolaires, des commerces et des commodités essentielles feront de votre future maison un havre de paix et de confort. Ce terrain représente une opportunité unique pour les investisseurs et les futurs propriétaires souhaitant construire leur rêve maison. N’attendez plus pour concrétiser votre projet dans ce cadre idyllique. À noter qu’en tant que constructeur, nous ne sommes pas mandatés pour réaliser la vente de ce terrain.
Allassac
TERRAIN ET MAISONSur ce terrain, nous vous proposons cette maison neuve : la Chatelière. Avec une surface généreuse de 189 m², cette somptueuse maison de prestige est idéale pour une grande famille. Elle dispose de 4 chambres et de 4 pièces, offrant tout l’espace nécessaire pour vivre confortablement.Tout est dans son nom ! La Chatelière a vraiment tout d’une grande maison familiale de prestige, elle vous séduira dès le premier regard. Cette maison neuve est basse consommation et conforme à la RE2020, garantissant ainsi des performances énergétiques optimales et un respect de l’environnement.Un intérieur idéal et bien conçu : à l’intérieur, vous serez immédiatement conquis par le plancher de l’étage en béton ainsi que la charpente traditionnelle qui lui donnent une belle impression de solidité et de qualité. La distribution des pièces et les trois salles d’eau et/ou de bains sont élégamment conçues pour répondre à tous vos besoins en matière de confort et de relaxation.Un équilibre parfait entre confort et design : la Chatelière est bien plus qu’une simple maison de prestige. C’est un véritable modèle de fusion entre confort et design. Tout a été conçu pour répondre aux attentes de ceux qui recherchent un équilibre parfait entre les beaux volumes intérieurs et des lignes modernes parfaites.Sur ce terrain à bâtir, optez pour ce prestigieux modèle à étage ! La Chatelière, avec ses 189 m² dans son écrin alliant luxe et design, vous propose 4 belles chambres ainsi qu’un vaste séjour. Véritable icône du bon goût, elle est personnalisable en fonction de vos besoins.Le constructeur Babeau-Seguin, reconnu pour offrir le meilleur rapport qualité/prix du marché, vous garantit une maison de qualité supérieure, alliant confort, design et performance énergétique. Ne manquez pas cette opportunité unique de devenir propriétaire de cette magnifique maison de prestige.
Sainte-Féréole
TERRAINDécouvrez ce terrain exceptionnel de 1600 m², situé dans le charmant quartier de Sainte-Féréole, dans le département de la Corrèze. Ce site plat offre une opportunité unique pour concrétiser votre projet de construction de maison dans un cadre de vie privilégié. Bénéficiant d’un Plan Local d’Urbanisme (PLU) non contraignant, vous pourrez laisser libre cours à votre créativité et réaliser la maison de vos rêves dans un environnement agréable et serein. Sainte-Féréole est une commune dynamique de la Nouvelle-Aquitaine, offrant un cadre de vie idéal entre nature et proximité des commodités. À proximité, vous profiterez de paysages pittoresques et d’un accès facile aux commerces locaux, restaurants et services de santé. La région regorge également d’activités de plein air, de sentiers de randonnée et d’événements culturels, faisant de ce lieu un choix privilégié pour les familles et les amoureux de la nature. Ce terrain est plus qu’un simple investissement, c’est une promesse de qualité de vie. Ne manquez pas cette occasion d’acquérir un terrain idéal pour votre future maison. Contactez-nous pour explorer cette opportunité d’achat unique. À noter qu’en tant que constructeur, nous ne sommes pas mandatés pour réaliser la vente de ce terrain.
Sainte-Féréole
TERRAIN ET MAISONSur ce terrain, nous vous proposons cette maison neuve, Harmonie, conçue par Babeau-Seguin, constructeur offrant le meilleur rapport qualité/prix du marché. Avec une surface de 109 m², cette maison contemporaine en L est un véritable coup de cœur pour les amoureux de modernité.Harmonie se distingue par son plan en L et ses baies coulissantes, qui apportent un effet saisissant de modernité grâce à un travail de contraste sur ses ouvertures. Son toit plat, pouvant être remplacé par une toiture à 4 pans à faible pente, en fait la maison contemporaine de référence de notre catalogue.Cette maison dispose de 4 chambres spacieuses et de 4 pièces, offrant un espace de vie confortable et fonctionnel. Le garage intégré ajoute une touche de praticité supplémentaire.Les options les plus demandées par nos clients sont également disponibles pour ce modèle : une deuxième salle de bains, des menuiseries en aluminium et un système de domotique pour une maison connectée et intelligente.En choisissant Harmonie, vous optez pour une maison neuve basse consommation, conforme à la réglementation environnementale RE2020, garantissant ainsi des performances énergétiques optimales et un respect de l’environnement.Ne manquez pas cette opportunité unique de construire la maison de vos rêves avec Babeau-Seguin, le constructeur qui allie qualité, modernité et économies d’énergie.
Sadroc
TERRAINNous vous proposons un terrain plat exceptionnel de 1570 m², idéalement situé à Sadroc, en Corrèze, qui constitue l’emplacement parfait pour réaliser votre projet de construction de maison. Ce terrain bénéficie d’une proximité avec un axe routier important, offrant ainsi un accès facile aux commodités environnantes. Avec ses caractéristiques uniques, ce terrain représente une opportunité rare dans un marché en pleine croissance. Sadroc, charmante commune de Nouvelle-Aquitaine, offre un cadre de vie agréable avec de nombreuses attractions locales, notamment des espaces verts et des loisirs en plein air. La ville est également bien desservie par des commerces, des écoles et des services, garantissant un quotidien pratique et stimulant. La richesse culturelle et les paysages environnants font de cette région un lieu prisé pour établir son foyer. Ne laissez pas passer cette opportunité d’acquérir un terrain au potentiel remarquable. Contactez-nous dès maintenant pour plus d’informations et envisagez de faire de ce terrain le site de votre future maison ! À noter qu’en tant que constructeur, nous ne sommes pas mandatés pour réaliser la vente de ce terrain.
Sadroc
TERRAIN ET MAISONSur ce terrain, nous vous proposons cette maison neuve : la Focus Tiny, un modèle idéal pour les familles à la recherche d’un logement confortable et économique. Conçue par Babeau-Seguin, constructeur reconnu pour offrir le meilleur rapport qualité/prix du marché, cette maison de 73 m² saura répondre à toutes vos attentes.La Focus Tiny est une habitation traditionnelle de plain-pied avec un garage intégré de 15 m². Elle se distingue par son design sobre et moderne, ainsi que par ses excellentes performances en matière d’économie d’énergie, conforme à la norme RE2020. Cette maison basse consommation est parfaite pour ceux qui souhaitent réduire leur empreinte écologique tout en bénéficiant d’un confort optimal.À l’intérieur, vous découvrirez un grand séjour-cuisine traversant qui offre une agréable sensation d’espace. Les trois chambres à coucher de dimensions raisonnables accueilleront confortablement votre famille. Les espaces sont si bien répartis que vous ne vous sentirez jamais à l’étroit.Les caractéristiques principales de la Focus Tiny incluent un enduit bi-ton qui ajoute une touche d’élégance à l’extérieur de la maison. Parmi les options les plus demandées par nos clients, vous trouverez les menuiseries en aluminium et la pompe à chaleur, qui peuvent être ajoutées pour encore plus de confort et d’efficacité énergétique.Pour un prix défiant toute concurrence, vous bénéficiez des meilleures technologies et d’un service irréprochable. Notre équipe d’experts réalisera votre maison avec un haut niveau d’exigence, vous assurant des finitions soignées et une qualité de construction exceptionnelle.Ne manquez pas cette opportunité de construire la maison de vos rêves avec Babeau-Seguin. La Focus Tiny est prête à être construite sur ce terrain, et ce, au meilleur prix. Visitez-la en 3D sur notre site et laissez-vous séduire par ses nombreux atouts. Avec la Focus Tiny, petit prix rime avec grande prestation !
Sainte-Féréole
TERRAINNous vous proposons à la vente un magnifique terrain de 1295 m² situé dans le quartier privilégié de Sainte-Féréole, en Corrèze, Nouvelle-Aquitaine. Ce terrain non viabilisé représente une opportunité unique pour concrétiser votre projet de construction de maison. Grâce à sa superficie généreuse, ce terrain offre un large potentiel d’aménagement pour construire la maison de vos rêves dans un cadre paisible et verdoyant. Sainte-Féréole est une charmante commune réputée pour son environnement naturel et sa proximité avec des services et commodités essentiels. À quelques pas, vous trouverez des commerces, des écoles et des espaces de loisirs qui en font un lieu de vie agréable et dynamique. La beauté des paysages environnants, conjuguée à un accès facile aux attractions locales, assure une qualité de vie s’intégrant parfaitement à un projet résidentiel. Ne manquez pas cette occasion d’acquérir un terrain dans cette belle région, où tout est réuni pour un quotidien serein et convivial. Ce terrain représente un potentiel incroyable pour votre futur projet immobilier. N’hésitez pas à envisager cette opportunité d’achat unique ! À noter qu’en tant que constructeur, nous ne sommes pas mandatés pour réaliser la vente de ce terrain.
L’actualité immobilière à Sainte-Féréole
27/11/2023
02/11/2023
30/10/2023
20/10/2023
16/10/2023
16/10/2023