Images
Description
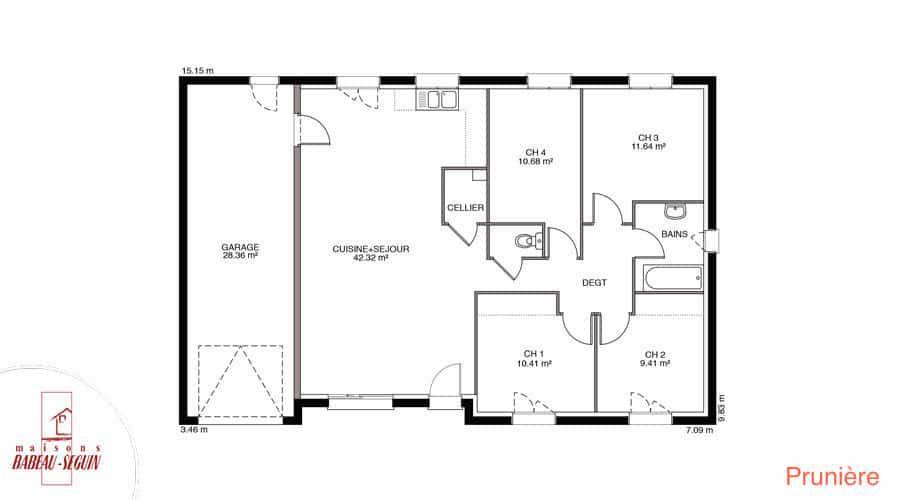
Sur ce terrain, nous vous proposons cette maison neuve, la Prunière, l’un des modèles les plus vendus par Babeau-Seguin, constructeur offrant le meilleur rapport qualité/prix du marché. Figurant dans le top 5 des maisons individuelles Babeau-Seguin, cette maison plain-pied Prunière séduit par son renfoncement qui casse la monotonie de la façade avant et offre un abri de seuil.
Avec une surface de 73 m², cette maison traditionnelle comprend 3 pièces, dont 2 chambres, et un garage intégré. Vous avez le choix entre une toiture à 2 pans ou à 4 pans, selon vos préférences esthétiques.
La Prunière est également une maison basse consommation, conforme à la réglementation environnementale RE2020, ce qui vous garantit des économies d'énergie et un confort optimal tout au long de l'année.
Si on devait retenir la Prunière, ce serait toutefois son prix ! La Prunière est en effet la maison à petit prix par excellence, tout en offrant des prestations de qualité.
Ne manquez pas cette opportunité de construire une maison qui allie confort, économie et esthétisme. Contactez-nous pour plus d'informations et pour découvrir toutes les options disponibles pour personnaliser votre future maison.
Logement susceptibles de vous intéresser
Nous vous proposons de découvrir aussi cette sélection de logements situés à moins de 10km de Sainte-Féréole et qui seraient susceptibles de vous intéresser.
Saint-Viance
TERRAIN ET MAISONSur ce terrain, nous vous proposons cette maison neuve Aubetière, un modèle traditionnel de la gamme Babeau-Seguin, constructeur reconnu pour offrir le meilleur rapport qualité/prix du marché. Avec une surface de 88 m², cette maison de plain-pied se compose de 4 pièces, dont 3 chambres spacieuses, idéales pour accueillir toute votre famille.L’Aubetière se distingue par son excellent rapport qualité/prix et sa conformité aux normes RE2020, garantissant une basse consommation énergétique. Vous avez la possibilité de personnaliser votre maison en choisissant entre un toit à 2 pans ou à 4 pans, ainsi qu’en ajoutant un garage ou un sous-sol selon vos besoins.Cette maison moderne et fonctionnelle est conçue pour s’adapter à vos envies et à votre mode de vie. Profitez de la flexibilité offerte par les nombreux plans et déclinaisons disponibles pour créer votre maison individuelle sur mesure.Ne manquez pas cette opportunité de donner vie à votre projet de construction avec le modèle Aubetière, une maison neuve qui allie confort, économie d’énergie et personnalisation. Contactez-nous dès maintenant pour plus d’informations et pour découvrir toutes les options disponibles pour votre future maison.
Saint-Viance
TERRAINDécouvrez ce terrain exceptionnel de 1800 m², idéalement situé à Saint-Viance, offrant une opportunité rare pour concrétiser votre projet de construction de maison. Ce terrain plat bénéficie d’une vue dégagée sans vis-à-vis, garantissant une qualité de vie incomparable. Niché dans un quartier privilégié, cette parcelle saura séduire les investisseurs et les futurs propriétaires en quête d’un cadre de vie paisible et verdoyant. Saint-Viance, située dans le département de la Corrèze en Nouvelle-Aquitaine, se distingue par ses charmantes attractions locales et ses commodités. La ville est entourée de paysages pittoresques et regorge d’activités pour tous les âges, notamment des espaces naturels préservés. Avec des services à proximité, tels que des commerces, des écoles et des infrastructures sportives, cette ville offre un environnement dynamique et convivial pour les familles et les passionnés de nature. Profitez de tout ce que Saint-Viance a à offrir dans un cadre serein et agréable. Ne manquez pas l’opportunité d’acquérir ce terrain plein de potentiel et envisagez dès maintenant votre future maison dans ce cadre idyllique. Contactez-nous pour plus d’informations. À noter qu’en tant que constructeur, nous ne sommes pas mandatés pour réaliser la vente de ce terrain.
Sainte-Féréole
TERRAIN ET MAISONSur ce terrain, nous vous proposons cette maison neuve, la Prunière, l’un des modèles les plus vendus par Babeau-Seguin, constructeur offrant le meilleur rapport qualité/prix du marché. Figurant dans le top 5 des maisons individuelles Babeau-Seguin, cette maison plain-pied Prunière séduit par son renfoncement qui casse la monotonie de la façade avant et offre un abri de seuil.Avec une surface de 73 m², cette maison traditionnelle comprend 3 pièces, dont 2 chambres, et un garage intégré. Vous avez le choix entre une toiture à 2 pans ou à 4 pans, selon vos préférences esthétiques.La Prunière est également une maison basse consommation, conforme à la réglementation environnementale RE2020, ce qui vous garantit des économies d’énergie et un confort optimal tout au long de l’année.Si on devait retenir la Prunière, ce serait toutefois son prix ! La Prunière est en effet la maison à petit prix par excellence, tout en offrant des prestations de qualité.Ne manquez pas cette opportunité de construire une maison qui allie confort, économie et esthétisme. Contactez-nous pour plus d’informations et pour découvrir toutes les options disponibles pour personnaliser votre future maison.
Sainte-Féréole
TERRAINDécouvrez une opportunité rare avec ce terrain à vendre d’une superficie généreuse de 1300 m², situé dans la charmante commune de Sainte-Féréole, en Corrèze. Ce terrain non viabilisé offre un cadre idéal pour la conception de votre future maison, que ce soit une maison familiale ou un projet de retraite. La ville se distingue par sa qualité de vie exceptionnelle et son ambiance paisible, renforcée par un environnement naturel préservé qui invite à la détente et à la convivialité. Sainte-Féréole, nichée au cœur de la magnifique région Nouvelle-Aquitaine, allie tranquillité et accessibilité. La commune bénéficie de commodités pratiques, telles que des commerces locaux, des écoles et des services de santé, tout en offrant un accès facile à des attractions touristiques renommées. En explorant les environs, vous découvrirez des paysages pittoresques, des randonnées en pleine nature et une immersion dans la culture locale. Ce terrain représente ainsi un point de départ idéal pour profiter pleinement des richesses de cette région attractive. Ne laissez pas passer cette chance unique d’acquérir un terrain qui promet de transformer vos projets en réalité. Contactez-nous dès aujourd’hui pour envisager ce potentiel exceptionnel. À noter qu’en tant que constructeur, nous ne sommes pas mandatés pour réaliser la vente de ce terrain.
Saint-Viance
TERRAIN ET MAISONSur ce terrain, nous vous proposons cette maison neuve : la Focus Family city. Conçue par Babeau-Seguin, constructeur reconnu pour offrir le meilleur rapport qualité/prix du marché, cette maison de 91 m² est idéale pour les familles à la recherche d’un logement confortable et économique.### Une surface généreuse pour une maison à petit prixLa Focus Family city est une maison lumineuse et écologique, offrant une belle surface habitable de 91 m². C’est l’option idéale pour les familles cherchant une maison de qualité avec une surface confortable pour un budget limité. Respectueuse de la règlementation RE2020 pour l’environnement, elle offre par conséquent un excellent rapport qualité-prix.### Un agencement parfaitement optimiséCette maison de plain-pied est parfaitement agencée avec ses quatre chambres de plus de 10 m² chacune, offrant ainsi un espace de vie confortable pour chaque membre de la famille. Une grande pièce de vie lumineuse traversante avec cuisine ouverte, un cellier en prolongement ainsi qu’une salle de bain avec baignoire et des WC séparés viennent compléter son aménagement. ### Caractéristiques principales- **Surface habitable** : 91 m²- **Nombre de chambres** : 4- **Nombre de pièces** : 4- **Cellier** : Oui- **Basse Consommation** : Oui, conforme à la RE2020### Options les plus demandéesPour répondre aux attentes des clients, cette maison peut être équipée de domotique pour un confort optimal et d’un enduit bi-ton pour une touche d’originalité sur la façade avant ou arrière.### Économie à la construction, économie à la consommationCette maison neuve écologique répond aux standards stricts de la RE2020, garantissant ainsi des économies à la construction et à la consommation. Ne manquez pas cette opportunité unique d’acquérir une maison neuve, basse consommation, et parfaitement adaptée aux besoins de votre famille. Contactez-nous dès maintenant pour plus d’informations et pour planifier une visite du terrain.
Saint-Viance
TERRAINDécouvrez ce terrain exceptionnel de 1100 m², idéalement situé à Saint-Viance, dans le département de la Corrèze, Nouvelle-Aquitaine. Avec une vue dégagée et sans vis-à-vis, ce terrain plat vous offre un emplacement privilégié pour réaliser votre projet de construction de maison. Son aspect non viabilisé vous permet de personnaliser entièrement votre projet selon vos besoins et envies. Saint-Viance est une charmante commune qui combine le calme de la nature et les avantages d’une vie urbaine. Proche des commodités essentielles, vous trouverez à proximité des écoles, des commerces ainsi que des infrastructures sportives. De plus, la région est riche en attractions naturelles, offrant de nombreuses opportunités pour les amateurs de randonnée et de plein air. Avec son cadre de vie agréable et ses paysages vallonnés, Saint-Viance est une perle rare où il fait bon vivre. Ne manquez pas cette opportunité unique d’acquérir un terrain au potentiel incroyable dans un cadre enchanteur. Contactez-nous pour plus d’informations et commencez à imaginer votre future maison. À noter qu’en tant que constructeur, nous ne sommes pas mandatés pour réaliser la vente de ce terrain.
Saint-Germain-les-Vergnes
TERRAINIdéal promoteur ou investisseur !A seulement 15 minutes de Tulle et 20 minutes de Brive, au carrefour stratégique des autoroutes A89 et A20, sur une commune très recherchée, terrain à bâtir d’une superficie de 14 790 m² dont environ 9 000 m² en zone constructible et environ 5710 m² en zone naturelle (Bois).Ce terrain fait l’objet d’une OAP (Orientations d’Aménagement et de Programmation).Ce programme d’aménagement prévoit d’implanter à terme au minimum quatre maisons d’habitations pouvant prendre des formes multiples (groupés et/ou individuels).En l’absence de réseau d’assainissement collectif, les constructions devront prévoir un dispositif de traitement des eaux usées autonome.Situé au bout d’une impasse, à quelques pas des écoles, de la crèche et du bourg, ce terrain offre un cadre paisible et verdoyant, typique de la campagne corrézienne.La commune, réputée pour son charme rural, bénéficie d’une atmosphère calme et authentique, idéale pour les amoureux de la nature. À proximité, les commodités essentielles telles que les écoles, commerces et services sont facilement accessibles, garantissant un quotidien pratique et agréable.La commune fait face à une forte demande immobilière, aussi bien à l’achat qu’à la location.L’offre y est rare, créant une opportunité d’investissement exceptionnelle pour un promoteur ou investisseur souhaitant développer un programme résidentiel à fort rendement.Une rare opportunité d’investissement sur un secteur à forte attractivité.Ce mandat de vente N° 137143 vendu 25000€ net vendeur + 4000€ d’honoraires à la charge de l’acquéreur est indissociable du mandat N° 137142 vendu 67 000 € net vendeur+ 4000€ d’honoraires soit un prix d’affichage à 100 000 € soit 92 000 € net Vendeur + 8000 € d’honoraires à la charge de l’acquéreur.Les informations sur les risques auxquels ce bien est exposé sont disponibles sur le site Géorisques : www.georisques.gouv.frPrix de vente : 100 000 €Honoraires charge vendeurContactez votre consultant megAgence : Sandrine DEGORCE, Tél. : (Numéro supprimé), E-mail : (Email supprimé) – EI – Agent commercial immatriculé au RSAC de BRIVE sous le numéro 353 549 355
Malemort
TERRAIN ET MAISONSur les hauteurs de Malemort, installez votre beau projet de construction sur un grand terrain plat de 1000 m2. Découvrez ce projet de maison de 100 m2 de plain pied composée de 3 chambres, une salle d’eau, une pièce de vie lumineuse et parfaitement exposé, un cellier et intégrant un garage. Un cadre agréable pour profiter de la tranquillité d’un quartier résidentiel, avec la proximité des commerces de Malemort centre et de la grande zone commerciale.Plusieurs plans sur-mesure à réaliser selon vos envies et vos besoins, afin de permettre de réaliser votre projet de vie. Contactez dès maintenant votre conseiller, M. Thibault JUILLARD-CONDAT au (Numéro supprimé), pour plus d’informations et concrétiser votre projet de construction !
Allassac
TERRAINDécouvrez ce terrain d’exception de 1500 m², idéalement situé dans la charmante ville d’Allassac, en Corrèze, au cœur de la paisible région de la Nouvelle-Aquitaine. Ce terrain plat, au calme et offrant une vue dégagée, constitue un cadre parfait pour réaliser votre projet de construction de maison. Situé dans un quartier privilégié et recherché, il vous permettra de profiter d’une qualité de vie inégalée, loin de l’agitation urbaine. Allassac est une ville qui séduit par son authenticité et son cadre de vie agréable. Au sein de cette commune dynamique, vous trouverez un riche patrimoine culturel ainsi que des services de proximité qui facilitent le quotidien. Les amateurs de nature apprécieront les nombreux sentiers de randonnée et espaces verts qui entourent la ville. De plus, la proximité des infrastructures scolaires, des commerces et des commodités essentielles feront de votre future maison un havre de paix et de confort. Ce terrain représente une opportunité unique pour les investisseurs et les futurs propriétaires souhaitant construire leur rêve maison. N’attendez plus pour concrétiser votre projet dans ce cadre idyllique. À noter qu’en tant que constructeur, nous ne sommes pas mandatés pour réaliser la vente de ce terrain.
L’actualité immobilière à Sainte-Féréole
27/11/2023
02/11/2023
30/10/2023
20/10/2023
16/10/2023
16/10/2023