Images
Description
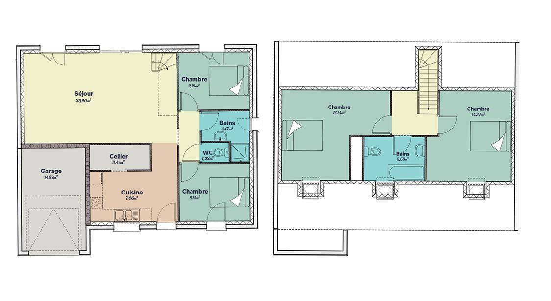
Sur ce terrain, nous vous proposons cette maison neuve : la Focus EVO, un modèle unique de 110 m² conçu par Babeau-Seguin, constructeur offrant le meilleur rapport qualité/prix du marché. Cette maison basse consommation est conforme à la norme RE2020, garantissant des performances énergétiques exceptionnelles.
La Focus EVO se distingue par son concept évolutif, alliant une maison neuve prête à vivre et une maison prête à finir. Livrée avec 73 m² habitables, elle est conçue pour évoluer avec vos besoins futurs. Grâce à ses combles aménageables, vous pouvez facilement augmenter votre surface habitable à 110 m², ajoutant ainsi deux chambres supplémentaires et une salle de bain, pour un total de 4 chambres et 2 salles de bains.
Les caractéristiques principales de cette maison incluent un garage intégré, un cellier, et des combles aménageables. Les options les plus demandées par nos clients, telles que la version Investisseur et les prises USB murales, sont également disponibles.
La Focus EVO est idéale pour tous ceux qui recherchent une maison complète à un prix compétitif. Elle comprend une grande pièce de jour traversante, 4 chambres, une salle de bain, et un garage de 15 m². Que vous soyez un jeune couple, un célibataire ou une famille en pleine expansion, cette maison saura s'adapter à vos besoins et à vos envies.
Ne manquez pas cette occasion unique de devenir propriétaire d'une maison évolutive, économe en énergie et conforme aux dernières normes environnementales. Contactez-nous dès aujourd'hui pour plus d'informations et pour planifier une visite.
Logement susceptibles de vous intéresser
Nous vous proposons de découvrir aussi cette sélection de logements situés à moins de 10km de Aiserey et qui seraient susceptibles de vous intéresser.
Barges
TERRAINOlivier Monin vous propose en exclusivité! A Broindon, à 8 kms de Gevrey-Chambertin, 3 kms de Saint Philibert et 2 kms de Barges, au calme, terrain à bâtir lot 5, libre constructeur, borné et viabilisé de 920 m2. Clos de la Boîse comprenant 3 parcelles de 848 m2 à 920 m2. hors VRD. Vide sanitaire 80 cm obligatoire. Cuve béton de récupération d’eau de pluie de 300 litres. Etude de sol G1 et plan de bornage de chaque lot disponible sur demande. PLU de la commune applicable. Coefficient d’emprise au sol du bâti de 0.15 (hors terrasse). Maternelle, école primaire, restaurant scolaire, périscolaire sur place. Collège Gevrey-Chambertin et lycée Brochon avec bus. Les honoraires sont à la charge du vendeur.Les informations sur les risques auxquels ce bien est exposé sont disponibles sur le site Géorisques : www. georisques. gouv. fr.Contactez Olivier MONIN Entrepreneur Individuel, Agent commercial OptimHome (RSAC N(Numéro supprimé) Greffe de DIJON) (Numéro supprimé) (réf. 598493 )
Esbarres
TERRAINTerrain à bâtir.Cette annonce référence 313243 vous est présentée par votre agent commercial BSK Immobilier SONIA THOMASSOT (EI) immatriculé au RSAC de DIJON (21000) sous le numéro 80(Numéro supprimé)29.Prix du bien : 39 000,00 €Les honoraires d’agence sont à la charge du vendeur.Les informations sur les risques auxquels ce bien est exposé sont disponibles sur le site Géorisques : www.georisques.gouv.fr
Trouhans
TERRAINNous vous proposons ce magnifique terrain à vendre, d’une superficie de 800 m², situé dans la charmante commune de Trouhans, dans le département de la Côte d’Or, en Bourgogne-Franche-Comté. Ce terrain viabilisé se distingue par son ambiance calme et arborée, offrant un cadre champêtre idéal pour réaliser votre projet de construction de maison. La disposition plate de la parcelle vous permettra de concevoir la maison de vos rêves dans un environnement harmonieux. Trouhans est une ville accueillante, proche de toutes les commodités nécessaires au quotidien, tout en préservant un cadre naturel attrayant. Vous bénéficierez ainsi d’un accès facile aux magasins, écoles et services locaux, tout en profitant de la tranquillité des environs. En outre, cette localité est entourée de paysages pittoresques, parfaits pour les amoureux de la nature et des activités de plein air. N’attendez plus pour découvrir ce terrain au prix attractif, véritable opportunité pour réaliser vos envies d’habitat. Ce terrain a un potentiel indéniable pour accueillir votre future maison. Ne laissez pas passer cette occasion unique d’investir dans un cadre de vie privilégié. À noter qu’en tant que constructeur, nous ne sommes pas mandatés pour réaliser la vente de ce terrain.
Trouhans
TERRAIN ET MAISONSur ce terrain, nous vous proposons cette maison neuve : la Focus EVO, un modèle unique de 110 m² conçu par Babeau-Seguin, constructeur offrant le meilleur rapport qualité/prix du marché. Cette maison basse consommation est conforme à la norme RE2020, garantissant des performances énergétiques exceptionnelles.La Focus EVO se distingue par son concept évolutif, alliant une maison neuve prête à vivre et une maison prête à finir. Livrée avec 73 m² habitables, elle est conçue pour évoluer avec vos besoins futurs. Grâce à ses combles aménageables, vous pouvez facilement augmenter votre surface habitable à 110 m², ajoutant ainsi deux chambres supplémentaires et une salle de bain, pour un total de 4 chambres et 2 salles de bains.Les caractéristiques principales de cette maison incluent un garage intégré, un cellier, et des combles aménageables. Les options les plus demandées par nos clients, telles que la version Investisseur et les prises USB murales, sont également disponibles.La Focus EVO est idéale pour tous ceux qui recherchent une maison complète à un prix compétitif. Elle comprend une grande pièce de jour traversante, 4 chambres, une salle de bain, et un garage de 15 m². Que vous soyez un jeune couple, un célibataire ou une famille en pleine expansion, cette maison saura s’adapter à vos besoins et à vos envies.Ne manquez pas cette occasion unique de devenir propriétaire d’une maison évolutive, économe en énergie et conforme aux dernières normes environnementales. Contactez-nous dès aujourd’hui pour plus d’informations et pour planifier une visite.
Aiserey
TERRAIN ET MAISONSur ce terrain, nous vous proposons cette maison neuve : la Focus EVO, un modèle unique de 110 m² conçu par Babeau-Seguin, constructeur offrant le meilleur rapport qualité/prix du marché. Cette maison basse consommation est conforme à la norme RE2020, garantissant des performances énergétiques exceptionnelles.La Focus EVO se distingue par son concept évolutif, alliant une maison neuve prête à vivre et une maison prête à finir. Livrée avec 73 m² habitables, elle est conçue pour évoluer avec vos besoins futurs. Grâce à ses combles aménageables, vous pouvez facilement augmenter votre surface habitable à 110 m², ajoutant ainsi deux chambres supplémentaires et une salle de bain, pour un total de 4 chambres et 2 salles de bains.Les caractéristiques principales de cette maison incluent un garage intégré, un cellier, et des combles aménageables. Les options les plus demandées par nos clients, telles que la version Investisseur et les prises USB murales, sont également disponibles.La Focus EVO est idéale pour tous ceux qui recherchent une maison complète à un prix compétitif. Elle comprend une grande pièce de jour traversante, 4 chambres, une salle de bain, et un garage de 15 m². Que vous soyez un jeune couple, un célibataire ou une famille en pleine expansion, cette maison saura s’adapter à vos besoins et à vos envies.Ne manquez pas cette occasion unique de devenir propriétaire d’une maison évolutive, économe en énergie et conforme aux dernières normes environnementales. Contactez-nous dès aujourd’hui pour plus d’informations et pour planifier une visite.
Aiserey
TERRAINNous avons le plaisir de vous présenter un terrain à vendre d’une superficie généreuse de 383 m², idéal pour la réalisation de votre projet de construction de maison. Situé dans le charmant lotissement de la paisible commune d’Aiserey, ce terrain viabilisé offre de nombreuses possibilités. Profitez d’une qualité de vie incomparable dans cette ville de Côte d’Or, en Bourgogne-Franche-Comté, où la tranquillité et le confort se rencontrent pour créer un cadre de vie exceptionnel. Aiserey, nichée dans le département de la Côte d’Or, se distingue par ses commodités accessibles et son environnement calme. La commune bénéficie d’un emplacement stratégique près des grands axes routiers, facilitant les déplacements vers les villes voisines. En plus de ses services locaux, vous pourrez profiter des magnifiques paysages de la région, des balades en pleine nature et d’une ambiance conviviale. Ce cadre enchanteur saura séduire ceux en quête d’un lieu de vie agréable et serein. Ne laissez pas passer cette occasion unique d’acquérir un terrain avec un potentiel immense. Nous vous invitons à envisager cette opportunité d’achat pour construire la maison de vos rêves dans un environnement privilégié. À noter qu’en tant que constructeur, nous ne sommes pas mandatés pour réaliser la vente de ce terrain.
Brazey-en-Plaine
TERRAIN ET MAISONDans la charmante commune de BRAZEY EN PLAINE Maisons d’en France vous propose de construire votre maison de plain pied, type Fleur de Bohème, d’une superficie de 90 m² habitables, composé de 3 chambres et d’un garage de 22.96 m², sur une parcelle de terrain plate de 964 m². Ce modèle est intégralement personnalisable en surface, aménagements intérieurs et systèmes de chauffage. DO et garanties incluses. Hors Frais de Notaires et Hors Raccordement aux réseaux- Conforme RE 2020 . *Tarif Janvier 2025. Solution Poêle à granulé Possibilités autres modes de chauffage. Prix susceptibles d’être modifiés selon secteurs et options choisies par l’acquéreur. Prix Hors aménagements extérieurs : Terrasse, Piscine …. Terrain sélectionné et vu pour vous sous réserve de disponibilité et au prix indiqué par le propriétaire du terrain. Les terrains proposés ci-dessous n’appartiennent pas à Maisons d’en France et ne sont pas commercialisés par notre société.
Aiserey
TERRAINTerrain à bâtir – 476 m² – Proximité DijonÀ seulement 25 minutes du centre-ville de Dijon, découvrez ce terrain plat de 476 m², situé dans un village calme et agréable, avec une vue dégagée sur les champs.Terrain bornéRéseaux en bordure (eau, électricité, tout-à-l’égout…)Environnement paisible, cadre champêtreCommerces et commodités accessibles dans le villageIdéal pour un projet de construction dans un cadre de vie serein, tout en restant proche de la métropole dijonnaise. Les honoraires sont à la charge du vendeur.Les informations sur les risques auxquels ce bien est exposé sont disponibles sur le site Géorisques : www. georisques. gouv. fr.Réseau Immobilier CAPIFRANCE – Votre agent commercial (RSAC N(Numéro supprimé) – Greffe de DIJON) Philippe LHUISSIER Entrepreneur Individuel (Numéro supprimé) – Réf.925455
Genlis
TERRAINImaginez-vous poser vos valises à Genlis, dans une maison pensée sur-mesure pour vous et votre famille.Chaque matin, vous profitez du calme d’un quartier résidentiel tout en sachant que les commerces, les écoles et la gare sont à deux pas. En seulement 10 minutes de train, vous êtes à Dijon.Ce terrain plat et entièrement viabilisé est le point de départ idéal pour construire la maison qui vous ressemble.Traditionnelle, moderne ou contemporaine… vous êtes libre de choisir le style et le constructeur qui donneront vie à votre projet.Avec son emplacement central, son accès facile et son étude de sol déjà réalisée, ce terrain n’attend plus que vous pour devenir le décor de votre quotidien. Contactez-moi pour en savoir plus : et si votre nouvelle histoire commençait ici à Genlis ?Cette annonce référence 306101 vous est présentée par votre agent commercial BSK Immobilier HELOISE LENOIR (EI) immatriculé au RSAC de DIJON (21000) sous le numéro 819(Numéro supprimé)1.Prix du bien : 82 300,00 €Les honoraires d’agence sont à la charge du vendeur.Les informations sur les risques auxquels ce bien est exposé sont disponibles sur le site Géorisques : www.georisques.gouv.fr
L’actualité immobilière à Aiserey
27/11/2023
02/11/2023
30/10/2023
20/10/2023
16/10/2023
16/10/2023