Images
Description
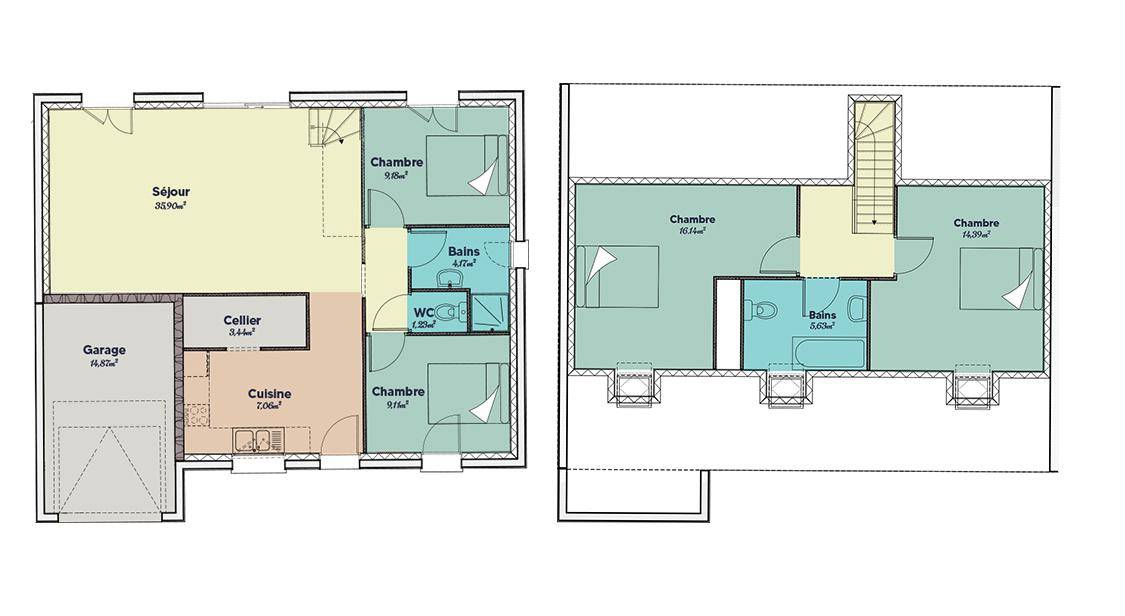
Sur ce terrain, nous vous proposons cette maison neuve : la Focus EVO, un modèle unique de 110 m² conçu par Babeau-Seguin, constructeur offrant le meilleur rapport qualité/prix du marché. Cette maison basse consommation est conforme à la norme RE2020, garantissant des performances énergétiques exceptionnelles.
La Focus EVO se distingue par son concept évolutif, alliant une maison neuve prête à vivre et une maison prête à finir. Livrée avec 73 m² habitables, elle est conçue pour évoluer avec vos besoins futurs. Grâce à ses combles aménageables, vous pouvez facilement augmenter votre surface habitable à 110 m², ajoutant ainsi deux chambres supplémentaires et une salle de bain, pour un total de 4 chambres et 2 salles de bains.
Les caractéristiques principales de cette maison incluent un garage intégré, un cellier, et des combles aménageables. Les options les plus demandées par nos clients, telles que la version Investisseur et les prises USB murales, sont également disponibles.
La Focus EVO est idéale pour tous ceux qui recherchent une maison complète à un prix compétitif. Elle comprend une grande pièce de jour traversante, 4 chambres, une salle de bain, et un garage de 15 m². Que vous soyez un jeune couple, un célibataire ou une famille en pleine expansion, cette maison saura s'adapter à vos besoins et à vos envies.
Ne manquez pas cette occasion unique de devenir propriétaire d'une maison évolutive, économe en énergie et conforme aux dernières normes environnementales. Contactez-nous dès aujourd'hui pour plus d'informations et pour planifier une visite.
Logement susceptibles de vous intéresser
Nous vous proposons de découvrir aussi cette sélection de logements situés à moins de 10km de Marcilly-sur-Tille et qui seraient susceptibles de vous intéresser.
Marcilly-sur-Tille
TERRAINÀ vendre, terrain spacieux d’une surface généreuse de 940 m², idéalement situé à Marcilly-sur-Tille, dans le département de la Côte d’Or, en Bourgogne-Franche-Comté. Avec son emplacement ensoleillé et arboré, ce terrain non-viabilisé constitue une toile vierge parfaite pour la réalisation de votre projet de construction de maison. Niché dans un quartier recherché, il vous offre tous les atouts d’un cadre de vie de qualité, avec un potentiel exceptionnel pour les futurs propriétaires. Marcilly-sur-Tille, une charmante commune de Bourgogne-Franche-Comté, se distingue par son ambiance conviviale et paisible, tout en étant à proximité de toutes les commodités nécessaires. Profitez de la douceur de vivre de la région, avec ses espaces verts, ses écoles de qualité et son accès rapide aux autoroutes. Ne manquez pas les plaisirs que vous offre cette localité, entre les balades en nature et les activités locales animées, un véritable havre de paix à découvrir. Ne laissez pas passer cette opportunité rare d’acquérir un terrain au potentiel remarquable. Contactez-nous dès aujourd’hui pour envisager les possibilités qu’offre ce bien unique. À noter qu’en tant que constructeur, nous ne sommes pas mandatés pour réaliser la vente de ce terrain.
Marcilly-sur-Tille
TERRAIN ET MAISONSur ce terrain, nous vous proposons la maison Focus Urban 80, un modèle à étage compact et moderne parfaitement adapté aux parcelles urbaines. Avec ses 80 m² habitables, cette maison neuve offre une belle pièce de vie ouverte et lumineuse au rez-de-chaussée, trois chambres bien agencées à l’étage, ainsi qu’un garage intégré pour plus de confort au quotidien.La distribution des pièces est pensée pour séparer harmonieusement les espaces jour et nuit, tout en maximisant la surface utile. Conforme à la réglementation environnementale RE2020, la Focus Urban garantit un excellent niveau de performance énergétique, avec un confort thermique optimal été comme hiver.C’est une solution idéale pour un premier achat, avec un prix accessible, un style sobre et contemporain, et la possibilité de vivre dans une maison neuve bien conçue, tout en maîtrisant votre budget.
Marcilly-sur-Tille
TERRAIN ET MAISONSur ce terrain, nous vous proposons cette maison neuve, la Ménilière, un modèle plain-pied moderne qui saura répondre à toutes vos attentes. Avec une surface de 73 m², cette maison dispose de 3 pièces, dont 2 chambres, et intègre de base un garage ainsi qu’une longue galerie sur la face avant.Véritable « »tout-en-un » » de la maison individuelle, la Ménilière est idéale pour votre projet de construction sur-mesure. Elle est disponible avec un toit à 2 pans ou 4 pans, selon vos préférences esthétiques. Le garage intégré et la galerie avant ajoutent une touche de praticité et de confort à votre quotidien.Parmi les options les plus demandées par nos clients, vous pouvez opter pour des menuiseries en aluminium et un sous-sol, afin de personnaliser encore davantage votre future maison.Cette maison neuve est basse consommation et conforme à la RE2020, garantissant ainsi des performances énergétiques optimales et un respect des normes environnementales actuelles.Le constructeur Babeau-Seguin, reconnu pour offrir le meilleur rapport qualité/prix du marché, vous accompagne dans la réalisation de votre projet de vie. Avec un prix serré et une personnalisation facile, il n’est pas étonnant que la Ménilière soit dans le top 5 des ventes de Babeau-Seguin.Ne manquez pas cette opportunité unique de devenir propriétaire d’une maison moderne, fonctionnelle et économe en énergie. Contactez-nous dès maintenant pour plus d’informations et pour visiter ce modèle sur notre terrain.
Marcilly-sur-Tille
TERRAINVous rêvez de construire la maison de vos rêves ? Ne cherchez plus ! Ce superbe terrain non viabilisé de 1089 m², situé à Marcilly-sur-Tille, vous offre l’opportunité d’un projet résidentiel dans un cadre calme et serein. Idéalement dimensionné pour une construction, ce terrain vous permet de laisser libre cours à votre imagination et de créer un véritable havre de paix selon vos envies. Marcilly-sur-Tille, charmante commune de la Côte d’Or en Bourgogne-Franche-Comté, se distingue par ses attraits locaux qui raviront tous les habitants. Dotée d’un cadre champêtre, la ville offre un accès aisé aux commerces et services de proximité, ainsi qu’à des écoles pour les familles. Vous pourrez également profiter d’une tranquillité inégalée avec un environnement calme tout en étant à proximité des transports, y compris des arrêts de bus et d’une gare. Sa position stratégique vous permet de rejoindre rapidement d’importants axes routiers pour explorer davantage la région. Saisissez cette occasion unique de donner vie à votre projet immobilier ! Ce terrain de Marcilly-sur-Tille représente un potentiel exceptionnel pour une future résidence. N’attendez plus pour envisager cette opportunité d’achat unique. À noter qu’en tant que constructeur, nous ne sommes pas mandatés pour réaliser la vente de ce terrain.
Marcilly-sur-Tille
TERRAIN ET MAISONSur ce terrain, nous vous proposons cette maison neuve : la Focus EVO, un modèle unique de 110 m² conçu par Babeau-Seguin, constructeur offrant le meilleur rapport qualité/prix du marché. Cette maison basse consommation est conforme à la norme RE2020, garantissant des performances énergétiques exceptionnelles.La Focus EVO se distingue par son concept évolutif, alliant une maison neuve prête à vivre et une maison prête à finir. Livrée avec 73 m² habitables, elle est conçue pour évoluer avec vos besoins futurs. Grâce à ses combles aménageables, vous pouvez facilement augmenter votre surface habitable à 110 m², ajoutant ainsi deux chambres supplémentaires et une salle de bain, pour un total de 4 chambres et 2 salles de bains.Les caractéristiques principales de cette maison incluent un garage intégré, un cellier, et des combles aménageables. Les options les plus demandées par nos clients, telles que la version Investisseur et les prises USB murales, sont également disponibles.La Focus EVO est idéale pour tous ceux qui recherchent une maison complète à un prix compétitif. Elle comprend une grande pièce de jour traversante, 4 chambres, une salle de bain, et un garage de 15 m². Que vous soyez un jeune couple, un célibataire ou une famille en pleine expansion, cette maison saura s’adapter à vos besoins et à vos envies.Ne manquez pas cette occasion unique de devenir propriétaire d’une maison évolutive, économe en énergie et conforme aux dernières normes environnementales. Contactez-nous dès aujourd’hui pour plus d’informations et pour planifier une visite.
Marcilly-sur-Tille
TERRAINNous vous proposons un magnifique terrain à vendre, situé à Marcilly-sur-Tille, dans le département de la Côte d’Or. Avec une surface généreuse de 1 089 m², ce terrain plat et ensoleillé offre un cadre idéal pour la réalisation de votre projet de construction de maison. Spi Non-viabilisé, il promet une multitude de possibilités d’aménagement pour concrétiser vos rêves d’habitat dans un environnement arboré exceptionnel. Ce coin de Bourgogne-Franche-Comté se distingue par son ambiance paisible et accueillante, parfaite pour une vie de famille. Situé à proximité d’un axe routier important, ce terrain bénéficie d’une accessibilité toute particulière, alliant tranquillité et connexion facile avec les grandes villes environnantes. Marcilly-sur-Tille est riche en charme et offre à ses résidents des attractions locales comme de vastes espaces verts, des sentiers pédestres et un cadre naturel préservé. Les commodités nécessaires, telles que commerces, écoles et services de santé, sont également accessibles à quelques minutes. Découvrez le potentiel inestimable que ce terrain a à offrir au cœur d’une région dynamique et attrayante. Ne manquez pas cette opportunité unique d’investir dans un terrain plein de promesses, idéalement situé pour réaliser le foyer de vos rêves. Contactez-nous dès aujourd’hui pour en savoir plus ! À noter qu’en tant que constructeur, nous ne sommes pas mandatés pour réaliser la vente de ce terrain.
Gemeaux
TERRAINA 20 kilomètres de Dijon et 6 kilomètres d’Is sur Tille, je vous propose ce terrain boisé à bâtir de 692m2, non viabilisé, sur les hauteurs avec une vue imprenable, dans un charmant village bourguignon au calme ou il fait bon vivre.Gémeaux vous séduira à moins de 15 minutes du centre commercial de la Toison D’Or.Le terrain est clos sur un coté avec toutes les autorisations pour construire.La commune dispose d’une école maternelle et primaire ainsi qu’un service ramassage scolaire pour les plus grands.Possibilité grâce à la gare de se rendre à Dijon en train.A découvrir sans tarder. Les honoraires sont à la charge du vendeur.Les informations sur les risques auxquels ce bien est exposé sont disponibles sur le site Géorisques : www. georisques. gouv. fr.Réseau Immobilier CAPIFRANCE – Votre agent commercial (RSAC N(Numéro supprimé) – Greffe de DIJON) Antoine PERAZZI Entrepreneur Individuel à Responsabilité Limitée (Numéro supprimé) – Réf.929381
Marey-sur-Tille
TERRAINDécouvrez cette opportunité rare d’acquérir un terrain viabilisé de 648 m², niché dans la charmante commune de Marey-sur-Tille. Ce terrain offre une superbe vue et bénéficie d’une situation géographique idéale, propice à la construction de votre maison de rêve. Marey-sur-Tille est réputée pour sa qualité de vie exceptionnelle, faisant de ce bien une excellente base pour votre projet de construction. Située dans le département de la Côte d’Or, Marey-sur-Tille séduit par son ambiance paisible et ses attraits locaux, tout en restant proche des commodités nécessaires au quotidien. La ville est entourée de paysages naturels exceptionnels et propose une multitude d’activités de loisirs. Vous bénéficierez également d’un accès rapide aux services essentiels, tels que commerces, écoles et transports, qui garantissent un cadre de vie pratique et agréable. Ne manquez pas cette opportunité unique d’investir dans un terrain au potentiel exceptionnel. Contactez-nous dès aujourd’hui pour envisager votre projet de construction dans ce cadre enchanteur à Marey-sur-Tille.
Marey-sur-Tille
TERRAIN ET MAISONSur ce terrain, nous vous proposons cette maison neuve : la Focus Family. Conçue par Babeau-Seguin, constructeur offrant le meilleur rapport qualité/prix du marché, cette maison familiale à tout petit prix est idéale pour ceux qui souhaitent allier confort et économies.Avec une surface habitable de 89 m², la Focus Family vous offre un espace généreux et bien agencé. Elle comprend 4 chambres, parfaites pour accueillir toute votre famille, ainsi qu’un grand séjour traversant avec cuisine ouverte, pour un total de 4 pièces. Vous apprécierez également le garage intégré, pratique pour stationner votre véhicule ou pour du rangement supplémentaire.L’enduit bi-ton de la façade apporte une touche moderne et élégante à cette maison. De plus, les options les plus demandées par nos clients, comme les menuiseries en aluminium, sont disponibles pour personnaliser votre future habitation selon vos goûts.La Focus Family est une maison basse consommation, conforme à la réglementation environnementale RE2020. Elle est équipée des dernières innovations technologiques pour garantir une isolation thermique et phonique optimale, tout en étant économique et respectueuse de l’environnement.Ne faites aucune concession sur la qualité avec cette maison low cost de luxe. Babeau-Seguin met tout son savoir-faire et son professionnalisme dans la construction de la gamme Focus, en utilisant les meilleurs matériaux et une charpente traditionnelle.N’attendez plus pour réaliser votre projet de maison familiale à petit prix avec la Focus Family, une maison spacieuse, écolo et accessible à tous les budgets.
L’actualité immobilière à Marcilly-sur-Tille
27/11/2023
02/11/2023
30/10/2023
20/10/2023
16/10/2023
16/10/2023