Images
Description
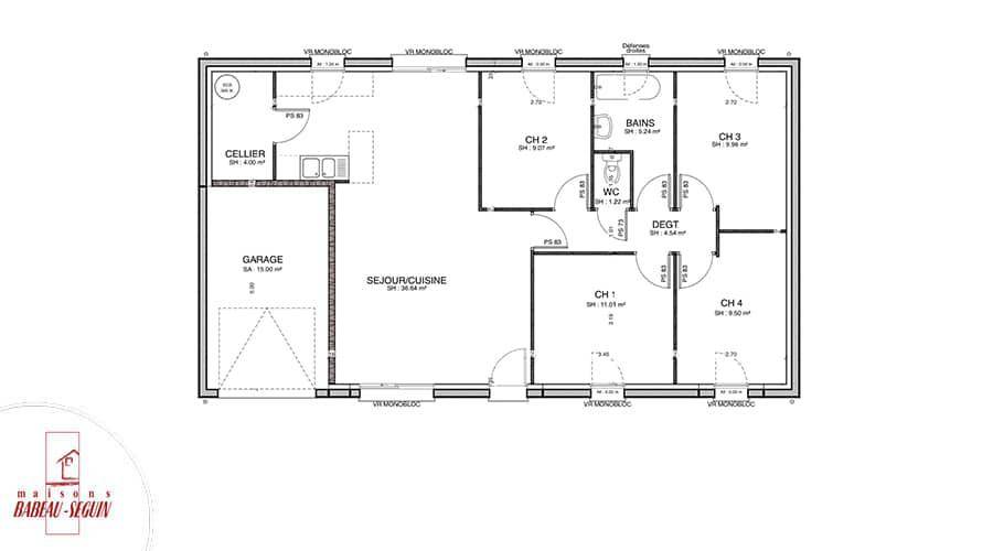
Sur ce terrain, nous vous proposons cette maison neuve : la Focus Family. Conçue par Babeau-Seguin, constructeur offrant le meilleur rapport qualité/prix du marché, cette maison familiale à tout petit prix est idéale pour ceux qui souhaitent allier confort et économies.
Avec une surface habitable de 89 m², la Focus Family vous offre un espace généreux et bien agencé. Elle comprend 4 chambres, parfaites pour accueillir toute votre famille, ainsi qu'un grand séjour traversant avec cuisine ouverte, pour un total de 4 pièces. Vous apprécierez également le garage intégré, pratique pour stationner votre véhicule ou pour du rangement supplémentaire.
L'enduit bi-ton de la façade apporte une touche moderne et élégante à cette maison. De plus, les options les plus demandées par nos clients, comme les menuiseries en aluminium, sont disponibles pour personnaliser votre future habitation selon vos goûts.
La Focus Family est une maison basse consommation, conforme à la réglementation environnementale RE2020. Elle est équipée des dernières innovations technologiques pour garantir une isolation thermique et phonique optimale, tout en étant économique et respectueuse de l'environnement.
Ne faites aucune concession sur la qualité avec cette maison low cost de luxe. Babeau-Seguin met tout son savoir-faire et son professionnalisme dans la construction de la gamme Focus, en utilisant les meilleurs matériaux et une charpente traditionnelle.
N'attendez plus pour réaliser votre projet de maison familiale à petit prix avec la Focus Family, une maison spacieuse, écolo et accessible à tous les budgets.
Logement susceptibles de vous intéresser
Nous vous proposons de découvrir aussi cette sélection de logements situés à moins de 10km de Seurre et qui seraient susceptibles de vous intéresser.
Esbarres
TERRAINTerrain à bâtir.Cette annonce référence 313243 vous est présentée par votre agent commercial BSK Immobilier SONIA THOMASSOT (EI) immatriculé au RSAC de DIJON (21000) sous le numéro 80(Numéro supprimé)29.Prix du bien : 39 000,00 €Les honoraires d’agence sont à la charge du vendeur.Les informations sur les risques auxquels ce bien est exposé sont disponibles sur le site Géorisques : www.georisques.gouv.fr
Seurre
TERRAIN ET MAISONSur ce terrain, nous vous proposons cette maison neuve : la Focus EVO, un modèle unique de 110 m² conçu par Babeau-Seguin, constructeur offrant le meilleur rapport qualité/prix du marché. Cette maison basse consommation est conforme à la norme RE2020, garantissant des performances énergétiques exceptionnelles.La Focus EVO se distingue par son concept évolutif, alliant une maison neuve prête à vivre et une maison prête à finir. Livrée avec 73 m² habitables, elle est conçue pour évoluer avec vos besoins futurs. Grâce à ses combles aménageables, vous pouvez facilement augmenter votre surface habitable à 110 m², ajoutant ainsi deux chambres supplémentaires et une salle de bain, pour un total de 4 chambres et 2 salles de bains.Les caractéristiques principales de cette maison incluent un garage intégré, un cellier, et des combles aménageables. Les options les plus demandées par nos clients, telles que la version Investisseur et les prises USB murales, sont également disponibles.La Focus EVO est idéale pour tous ceux qui recherchent une maison complète à un prix compétitif. Elle comprend une grande pièce de jour traversante, 4 chambres, une salle de bain, et un garage de 15 m². Que vous soyez un jeune couple, un célibataire ou une famille en pleine expansion, cette maison saura s’adapter à vos besoins et à vos envies.Ne manquez pas cette occasion unique de devenir propriétaire d’une maison évolutive, économe en énergie et conforme aux dernières normes environnementales. Contactez-nous dès aujourd’hui pour plus d’informations et pour planifier une visite.
Seurre
TERRAIN ET MAISONSur ce terrain, nous vous proposons cette maison neuve : la Focus EVO, un modèle unique de 110 m² conçu par Babeau-Seguin, constructeur offrant le meilleur rapport qualité/prix du marché. Cette maison basse consommation est conforme à la norme RE2020, garantissant des performances énergétiques exceptionnelles.La Focus EVO se distingue par son concept évolutif, alliant une maison neuve prête à vivre et une maison prête à finir. Livrée avec 73 m² habitables, elle est conçue pour évoluer avec vos besoins futurs. Grâce à ses combles aménageables, vous pouvez facilement augmenter votre surface habitable à 110 m², ajoutant ainsi deux chambres supplémentaires et une salle de bain, pour un total de 4 chambres et 2 salles de bains.Les caractéristiques principales de cette maison incluent un garage intégré, un cellier, et des combles aménageables. Les options les plus demandées par nos clients, telles que la version Investisseur et les prises USB murales, sont également disponibles.La Focus EVO est idéale pour tous ceux qui recherchent une maison complète à un prix compétitif. Elle comprend une grande pièce de jour traversante, 4 chambres, une salle de bain, et un garage de 15 m². Que vous soyez un jeune couple, un célibataire ou une famille en pleine expansion, cette maison saura s’adapter à vos besoins et à vos envies.Ne manquez pas cette occasion unique de devenir propriétaire d’une maison évolutive, économe en énergie et conforme aux dernières normes environnementales. Contactez-nous dès aujourd’hui pour plus d’informations et pour planifier une visite.
Seurre
TERRAINNous vous proposons un terrain exceptionnel à vendre dans le lotissement de Seurre, situé dans le département de la Côte d’Or en Bourgogne-Franche-Comté. D’une superficie de 633 m², ce terrain viabilisé est un véritable écrin pour construire la maison de vos rêves. Son emplacement privilégié dans un quartier recherché en fait une opportunité rare, à saisir rapidement. Avec ses caractéristiques uniques, ce terrain conviendra parfaitement pour un projet de construction, permettant à votre famille de s’épanouir dans un cadre idéal. La commune de Seurre est réputée pour son cadre de vie agréable, alliant calme et proximité des commodités essentielles. Vous bénéficierez d’une grande variété de services, avec des commerces de proximité, des écoles, et des infrastructures sportives. Les passionnés de nature seront comblés par les espaces verts et les activités de plein air à proximité, tout en étant à quelques pas des attractions locales qui font la renommée de la région. Ce terrain bénéficie donc d’une situation idéale pour profiter pleinement des atouts de la Bourgogne-Franche-Comté. Ne manquez pas cette chance unique d’investir dans un terrain au potentiel indéniable. Contactez-nous dès aujourd’hui pour envisager ensemble votre projet ! À noter qu’en tant que constructeur, nous ne sommes pas mandatés pour réaliser la vente de ce terrain.
Seurre
TERRAIN ET MAISONSur ce terrain, nous vous proposons cette maison neuve : la Focus Family. Conçue par Babeau-Seguin, constructeur offrant le meilleur rapport qualité/prix du marché, cette maison familiale à tout petit prix est idéale pour ceux qui souhaitent allier confort et économies.Avec une surface habitable de 89 m², la Focus Family vous offre un espace généreux et bien agencé. Elle comprend 4 chambres, parfaites pour accueillir toute votre famille, ainsi qu’un grand séjour traversant avec cuisine ouverte, pour un total de 4 pièces. Vous apprécierez également le garage intégré, pratique pour stationner votre véhicule ou pour du rangement supplémentaire.L’enduit bi-ton de la façade apporte une touche moderne et élégante à cette maison. De plus, les options les plus demandées par nos clients, comme les menuiseries en aluminium, sont disponibles pour personnaliser votre future habitation selon vos goûts.La Focus Family est une maison basse consommation, conforme à la réglementation environnementale RE2020. Elle est équipée des dernières innovations technologiques pour garantir une isolation thermique et phonique optimale, tout en étant économique et respectueuse de l’environnement.Ne faites aucune concession sur la qualité avec cette maison low cost de luxe. Babeau-Seguin met tout son savoir-faire et son professionnalisme dans la construction de la gamme Focus, en utilisant les meilleurs matériaux et une charpente traditionnelle.N’attendez plus pour réaliser votre projet de maison familiale à petit prix avec la Focus Family, une maison spacieuse, écolo et accessible à tous les budgets.
Seurre
TERRAINDécouvrez ce superbe terrain à bâtir de 599 m², idéalement situé à Seurre, au cœur du département de la Côte d’Or. Ce terrain viabilisé, ensoleillé et arboré, offre un cadre champêtre exceptionnel, loin du tumulte urbain, tout en restant à proximité des commodités nécessaires à votre quotidien. C’est l’opportunité parfaite pour concrétiser votre projet de construction de maison dans un environnement paisible et agréable. Seurre, charmante commune de la Bourgogne-Franche-Comté, vous séduira par ses attraits naturels et son dynamisme local. Profitez des diverses attractions à proximité, des services accessibles tels que commerces, écoles et infrastructures sportives, qui facilitent votre vie quotidienne. L’environnement verdoyant et calme de la région contribue à une qualité de vie appréciable, tandis que la richesse culturelle et gastronomique de la Bourgogne vous invite à de multiples découvertes. Ne manquez pas cette occasion unique d’acquérir un terrain d’exception propice à la réalisation de vos rêves. Contactez-nous sans tarder pour en savoir plus sur cette belle opportunité ! À noter qu’en tant que constructeur, nous ne sommes pas mandatés pour réaliser la vente de ce terrain.
Seurre
TERRAIN ET MAISONSur ce terrain, nous vous proposons cette maison neuve : le modèle Focus Cosy city. Conçue par Babeau-Seguin, constructeur reconnu pour offrir le meilleur rapport qualité/prix du marché, cette maison de plain-pied traditionnelle offre une surface habitable de 79 m², parfaitement optimisée pour répondre aux besoins des familles.Idéale pour les petits budgets, la Focus Cosy city est une maison neuve écologique, conforme aux normes strictes de la RE2020. Elle garantit une basse consommation énergétique, ce qui se traduit par des coûts d’usage et d’entretien très faibles, notamment pour le chauffage.Cette maison se compose de 4 pièces, dont 3 chambres lumineuses, parfaites pour accueillir une famille. Le grand séjour de 33 m² est baigné de lumière naturelle grâce à une baie vitrée coulissante, créant un espace de vie convivial et chaleureux. La cuisine ouverte sur le séjour permet de partager des moments agréables en famille ou entre amis. Un cellier, situé dans le prolongement de la cuisine, offre un espace de rangement pratique pour les provisions.La maison dispose également d’une salle de bain avec des WC séparés, offrant un espace de vie fonctionnel et bien organisé pour toute la famille. Les options les plus demandées par les clients, telles que la domotique et l’enduit bi-ton, peuvent être intégrées pour personnaliser votre maison selon vos préférences.En résumé, le modèle Focus Cosy city est une maison neuve économique et écologique, qui combine une conception pratique avec une haute efficacité énergétique. Elle offre ainsi un cadre de vie confortable et abordable pour les familles à la recherche d’un logement durable et respectueux de l’environnement. Économie à la construction, économie à la consommation !
Seurre
TERRAINDécouvrez ce magnifique terrain à vendre, offrant une surface généreuse de 631 m², idéal pour la construction de votre future maison. Situé dans un lotissement viabilisé à Seurre, ce terrain bénéficie d’un emplacement privilégié dans un quartier recherché, synonyme de qualité de vie. Sa configuration permet de nombreuses possibilités architecturales, vous permettant de concrétiser votre projet de rêve en toute sérénité. Seurre, une charmante ville du département de la Côte d’Or en Bourgogne-Franche-Comté, est reconnue pour ses nombreuses attractions locales et ses commodités. Profitez d’une vie agréable à proximité de commerces, d’écoles et d’espaces verts qui embellissent le quotidien. La renommée de la région pour sa gastronomie et ses paysages pittoresques en fait une destination de choix pour les amateurs de nature et de culture. Ce terrain représente une opportunité rare dans un cadre enchanteur, où il fera bon vivre. Ne laissez pas passer cette chance unique d’acquérir un terrain au potentiel exceptionnel. Contactez-nous pour discuter de ce bien d’exception qui pourrait devenir le socle de votre future maison. À noter qu’en tant que constructeur, nous ne sommes pas mandatés pour réaliser la vente de ce terrain.
Seurre
TERRAINÀ la recherche d’un terrain d’exception pour construire la maison de vos rêves ? Découvrez ce magnifique terrain de 596 m², situé dans un lotissement viabilisé à Seurre, dans la Côte d’Or. Idéalement conçu pour un projet de construction résidentielle, ce terrain saura séduire par ses caractéristiques uniques et son environnement privilégié. Profitez d’une qualité de vie exceptionnelle dans cette charmante commune de Bourgogne-Franche-Comté, où le calme et la sérénité règnent en maîtres. Seurre est une ville recherchée pour son dynamisme et sa proximité avec les commodités essentielles. Vous serez à proximité des commerces, offrant un accès facile aux services nécessaires au quotidien. Le quartier arboré et ensoleillé, réputé pour sa sécurité, saura ravir les familles et les amoureux de la nature. Ne manquez pas l’opportunité de devenir propriétaire dans cette commune qui allie confort de vie et accessibilité aux attractions locales. Ce terrain représente une opportunité unique d’investissement dans un environnement agréable et accueillant. Ne laissez pas passer cette chance de réaliser votre projet immobilier dans un cadre idyllique. Contactez-nous dès aujourd’hui pour découvrir ce terrain et envisager cette opportunité d’achat unique. À noter qu’en tant que constructeur, nous ne sommes pas mandatés pour réaliser la vente de ce terrain.
L’actualité immobilière à Seurre
27/11/2023
02/11/2023
30/10/2023
20/10/2023
16/10/2023
16/10/2023