Maison à construire à Bobital (22100)
Images
Description
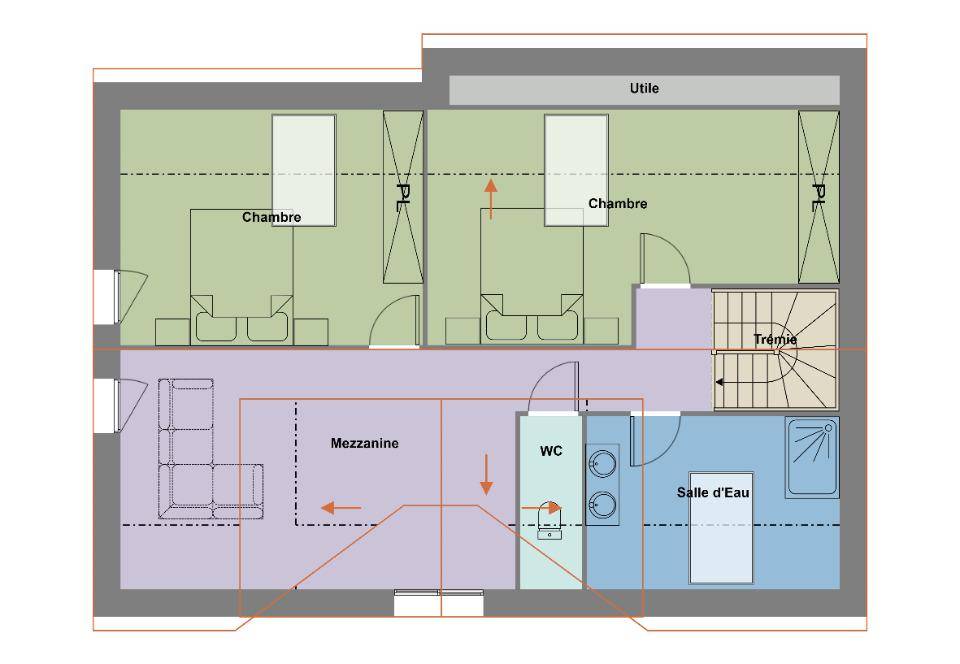
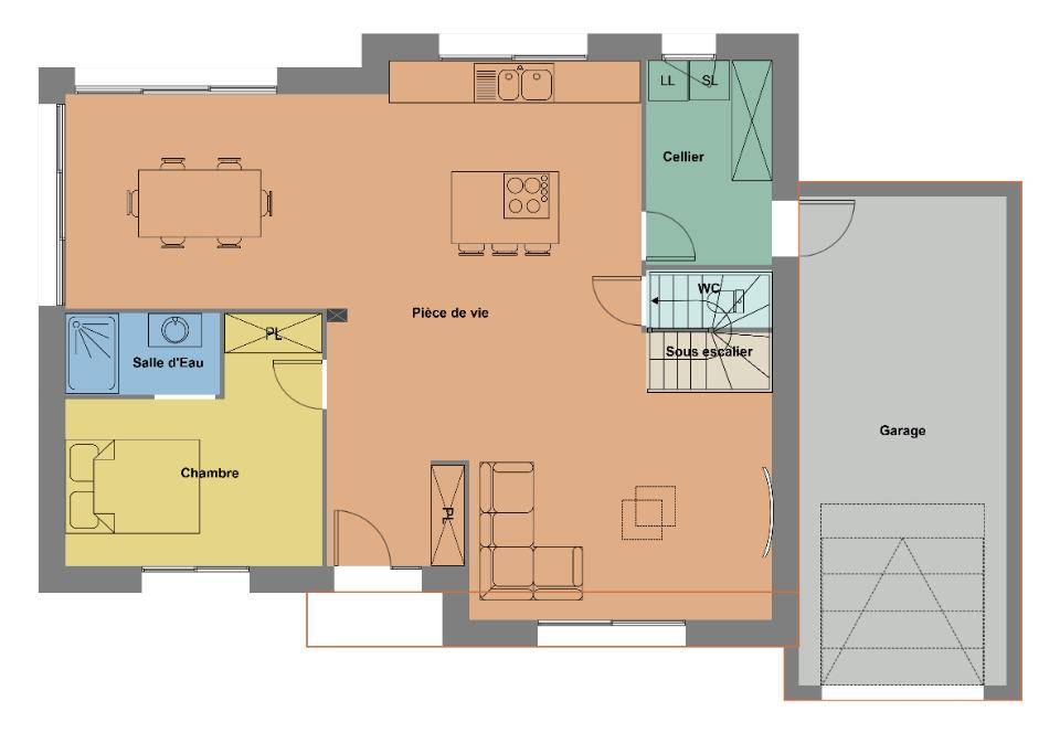
Maison T5 (110 m²) en vente à Bobital
PROCHE DE SAINT-MALO - MAISON 5 PIÈCES NEUVE
À vendre : localisée à 18 km de la Manche et à 27 km de Saint-Malo, nous sommes ravis de vous proposer à Bobital (22100), cette maison de 5 pièces de 110 m².
Cette maison comporte 2 niveaux. Son intérieur propose quatre chambres, une cuisine et deux salles de bains.
Elle est proposée à l'achat pour 300 350 €.
Contactez Cyril RENVAZE ((Numéro supprimé)) pour obtenir de plus amples renseignements sur la maison ou sur les modalités de vente. Concrétisez vos projets immobiliers avec Maisons de l'Avenir Cesson-Sévigné.
Logement susceptibles de vous intéresser
Nous vous proposons de découvrir aussi cette sélection de logements situés à moins de 10km de Bobital et qui seraient susceptibles de vous intéresser.
Le Hinglé
TERRAIN ET MAISONMaison de 5 pièces (121 m²) en vente au HingléIDÉALEMENT SITUÉE – PROCHE DE DINANMAISON 5 PIÈCES NEUVEÀ vendre : localisée à 18 km de la Manche et à 28 km de Saint-Malo, laissez vous charmer par, idéalement située dans Le Hinglé (22100), cette maison de 5 pièces de 121 m² et de 520 m² de terrain. Elle dispose de quatre chambres, d’une cuisine et de deux salles de bains.Cette maison compte 2 niveaux. Elle est neuve.La maison est située dans un quartier convoité. On trouve des écoles de tous types à moins de 10 minutes en voiture, tout comme huit structures d’accueil pour les enfants en bas âge à moins de 10 minutes à pied. Niveau transports, il y a la gare Dinan à moins de 10 minutes en voiture. La nationale N176 est accessible à 6 km. On trouve des tennis, des bibliothèques, un bassin de natation, des commerces, des boulangeries, des supermarchés, des épiceries et deux supérettes dans les environs. Enfin, le marché Place Duguesclin anime les environs chaque jeudi matin.Elle est proposée à l’achat pour 325 700 €.Contactez Laetitia AMIRI (tél : (Numéro supprimé)) pour toute question sur la propriété. Maisons de l’Avenir Saint-Carné vous accompagne à toutes les étapes de votre projet et dans toutes vos démarches.
Bobital
TERRAIN ET MAISONMaison F3 (65 m²) à vendre à BobitalIDÉALEMENT SITUÉE – PROCHE DE DINANMAISON BOIS QUALITATIVE, ECONOMIQUE ET DURABLEMAISON 3 PIÈCES NEUVEÀ 18 km de la Manche et à 27 km de Saint-Malo, ayez le coup de coeur pour cette maison de 3 pièces de plain-pied de 65 m² et de 261 m² de terrain à vendre, idéalement située dans Bobital (22100).Son intérieur dispose de deux chambres, d’une cuisine et d’une salle de bains. La maison est neuve.Cette maison se trouve dans un secteur recherché. Il y a l’École Primaire Publique les Acacias à moins de 10 minutes à pied. Niveau transports en commun, on trouve deux gares (Dinan et Corseul-Languenan) à moins de 10 minutes en voiture. On trouve un accès à la nationale N176 à 4 km. Il y a une bibliothèque et une boulangerie à quelques minutes à peine.Elle est à vendre pour la somme de 197 350 €.N’hésitez pas à prendre contact avec Laetitia AMIRI (tél : (Numéro supprimé)) pour plus de renseignements sur la maison. Maisons de l’Avenir Saint-Carné vous accompagne dans tous vos projets immobiliers et à toutes les étapes de votre projet.
Bobital
TERRAINVENTE : terrain de 261 m² à BobitalIDÉALEMENT SITUÉ – PROCHE DE DINANÀ Bobital (22100) à 18 km de la Manche et à deux pas de Saint-Malo, découvrez ce terrain de 261 m². Dans un quartier recherché, ce terrain idéalement situé est proche des commerces et des écoles. Il y a l’École Primaire Publique les Acacias à moins de 10 minutes à pied. Niveau transports, on trouve les gares Dinan et Corseul-Languenan à moins de 10 minutes en voiture. La nationale N176 est accessible à 4 km. Il y a une bibliothèque et une boulangerie à proximité du terrain.Son prix de vente est de 41 300 €. N’hésitez pas à prendre contact avec Laetitia AMIRI (tél : (Numéro supprimé)) pour toute question sur ce terrain ou sur les démarches à suivre. Maisons de l’Avenir Saint-Carné vous accompagne à toutes les étapes de l’achat et dans tous vos projets immobiliers.
Taden
TERRAIN ET MAISONVENTE : maison F3 (57 m²) à TadenIDÉALEMENT SITUÉE – PROCHE DE DINANMAISON 3 PIÈCES NEUVEÀ 6 km de la Manche et à quelques kilomètres de Saint-Malo, à vendre idéalement située dans Taden (22100), notre agence Maisons de l’Avenir Saint-Carné est ravie de vous proposer cette maison de 3 pièces de plain-pied de 57 m².Son intérieur dispose de deux chambres, d’une cuisine et d’une salle de bains. Cette maison est neuve.Le terrain de la propriété est de 364 m².Cette maison se situe dans un quartier prisé. On trouve l’École Maternelle Publique du Moulin à moins de 10 minutes à pied et une crèche. Niveau transports en commun, il y a cinq gares à moins de 10 minutes en voiture. La nationale N176 est accessible à 3 km. On trouve un tennis et un commerce dans les environs.Elle est proposée à l’achat pour 188 050 €.Prenez contact avec Laetitia AMIRI ((Numéro supprimé)) pour toute information sur la maison, sur les modalités de vente ou sur les démarches à suivre. Maisons de l’Avenir Saint-Carné est là pour vous accompagner à toutes les étapes de l’achat.
Bobital
TERRAIN ET MAISONVENTE : maison F5 (89 m²) à BobitalIDÉALEMENT SITUÉE – PROCHE DE DINANMAISON 5 PIÈCES NEUVEÀ 18 km de la Manche et à deux pas de Saint-Malo, à vendre idéalement située dans Bobital (22100), nous sommes ravis de vous présenter cette maison de 5 pièces de 89 m².Il s’agit d’une maison de 2 niveaux. Son intérieur propose quatre chambres, une cuisine et deux salles de bains. Cette maison est neuve.Le terrain de la propriété s’étend sur 261 m².Le bien se trouve dans un quartier prisé. Il y a l’École Primaire Publique les Acacias à moins de 10 minutes à pied. Niveau transports, on trouve deux gares (Dinan et Corseul-Languenan) à moins de 10 minutes en voiture. La nationale N176 est accessible à 4 km. Il y a une bibliothèque et une boulangerie dans les environs.Il est proposé à l’achat pour 218 000 €.Contactez notre agence (AMIRI Laetitia : (Numéro supprimé)) pour plus de renseignements sur la maison ou sur les modalités de vente.
Le Hinglé
TERRAIN ET MAISONMaison T5 (140 m²) à vendre au HingléIDÉALEMENT SITUÉE – PROCHE DE DINANMAISON 5 PIÈCES NEUVEÀ vendre : localisée à 18 km de la Manche et à 28 km de Saint-Malo, nous sommes heureux de vous proposer cette maison de 5 pièces de 140 m² idéalement située dans Le Hinglé (22100). Son intérieur offre quatre chambres, une cuisine et deux salles de bains.Le terrain de cette maison s’étend sur 520 m².Il s’agit d’une maison de 2 niveaux. Elle est neuve.Cette maison se trouve dans un quartier recherché. Des écoles de tous types (de la maternelle au lycée) sont implantées à moins de 10 minutes en voiture, tout comme huit structures d’accueil pour les tout-petits à moins de 10 minutes à pied. Côté transports en commun, on trouve la gare Dinan à moins de 10 minutes en voiture. Il y a un accès à la nationale N176 à 6 km. Il y a des tennis, des bibliothèques, un bassin de natation, des commerces, des boulangeries, des supermarchés, deux supérettes et des bureaux de poste à quelques minutes à peine. Ne manquez pas le marché Place Duguesclin tous les jeudis matin.Elle est à vendre pour la somme de 349 900 €.Contactez notre agence (AMIRI Laetitia : (Numéro supprimé)) pour toute question sur la maison. Maisons de l’Avenir Saint-Carné vous accompagne à toutes les étapes de l’achat et dans toutes vos démarches.
Bobital
TERRAIN ET MAISONMaison T3 (85 m²) en vente à BobitalIDÉALEMENT SITUÉE – PROCHE DE DINANMAISON 3 PIÈCES NEUVEÀ vendre : située à 18 km de la Manche et à quelques kilomètres de Saint-Malo, laissez vous charmer par cette maison de 3 pièces de plain-pied de 85 m² et de 261 m² de terrain idéalement située dans Bobital (22100). Conçue de plain-pied, elle dispose de deux chambres, d’une cuisine et d’une salle de bains.La maison est neuve.La maison est située dans un quartier attractif. Il y a l’École Primaire Publique les Acacias à moins de 10 minutes à pied. Niveau transports en commun, on trouve deux gares (Dinan et Corseul-Languenan) à moins de 10 minutes en voiture. On trouve un accès à la nationale N176 à 4 km. Il y a une bibliothèque et une boulangerie dans les environs.Elle est à vendre pour la somme de 217 300 €.Contactez Laetitia AMIRI ((Numéro supprimé)) pour plus de renseignements sur la maison. Maisons de l’Avenir Saint-Carné vous accompagne à toutes les étapes de votre projet et dans tous vos projets immobiliers.
Le Hinglé
TERRAIN ET MAISONVENTE d’une maison de 5 pièces (97 m²) au HingléIDÉALEMENT SITUÉE – PROCHE DE DINANMAISON BOIS QUALITATIVE, ECONOMIQUE ET DURABLE 5 PIÈCES NEUVEÀ 18 km de la Manche et à 28 km de Saint-Malo, notre agence Maisons de l’Avenir Saint-Carné est ravie de vous présenter cette maison de 5 pièces de 97 m² à vendre idéalement située dans Le Hinglé (22100).Cette maison compte 2 niveaux. Son intérieur se divise en quatre chambres, une cuisine et deux salles de bains. La maison est neuve.Le terrain de la propriété s’étend sur 387 m².Cette maison se trouve dans un quartier recherché. Il y a des écoles du primaire et du secondaire à moins de 10 minutes en voiture, tout comme huit structures d’accueil pour la petite enfance à moins de 10 minutes à pied. Côté transports en commun, on trouve la gare Dinan à moins de 10 minutes en voiture. La nationale N176 est accessible à 6 km. Il y a des tennis, des bibliothèques, un bassin de natation, des commerces, des boulangeries, des supermarchés, des bureaux de poste et deux supérettes dans les environs. Le marché Place Duguesclin a lieu chaque jeudi matin.Elle est proposée à l’achat pour 276 850 €.Contactez notre constructeur (Laetitia AMIRI : (Numéro supprimé)) pour plus de renseignements sur la maison.
Le Hinglé
TERRAIN ET MAISONVENTE : maison de 6 pièces (118 m²) au HingléIDÉALEMENT SITUÉE – PROCHE DE DINANMAISON 6 PIÈCES NEUVEÀ vendre : à 18 km de la Manche et à 28 km de Saint-Malo, venez découvrir, idéalement située dans Le Hinglé (22100), cette maison de 6 pièces de 118 m² et de 520 m² de terrain.Cette maison compte 2 niveaux. Elle comporte cinq chambres, une cuisine et deux salles de bains. Cette maison est neuve.La maison se trouve dans un secteur prisé. Il y a tous les types d’établissements scolaires (de la maternelle au lycée) à moins de 10 minutes en voiture, tout comme huit crèches à moins de 10 minutes à pied. Niveau transports en commun, on trouve la gare Dinan à moins de 10 minutes en voiture. Il y a un accès à la nationale N176 à 6 km. Il y a des tennis, des bibliothèques, un bassin de natation, des commerces, des boulangeries, des supermarchés, des boucheries-charcuteries et des épiceries à proximité. Ne manquez pas le marché Place Duguesclin tous les jeudis matin.Son prix de vente est de 258 350 €.Prenez contact avec notre agence (AMIRI Laetitia : (Numéro supprimé)) pour toute information sur la maison ou sur les démarches à suivre.
L’actualité immobilière à Bobital
27/11/2023
02/11/2023
30/10/2023
20/10/2023
16/10/2023
16/10/2023