Maison à construire à Châtelaudren (22170)
Images
Description
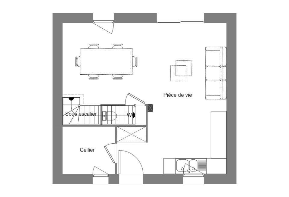
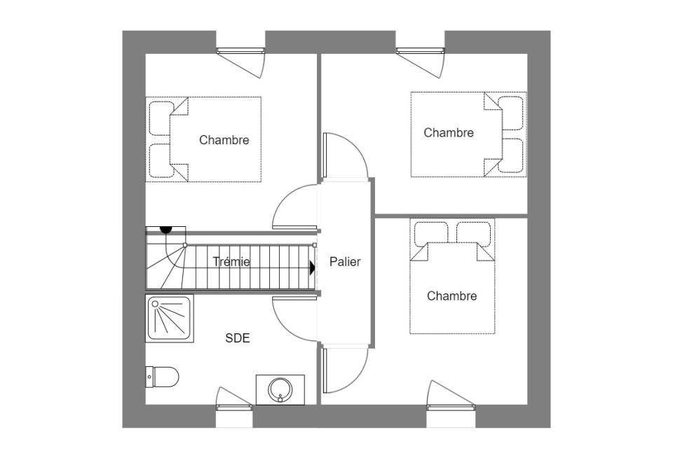
VENTE d'une maison T4 (67 m²) à Châtelaudren
PROCHE DE SAINT-BRIEUC - MAISON 4 PIÈCES NEUVE
À 18 km de la Manche et à 16 km de Saint-Brieuc, à vendre à Châtelaudren (22170), venez découvrir cette maison de 4 pièces de 67 m². Son intérieur est composé de trois chambres, d'une cuisine et d'une salle de bains.
Le terrain du bien s'étend sur 880 m².
Cette maison compte 2 niveaux. Elle est neuve.
Niveau transports, il y a les gares Châtelaudren-Plouagat et Plouvara-Plerneuf à moins de 10 minutes en voiture. La nationale N12 est accessible à 2 km. On trouve une bibliothèque, des commerces, un supermarché, trois boulangeries, un bureau de poste et deux boucheries-charcuteries dans les environs. Enfin, le marché Place de la République anime le quartier tous les lundis matin.
Elle est proposée à l'achat pour 180 000 €.
Prenez contact avec notre agence (ROGER Samuel : (Numéro supprimé)) pour obtenir de plus amples renseignements sur cette maison et sur les modalités de vente.
Logement susceptibles de vous intéresser
Nous vous proposons de découvrir aussi cette sélection de logements situés à moins de 10km de Châtelaudren-Plouagat et qui seraient susceptibles de vous intéresser.
Châtelaudren-Plouagat
TERRAINVENTE d’un terrain de 880 m² à ChâtelaudrenPROCHE DE SAINT-BRIEUCÀ 18 km de la Manche et à quelques kilomètres de Saint-Brieuc à Châtelaudren (22170), grand terrain. Il est prêt à accueillir votre résidence principale ou secondaire pour toute la famille. Ce terrain est proche des commerces et des écoles. Côté transports, il y a les gares Châtelaudren-Plouagat et Plouvara-Plerneuf à moins de 10 minutes en voiture. On trouve un accès à la nationale N12 à 2 km. On trouve une bibliothèque, des commerces, un supermarché, trois boulangeries, deux boucheries-charcuteries et un bureau de poste à proximité du terrain. Ne manquez pas le marché Place de la République tous les lundis matin.Son prix de vente est de 44 000 €. Contactez Samuel ROGER (tél : (Numéro supprimé)) pour obtenir de plus amples informations sur le terrain, sur les démarches à suivre ou sur les modalités de vente. Concrétisez vos projets immobiliers avec Maisons de l’Avenir Saint-Brieuc.
Châtelaudren-Plouagat
TERRAIN ET MAISONMaison T4 (70 m²) en vente à ChâtelaudrenMAISON 4 PIÈCES NEUVE – PROCHE DE SAINT-BRIEUCÀ 18 km de la Manche et à 16 km de Saint-Brieuc, Maisons de l’Avenir Saint-Brieuc vous présente cette maison de 4 pièces de plain-pied de 70 m² et de 880 m² de terrain à vendre à Châtelaudren (22170). Son intérieur offre trois chambres, une cuisine et une salle de bains.La maison est neuve.Côté transports en commun, il y a deux gares (Châtelaudren-Plouagat et Plouvara-Plerneuf) à moins de 10 minutes en voiture. Il y a un accès à la nationale N12 à 2 km. On trouve une bibliothèque, des commerces, un supermarché, trois boulangeries, un bureau de poste et deux boucheries-charcuteries à quelques minutes de la maison. Ne manquez pas le marché Place de la République tous les lundis matin.Son prix de vente est de 204 000 €.Contactez Samuel ROGER ((Numéro supprimé)) pour toute information sur la maison, sur les démarches à suivre ou sur les modalités de vente.
Châtelaudren-Plouagat
TERRAIN ET MAISONVENTE d’une maison de 4 pièces (86 m²) à ChâtelaudrenMAISON 4 PIÈCES NEUVE – PROCHE DE SAINT-BRIEUCÀ vendre : située à 18 km de la Manche et à deux pas de Saint-Brieuc, venez découvrir cette maison de 4 pièces de 86 m² et de 880 m² de terrain à Châtelaudren (22170). Son intérieur se divise en trois chambres, une cuisine et une salle de bains.Cette maison compte 2 niveaux. Elle est neuve.Côté transports, il y a deux gares (Châtelaudren-Plouagat et Plouvara-Plerneuf) à moins de 10 minutes en voiture. On trouve un accès à la nationale N12 à 2 km. On trouve une bibliothèque, des commerces, un supermarché, trois boulangeries, un bureau de poste et deux boucheries-charcuteries à quelques minutes à peine. Le marché Place de la République anime le quartier chaque lundi matin.Son prix de vente est de 244 000 €.Prenez contact avec notre agence (Samuel ROGER : (Numéro supprimé)) pour toute information sur la maison ou sur les modalités de vente.
Châtelaudren-Plouagat
TERRAIN ET MAISONVENTE d’une maison T4 (67 m²) à ChâtelaudrenPROCHE DE SAINT-BRIEUC – MAISON 4 PIÈCES NEUVEÀ 18 km de la Manche et à 16 km de Saint-Brieuc, à vendre à Châtelaudren (22170), venez découvrir cette maison de 4 pièces de 67 m². Son intérieur est composé de trois chambres, d’une cuisine et d’une salle de bains.Le terrain du bien s’étend sur 880 m².Cette maison compte 2 niveaux. Elle est neuve.Niveau transports, il y a les gares Châtelaudren-Plouagat et Plouvara-Plerneuf à moins de 10 minutes en voiture. La nationale N12 est accessible à 2 km. On trouve une bibliothèque, des commerces, un supermarché, trois boulangeries, un bureau de poste et deux boucheries-charcuteries dans les environs. Enfin, le marché Place de la République anime le quartier tous les lundis matin.Elle est proposée à l’achat pour 180 000 €.Prenez contact avec notre agence (ROGER Samuel : (Numéro supprimé)) pour obtenir de plus amples renseignements sur cette maison et sur les modalités de vente.
Châtelaudren-Plouagat
TERRAINChâtelaudren : terrain de 600 m² à vendrePROCHE DE SAINT-BRIEUCGrand terrain à vendre à 18 km de la Manche et à quelques kilomètres de Saint-Brieuc. De 600 m², ce terrain se situe dans Châtelaudren (22170). Ce terrain est proche des commerces et des écoles. Côté transports, il y a les gares Châtelaudren-Plouagat et Plouvara-Plerneuf à moins de 10 minutes en voiture. La nationale N12 est accessible à 2 km. On trouve une bibliothèque, des commerces, un supermarché, trois boulangeries, un bureau de poste et deux boucheries-charcuteries à proximité du bien. Le marché Place de la République a lieu chaque lundi matin.Ce terrain est à vendre pour la somme de 34 000 €. Contactez Samuel ROGER ((Numéro supprimé)) pour toute information sur le terrain, sur les démarches à suivre ou sur les modalités de vente. Maisons de l’Avenir Saint-Brieuc est là pour vous accompagner dans tous vos projets immobiliers.
Châtelaudren-Plouagat
TERRAIN ET MAISONVENTE d’une maison F3 (55 m²) à ChâtelaudrenPROCHE DE SAINT-BRIEUC – MAISON 3 PIÈCES NEUVEÀ 18 km de la Manche et à deux pas de Saint-Brieuc, découvrez cette maison de 3 pièces de plain-pied de 55 m² et de 600 m² de terrain à Châtelaudren (22170).Elle dispose de deux chambres, d’une cuisine et d’une salle de bains. La maison est neuve.Niveau transports, il y a deux gares (Châtelaudren-Plouagat et Plouvara-Plerneuf) à moins de 10 minutes en voiture. On trouve un accès à la nationale N12 à 2 km. On trouve une bibliothèque, des commerces, un supermarché, trois boulangeries, un bureau de poste et deux boucheries-charcuteries à quelques minutes du logement. Ne manquez pas le marché Place de la République chaque lundi matin.Elle est à vendre pour la somme de 175 000 €.Prenez contact avec notre agence (Samuel ROGER : (Numéro supprimé)) pour tout renseignement sur cette maison ou sur les démarches à suivre. Maisons de l’Avenir Saint-Brieuc vous accompagne à toutes les étapes de votre projet et dans tous vos projets immobiliers.
Châtelaudren-Plouagat
TERRAIN ET MAISONChâtelaudren : maison T4 (86 m²) à vendrePROCHE DE SAINT-BRIEUC – MAISON 4 PIÈCES NEUVEEn vente : à 18 km de la Manche et à 16 km de Saint-Brieuc, nous vous présentons cette maison de 4 pièces de 86 m² à Châtelaudren (22170). Elle se divise en trois chambres, une cuisine et une salle de bains.Le terrain du bien s’étend sur 600 m².Il s’agit d’une maison de 2 niveaux. Elle est neuve.Côté transports en commun, on trouve les gares Châtelaudren-Plouagat et Plouvara-Plerneuf à moins de 10 minutes en voiture. La nationale N12 est accessible à 2 km. Il y a une bibliothèque, des commerces, un supermarché, trois boulangeries, deux boucheries-charcuteries et un bureau de poste à proximité de la maison. Enfin, le marché Place de la République a lieu chaque lundi matin.Elle est proposée à l’achat pour 217 000 €.N’hésitez pas à prendre contact avec notre agence (ROGER Samuel : (Numéro supprimé)) pour tout renseignement sur cette maison et sur les modalités de vente.
Châtelaudren-Plouagat
TERRAIN ET MAISONVENTE d’une maison T5 (88 m²) à ChâtelaudrenMAISON 5 PIÈCES NEUVE – PROCHE DE SAINT-BRIEUCÀ vendre : à 18 km de la Manche et à 16 km de Saint-Brieuc, à Châtelaudren (22170), ayez le coup de coeur pour cette maison de 5 pièces de 88 m² et de 600 m² de terrain.Cette maison possède 2 niveaux. Son intérieur propose quatre chambres, une cuisine et une salle de bains. Cette maison est neuve.Niveau transports en commun, il y a deux gares (Châtelaudren-Plouagat et Plouvara-Plerneuf) à moins de 10 minutes en voiture. La nationale N12 est accessible à 2 km. On trouve une bibliothèque, des commerces, un supermarché, trois boulangeries, un bureau de poste et deux boucheries-charcuteries à quelques minutes. Enfin, le marché Place de la République anime le quartier chaque lundi matin.Son prix de vente est de 224 000 €.Contactez notre agence (ROGER Samuel : (Numéro supprimé)) pour tout renseignement sur la maison. Maisons de l’Avenir Saint-Brieuc est là pour vous accompagner dans toutes vos démarches.
Châtelaudren-Plouagat
TERRAINPlouagat : terrain de 1 062 m² à vendrePROCHE DE SAINT-BRIEUCGrand terrain à 21 km de la Manche et à deux pas de Saint-Brieuc. De 1 062 m², ce terrain se situe dans Plouagat (22170). Le terrain est proche des commerces et des écoles. L’École Primaire Publique de Plouagat et l’École Primaire Privée Sainte Thérèse sont implantées à moins de 10 minutes à pied. Niveau transports en commun, on trouve les gares Châtelaudren-Plouagat et Plouvara-Plerneuf à moins de 10 minutes en voiture. Il y a un accès à la nationale N12 à 1 km. Il y a une bibliothèque, une boulangerie, deux commerces, deux supermarchés, un bureau de poste et une supérette à proximité.Ce terrain est proposé à l’achat pour 89 800 €. Prenez contact avec Samuel ROGER (tél : (Numéro supprimé)) pour toute question sur le terrain ou sur les modalités de vente. Donnez vie à vos projets immobiliers avec Maisons de l’Avenir Saint-Brieuc.
L’actualité immobilière à Châtelaudren-Plouagat
27/11/2023
02/11/2023
30/10/2023
20/10/2023
16/10/2023
16/10/2023