Maison à construire à Dinan (22100)
Images
Description
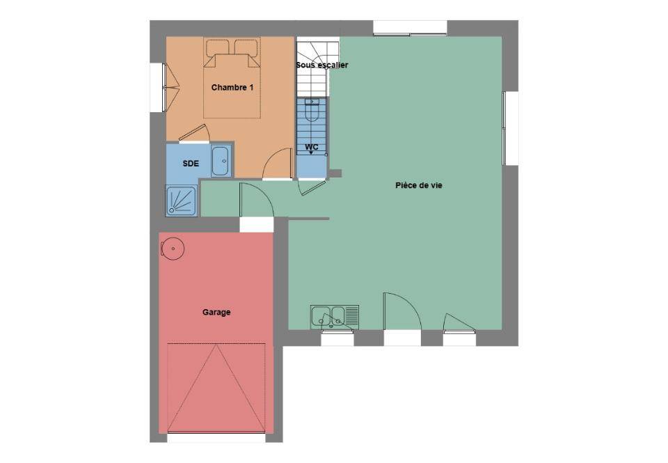
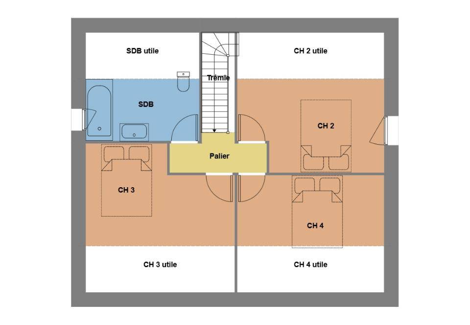
VENTE d'une maison de 5 pièces (102 m²) à Dinan
EMPLACEMENT PRIVILÉGIÉ - MAISON 5 PIÈCES NEUVE
À vendre : à 10 km de la Manche et à quelques kilomètres de Saint-Malo, Maisons de l'Avenir Saint-Carné vous propose, bénéficiant d'un emplacement d'exception dans Dinan (22100), cette maison de 5 pièces de 102 m² et de 350 m² de terrain.
Cette maison possède 2 niveaux. Elle propose quatre chambres, une cuisine et deux salles de bains. Cette maison est neuve.
La maison se trouve dans un secteur prisé. Des écoles (de la maternelle au lycée) sont implantées à moins de 10 minutes à pied. Niveau transports, il y a la gare Dinan à quelques pas de la maison. La nationale N176 est accessible à 2 km. On trouve une bibliothèque, un tennis, des commerces, des boulangeries, un supermarché, un bureau de poste et des boucheries-charcuteries dans les environs. Ne manquez pas le marché Place Duguesclin chaque jeudi matin.
Elle est proposée à l'achat pour 380 300 €.
Contactez Laetitia AMIRI ((Numéro supprimé)) pour obtenir de plus amples informations sur la maison. Maisons de l'Avenir Saint-Carné vous accompagne dans tous vos projets immobiliers et dans toutes vos démarches.
Logement susceptibles de vous intéresser
Nous vous proposons de découvrir aussi cette sélection de logements situés à moins de 10km de Dinan et qui seraient susceptibles de vous intéresser.
Saint-Samson-sur-Rance
TERRAINVENTE : terrain de 702 m² à Saint-Samson-sur-RancePROCHE DE SAINT-MALOÀ Saint-Samson-sur-Rance (22100) en vente à 5 km de la Manche et à deux pas de Saint-Malo, venez découvrir ce terrain de 702 m². Il y a l’École Primaire Publique de St Samson Sur Rance à moins de 10 minutes à pied. Niveau transports en commun, on trouve cinq gares à moins de 10 minutes en voiture. La nationale N176 est accessible à 2 km. Il y a une bibliothèque, deux boulangeries, une épicerie et un bureau de poste dans les environs.Il est proposé à l’achat pour 81 000 €. Prenez contact avec Quentin LEZOUR (tél : (Numéro supprimé)) pour plus d’informations sur le terrain ou sur les modalités de vente. Donnez vie à vos projets immobiliers avec Maisons de l’Avenir Saint-Carné.
Saint-Samson-sur-Rance
TERRAIN ET MAISONVENTE : maison de 4 pièces (100 m²) à Saint-Samson-sur-RanceMAISON 4 PIÈCES NEUVE – PROCHE DE SAINT-MALOÀ 5 km de la Manche et à deux pas de Saint-Malo, nous vous présentons cette maison de 4 pièces de 100 m² à Saint-Samson-sur-Rance (22100).Il s’agit d’une maison de 2 niveaux. Elle inclut quatre chambres, une cuisine et deux salles de bains. La maison est neuve.Le terrain de la propriété s’étend sur 702 m².L’École Primaire Publique de St Samson Sur Rance est implantée à moins de 10 minutes à pied. Niveau transports en commun, il y a cinq gares à moins de 10 minutes en voiture. La nationale N176 est accessible à 2 km. On trouve une bibliothèque, deux boulangeries, une épicerie et un bureau de poste dans les environs.Elle est à vendre pour la somme de 295 000 €.Contactez notre agence (LEZOUR Quentin : (Numéro supprimé)) pour toute information sur cette maison, sur les démarches à suivre et sur les modalités de vente. Maisons de l’Avenir Saint-Carné vous accompagne dans tous vos projets immobiliers et à toutes les étapes de l’achat.
Saint-Samson-sur-Rance
TERRAIN ET MAISONVENTE d’une maison T3 (80 m²) à Saint-Samson-sur-RancePROCHE DE SAINT-MALO – MAISON 3 PIÈCES NEUVEÀ vendre : à 5 km de la Manche et à deux pas de Saint-Malo, nous sommes heureux de vous proposer cette maison de 3 pièces de 80 m² et de 702 m² de terrain à Saint-Samson-sur-Rance (22100).Il s’agit d’une maison de 2 niveaux. Son intérieur comporte trois chambres, une cuisine et une salle de bains. La maison est neuve.L’École Primaire Publique de St Samson Sur Rance se trouve à moins de 10 minutes à pied. Niveau transports en commun, il y a cinq gares à moins de 10 minutes en voiture. La nationale N176 est accessible à 2 km. On trouve une bibliothèque, deux boulangeries, une épicerie et un bureau de poste à proximité du logement.Elle est proposée à l’achat pour 268 000 €.Contactez Quentin LEZOUR (tél : (Numéro supprimé)) pour tout renseignement sur cette propriété ou sur les démarches à suivre.
Saint-Samson-sur-Rance
TERRAIN ET MAISONSaint-Samson-sur-Rance : maison BOIS F3 (71 m²) en venteMAISON 3 PIÈCES NEUVE – PROCHE DE SAINT-MALOEn vente : à 5 km de la Manche et à quelques kilomètres de Saint-Malo, votre agence Maisons de l’Avenir Saint-Carné est ravie de vous présenter cette maison de 3 pièces de 71 m² à Saint-Samson-sur-Rance (22100).Cette maison comporte 2 niveaux. Son intérieur propose deux chambres, une cuisine et une salle de bains. Cette maison est neuve.Le terrain de la propriété s’étend sur 702 m².Il y a l’École Primaire Publique de St Samson Sur Rance à moins de 10 minutes à pied. Côté transports en commun, on trouve cinq gares à moins de 10 minutes en voiture. Il y a un accès à la nationale N176 à 2 km. Il y a une bibliothèque, deux boulangeries, une épicerie et un bureau de poste à quelques minutes du logement.Il est proposé à l’achat pour 252 000 €.N’hésitez pas à prendre contact avec notre agence (LEZOUR Quentin : (Numéro supprimé)) pour plus de renseignements sur cette maison ou sur les modalités de vente. Donnez vie à vos projets immobiliers avec Maisons de l’Avenir Saint-Carné.
Saint-Samson-sur-Rance
TERRAIN ET MAISONMaison de 4 pièces (112 m²) à vendre à Saint-Samson-sur-RanceMAISON 4 PIÈCES NEUVE – PROCHE DE SAINT-MALOÀ vendre à 5 km de la Manche et à 17 km de Saint-Malo, notre agence Maisons de l’Avenir Saint-Carné est ravie de vous présenter cette maison de 4 pièces de 112 m² et de 702 m² de terrain à Saint-Samson-sur-Rance (22100).Cette maison comporte 2 niveaux. Elle comporte trois chambres, une cuisine et une salle de bains. Cette maison est neuve.Il y a l’École Primaire Publique de St Samson Sur Rance à moins de 10 minutes à pied. Niveau transports, on trouve cinq gares à moins de 10 minutes en voiture. On trouve un accès à la nationale N176 à 2 km. Il y a une bibliothèque, deux boulangeries, une épicerie et un bureau de poste à proximité du logement.Elle est à vendre pour la somme de 357 000 €.Prenez contact avec notre constructeur (LEZOUR Quentin : (Numéro supprimé)) pour plus d’informations sur le bien, sur les démarches à suivre ou sur les modalités de vente. Maisons de l’Avenir Saint-Carné vous accompagne dans tous vos projets immobiliers et à toutes les étapes de votre projet.
Saint-Samson-sur-Rance
TERRAIN ET MAISONSaint-Samson-sur-Rance : maison BOIS de 5 pièces (104 m²) en ventePROCHE DE SAINT-MALO – MAISON 5 PIÈCES NEUVEEn vente : à 5 km de la Manche et à 17 km de Saint-Malo, à Saint-Samson-sur-Rance (22100), Maisons de l’Avenir Saint-Carné vous présente cette maison de 5 pièces de plain-pied de 104 m².Son intérieur inclut quatre chambres, une cuisine et deux salles de bains. Cette maison est neuve.Le terrain du bien est de 702 m².Il y a l’École Primaire Publique de St Samson Sur Rance à moins de 10 minutes à pied. Côté transports, on trouve cinq gares à moins de 10 minutes en voiture. La nationale N176 est accessible à 2 km. Il y a une bibliothèque, deux boulangeries, une épicerie et un bureau de poste à quelques minutes.Elle est proposée à l’achat pour 353 500 €.Prenez contact avec notre agence (LEZOUR Quentin : (Numéro supprimé)) pour obtenir de plus amples renseignements sur la maison ou sur les modalités de vente.
Saint-Samson-sur-Rance
TERRAIN ET MAISONVENTE : maison de 6 pièces (200 m²) à Saint-Samson-sur-RancePROCHE DE SAINT-MALO – MAISON 6 PIÈCES NEUVEÀ vendre : à 5 km de la Manche et à 17 km de Saint-Malo, laissez vous charmer par cette maison de 6 pièces de 200 m² à Saint-Samson-sur-Rance (22100). Son intérieur est composé de cinq chambres, d’une cuisine et de deux salles de bains.Le terrain du bien s’étend sur 702 m².Cette maison comporte 2 niveaux. Elle est neuve.L’École Primaire Publique de St Samson Sur Rance est implantée à moins de 10 minutes à pied. Niveau transports en commun, il y a cinq gares à moins de 10 minutes en voiture. Il y a un accès à la nationale N176 à 2 km. On trouve une bibliothèque, deux boulangeries, une épicerie et un bureau de poste à quelques minutes à peine.Elle est à vendre pour la somme de 541 000 €.Contactez notre agence (LEZOUR Quentin : (Numéro supprimé)) pour toute question sur cette maison. Concrétisez vos projets immobiliers avec Maisons de l’Avenir Saint-Carné.
Dinan
TERRAINVENTE d’un terrain de 265 m² à DinanEMPLACEMENT PRIVILÉGIÉ – PROCHE DE SAINT-MALOÀ Dinan (22100) en vente à 10 km de la Manche et à deux pas de Saint-Malo, imaginez la maison de vos rêves sur ce terrain de 265 m². Il bénéficie d’une exposition sud-ouest. Dans un secteur recherché, ce terrain bénéficiant d’un emplacement privilégié est proche des écoles et des commerces. Il y a tous les types d’établissements scolaires à moins de 10 minutes à pied. Niveau transports, on trouve la gare Dinan à quelques pas du bien. La nationale N176 est accessible à 2 km. Il y a une bibliothèque, un tennis, des commerces, des boulangeries, un supermarché, des épiceries et un bureau de poste à quelques minutes à peine. Enfin, le marché Place Duguesclin a lieu chaque jeudi matin.Son prix de vente est de 159 130 €. Prenez contact avec Laetitia AMIRI (tél : (Numéro supprimé)) pour toute question sur le terrain ou sur les démarches à suivre. Maisons de l’Avenir Saint-Carné vous accompagne à toutes les étapes de votre projet et dans tous vos projets immobiliers.
Dinan
TERRAIN ET MAISONDinan : maison de 5 pièces (89 m²) à vendreEMPLACEMENT PRIVILÉGIÉ – MAISON 5 PIÈCES NEUVEEn vente à 10 km de la Manche et à deux pas de Saint-Malo, ayez le coup de coeur pour cette maison de 5 pièces de 89 m² bénéficiant d’un emplacement privilégié dans Dinan (22100).Il s’agit d’une maison de 2 niveaux. Son intérieur dispose de quatre chambres, d’une cuisine et de deux salles de bains. La maison est neuve.Le terrain du bien est de 265 m².Cette propriété est située dans un quartier prisé. On trouve des écoles de tous niveaux à moins de 10 minutes à pied. Niveau transports en commun, il y a la gare Dinan juste à côté. On trouve un accès à la nationale N176 à 2 km. On trouve une bibliothèque, un tennis, des commerces, des boulangeries, un supermarché, une poissonnerie et un bureau de poste à quelques minutes. Ne manquez pas le marché Place Duguesclin tous les jeudis matin.Son prix de vente est de 335 790 €.Contactez notre agence (Laetitia AMIRI : (Numéro supprimé)) pour tout renseignement sur la maison. Faites de vos projets immobiliers une réalité avec Maisons de l’Avenir Saint-Carné.
L’actualité immobilière à Dinan
27/11/2023
02/11/2023
30/10/2023
20/10/2023
16/10/2023
16/10/2023