Maison à construire à Jugon-les-Lacs (22270)
Images
Description
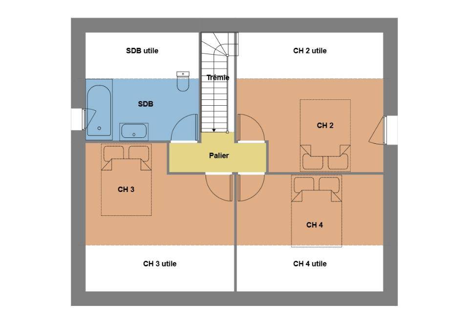
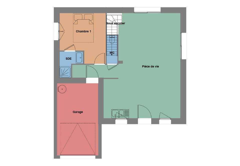
VENTE d'une maison de 5 pièces (102 m²) à Jugon-les-Lacs
IDÉALEMENT SITUÉE - MAISON 5 PIÈCES NEUVE
À 29 km de la Manche, nous vous présentons à vendre, idéalement située dans Jugon-les-Lacs (22270), cette maison de 5 pièces de 102 m² et de 817 m² de terrain.
Il s'agit d'une maison de 2 niveaux. Son intérieur dispose de quatre chambres, d'une cuisine et de deux salles de bains. Cette maison est neuve.
La maison se situe dans un quartier recherché. L'École Primaire Publique de Jugon les Lacs Commune Nouvelle se trouve à moins de 10 minutes à pied. Niveau transports, il y a les gares Plénée-Jugon et Plestan à moins de 10 minutes en voiture. Il y a un accès à la nationale N176 à 1 km. On trouve un tennis, une bibliothèque, un bassin de natation, deux boulangeries, un commerce, une épicerie, une boucherie-charcuterie et un bureau de poste à proximité du bien.
Son prix de vente est de 240 000 €.
N'hésitez pas à prendre contact avec notre agence (Laetitia AMIRI : (Numéro supprimé)) pour toute information sur la maison ou sur les démarches à suivre.
Logement susceptibles de vous intéresser
Nous vous proposons de découvrir aussi cette sélection de logements situés à moins de 10km de Jugon-les-Lacs - Commune nouvelle et qui seraient susceptibles de vous intéresser.
Plestan
TERRAINTerrain de 307 m² en vente à PlestanPROCHE DE SAINT-BRIEUCÀ 23 km de la Manche et à quelques kilomètres de Saint-Brieuc à Plestan (22640), terrain de 307 m². Il est prêt à accueillir votre résidence principale ou secondaire pour toute la famille. Il y a l’École Primaire Privée Sainte Marie et l’École Primaire Publique Eugène Besnard à moins de 10 minutes à pied. Côté transports, on trouve la gare Plestan dans un rayon de 1 km. Il y a un accès à la nationale N12 à 1 km. Il y a un tennis et une boulangerie dans les environs.Ce terrain est à vendre pour la somme de 29 000 €. N’hésitez pas à prendre contact avec notre agence (Quentin LEZOUR : (Numéro supprimé)) pour toute question sur le terrain.
Plestan
TERRAIN ET MAISONVENTE d’une maison de 4 pièces (100 m²) à PlestanMAISON 4 PIÈCES NEUVE – PROCHE DE SAINT-BRIEUCÀ 23 km de la Manche et à deux pas de Saint-Brieuc, nous vous présentons cette maison de 4 pièces de 100 m² en vente à Plestan (22640). Elle propose quatre chambres, une cuisine et deux salles de bains.Le terrain du bien est de 307 m².Cette maison possède 2 niveaux. Elle est neuve.Il y a l’École Primaire Privée Sainte Marie et l’École Primaire Publique Eugène Besnard à moins de 10 minutes à pied. Niveau transports en commun, on trouve la gare Plestan dans les alentours. On trouve un accès à la nationale N12 à 1 km. Il y a un tennis et une boulangerie à quelques minutes à peine.Elle est à vendre pour la somme de 239 000 €.N’hésitez pas à prendre contact avec Quentin LEZOUR ((Numéro supprimé)) pour toute information sur le bien ou sur les modalités de vente. Concrétisez vos projets immobiliers avec Maisons de l’Avenir Saint-Carné.
Plestan
TERRAIN ET MAISONPlestan : maison de 4 pièces (112 m²) à vendreMAISON 4 PIÈCES NEUVE – PROCHE DE SAINT-BRIEUCÀ vendre : à 23 km de la Manche et à deux pas de Saint-Brieuc, Maisons de l’Avenir Saint-Carné vous propose à Plestan (22640), cette maison de 4 pièces de 112 m².C’est une maison de 2 niveaux. Son intérieur est composé de trois chambres, d’une cuisine et d’une salle de bains. La maison est neuve.Le terrain du bien est de 307 m².L’École Primaire Privée Sainte Marie et l’École Primaire Publique Eugène Besnard sont implantées à moins de 10 minutes à pied. Côté transports en commun, il y a la gare Plestan dans un rayon de 1 km. Il y a un accès à la nationale N12 à 1 km. On trouve un tennis et une boulangerie à proximité du logement.Elle est proposée à l’achat pour 293 000 €.N’hésitez pas à prendre contact avec notre agence (Quentin LEZOUR : (Numéro supprimé)) pour toute question sur cette propriété. Donnez vie à vos projets immobiliers avec Maisons de l’Avenir Saint-Carné.
Plestan
TERRAIN ET MAISONVENTE : maison T3 (80 m²) à PlestanMAISON 3 PIÈCES NEUVE – PROCHE DE SAINT-BRIEUCÀ vendre : située à 23 km de la Manche et à deux pas de Saint-Brieuc, découvrez à Plestan (22640), cette maison de 3 pièces de 80 m² et de 307 m² de terrain. Elle propose trois chambres, une cuisine et une salle de bains.Il s’agit d’une maison de 2 niveaux. Elle est neuve.L’École Primaire Privée Sainte Marie et l’École Primaire Publique Eugène Besnard sont implantées à moins de 10 minutes à pied. Côté transports en commun, on trouve la gare Plestan juste à côté. On trouve un accès à la nationale N12 à 1 km. Il y a un tennis et une boulangerie à quelques minutes à peine.Elle est proposée à l’achat pour 227 000 €.Contactez Quentin LEZOUR ((Numéro supprimé)) pour plus de renseignements sur cette maison ou sur les démarches à suivre. Faites de vos projets immobiliers une réalité avec Maisons de l’Avenir Saint-Carné.
Plestan
TERRAIN ET MAISONMaison BOIS F5 (114 m²) à vendre à PlestanMAISON 5 PIÈCES NEUVE – PROCHE DE SAINT-BRIEUCEn vente à 23 km de la Manche et à quelques kilomètres de Saint-Brieuc, ayez le coup de coeur pour cette maison de 5 pièces de 114 m² et de 307 m² de terrain à Plestan (22640). Elle dispose de quatre chambres, d’une cuisine et d’une salle de bains.Cette maison compte 2 niveaux. Elle est neuve.Il y a l’École Primaire Privée Sainte Marie et l’École Primaire Publique Eugène Besnard à moins de 10 minutes à pied. Niveau transports, on trouve la gare Plestan à proximité. Il y a un accès à la nationale N12 à 1 km. Il y a un tennis et une boulangerie à quelques minutes à peine.Elle est à vendre pour la somme de 319 000 €.N’hésitez pas à prendre contact avec notre agence (LEZOUR Quentin : (Numéro supprimé)) pour toute information sur cette maison ou sur les démarches à suivre. Maisons de l’Avenir Saint-Carné vous accompagne dans tous vos projets immobiliers et dans toutes vos démarches.
Plestan
TERRAIN ET MAISONVENTE : maison de 4 pièces (80 m²) à PlestanMAISON 4 PIÈCES NEUVE – PROCHE DE SAINT-BRIEUCÀ vendre à 23 km de la Manche et à 27 km de Saint-Brieuc, à Plestan (22640), nous vous proposons cette maison de 4 pièces de plain-pied de 80 m². Conçue de plain-pied, elle se divise en trois chambres, une cuisine et une salle de bains.Le terrain du bien est de 307 m².Cette maison est neuve.L’École Primaire Privée Sainte Marie et l’École Primaire Publique Eugène Besnard se trouvent à moins de 10 minutes à pied. Niveau transports en commun, il y a la gare Plestan dans un rayon de 1 km. On trouve un accès à la nationale N12 à 1 km. On trouve un tennis et une boulangerie à proximité de la maison.Elle est proposée à l’achat pour 209 000 €.Contactez Quentin LEZOUR (tél : (Numéro supprimé)) pour tout renseignement sur la maison.
Plestan
TERRAIN ET MAISONmaison BOIS T4 (120 m²) à PlestanPROCHE DE SAINT-BRIEUC – MAISON 4 PIÈCES NEUVEÀ vendre : à 23 km de la Manche et à deux pas de Saint-Brieuc, nous sommes ravis de vous proposer cette maison de 4 pièces de plain-pied de 120 m² et de 307 m² de terrain à Plestan (22640).Son intérieur inclut trois chambres, une cuisine et deux salles de bains. La maison est neuve.On trouve l’École Primaire Privée Sainte Marie et l’École Primaire Publique Eugène Besnard à moins de 10 minutes à pied. Côté transports en commun, il y a la gare Plestan à quelques pas de la maison. On trouve un accès à la nationale N12 à 1 km. On trouve un tennis et une boulangerie dans les environs.Son prix de vente est de 346 250 €.N’hésitez pas à prendre contact avec Quentin LEZOUR ((Numéro supprimé)) pour toute information sur cette propriété, sur les démarches à suivre ou sur les modalités de vente.
Pléven
TERRAINVENTE d’un terrain de 420 m² à PlévenPROCHE DE SAINT-MALOÀ Pléven (22130) à 21 km de la Manche et à quelques kilomètres de Saint-Malo, donnez vie à votre projet immobilier sur ce terrain de 420 m². Il y a l’École Primaire Publique de Pléven à moins de 10 minutes à pied. Niveau transports, on trouve deux gares (Landébia et Plancoët) à moins de 10 minutes en voiture. La nationale N176 est accessible à 9 km. Il y a un tennis et une épicerie à quelques minutes.Il est proposé à l’achat pour 33 000 €. Prenez contact avec Quentin LEZOUR (tél : (Numéro supprimé)) pour toute information sur ce terrain. Maisons de l’Avenir Saint-Carné vous accompagne dans toutes vos démarches et dans tous vos projets immobiliers.
Pléven
TERRAIN ET MAISONVENTE : maison F4 (112 m²) à PlévenMAISON 4 PIÈCES NEUVE – PROCHE DE SAINT-MALOÀ vendre : située à 21 km de la Manche et à 30 km de Saint-Malo, découvrez cette maison de 4 pièces de 112 m² à Pléven (22130). Elle comporte trois chambres, une cuisine et une salle de bains.Le terrain de cette maison s’étend sur 420 m².Il s’agit d’une maison de 2 niveaux. Elle est neuve.L’École Primaire Publique de Pléven est implantée à moins de 10 minutes à pied. Niveau transports, on trouve les gares Landébia et Plancoët à moins de 10 minutes en voiture. La nationale N176 est accessible à 9 km. Il y a un tennis et une épicerie dans les environs.Elle est proposée à l’achat pour 295 000 €.Prenez contact avec Quentin LEZOUR (tél : (Numéro supprimé)) pour tout renseignement sur cette maison, sur les modalités de vente et sur les démarches à suivre.
L’actualité immobilière à Jugon-les-Lacs - Commune nouvelle
27/11/2023
02/11/2023
30/10/2023
20/10/2023
16/10/2023
16/10/2023