Maison à construire à Ploubalay (22770)
Images
Description
Maison de 5 pièces (102 m²) à vendre à Beaussais sur Mer
EMPLACEMENT PRIVILÉGIÉ - MAISON 5 PIÈCES NEUVE
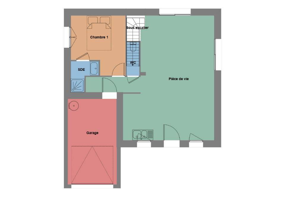
À 4 km de la Manche et à 14 km de Saint-Malo, nous sommes heureux de vous proposer en vente, bénéficiant d'un emplacement privilégié dans Beaussais sur Mer (22770), cette maison de 5 pièces de 102 m². Elle propose quatre chambres, une cuisine et deux salles de bains.
Le terrain de la propriété s'étend sur 780 m².
Cette maison compte 2 niveaux. Elle est neuve.
Cette maison se situe dans un secteur prisé. L'École Primaire Publique Robert William Service est implantée à moins de 10 minutes à pied. La nationale N176 est accessible à 12 km. Il y a une bibliothèque, un tennis, un commerce, une boulangerie, une boucherie-charcuterie, une épicerie et un bureau de poste à proximité du bien. Ne manquez pas le marché Place de l'église (juillet et août) sinon le reste de l'année Place de l'Odt chaque mardi matin.
Elle est à vendre pour la somme de 344 000 €.
Prenez contact avec Laetitia AMIRI (tél : (Numéro supprimé)) pour plus d'informations sur le bien, sur les modalités de vente ou sur les démarches à suivre. Maisons de l'Avenir Saint-Carné est là pour vous accompagner à toutes les étapes de votre projet.
Logement susceptibles de vous intéresser
Nous vous proposons de découvrir aussi cette sélection de logements situés à moins de 10km de Lancieux et qui seraient susceptibles de vous intéresser.
Saint-Cast-le-Guildo
TERRAIN ET MAISONVENTE d’une maison F5 (115 m²) à Saint-Cast-le-GuildoEMPLACEMENT PRIVILÉGIÉ – MAISON 5 PIÈCES NEUVEEn vente à 5 km de la Manche et à 20 km de Saint-Malo, nous sommes heureux de vous proposer cette maison de 5 pièces de 115 m² et de 407 m² de terrain bénéficiant d’un emplacement d’exception dans Saint-Cast-le-Guildo (22380).Cette maison comporte 2 niveaux. Elle propose quatre chambres, une cuisine et deux salles de bains. La maison est neuve.La maison se trouve dans un secteur prisé. L’École Primaire Publique les Terrres Neuvas est implantée à moins de 10 minutes à pied. On trouve un bassin de natation, des commerces, quatre boulangeries, un supermarché, un bureau de poste et deux boucheries-charcuteries à proximité du bien.Son prix de vente est de 329 300 €.N’hésitez pas à prendre contact avec Laetitia AMIRI ((Numéro supprimé)) pour tout renseignement sur la maison ou sur les modalités de vente.
Pleurtuit
TERRAIN ET MAISONPleurtuit : maison de 6 pièces (118 m²) en vente, hors lotissement dans un environnement très calme.EMPLACEMENT PRIVILÉGIÉ – MAISON 6 PIÈCES NEUVEÀ 3 km de la Manche et à 9 km de Saint-Malo, nous sommes heureux de vous proposer cette maison de 6 pièces de 118 m² en vente bénéficiant d’un emplacement privilégié dans Pleurtuit (35730).C’est une maison de 2 niveaux. Elle inclut cinq chambres, une cuisine et deux salles de bains. La maison est neuve.Le terrain de la propriété s’étend sur 753 m².La propriété se situe dans un quartier prisé. Des écoles maternelles et élémentaires sont implantées à moins de 10 minutes à pied, tout comme une crèche. Côté transports en commun, il y a la gare Saint-Malo à moins de 10 minutes en voiture. La nationale N176 est accessible à 6 km. On trouve une bibliothèque, un tennis, des commerces, un supermarché, trois boulangeries, une boucherie-charcuterie et un bureau de poste à quelques minutes à peine.Son prix de vente est de 417 800 €.Contactez notre agence (Laetitia AMIRI : (Numéro supprimé)) pour toute information sur la maison ou sur les modalités de vente. Concrétisez vos projets immobiliers avec Maisons de l’Avenir Saint-Carné.
Pleslin-Trigavou
TERRAIN ET MAISONPleslin-Trigavou : maison de 3 pièces (57 m²) en venteEMPLACEMENT PRIVILÉGIÉ – PROCHE DE DINANMAISON 3 PIÈCES NEUVEÀ 8 km de la Manche et à quelques kilomètres de Saint-Malo, nous vous présentons cette maison de 3 pièces de plain-pied de 57 m² à vendre, bénéficiant d’un emplacement privilégié dans Pleslin-Trigavou (22490).Son intérieur comporte deux chambres, une cuisine et une salle de bains. La maison est neuve.Le terrain de la propriété est de 423 m².La maison se situe dans un secteur prisé. L’École Primaire Privée Saint Joseph et l’École Primaire Publique Georges Hervé sont implantées à moins de 10 minutes à pied. Côté transports, il y a quatre gares à moins de 10 minutes en voiture. On trouve un accès à la nationale N176 à 2 km. On trouve un tennis, une boulangerie, un bureau de poste et une supérette à proximité du bien.Son prix de vente est de 218 150 €.Contactez notre agence (Laetitia AMIRI : (Numéro supprimé)) pour obtenir de plus amples renseignements sur la maison ou sur les démarches à suivre. Maisons de l’Avenir Saint-Carné vous accompagne à toutes les étapes de votre projet et dans tous vos projets immobiliers.
Saint-Cast-le-Guildo
TERRAIN ET MAISONVENTE d’une maison de 4 pièces (105 m²) à Saint-Cast-le-GuildoEMPLACEMENT PRIVILÉGIÉ – MAISON 4 PIÈCES NEUVEEn vente : localisée à 5 km de la Manche et à quelques kilomètres de Saint-Malo, Maisons de l’Avenir Saint-Carné vous présente cette maison de 4 pièces de 105 m² bénéficiant d’un emplacement privilégié dans Saint-Cast-le-Guildo (22380). Elle offre quatre chambres, une cuisine et deux salles de bains.Le terrain de la maison est de 313 m².C’est une maison de 2 niveaux. Elle est neuve.Cette maison est située dans un secteur prisé. L’École Primaire Publique les Terrres Neuvas est implantée à moins de 10 minutes à pied. On trouve un bassin de natation, des commerces, quatre boulangeries, un supermarché, une épicerie et une poissonnerie à proximité du bien.Elle est proposée à l’achat pour 287 100 €.Prenez contact avec Laetitia AMIRI ((Numéro supprimé)) pour tout renseignement sur la maison et sur les modalités de vente. Maisons de l’Avenir Saint-Carné est là pour vous accompagner dans tous vos projets immobiliers.
Pleurtuit
TERRAIN ET MAISONVENTE : maison de 4 pièces (110 m²) à Pleurtuit, hors lotissement dans un environnement très calme.EMPLACEMENT PRIVILÉGIÉ – MAISON 4 PIÈCES NEUVEÀ vendre à 3 km de la Manche et à 9 km de Saint-Malo, nous sommes heureux de vous présenter cette maison de 4 pièces de 110 m² bénéficiant d’un emplacement d’exception dans Pleurtuit (35730).Cette maison comporte 2 niveaux. Son intérieur propose trois chambres, une cuisine et deux salles de bains. Cette maison est neuve.Le terrain de la propriété est de 753 m².La maison est située dans un secteur convoité. Il y a des écoles maternelles et élémentaires à moins de 10 minutes à pied et une crèche. Niveau transports en commun, on trouve la gare Saint-Malo à moins de 10 minutes en voiture. Il y a un accès à la nationale N176 à 6 km. Il y a une bibliothèque, un tennis, des commerces, un supermarché, trois boulangeries, une boucherie-charcuterie et un bureau de poste à quelques minutes.Elle est proposée à l’achat pour 447 350 €.Contactez notre agence (AMIRI Laetitia : (Numéro supprimé)) pour tout renseignement sur la maison, sur les modalités de vente ou sur les démarches à suivre. Maisons de l’Avenir Saint-Carné est là pour vous accompagner dans tous vos projets immobiliers.
Pleurtuit
TERRAIN ET MAISONMaison de 5 pièces (150 m²) en vente à Pleurtuit, hors lotissement dans un environnement très calme.EMPLACEMENT PRIVILÉGIÉ – MAISON 5 PIÈCES NEUVEÀ vendre à 3 km de la Manche et à 9 km de Saint-Malo, nous vous proposons, bénéficiant d’un emplacement privilégié dans Pleurtuit (35730), cette maison de 5 pièces de 150 m² et de 753 m² de terrain.Cette maison compte 2 niveaux. Elle propose quatre chambres, une cuisine et deux salles de bains. La maison est neuve.Cette maison se trouve dans un quartier attractif. Il y a des établissements scolaires maternelles et élémentaires à moins de 10 minutes à pied et une structure d’accueil pour les enfants en bas âge. Niveau transports, on trouve la gare Saint-Malo à moins de 10 minutes en voiture. Il y a un accès à la nationale N176 à 6 km. Il y a une bibliothèque, un tennis, des commerces, un supermarché, trois boulangeries, une boucherie-charcuterie et un bureau de poste dans les environs.Son prix de vente est de 545 200 €.Contactez Laetitia AMIRI (tél : (Numéro supprimé)) pour obtenir de plus amples informations sur la maison ou sur les modalités de vente. Maisons de l’Avenir Saint-Carné vous accompagne à toutes les étapes de votre projet et dans tous vos projets immobiliers.
La Richardais
TERRAIN ET MAISONLa Richardais : maison de 4 pièces (105 m²) à vendreEMPLACEMENT PRIVILÉGIÉ – MAISON 4 PIÈCES NEUVEÀ vendre : à 1 km de la Manche et à deux pas de Saint-Malo, ayez le coup de coeur pour, bénéficiant d’un emplacement privilégié dans La Richardais (35780), cette maison de 4 pièces de 105 m² et de 281 m² de terrain.Cette maison compte 2 niveaux. Son intérieur dispose de quatre chambres, d’une cuisine et de deux salles de bains. La maison est neuve.Cette maison est située dans un quartier convoité. L’École Élémentaire Publique Louis Bréhault, l’École Maternelle Publique Antoine Launay, l’École Primaire Privée Ste Anne et le Collège Privé Sainte-Marie sont implantés à moins de 10 minutes à pied, tout comme trois crèches. Côté transports, on trouve deux gares (Saint-Malo et La Gouesnière-Cancale-Saint-Méloir-des-Ondes) à moins de 10 minutes en voiture. Il y a un accès à la nationale N176 à 9 km. Il y a une bibliothèque, un tennis, une boulangerie, des commerces et un bureau de poste à proximité.Son prix de vente est de 377 600 €.Prenez contact avec notre agence (Laetitia AMIRI : (Numéro supprimé)) pour plus d’informations sur la maison, sur les démarches à suivre ou sur les modalités de vente. Faites de vos projets immobiliers une réalité avec Maisons de l’Avenir Saint-Carné.
Saint-Cast-le-Guildo
TERRAIN ET MAISONMaison F5 (80 m²) en vente à Saint-Cast-le-GuildoEMPLACEMENT PRIVILÉGIÉ – MAISON 5 PIÈCES NEUVEÀ vendre : à 5 km de la Manche et à deux pas de Saint-Malo, venez découvrir, bénéficiant d’un emplacement d’exception dans Saint-Cast-le-Guildo (22380), cette maison de 5 pièces de plain-pied de 80 m² et de 313 m² de terrain. Elle se divise en quatre chambres, une cuisine et deux salles de bains.Cette maison est neuve.Cette maison se trouve dans un quartier convoité. L’École Primaire Publique les Terrres Neuvas est implantée à moins de 10 minutes à pied. On trouve un bassin de natation, des commerces, quatre boulangeries, un supermarché, deux boucheries-charcuteries et un bureau de poste dans les environs.Son prix de vente est de 235 250 €.Contactez Laetitia AMIRI ((Numéro supprimé)) pour toute information sur la maison.
La Richardais
TERRAIN ET MAISONVENTE : maison F4 (88 m²) à La RichardaisEMPLACEMENT PRIVILÉGIÉ – MAISON 4 PIÈCES NEUVEÀ vendre : à 1 km de la Manche et à quelques kilomètres de Saint-Malo, nous vous présentons cette maison de 4 pièces de 88 m² bénéficiant d’un emplacement d’exception dans La Richardais (35780). Elle propose trois chambres, une cuisine et une salle de bains.Le terrain de la maison s’étend sur 281 m².Cette maison possède 2 niveaux. Elle est neuve.La maison se trouve dans un quartier recherché. L’École Élémentaire Publique Louis Bréhault, l’École Maternelle Publique Antoine Launay, l’École Primaire Privée Ste Anne et le Collège Privé Sainte-Marie sont implantés à moins de 10 minutes à pied, tout comme trois structures d’accueil pour la petite enfance. Côté transports, il y a les gares Saint-Malo et La Gouesnière-Cancale-Saint-Méloir-des-Ondes à moins de 10 minutes en voiture. La nationale N176 est accessible à 9 km. On trouve une bibliothèque, un tennis, une boulangerie, des commerces et un bureau de poste à quelques minutes.Son prix de vente est de 297 000 €.Contactez notre agence (AMIRI Laetitia : (Numéro supprimé)) pour plus de renseignements sur la maison, sur les modalités de vente ou sur les démarches à suivre.
L’actualité immobilière à Lancieux
27/11/2023
02/11/2023
30/10/2023
20/10/2023
16/10/2023
16/10/2023