Maison à construire à Le Merzer (22200)
Images
Description
Le Merzer : maison de 5 pièces (89 m²) en vente
MAISON 5 PIÈCES NEUVE - PROCHE DE SAINT-BRIEUC
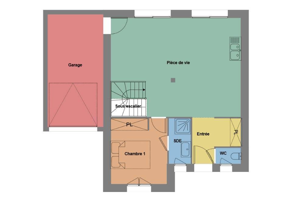
En vente : localisée à 24 km de la Manche et à deux pas de Saint-Brieuc, votre agence Maisons de l'Avenir Saint-Brieuc est heureuse de vous proposer cette maison de 5 pièces de 89 m² au Merzer (22200). Elle est composée de quatre chambres, d'une cuisine et de deux salles de bains.
Le terrain du bien est de 545 m².
Il s'agit d'une maison de 2 niveaux. Elle est neuve.
On trouve l'École Primaire Publique du Merzer à moins de 10 minutes à pied. Niveau transports, il y a quatre gares à moins de 10 minutes en voiture. On trouve un accès à la nationale N12 à 4 km. On trouve une bibliothèque et deux boulangeries à quelques minutes à peine.
Elle est proposée à l'achat pour 235 000 €.
Contactez Samuel ROGER ((Numéro supprimé)) pour toute information sur la maison, sur les modalités de vente ou sur les démarches à suivre. Donnez vie à vos projets immobiliers avec Maisons de l'Avenir Saint-Brieuc.
Logement susceptibles de vous intéresser
Nous vous proposons de découvrir aussi cette sélection de logements situés à moins de 10km de Le Merzer et qui seraient susceptibles de vous intéresser.
Le Merzer
TERRAIN ET MAISONMaison T5 (88 m²) en vente au MerzerPROCHE DE SAINT-BRIEUC – MAISON 5 PIÈCES NEUVEÀ vendre : localisée à 24 km de la Manche et à 24 km de Saint-Brieuc, Maisons de l’Avenir Saint-Brieuc vous présente cette maison de 5 pièces de 88 m² et de 545 m² de terrain au Merzer (22200).Cette maison comporte 2 niveaux. Elle dispose de quatre chambres, d’une cuisine et d’une salle de bains. Cette maison est neuve.Il y a l’École Primaire Publique du Merzer à moins de 10 minutes à pied. Niveau transports, on trouve quatre gares à moins de 10 minutes en voiture. La nationale N12 est accessible à 4 km. Il y a une bibliothèque et deux boulangeries dans les environs.Son prix de vente est de 217 000 €.Contactez Samuel ROGER ((Numéro supprimé)) pour toute question sur cette maison. Concrétisez vos projets immobiliers avec Maisons de l’Avenir Saint-Brieuc.
Châtelaudren-Plouagat
TERRAINTerrain de 365 m² en vente à ChâtelaudrenPROCHE DE SAINT-BRIEUCÀ 18 km de la Manche et à deux pas de Saint-Brieuc à Châtelaudren (22170), terrain de 365 m². Niveau transports, il y a deux gares (Châtelaudren-Plouagat et Plouvara-Plerneuf) à moins de 10 minutes en voiture. La nationale N12 est accessible à 2 km. On trouve une bibliothèque, des commerces, un supermarché, trois boulangeries, un bureau de poste et deux boucheries-charcuteries à proximité. Enfin, le marché Place de la République anime les environs chaque lundi matin.Il est proposé à l’achat pour 36 900 €. N’hésitez pas à prendre contact avec Samuel ROGER ((Numéro supprimé)) pour obtenir de plus amples renseignements sur ce terrain. Donnez vie à vos projets immobiliers avec Maisons de l’Avenir Saint-Brieuc.
Tréguidel
TERRAINSitué dans un environnement calme et bien exposé, ce terrain constructible se trouve à seulement 5km de Lanvollon, où vous trouverez tous les commerces de proximités, 15 minutes de la mer et des plages (Binic).Superficie : environ 500 m². Bornage à la charge de l’acquéreur.Vendu non viabilisé. Tout-à-l’égoutN’attendez plus pour concrétiser votre rêve de construction et devenir propriétaire d’un bien immobilier.Budget : 51000 euros Hai à la charge de l’acquéreur soit 13.33% (soit 6000 euros).PNV: 45000 eurosFrais Notariés en SUS= 5000 eurosPour visiter et vous accompagner dans votre projet, contactez Julien PÉROT, au (Numéro supprimé) ou, par courriel à (Email supprimé). Mandat réf : 429097- En collaborant avec un professionnel agréé FNAIM, vous bénéficiez d’un accompagnement personnalisé, garantissant, et sécurisant votre projet immobilier. Selon l’article L.561.5 du Code Monétaire et Financier, pour l’organisation de la visite, la présentation d’une pièce d’identité vous sera demandée. Cette présente annonce a été rédigée sous la responsabilité éditoriale de Julien PÉROT agissant sous le statut d’agent commercial immatriculé au RSAC SAINT BRIEUC 822474151 auprès de SAS PROPRIETES PRIVEES, au capital de 44 920 euros, ZAC LE CHÊNE FERRÉ – 44 ALLÉE DES CINQ CONTINENTS 44120 VERTOU ; SIRET 487 624 777 00040, RCS Nantes. Carte Professionnelle Transactions sur immeubles et fonds de commerce (T) et Gestion immobilière (G) n° CPI 4401 2016 000 010 388 délivrée par la CCI Nantes – Saint Nazaire. Compte séquestre n(Numéro supprimé)67 BPA SAINT-SEBASTIEN-SUR-LOIRE (44230). Garantie GALIAN-SMABTP – 89 rue de la Boétie, 75008 Paris – n°28137 J pour 2 000 000 euros pour T et 120 000 euros pour G. Assurance responsabilité civile professionnelle par GALIAN-SMABTP n° de police 28137. (13.33 % honoraires TTC à la charge de l’acquéreur.) Julien PÉROT (EI) Agent Commercial – Numéro RSAC : SAINT BRIEUC 822474151 – .Les informations sur les risques auxquels ce bien est exposé sont disponibles sur le site Géorisques : www. georisques. gouv. fr
Lanvollon
TERRAIN ET MAISONMaison F4 (70 m²) à vendre à LanvollonMAISON 4 PIÈCES NEUVE – PROCHE DE SAINT-BRIEUCÀ vendre : située à 13 km de la Manche et à 22 km de Saint-Brieuc, Maisons de l’Avenir Saint-Brieuc vous présente cette maison de 4 pièces de plain-pied de 70 m² et de 372 m² de terrain à Lanvollon (22290).Son intérieur propose trois chambres, une cuisine et une salle de bains. Cette maison est neuve.Le Collège Privé Notre-Dame, l’École Primaire Privée Sacré Coeur et l’École Primaire Publique de Lanvollon sont implantés à moins de 10 minutes à pied, tout comme une crèche. La nationale N12 est accessible à 11 km. On trouve deux tennis, des commerces, trois boulangeries, un supermarché, une supérette et une épicerie à proximité de la maison. Le marché Centre-Ville a lieu chaque vendredi matin.Elle est proposée à l’achat pour 186 000 €.Contactez Samuel ROGER ((Numéro supprimé)) pour obtenir de plus amples informations sur la maison, sur les démarches à suivre ou sur les modalités de vente. Maisons de l’Avenir Saint-Brieuc est là pour vous accompagner à toutes les étapes de votre projet.
Lanvollon
TERRAIN ET MAISONVENTE d’une maison de 4 pièces (69 m²) à LanvollonMAISON 4 PIÈCES NEUVE – PROCHE DE SAINT-BRIEUCEn vente : à 13 km de la Manche et à 22 km de Saint-Brieuc, nous vous proposons cette maison de 4 pièces de 69 m² et de 372 m² de terrain à Lanvollon (22290).Cette maison comporte 2 niveaux. Son intérieur se divise en trois chambres, une cuisine et une salle de bains. La maison est neuve.Il y a le Collège Privé Notre-Dame, l’École Primaire Privée Sacré Coeur et l’École Primaire Publique de Lanvollon à moins de 10 minutes à pied et une crèche. La nationale N12 est accessible à 11 km. On trouve deux tennis, des commerces, trois boulangeries, un supermarché, une supérette et un bureau de poste à proximité. Ne manquez pas le marché Centre-Ville tous les vendredis matin.Elle est à vendre pour la somme de 199 000 €.Contactez notre agence (Samuel ROGER : (Numéro supprimé)) pour toute information sur cette maison. Maisons de l’Avenir Saint-Brieuc est là pour vous accompagner dans tous vos projets immobiliers.
Lanvollon
TERRAINTerrain de 372 m² en vente à LanvollonPROCHE DE SAINT-BRIEUCEn vente à 13 km de la Manche et à 22 km de Saint-Brieuc à Lanvollon (22290), terrain de 372 m². Réalisez-y votre résidence principale ou secondaire. On trouve le Collège Privé Notre-Dame, l’École Primaire Privée Sacré Coeur et l’École Primaire Publique de Lanvollon à moins de 10 minutes à pied et une crèche. La nationale N12 est accessible à 11 km. Il y a deux tennis, des commerces, trois boulangeries, un supermarché, deux boucheries-charcuteries et une supérette dans les environs. Le marché Centre-Ville a lieu chaque vendredi matin.Son prix de vente est de 46 000 €. Prenez contact avec notre agence (ROGER Samuel : (Numéro supprimé)) pour toute information sur le terrain ou sur les modalités de vente. Concrétisez vos projets immobiliers avec Maisons de l’Avenir Saint-Brieuc.
Le Merzer
TERRAIN ET MAISONLe Merzer : maison de 5 pièces (89 m²) en venteMAISON 5 PIÈCES NEUVE – PROCHE DE SAINT-BRIEUCEn vente : localisée à 24 km de la Manche et à deux pas de Saint-Brieuc, votre agence Maisons de l’Avenir Saint-Brieuc est heureuse de vous proposer cette maison de 5 pièces de 89 m² au Merzer (22200). Elle est composée de quatre chambres, d’une cuisine et de deux salles de bains.Le terrain du bien est de 545 m².Il s’agit d’une maison de 2 niveaux. Elle est neuve.On trouve l’École Primaire Publique du Merzer à moins de 10 minutes à pied. Niveau transports, il y a quatre gares à moins de 10 minutes en voiture. On trouve un accès à la nationale N12 à 4 km. On trouve une bibliothèque et deux boulangeries à quelques minutes à peine.Elle est proposée à l’achat pour 235 000 €.Contactez Samuel ROGER ((Numéro supprimé)) pour toute information sur la maison, sur les modalités de vente ou sur les démarches à suivre. Donnez vie à vos projets immobiliers avec Maisons de l’Avenir Saint-Brieuc.
Le Merzer
TERRAIN ET MAISONVENTE : maison T4 (73 m²) au MerzerPROCHE DE SAINT-BRIEUC – MAISON 4 PIÈCES NEUVEÀ vendre : à 24 km de la Manche et à deux pas de Saint-Brieuc, nous vous proposons au Merzer (22200), cette maison de 4 pièces de 73 m². Elle comporte trois chambres, une cuisine et une salle de bains.Le terrain du bien est de 545 m².Cette maison compte 2 niveaux. Elle est neuve.L’École Primaire Publique du Merzer est implantée à moins de 10 minutes à pied. Niveau transports, il y a quatre gares à moins de 10 minutes en voiture. On trouve un accès à la nationale N12 à 4 km. On trouve une bibliothèque et deux boulangeries à quelques minutes de la maison.Elle est proposée à l’achat pour 200 000 €.Prenez contact avec Samuel ROGER (tél : (Numéro supprimé)) pour toute question sur la maison, sur les démarches à suivre ou sur les modalités de vente.
Le Merzer
TERRAINVENTE d’un terrain de 545 m² au MerzerPROCHE DE GUINGAMPAu Merzer (22200) à 24 km de la Manche et à 24 km de Saint-Brieuc, découvrez ce terrain de 545 m². Il y a l’École Primaire Publique du Merzer à moins de 10 minutes à pied. Côté transports, on trouve quatre gares à moins de 10 minutes en voiture. La nationale N12 est accessible à 4 km. Il y a une bibliothèque et deux boulangeries à quelques minutes.Il est proposé à l’achat pour 39 000 €. Prenez contact avec notre agence (Samuel ROGER : (Numéro supprimé)) pour toute question sur le terrain, sur les démarches à suivre ou sur les modalités de vente. Maisons de l’Avenir Saint-Brieuc vous accompagne dans tous vos projets immobiliers et à toutes les étapes de votre projet.
L’actualité immobilière à Le Merzer
27/11/2023
02/11/2023
30/10/2023
20/10/2023
16/10/2023
16/10/2023