Maison à construire à Plaintel (22940)
Images
Description
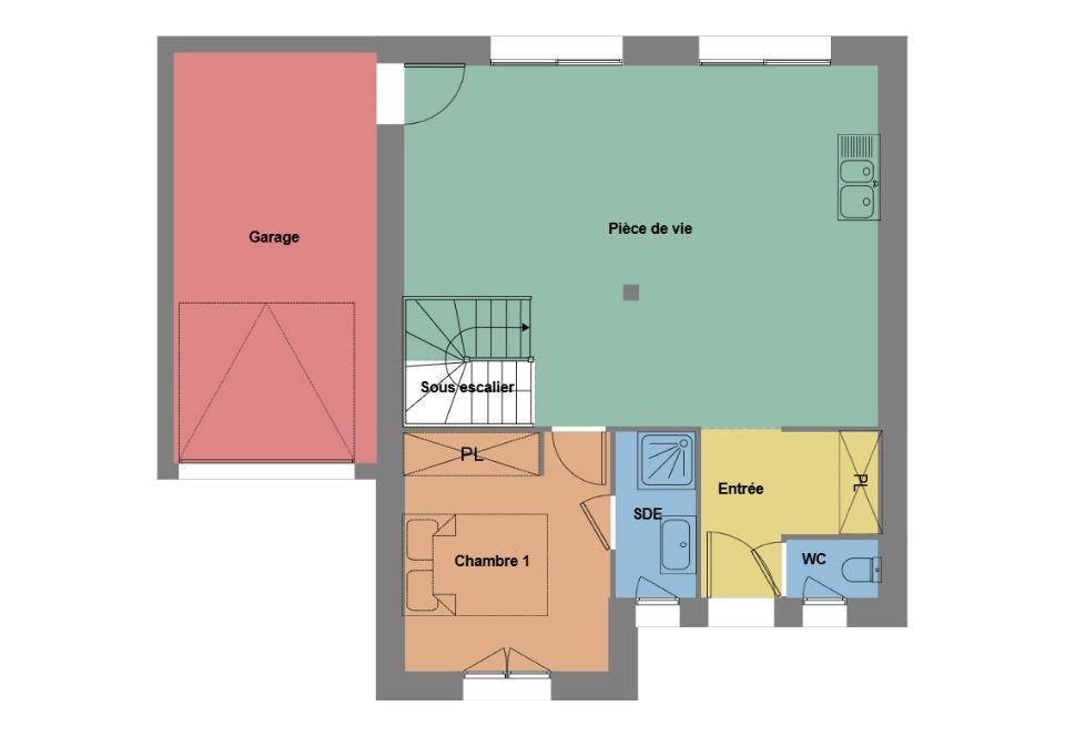
Maison T5 (89 m²) en vente à Plaintel
QUARTIER RECHERCHÉ - MAISON 5 PIÈCES NEUVE
À vendre à 16 km de la Manche et à quelques kilomètres de Saint-Brieuc, nous vous présentons cette maison de 5 pièces de 89 m² et de 452 m² de terrain située dans un quartier recherché de Plaintel (22940). Elle inclut quatre chambres, une cuisine et deux salles de bains.
C'est une maison de 2 niveaux. Elle est neuve.
La maison est située dans un secteur attractif. L'École Primaire Privée Saint Joseph est implantée à moins de 10 minutes à pied. Côté transports, on trouve la gare La Méaugon à moins de 10 minutes en voiture. Il y a un accès à la nationale N12 à 11 km. Il y a une bibliothèque, deux boulangeries, un commerce, un supermarché, une boucherie-charcuterie et une épicerie à proximité du logement.
Elle est à vendre pour la somme de 257 000 €.
Contactez notre agence (Samuel ROGER : (Numéro supprimé)) pour toute question sur la maison ou sur les modalités de vente. Maisons de l'Avenir Saint-Brieuc est là pour vous accompagner à toutes les étapes de votre projet.
Logement susceptibles de vous intéresser
Nous vous proposons de découvrir aussi cette sélection de logements situés à moins de 10km de Plaintel et qui seraient susceptibles de vous intéresser.
Trégueux
TERRAIN ET MAISONTrégueux : maison de 4 pièces (69 m²) en ventePROCHE DE SAINT-BRIEUC – MAISON 4 PIÈCES NEUVEÀ vendre : localisée à 6 km de la Manche et à quelques kilomètres de Saint-Brieuc, laissez vous charmer par à Trégueux (22950), cette maison de 4 pièces de 69 m². Elle compte trois chambres, une cuisine et une salle de bains.Le terrain de la maison s’étend sur 369 m².Cette maison possède 2 niveaux. Elle est neuve.L’École Maternelle Publique l’Oiseau Bleu et l’École Primaire Publique Louis Pasteur sont implantées à moins de 10 minutes à pied. Niveau transports, il y a trois gares (Saint-Brieuc, Yffiniac et La Méaugon) à moins de 10 minutes en voiture. La nationale N12 est accessible à 3 km. On trouve une bibliothèque, trois commerces et un bureau de poste dans les environs.Son prix de vente est de 221 000 €.Contactez notre agence (ROGER Samuel : (Numéro supprimé)) pour plus d’informations sur cette maison, sur les démarches à suivre ou sur les modalités de vente. Maisons de l’Avenir Saint-Brieuc est là pour vous accompagner à toutes les étapes de votre projet.
Saint-Brandan
TERRAINTerrain de 476 m² à vendre à Saint-BrandanPROCHE DE SAINT-BRIEUCÀ Saint-Brandan (22800) à vendre à 23 km de la Manche et à quelques kilomètres de Saint-Brieuc, imaginez la maison de vos rêves sur ce terrain de 476 m². Il y a l’École Primaire Privée Sainte Anne et l’École Primaire Publique les Chrysalides à moins de 10 minutes à pied. On trouve un accès à la nationale N12 à 15 km. On trouve une bibliothèque, un tennis, une boulangerie et un commerce à proximité.Il est à vendre pour la somme de 46 900 €. Contactez notre agence (ROGER Samuel : (Numéro supprimé)) pour plus d’informations sur le terrain, sur les modalités de vente ou sur les démarches à suivre. Maisons de l’Avenir Saint-Brieuc est là pour vous accompagner à toutes les étapes de l’achat.
Trégueux
TERRAIN ET MAISONVENTE : maison F5 (88 m²) à TrégueuxPROCHE DE SAINT-BRIEUC – MAISON 5 PIÈCES NEUVEÀ vendre à 6 km de la Manche et à quelques kilomètres de Saint-Brieuc, nous vous proposons à Trégueux (22950), cette maison de 5 pièces de 88 m² et de 369 m² de terrain. Son intérieur est composé de quatre chambres, d’une cuisine et d’une salle de bains.Il s’agit d’une maison de 2 niveaux. Elle est neuve.L’École Maternelle Publique l’Oiseau Bleu et l’École Primaire Publique Louis Pasteur se trouvent à moins de 10 minutes à pied. Niveau transports en commun, il y a trois gares (Saint-Brieuc, Yffiniac et La Méaugon) à moins de 10 minutes en voiture. Il y a un accès à la nationale N12 à 3 km. On trouve une bibliothèque, trois commerces et un bureau de poste à proximité du logement.Son prix de vente est de 260 000 €.Contactez notre agence (ROGER Samuel : (Numéro supprimé)) pour obtenir de plus amples informations sur la maison.
Trégueux
TERRAIN ET MAISONVENTE : maison F4 (82 m²) à TrégueuxMAISON 4 PIÈCES NEUVE – PROCHE DE SAINT-BRIEUCÀ vendre : à 6 km de la Manche et à quelques kilomètres de Saint-Brieuc, à Trégueux (22950), notre agence Maisons de l’Avenir Saint-Brieuc est heureuse de vous présenter cette maison de 4 pièces de plain-pied de 82 m² et de 369 m² de terrain. Son intérieur offre trois chambres, une cuisine et une salle de bains.La maison est neuve.L’École Maternelle Publique l’Oiseau Bleu et l’École Primaire Publique Louis Pasteur sont implantées à moins de 10 minutes à pied. Niveau transports, il y a trois gares (Saint-Brieuc, Yffiniac et La Méaugon) à moins de 10 minutes en voiture. Il y a un accès à la nationale N12 à 3 km. On trouve une bibliothèque, trois commerces et un bureau de poste à proximité du bien.Elle est proposée à l’achat pour 249 000 €.N’hésitez pas à prendre contact avec notre constructeur (ROGER Samuel : (Numéro supprimé)) pour tout renseignement sur cette maison. Donnez vie à vos projets immobiliers avec Maisons de l’Avenir Saint-Brieuc.
Trégueux
TERRAIN ET MAISONVENTE d’une maison de 3 pièces (57 m²) à TrégueuxMAISON 3 PIÈCES NEUVE – PROCHE DE SAINT-BRIEUCEn vente à 6 km de la Manche et à 4 km de Saint-Brieuc, à Trégueux (22950), Maisons de l’Avenir Saint-Brieuc vous propose cette maison de 3 pièces de plain-pied de 57 m².Conçue de plain-pied, elle inclut deux chambres, une cuisine et une salle de bains. Cette maison est neuve.Le terrain du bien s’étend sur 369 m².Il y a l’École Maternelle Publique l’Oiseau Bleu et l’École Primaire Publique Louis Pasteur à moins de 10 minutes à pied. Côté transports en commun, on trouve trois gares (Saint-Brieuc, Yffiniac et La Méaugon) à moins de 10 minutes en voiture. La nationale N12 est accessible à 3 km. Il y a une bibliothèque, trois commerces et un bureau de poste à proximité de la maison.Elle est à vendre pour la somme de 197 000 €.Contactez Samuel ROGER ((Numéro supprimé)) pour toute question sur la maison, sur les démarches à suivre ou sur les modalités de vente.
Ploufragan
TERRAINSitué dans un environnement calme, ce terrain constructible de 711 m² se trouve à seulement 10 minutes de la gare de Saint-Brieuc, 20 minutes de la mer et des plages, et à 3 km du bourg de Ploufragan, où vous trouverez collège, commerces et supermarché. Une ligne de bus passe à proximité, facilitant les déplacements.Superficie : 711 m²Semi-viabilisé : il ne reste plus que le raccordement électrique à effectuer (fourreau déjà en place)Raccordé au tout-à-l’égoutN’attendez plus pour concrétiser votre rêve de construction et devenir propriétaire d’un bien immobilier.Budget : 86300 euros Hai à la charge de l’acquéreur soit 8.15% (6500 euros).PNV: 79800 eurosFrais Notariés en SUS= 7300 eurosPour visiter et vous accompagner dans votre projet, contactez Julien PÉROT, au (Numéro supprimé) ou, par courriel à (Email supprimé). Mandat réf : 420391- En collaborant avec un professionnel agréé FNAIM, vous bénéficiez d’un accompagnement personnalisé, garantissant, et sécurisant votre projet immobilier. Selon l’article L.561.5 du Code Monétaire et Financier, pour l’organisation de la visite, la présentation d’une pièce d’identité vous sera demandée. Cette présente annonce a été rédigée sous la responsabilité éditoriale de Julien PÉROT agissant sous le statut d’agent commercial immatriculé au RSAC SAINT BRIEUC 822474151 auprès de SAS PROPRIETES PRIVEES, au capital de 44 920 euros, ZAC LE CHÊNE FERRÉ – 44 ALLÉE DES CINQ CONTINENTS 44120 VERTOU ; SIRET 487 624 777 00040, RCS Nantes. Carte Professionnelle Transactions sur immeubles et fonds de commerce (T) et Gestion immobilière (G) n° CPI 4401 2016 000 010 388 délivrée par la CCI Nantes – Saint Nazaire. Compte séquestre n(Numéro supprimé)67 BPA SAINT-SEBASTIEN-SUR-LOIRE (44230). Garantie GALIAN-SMABTP – 89 rue de la Boétie, 75008 Paris – n°28137 J pour 2 000 000 euros pour T et 120 000 euros pour G. Assurance responsabilité civile professionnelle par GALIAN-SMABTP n° de police 28137. (8.15 % honoraires TTC à la charge de l’acquéreur.) Julien PÉROT (EI) Agent Commercial – Numéro RSAC : SAINT BRIEUC 822474151 – .
Trégueux
TERRAINVENTE : terrain de 369 m² à TrégueuxPROCHE DE SAINT-BRIEUCÀ Trégueux (22950) à 6 km de la Manche et à 4 km de Saint-Brieuc, découvrez ce terrain de 369 m². Il y a l’École Maternelle Publique l’Oiseau Bleu et l’École Primaire Publique Louis Pasteur à moins de 10 minutes à pied. Côté transports, on trouve trois gares (Saint-Brieuc, Yffiniac et La Méaugon) à moins de 10 minutes en voiture. Il y a un accès à la nationale N12 à 3 km. Il y a une bibliothèque, trois commerces et un bureau de poste à quelques minutes du terrain.Il est à vendre pour la somme de 83 000 €. Prenez contact avec notre agence (ROGER Samuel : (Numéro supprimé)) pour toute question sur ce terrain. Faites de vos projets immobiliers une réalité avec Maisons de l’Avenir Saint-Brieuc.
Plaintel
TERRAIN ET MAISONMaison T5 (89 m²) en vente à PlaintelQUARTIER RECHERCHÉ – MAISON 5 PIÈCES NEUVEÀ vendre à 16 km de la Manche et à quelques kilomètres de Saint-Brieuc, nous vous présentons cette maison de 5 pièces de 89 m² et de 452 m² de terrain située dans un quartier recherché de Plaintel (22940). Elle inclut quatre chambres, une cuisine et deux salles de bains.C’est une maison de 2 niveaux. Elle est neuve.La maison est située dans un secteur attractif. L’École Primaire Privée Saint Joseph est implantée à moins de 10 minutes à pied. Côté transports, on trouve la gare La Méaugon à moins de 10 minutes en voiture. Il y a un accès à la nationale N12 à 11 km. Il y a une bibliothèque, deux boulangeries, un commerce, un supermarché, une boucherie-charcuterie et une épicerie à proximité du logement.Elle est à vendre pour la somme de 257 000 €.Contactez notre agence (Samuel ROGER : (Numéro supprimé)) pour toute question sur la maison ou sur les modalités de vente. Maisons de l’Avenir Saint-Brieuc est là pour vous accompagner à toutes les étapes de votre projet.
Plaintel
TERRAINVENTE d’un terrain de 452 m² à PlaintelQUARTIER RECHERCHÉ – PROCHE DE SAINT-BRIEUCTerrain de 452 m² à vendre à 16 km de la Manche et à 12 km de Saint-Brieuc. Ce terrain se situe situé dans un secteur prisé de Plaintel (22940). Il y a l’École Primaire Privée Saint Joseph à moins de 10 minutes à pied. Niveau transports en commun, on trouve la gare La Méaugon à moins de 10 minutes en voiture. La nationale N12 est accessible à 11 km. Il y a une bibliothèque, deux boulangeries, un commerce, un supermarché, une boucherie-charcuterie et une épicerie dans les environs.Son prix de vente est de 63 000 €. N’hésitez pas à prendre contact avec Samuel ROGER ((Numéro supprimé)) pour toute information sur ce terrain. Donnez vie à vos projets immobiliers avec Maisons de l’Avenir Saint-Brieuc.
L’actualité immobilière à Plaintel
27/11/2023
02/11/2023
30/10/2023
20/10/2023
16/10/2023
16/10/2023