Maison à construire à Pléneuf-Val-André (22370)
Images
Description
Pléneuf-Val-André : maison de 4 pièces (100 m²) en vente
PROCHE DE SAINT-BRIEUC - MAISON 4 PIÈCES NEUVE
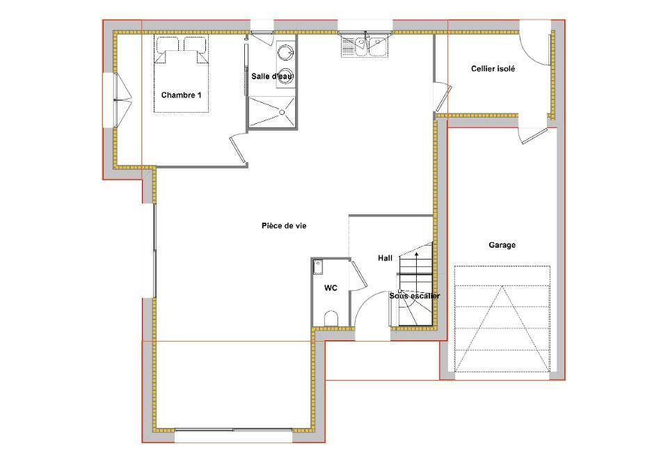
À vendre : localisée à 10 km de la Manche et à 19 km de Saint-Brieuc, notre agence Maisons de l'Avenir Saint-Brieuc est ravie de vous proposer cette maison de 4 pièces de 100 m² à Pléneuf-Val-André (22370). Son intérieur se divise en quatre chambres, une cuisine et deux salles de bains.
Le terrain de la maison s'étend sur 459 m².
Cette maison compte 2 niveaux. Elle est neuve.
Il y a quatre établissements scolaires à moins de 10 minutes à pied. La nationale N12 est accessible à 13 km. On trouve un bassin de natation, deux tennis, des commerces, deux boulangeries, un supermarché, un bureau de poste et deux boucheries-charcuteries à quelques minutes de la maison. Enfin, le marché Place de l'Amirauté a lieu tous les vendredis matin.
Elle est à vendre pour la somme de 355 000 €.
Contactez Samuel ROGER (tél : (Numéro supprimé)) pour toute information sur cette maison ou sur les démarches à suivre.
Logement susceptibles de vous intéresser
Nous vous proposons de découvrir aussi cette sélection de logements situés à moins de 10km de Pléneuf-Val-André et qui seraient susceptibles de vous intéresser.
Pléneuf-Val-André
TERRAINSitué à seulement 800 mètres du bourg de Pléneuf-Val-André et à 1,5 km de la mer et des plages, ce terrain plat et viabilisé (eau, électricité, télécom, tout à l’égout) offre un cadre idéal pour concrétiser votre projet de vie.Avec une configuration parfaite pour la construction d’une maison de plain-pied, ce terrain est prêt à bâtir et peut parfaitement accueillir une habitation avec 2 chambres, ouverte sur un environnement calme et agréable.- Terrain viabilisé (assainissement au tout-à-l’égout)- Environnement résidentiel paisible- Proximité immédiate du bourg, des écoles et commerces- Mer et plages accessibles à pied ou à véloTerrain plat : idéal pour éviter les surcoûts de construction Libre de constructeurUne opportunité rare sur le secteur de Pléneuf-Val-André, prisé pour sa qualité de vie et sa proximité avec le littoral.N’attendez plus pour concrétiser votre rêve de construction et devenir propriétaire d’un bien immobilier.Budget : 134190 euros Hai à la charge de l’acquéreur soit 8% (9940 euros).PNV: 124250 eurosFrais Notariés en SUS= 1100 eurosPour visiter et vous accompagner dans votre projet, contactez Julien PÉROT, au (Numéro supprimé) ou, par courriel à (Email supprimé). Mandat réf : 426435- En collaborant avec un professionnel agréé FNAIM, vous bénéficiez d’un accompagnement personnalisé, garantissant, et sécurisant votre projet immobilier. Selon l’article L.561.5 du Code Monétaire et Financier, pour l’organisation de la visite, la présentation d’une pièce d’identité vous sera demandée. Cette présente annonce a été rédigée sous la responsabilité éditoriale de Julien PÉROT agissant sous le statut d’agent commercial immatriculé au RSAC SAINT BRIEUC 822474151 auprès de SAS PROPRIETES PRIVEES, au capital de 44 920 euros, ZAC LE CHÊNE FERRÉ – 44 ALLÉE DES CINQ CONTINENTS 44120 VERTOU ; SIRET 487 624 777 00040, RCS Nantes. Carte Professionnelle Transactions sur immeubles et fonds de commerce (T) et Gestion immobilière (G) n° CPI 4401 2016 000 010 388 délivrée par la CCI Nantes – Saint Nazaire. Compte séquestre n(Numéro supprimé)67 BPA SAINT-SEBASTIEN-SUR-LOIRE (44230). Garantie GALIAN-SMABTP – 89 rue de la Boétie, 75008 Paris – n°28137 J pour 2 000 000 euros pour T et 120 000 euros pour G. Assurance responsabilité civile professionnelle par GALIAN-SMABTP n° de police 28137. (8.00 % honoraires TTC à la charge de l’acquéreur.) Julien PÉROT (EI) Agent Commercial – Numéro RSAC : SAINT BRIEUC 822474151 – .Les informations sur les risques auxquels ce bien est exposé sont disponibles sur le site Géorisques : www. georisques. gouv. fr
Pléneuf-Val-André
TERRAINSitué à seulement 800 mètres du bourg de Pléneuf-Val-André et à 1,5 km de la mer et des plages, ce terrain plat et viabilisé (eau, électricité, télécom, tout à l’égout) offre un cadre idéal pour concrétiser votre projet de vie.Avec une configuration parfaite pour la construction d’une maison de plain-pied, ce terrain est prêt à bâtir et peut parfaitement accueillir une habitation avec 2 chambres, ouverte sur un environnement calme et agréable.- Terrain viabilisé (assainissement au tout-à-l’égout)- Environnement résidentiel paisible- Proximité immédiate du bourg, des écoles et commerces- Mer et plages accessibles à pied ou à véloTerrain plat : idéal pour éviter les surcoûts de construction Libre de constructeurUne opportunité rare sur le secteur de Pléneuf-Val-André, prisé pour sa qualité de vie et sa proximité avec le littoral.N’attendez plus pour concrétiser votre rêve de construction et devenir propriétaire d’un bien immobilier.Budget : 216344 euros Hai à la charge de l’acquéreur soit 7.5% (15094 euros).PNV: 201250 eurosFrais Notariés en SUS= 16700 eurosPour visiter et vous accompagner dans votre projet, contactez Julien PÉROT, au (Numéro supprimé) ou, par courriel à (Email supprimé). Mandat réf : 426437- En collaborant avec un professionnel agréé FNAIM, vous bénéficiez d’un accompagnement personnalisé, garantissant, et sécurisant votre projet immobilier. Selon l’article L.561.5 du Code Monétaire et Financier, pour l’organisation de la visite, la présentation d’une pièce d’identité vous sera demandée. Cette présente annonce a été rédigée sous la responsabilité éditoriale de Julien PÉROT agissant sous le statut d’agent commercial immatriculé au RSAC SAINT BRIEUC 822474151 auprès de SAS PROPRIETES PRIVEES, au capital de 44 920 euros, ZAC LE CHÊNE FERRÉ – 44 ALLÉE DES CINQ CONTINENTS 44120 VERTOU ; SIRET 487 624 777 00040, RCS Nantes. Carte Professionnelle Transactions sur immeubles et fonds de commerce (T) et Gestion immobilière (G) n° CPI 4401 2016 000 010 388 délivrée par la CCI Nantes – Saint Nazaire. Compte séquestre n(Numéro supprimé)67 BPA SAINT-SEBASTIEN-SUR-LOIRE (44230). Garantie GALIAN-SMABTP – 89 rue de la Boétie, 75008 Paris – n°28137 J pour 2 000 000 euros pour T et 120 000 euros pour G. Assurance responsabilité civile professionnelle par GALIAN-SMABTP n° de police 28137. (7.50 % honoraires TTC à la charge de l’acquéreur.) Julien PÉROT (EI) Agent Commercial – Numéro RSAC : SAINT BRIEUC 822474151 – .Les informations sur les risques auxquels ce bien est exposé sont disponibles sur le site Géorisques : www. georisques. gouv. fr
Pléneuf-Val-André
TERRAINSitué à seulement 800 mètres du bourg de Pléneuf-Val-André et à 1,5 km de la mer et des plages, ce terrain plat et viabilisé (eau, électricité, télécom, tout à l’égout) offre un cadre idéal pour concrétiser votre projet de vie.Avec une configuration parfaite pour la construction d’une maison de plain-pied, ce terrain est prêt à bâtir et peut parfaitement accueillir une habitation avec 2 chambres, ouverte sur un environnement calme et agréable.- Terrain viabilisé (assainissement au tout-à-l’égout)- Environnement résidentiel paisible- Proximité immédiate du bourg, des écoles et commerces- Mer et plages accessibles à pied ou à véloTerrain plat : idéal pour éviter les surcoûts de construction Libre de constructeurUne opportunité rare sur le secteur de Pléneuf-Val-André, prisé pour sa qualité de vie et sa proximité avec le littoral.N’attendez plus pour concrétiser votre rêve de construction et devenir propriétaire d’un bien immobilier.Budget : 93500 euros Hai à la charge de l’acquéreur soit 10% (8500 euros).PNV: 85000 eurosFrais Notariés en SUS= 8100 eurosPour visiter et vous accompagner dans votre projet, contactez Julien PÉROT, au (Numéro supprimé) ou, par courriel à (Email supprimé). Mandat réf : 426386- En collaborant avec un professionnel agréé FNAIM, vous bénéficiez d’un accompagnement personnalisé, garantissant, et sécurisant votre projet immobilier. Selon l’article L.561.5 du Code Monétaire et Financier, pour l’organisation de la visite, la présentation d’une pièce d’identité vous sera demandée. Cette présente annonce a été rédigée sous la responsabilité éditoriale de Julien PÉROT agissant sous le statut d’agent commercial immatriculé au RSAC SAINT BRIEUC 822474151 auprès de SAS PROPRIETES PRIVEES, au capital de 44 920 euros, ZAC LE CHÊNE FERRÉ – 44 ALLÉE DES CINQ CONTINENTS 44120 VERTOU ; SIRET 487 624 777 00040, RCS Nantes. Carte Professionnelle Transactions sur immeubles et fonds de commerce (T) et Gestion immobilière (G) n° CPI 4401 2016 000 010 388 délivrée par la CCI Nantes – Saint Nazaire. Compte séquestre n(Numéro supprimé)67 BPA SAINT-SEBASTIEN-SUR-LOIRE (44230). Garantie GALIAN-SMABTP – 89 rue de la Boétie, 75008 Paris – n°28137 J pour 2 000 000 euros pour T et 120 000 euros pour G. Assurance responsabilité civile professionnelle par GALIAN-SMABTP n° de police 28137. (10.00 % honoraires TTC à la charge de l’acquéreur.) Julien PÉROT (EI) Agent Commercial – Numéro RSAC : SAINT BRIEUC 822474151 – .Les informations sur les risques auxquels ce bien est exposé sont disponibles sur le site Géorisques : www. georisques. gouv. fr
Plurien
TERRAIN ET MAISONPlurien : maison T5 (120 m²) en venteMAISON 5 PIÈCES NEUVE – PROCHE DE SAINT-BRIEUCEn vente à 3 km de la Manche et à deux pas de Saint-Brieuc, ayez le coup de coeur pour à Plurien (22240), cette maison de 5 pièces de 120 m².Cette maison comporte 2 niveaux. Elle se divise en quatre chambres, une cuisine et deux salles de bains. La maison est neuve.Le terrain de la propriété s’étend sur 450 m².Il y a l’École Primaire Publique de Plurien à moins de 10 minutes à pied. On trouve un tennis, deux commerces, une boulangerie, une poissonnerie, une boucherie-charcuterie et une épicerie dans les environs.Elle est proposée à l’achat pour 369 500 €.N’hésitez pas à prendre contact avec Quentin LEZOUR ((Numéro supprimé)) pour toute information sur cette maison ou sur les modalités de vente. Maisons de l’Avenir Saint-Carné est là pour vous accompagner dans toutes vos démarches.
Pléneuf-Val-André
TERRAIN ET MAISONPléneuf-Val-André : maison de 5 pièces (110 m²) à vendrePROCHE DE SAINT-BRIEUC – MAISON 5 PIÈCES NEUVEEn vente : à 10 km de la Manche et à quelques kilomètres de Saint-Brieuc, votre agence Maisons de l’Avenir Saint-Carné est ravie de vous proposer cette maison de 5 pièces de 110 m² et de 445 m² de terrain à Pléneuf-Val-André (22370). Elle comporte quatre chambres, une cuisine et deux salles de bains.Cette maison possède 2 niveaux. Elle est neuve.Quatre établissements scolaires se trouvent à moins de 10 minutes à pied. Il y a un accès à la nationale N12 à 13 km. Il y a un bassin de natation, deux tennis, des commerces, deux boulangeries, un supermarché, deux boucheries-charcuteries et un bureau de poste à proximité. Enfin, le marché Place de l’Amirauté anime le quartier chaque vendredi matin.Elle est à vendre pour la somme de 360 000 €.N’hésitez pas à prendre contact avec notre agence (LEZOUR Quentin : (Numéro supprimé)) pour plus d’informations sur cette maison ou sur les démarches à suivre. Maisons de l’Avenir Saint-Carné est là pour vous accompagner dans tous vos projets immobiliers.
Erquy
TERRAIN ET MAISONVENTE d’une maison de 4 pièces (110 m²) à ErquyPROCHE DE SAINT-BRIEUC – MAISON 4 PIÈCES NEUVEÀ vendre à 3 km de la Manche et à quelques kilomètres de Saint-Brieuc, Maisons de l’Avenir Saint-Carné vous présente cette maison de 4 pièces de 110 m² à Erquy (22430). Elle dispose de trois chambres, d’une cuisine et d’une salle de bains.Le terrain du bien est de 377 m².Il s’agit d’une maison de 2 niveaux. Elle est neuve.Cinq établissements scolaires sont implantés à moins de 10 minutes en voiture, tout comme une crèche à moins de 10 minutes à pied. Il y a des bibliothèques, deux bassins de natation, des tennis, deux ports de plaisance, des commerces, des supermarchés, des boulangeries, trois épiceries et trois bureaux de poste à quelques minutes. 2 marchés animent les environs.Elle est proposée à l’achat pour 332 000 €.Contactez Quentin LEZOUR ((Numéro supprimé)) pour toute information sur cette maison, sur les modalités de vente et sur les démarches à suivre.
Plurien
TERRAIN ET MAISONVENTE d’une maison T4 (110 m²) à PlurienPROCHE DE SAINT-BRIEUC – MAISON 4 PIÈCES NEUVEÀ 3 km de la Manche et à 29 km de Saint-Brieuc, nous sommes ravis de vous présenter cette maison de 4 pièces de 110 m² en vente à Plurien (22240).Cette maison comporte 2 niveaux. Son intérieur offre trois chambres, une cuisine et une salle de bains. Cette maison est neuve.Le terrain du bien s’étend sur 450 m².L’École Primaire Publique de Plurien se trouve à moins de 10 minutes à pied. Il y a un tennis, deux commerces, une boulangerie, une poissonnerie, une boucherie-charcuterie et une épicerie à proximité de la maison.Son prix de vente est de 325 500 €.N’hésitez pas à prendre contact avec notre agence (Quentin LEZOUR : (Numéro supprimé)) pour obtenir de plus amples informations sur la maison. Maisons de l’Avenir Saint-Carné vous accompagne à toutes les étapes de l’achat et dans toutes vos démarches.
Plurien
TERRAIN ET MAISONMaison F4 (120 m²) à vendre à PlurienPROCHE DE SAINT-BRIEUC – MAISON 4 PIÈCES NEUVEÀ vendre : localisée à 3 km de la Manche et à quelques kilomètres de Saint-Brieuc, nous sommes heureux de vous proposer à Plurien (22240), cette maison de 4 pièces de plain-pied de 120 m² et de 450 m² de terrain. Son intérieur se divise en trois chambres, une cuisine et deux salles de bains.La maison est neuve.Il y a l’École Primaire Publique de Plurien à moins de 10 minutes à pied. On trouve un tennis, deux commerces, une boulangerie, une poissonnerie, une boucherie-charcuterie et une épicerie à quelques minutes du bien.Elle est proposée à l’achat pour 371 500 €.Contactez Quentin LEZOUR ((Numéro supprimé)) pour tout renseignement sur la maison, sur les démarches à suivre ou sur les modalités de vente.
Pléneuf-Val-André
TERRAIN ET MAISONVENTE d’une maison F4 (110 m²) à Pléneuf-Val-AndréPROCHE DE SAINT-BRIEUC – MAISON 4 PIÈCES NEUVEÀ vendre : à 10 km de la Manche et à 19 km de Saint-Brieuc, nous sommes ravis de vous proposer cette maison de 4 pièces de 110 m² et de 445 m² de terrain à Pléneuf-Val-André (22370). Son intérieur compte trois chambres, une cuisine et une salle de bains.C’est une maison de 2 niveaux. Elle est neuve.Il y a quatre établissements scolaires à moins de 10 minutes à pied. On trouve un accès à la nationale N12 à 13 km. On trouve un bassin de natation, deux tennis, des commerces, deux boulangeries, un supermarché, deux boucheries-charcuteries et un bureau de poste à quelques minutes du logement. Enfin, le marché Place de l’Amirauté a lieu tous les vendredis matin.Son prix de vente est de 349 000 €.Contactez Quentin LEZOUR ((Numéro supprimé)) pour toute information sur la maison, sur les modalités de vente ou sur les démarches à suivre. Donnez vie à vos projets immobiliers avec Maisons de l’Avenir Saint-Carné.
L’actualité immobilière à Pléneuf-Val-André
27/11/2023
02/11/2023
30/10/2023
20/10/2023
16/10/2023
16/10/2023