Maison à construire à Plouha (22580)
Images
Description
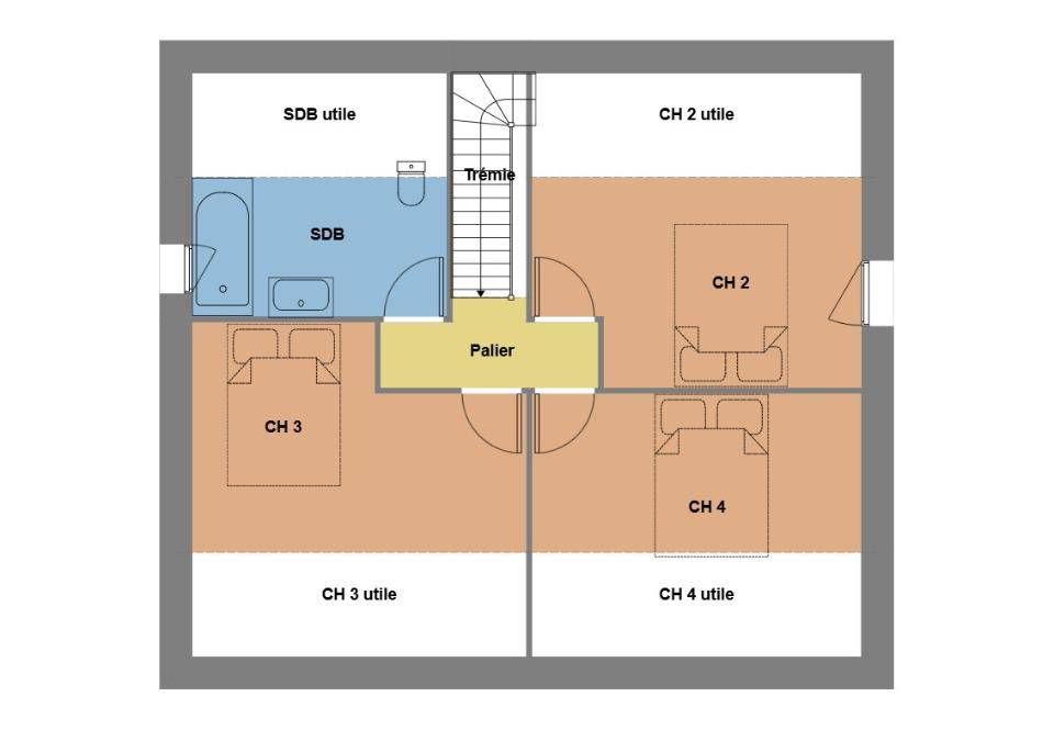
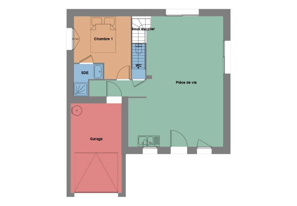
VENTE d'une maison de 5 pièces (102 m²) à Plouha
MAISON 5 PIÈCES NEUVE - PROCHE DE SAINT-BRIEUC
À vendre : localisée à 6 km de la Manche et à quelques kilomètres de Saint-Brieuc, nous sommes heureux de vous présenter cette maison de 5 pièces de 102 m² et de 375 m² de terrain à Plouha (22580).
Il s'agit d'une maison de 2 niveaux. Son intérieur comporte quatre chambres, une cuisine et deux salles de bains. La maison est neuve.
L'École Primaire Publique Mona et Jacques Ozouf, le Collège Jean Louis Hamon et l'École Primaire Privée Saint Yves sont implantés à moins de 10 minutes à pied. La nationale N12 est accessible à 16 km. Il y a un tennis, une bibliothèque, trois boulangeries, des commerces, un bureau de poste, deux boucheries-charcuteries et deux poissonneries à proximité. Enfin, le marché Place de l'église a lieu chaque mercredi matin.
Elle est proposée à l'achat pour 281 000 €.
Contactez Samuel ROGER (tél : (Numéro supprimé)) pour toute information sur cette maison ou sur les démarches à suivre. Maisons de l'Avenir Saint-Brieuc vous accompagne dans tous vos projets immobiliers et à toutes les étapes de votre projet.
Logement susceptibles de vous intéresser
Nous vous proposons de découvrir aussi cette sélection de logements situés à moins de 10km de Plouha et qui seraient susceptibles de vous intéresser.
Binic-Étables-sur-Mer
TERRAINVENTE : terrain de 484 m² à BinicPROCHE DE SAINT-BRIEUCÀ vendre à 2 km de la Manche et à deux pas de Saint-Brieuc à Binic (22520), terrain de 484 m². Réalisez-y la maison de vos rêves. L’École Primaire Publique la Vigie et l’École Primaire Privée Sacré-Coeur sont implantées à moins de 10 minutes à pied, tout comme une structure d’accueil pour les tout-petits. La nationale N12 est accessible à 7 km. Il y a des commerces, deux boulangeries, trois épiceries, une supérette et une boucherie-charcuterie à quelques minutes de la propriété.Il est proposé à l’achat pour 120 000 €. Contactez notre agence (Samuel ROGER : (Numéro supprimé)) pour plus de renseignements sur ce terrain, sur les démarches à suivre ou sur les modalités de vente. Maisons de l’Avenir Saint-Brieuc vous accompagne dans tous vos projets immobiliers et à toutes les étapes de l’achat.
Binic-Étables-sur-Mer
TERRAIN ET MAISONVENTE d’une maison de 4 pièces (70 m²) à BinicMAISON 4 PIÈCES NEUVE – PROCHE DE SAINT-BRIEUCÀ vendre : située à 2 km de la Manche et à 11 km de Saint-Brieuc, à Binic (22520), venez découvrir cette maison de 4 pièces de plain-pied de 70 m². Conçue de plain-pied, elle compte trois chambres, une cuisine et une salle de bains.Le terrain du bien s’étend sur 484 m².Cette maison est neuve.Il y a l’École Primaire Publique la Vigie et l’École Primaire Privée Sacré-Coeur à moins de 10 minutes à pied et une crèche. La nationale N12 est accessible à 7 km. On trouve des commerces, deux boulangeries, un bureau de poste, trois épiceries et une boucherie-charcuterie à proximité de la maison.Elle est à vendre pour la somme de 295 000 €.Contactez Samuel ROGER ((Numéro supprimé)) pour toute information sur cette maison.
Binic-Étables-sur-Mer
TERRAIN ET MAISONBinic : maison de 5 pièces (110 m²) en ventePROCHE DE SAINT-BRIEUC – MAISON 5 PIÈCES NEUVEÀ 2 km de la Manche et à 11 km de Saint-Brieuc, nous vous proposons cette maison de 5 pièces de plain-pied de 110 m² et de 484 m² de terrain à Binic (22520).Son intérieur est composé de quatre chambres, d’une cuisine et de deux salles de bains. Cette maison est neuve.L’École Primaire Publique la Vigie et l’École Primaire Privée Sacré-Coeur sont implantées à moins de 10 minutes à pied, tout comme une structure d’accueil pour les enfants en bas âge. La nationale N12 est accessible à 7 km. Il y a des commerces, deux boulangeries, une supérette, trois épiceries et un bureau de poste à proximité de la maison.Elle est proposée à l’achat pour 340 000 €.N’hésitez pas à prendre contact avec Samuel ROGER (tél : (Numéro supprimé)) pour toute question sur la maison ou sur les modalités de vente. Maisons de l’Avenir Saint-Brieuc est là pour vous accompagner à toutes les étapes de votre projet.
Binic-Étables-sur-Mer
TERRAIN ET MAISONVENTE : maison de 4 pièces (69 m²) à BinicPROCHE DE SAINT-BRIEUC – MAISON 4 PIÈCES NEUVEÀ vendre à 2 km de la Manche et à quelques kilomètres de Saint-Brieuc, nous sommes ravis de vous présenter cette maison de 4 pièces de 69 m² à Binic (22520). Son intérieur inclut trois chambres, une cuisine et une salle de bains.Le terrain de cette maison s’étend sur 484 m².Il s’agit d’une maison de 2 niveaux. Elle est neuve.Il y a l’École Primaire Publique la Vigie et l’École Primaire Privée Sacré-Coeur à moins de 10 minutes à pied et une structure d’accueil pour les enfants en bas âge. La nationale N12 est accessible à 7 km. On trouve des commerces, deux boulangeries, une boucherie-charcuterie, un bureau de poste et trois épiceries à quelques minutes du logement.Elle est proposée à l’achat pour 278 000 €.N’hésitez pas à prendre contact avec Samuel ROGER (tél : (Numéro supprimé)) pour plus de renseignements sur la maison, sur les modalités de vente ou sur les démarches à suivre. Maisons de l’Avenir Saint-Brieuc est là pour vous accompagner dans tous vos projets immobiliers.
Binic-Étables-sur-Mer
TERRAINTerrain de 592 m² en vente à BinicIDÉALEMENT SITUÉ – PROCHE DE SAINT-BRIEUCÀ Binic (22520) à vendre à 2 km de la Manche et à deux pas de Saint-Brieuc, imaginez la maison de vos rêves sur ce terrain de 592 m². Dans un secteur recherché, le terrain idéalement situé est proche des commerces et des écoles. Il y a l’École Primaire Publique la Vigie et l’École Primaire Privée Sacré-Coeur à moins de 10 minutes à pied et une structure d’accueil pour les tout-petits. La nationale N12 est accessible à 7 km. On trouve des commerces, deux boulangeries, une boucherie-charcuterie, trois épiceries et une supérette à proximité de la propriété.Il est proposé à l’achat pour 110 000 €. N’hésitez pas à prendre contact avec notre agence (Samuel ROGER : (Numéro supprimé)) pour plus de renseignements sur ce terrain, sur les modalités de vente ou sur les démarches à suivre. Faites de vos projets immobiliers une réalité avec Maisons de l’Avenir Saint-Brieuc.
Binic-Étables-sur-Mer
TERRAIN ET MAISONVENTE : maison de 4 pièces (80 m²) à BinicIDÉALEMENT SITUÉE – MAISON 4 PIÈCES NEUVEÀ vendre : à 2 km de la Manche et à deux pas de Saint-Brieuc, découvrez cette maison de 4 pièces de plain-pied de 80 m² et de 592 m² de terrain idéalement située dans Binic (22520). Son intérieur compte trois chambres, une cuisine et une salle de bains.La maison est neuve.Cette maison se trouve dans un quartier prisé. Il y a l’École Primaire Publique la Vigie et l’École Primaire Privée Sacré-Coeur à moins de 10 minutes à pied et une structure d’accueil pour les tout-petits. On trouve un accès à la nationale N12 à 7 km. On trouve des commerces, deux boulangeries, un bureau de poste, une supérette et une boucherie-charcuterie dans les environs.Son prix de vente est de 270 000 €.Contactez notre agence (Samuel ROGER : (Numéro supprimé)) pour toute question sur le bien. Faites de vos projets immobiliers une réalité avec Maisons de l’Avenir Saint-Brieuc.
Binic-Étables-sur-Mer
TERRAIN ET MAISONVENTE : maison F5 (90 m²) à BinicIDÉALEMENT SITUÉE – MAISON 5 PIÈCES NEUVEÀ vendre : à 2 km de la Manche et à 11 km de Saint-Brieuc, notre agence Maisons de l’Avenir Saint-Brieuc est ravie de vous proposer cette maison de 5 pièces de 90 m² idéalement située dans Binic (22520). Son intérieur comporte trois chambres, une cuisine et deux salles de bains.Le terrain de la propriété est de 592 m².Cette maison possède 2 niveaux. Elle est neuve.La propriété se situe dans un secteur convoité. L’École Primaire Publique la Vigie et l’École Primaire Privée Sacré-Coeur sont implantées à moins de 10 minutes à pied, tout comme une structure d’accueil pour les tout-petits. On trouve un accès à la nationale N12 à 7 km. Il y a des commerces, deux boulangeries, une boucherie-charcuterie, une supérette et trois épiceries dans les environs.Elle est à vendre pour la somme de 310 000 €.Contactez Samuel ROGER ((Numéro supprimé)) pour obtenir de plus amples informations sur la maison, sur les modalités de vente et sur les démarches à suivre. Faites de vos projets immobiliers une réalité avec Maisons de l’Avenir Saint-Brieuc.
Binic-Étables-sur-Mer
TERRAIN ET MAISONMaison F4 (92 m²) en vente à BinicIDÉALEMENT SITUÉE – MAISON 4 PIÈCES NEUVEEn vente : à 2 km de la Manche et à 11 km de Saint-Brieuc, idéalement située dans Binic (22520), nous vous proposons cette maison de 4 pièces de 92 m². Son intérieur inclut trois chambres, une cuisine et une salle de bains.Le terrain de la maison s’étend sur 592 m².Cette maison compte 2 niveaux. Elle est neuve.Cette maison est située dans un secteur prisé. L’École Primaire Publique la Vigie et l’École Primaire Privée Sacré-Coeur se trouvent à moins de 10 minutes à pied, tout comme une structure d’accueil pour les tout-petits. Il y a un accès à la nationale N12 à 7 km. Il y a des commerces, deux boulangeries, trois épiceries, une boucherie-charcuterie et un bureau de poste à proximité du logement.Son prix de vente est de 314 000 €.N’hésitez pas à prendre contact avec Samuel ROGER (tél : (Numéro supprimé)) pour tout renseignement sur la maison. Maisons de l’Avenir Saint-Brieuc vous accompagne à toutes les étapes de votre projet et dans tous vos projets immobiliers.
Plouha
TERRAINTerrain de 450 m² en vente à PlouhaPROCHE DE SAINT-BRIEUCEn vente à 6 km de la Manche et à deux pas de Saint-Brieuc à Plouha (22580), terrain de 450 m². Réalisez-y la maison de vos rêves. Il y a l’École Primaire Publique Mona et Jacques Ozouf, le Collège Jean Louis Hamon et l’École Primaire Privée Saint Yves à moins de 10 minutes à pied. On trouve un accès à la nationale N12 à 16 km. On trouve un tennis, une bibliothèque, trois boulangeries, des commerces, un bureau de poste, une épicerie et deux boucheries-charcuteries à proximité du terrain. Enfin, le marché Place de l’église anime les environs tous les mercredis matin.Il est proposé à l’achat pour 68 000 €. Contactez Samuel ROGER (tél : (Numéro supprimé)) pour toute question sur ce terrain.
L’actualité immobilière à Plouha
27/11/2023
02/11/2023
30/10/2023
20/10/2023
16/10/2023
16/10/2023