Maison à construire à Pludual (22290)
Images
Description
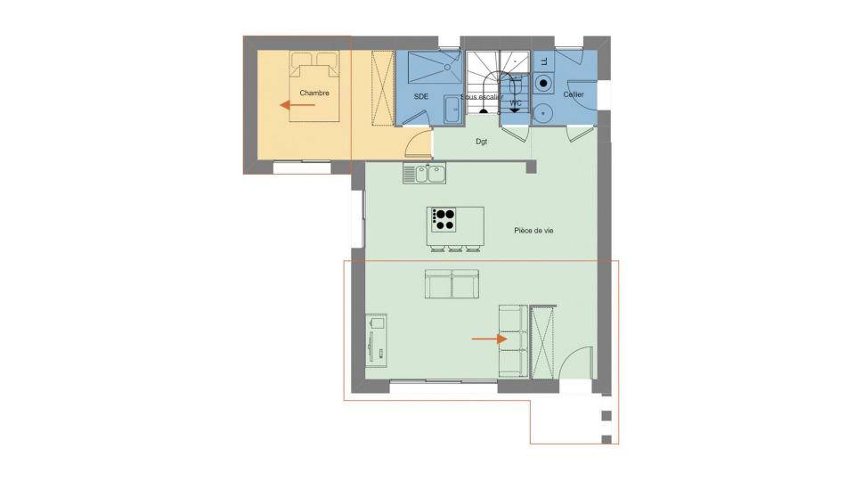
VENTE d'une maison de 4 pièces (94 m²) à Pludual
MAISON 4 PIÈCES NEUVE - PROCHE DE SAINT-BRIEUC
En vente : à 11 km de la Manche et à deux pas de Saint-Brieuc, à Pludual (22290), notre agence Maisons de l'Avenir Saint-Brieuc est ravie de vous présenter cette maison de 4 pièces de 94 m². Elle propose trois chambres, une cuisine et deux salles de bains.
Le terrain du bien s'étend sur 2 201 m².
Cette maison compte 2 niveaux. Elle est neuve.
Il y a un accès à la nationale N12 à 15 km. On trouve une bibliothèque, une boulangerie et une boucherie-charcuterie dans les environs.
Elle est proposée à l'achat pour 290 000 €.
N'hésitez pas à prendre contact avec Samuel ROGER (tél : (Numéro supprimé)) pour toute information sur cette maison, sur les démarches à suivre et sur les modalités de vente.
Logement susceptibles de vous intéresser
Nous vous proposons de découvrir aussi cette sélection de logements situés à moins de 10km de Pludual et qui seraient susceptibles de vous intéresser.
Pludual
TERRAIN ET MAISONVENTE d’une maison F5 (87 m²) à PludualMAISON 5 PIÈCES NEUVE – PROCHE DE SAINT-BRIEUCÀ 11 km de la Manche et à 24 km de Saint-Brieuc, votre agence Maisons de l’Avenir Saint-Brieuc est heureuse de vous proposer cette maison de 5 pièces de 87 m² et de 2 201 m² de terrain à Pludual (22290). Elle inclut quatre chambres, une cuisine et une salle de bains.Il s’agit d’une maison de 2 niveaux. Elle est neuve.On trouve un accès à la nationale N12 à 15 km. Il y a une bibliothèque, une boulangerie et une boucherie-charcuterie dans les environs.Elle est à vendre pour la somme de 290 000 €.N’hésitez pas à prendre contact avec notre constructeur (ROGER Samuel : (Numéro supprimé)) pour tout renseignement sur la maison ou sur les modalités de vente. Faites de vos projets immobiliers une réalité avec Maisons de l’Avenir Saint-Brieuc.
Tréguidel
TERRAINSitué dans un environnement calme et bien exposé, ce terrain constructible se trouve à seulement 5km de Lanvollon, où vous trouverez tous les commerces de proximités, 15 minutes de la mer et des plages (Binic).Superficie : environ 500 m². Bornage à la charge de l’acquéreur.Vendu non viabilisé. Tout-à-l’égoutN’attendez plus pour concrétiser votre rêve de construction et devenir propriétaire d’un bien immobilier.Budget : 51000 euros Hai à la charge de l’acquéreur soit 13.33% (soit 6000 euros).PNV: 45000 eurosFrais Notariés en SUS= 5000 eurosPour visiter et vous accompagner dans votre projet, contactez Julien PÉROT, au (Numéro supprimé) ou, par courriel à (Email supprimé). Mandat réf : 429097- En collaborant avec un professionnel agréé FNAIM, vous bénéficiez d’un accompagnement personnalisé, garantissant, et sécurisant votre projet immobilier. Selon l’article L.561.5 du Code Monétaire et Financier, pour l’organisation de la visite, la présentation d’une pièce d’identité vous sera demandée. Cette présente annonce a été rédigée sous la responsabilité éditoriale de Julien PÉROT agissant sous le statut d’agent commercial immatriculé au RSAC SAINT BRIEUC 822474151 auprès de SAS PROPRIETES PRIVEES, au capital de 44 920 euros, ZAC LE CHÊNE FERRÉ – 44 ALLÉE DES CINQ CONTINENTS 44120 VERTOU ; SIRET 487 624 777 00040, RCS Nantes. Carte Professionnelle Transactions sur immeubles et fonds de commerce (T) et Gestion immobilière (G) n° CPI 4401 2016 000 010 388 délivrée par la CCI Nantes – Saint Nazaire. Compte séquestre n(Numéro supprimé)67 BPA SAINT-SEBASTIEN-SUR-LOIRE (44230). Garantie GALIAN-SMABTP – 89 rue de la Boétie, 75008 Paris – n°28137 J pour 2 000 000 euros pour T et 120 000 euros pour G. Assurance responsabilité civile professionnelle par GALIAN-SMABTP n° de police 28137. (13.33 % honoraires TTC à la charge de l’acquéreur.) Julien PÉROT (EI) Agent Commercial – Numéro RSAC : SAINT BRIEUC 822474151 – .Les informations sur les risques auxquels ce bien est exposé sont disponibles sur le site Géorisques : www. georisques. gouv. fr
Pludual
TERRAIN ET MAISONVENTE d’une maison de 4 pièces (94 m²) à PludualMAISON 4 PIÈCES NEUVE – PROCHE DE SAINT-BRIEUCEn vente : à 11 km de la Manche et à deux pas de Saint-Brieuc, à Pludual (22290), notre agence Maisons de l’Avenir Saint-Brieuc est ravie de vous présenter cette maison de 4 pièces de 94 m². Elle propose trois chambres, une cuisine et deux salles de bains.Le terrain du bien s’étend sur 2 201 m².Cette maison compte 2 niveaux. Elle est neuve.Il y a un accès à la nationale N12 à 15 km. On trouve une bibliothèque, une boulangerie et une boucherie-charcuterie dans les environs.Elle est proposée à l’achat pour 290 000 €.N’hésitez pas à prendre contact avec Samuel ROGER (tél : (Numéro supprimé)) pour toute information sur cette maison, sur les démarches à suivre et sur les modalités de vente.
Lanvollon
TERRAIN ET MAISONMaison F4 (70 m²) à vendre à LanvollonMAISON 4 PIÈCES NEUVE – PROCHE DE SAINT-BRIEUCÀ vendre : située à 13 km de la Manche et à 22 km de Saint-Brieuc, Maisons de l’Avenir Saint-Brieuc vous présente cette maison de 4 pièces de plain-pied de 70 m² et de 372 m² de terrain à Lanvollon (22290).Son intérieur propose trois chambres, une cuisine et une salle de bains. Cette maison est neuve.Le Collège Privé Notre-Dame, l’École Primaire Privée Sacré Coeur et l’École Primaire Publique de Lanvollon sont implantés à moins de 10 minutes à pied, tout comme une crèche. La nationale N12 est accessible à 11 km. On trouve deux tennis, des commerces, trois boulangeries, un supermarché, une supérette et une épicerie à proximité de la maison. Le marché Centre-Ville a lieu chaque vendredi matin.Elle est proposée à l’achat pour 186 000 €.Contactez Samuel ROGER ((Numéro supprimé)) pour obtenir de plus amples informations sur la maison, sur les démarches à suivre ou sur les modalités de vente. Maisons de l’Avenir Saint-Brieuc est là pour vous accompagner à toutes les étapes de votre projet.
Lanvollon
TERRAIN ET MAISONVENTE d’une maison de 4 pièces (69 m²) à LanvollonMAISON 4 PIÈCES NEUVE – PROCHE DE SAINT-BRIEUCEn vente : à 13 km de la Manche et à 22 km de Saint-Brieuc, nous vous proposons cette maison de 4 pièces de 69 m² et de 372 m² de terrain à Lanvollon (22290).Cette maison comporte 2 niveaux. Son intérieur se divise en trois chambres, une cuisine et une salle de bains. La maison est neuve.Il y a le Collège Privé Notre-Dame, l’École Primaire Privée Sacré Coeur et l’École Primaire Publique de Lanvollon à moins de 10 minutes à pied et une crèche. La nationale N12 est accessible à 11 km. On trouve deux tennis, des commerces, trois boulangeries, un supermarché, une supérette et un bureau de poste à proximité. Ne manquez pas le marché Centre-Ville tous les vendredis matin.Elle est à vendre pour la somme de 199 000 €.Contactez notre agence (Samuel ROGER : (Numéro supprimé)) pour toute information sur cette maison. Maisons de l’Avenir Saint-Brieuc est là pour vous accompagner dans tous vos projets immobiliers.
Lanvollon
TERRAINTerrain de 372 m² en vente à LanvollonPROCHE DE SAINT-BRIEUCEn vente à 13 km de la Manche et à 22 km de Saint-Brieuc à Lanvollon (22290), terrain de 372 m². Réalisez-y votre résidence principale ou secondaire. On trouve le Collège Privé Notre-Dame, l’École Primaire Privée Sacré Coeur et l’École Primaire Publique de Lanvollon à moins de 10 minutes à pied et une crèche. La nationale N12 est accessible à 11 km. Il y a deux tennis, des commerces, trois boulangeries, un supermarché, deux boucheries-charcuteries et une supérette dans les environs. Le marché Centre-Ville a lieu chaque vendredi matin.Son prix de vente est de 46 000 €. Prenez contact avec notre agence (ROGER Samuel : (Numéro supprimé)) pour toute information sur le terrain ou sur les modalités de vente. Concrétisez vos projets immobiliers avec Maisons de l’Avenir Saint-Brieuc.
Pludual
TERRAINVENTE : terrain de 2 201 m² à PludualPROCHE DE SAINT-BRIEUCGrand terrain à 11 km de la Manche et à deux pas de Saint-Brieuc. De 2 201 m², ce terrain se situe dans Pludual (22290). La nationale N12 est accessible à 15 km. Il y a une bibliothèque, une boulangerie et une boucherie-charcuterie à quelques minutes à peine.Il est à vendre pour la somme de 105 950 €. Contactez notre agence (ROGER Samuel : (Numéro supprimé)) pour obtenir de plus amples informations sur ce terrain et sur les démarches à suivre. Concrétisez vos projets immobiliers avec Maisons de l’Avenir Saint-Brieuc.
Pludual
TERRAIN ET MAISONVENTE : maison de 4 pièces (80 m²) à PludualMAISON 4 PIÈCES NEUVE – PROCHE DE SAINT-BRIEUCEn vente à 11 km de la Manche et à deux pas de Saint-Brieuc, nous sommes heureux de vous présenter à Pludual (22290), cette maison de 4 pièces de plain-pied de 80 m².Conçue de plain-pied, elle se divise en trois chambres, une cuisine et une salle de bains. Cette maison est neuve.Le terrain de la propriété s’étend sur 2 201 m².On trouve un accès à la nationale N12 à 15 km. Il y a une bibliothèque, une boulangerie et une boucherie-charcuterie dans les environs.Elle est proposée à l’achat pour 260 000 €.Contactez notre agence (ROGER Samuel : (Numéro supprimé)) pour toute question sur la maison.
Pludual
TERRAIN ET MAISONVENTE d’une maison F3 (86 m²) à PludualMAISON 3 PIÈCES NEUVE – PROCHE DE SAINT-BRIEUCÀ vendre : située à 11 km de la Manche et à deux pas de Saint-Brieuc, laissez vous charmer par cette maison de 3 pièces de plain-pied de 86 m² et de 2 201 m² de terrain à Pludual (22290). Son intérieur propose trois chambres, une cuisine et une salle de bains.Cette maison est neuve.La nationale N12 est accessible à 15 km. Il y a une bibliothèque, une boulangerie et une boucherie-charcuterie dans les environs.Elle est à vendre pour la somme de 290 000 €.Contactez notre agence (ROGER Samuel : (Numéro supprimé)) pour toute question sur la maison ou sur les modalités de vente. Maisons de l’Avenir Saint-Brieuc est là pour vous accompagner à toutes les étapes de l’achat.
L’actualité immobilière à Pludual
27/11/2023
02/11/2023
30/10/2023
20/10/2023
16/10/2023
16/10/2023