Maison à construire à Plurien (22240)
Images
Description
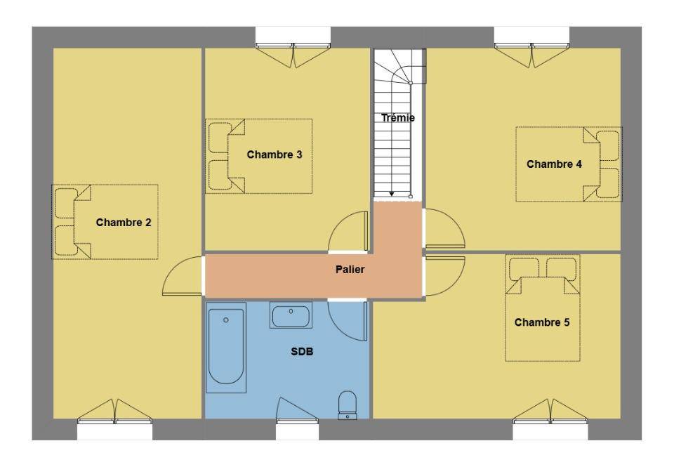
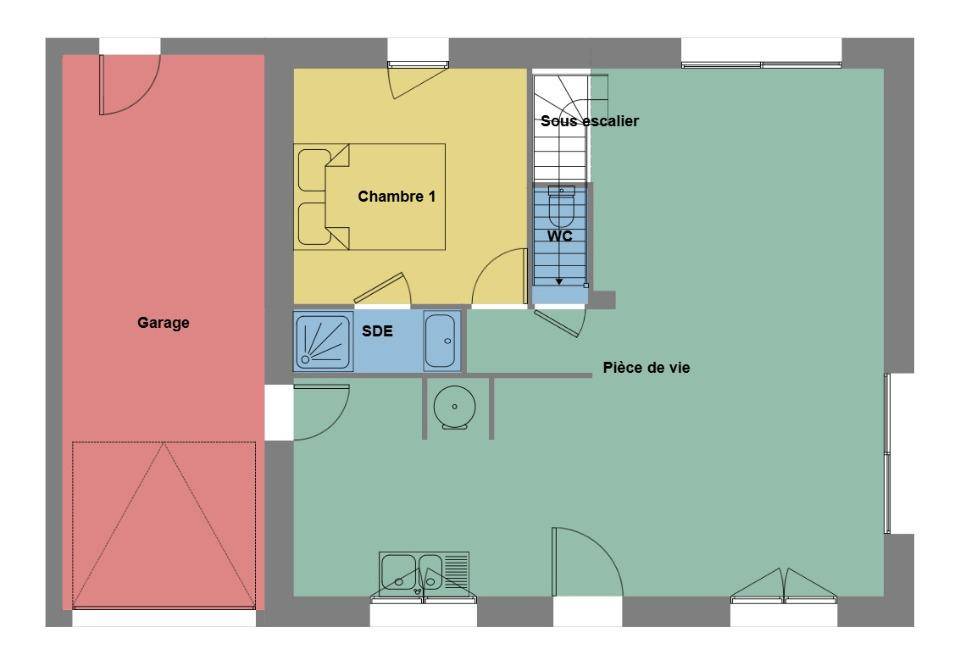
VENTE : maison de 6 pièces (119 m²) à Plurien
PROCHE DE SAINT-BRIEUC - MAISON 6 PIÈCES NEUVE
À vendre : à 3 km de la Manche et à deux pas de Saint-Brieuc, nous vous proposons cette maison de 6 pièces de 119 m² et de 415 m² de terrain à Plurien (22240). Elle propose cinq chambres, une cuisine et deux salles de bains.
Cette maison compte 2 niveaux. Elle est neuve.
L'École Primaire Publique de Plurien est implantée à moins de 10 minutes à pied. On trouve un tennis, deux commerces, une boulangerie, une boucherie-charcuterie, une épicerie et une poissonnerie dans les environs.
Son prix de vente est de 293 000 €.
Prenez contact avec notre agence (Quentin LEZOUR : (Numéro supprimé)) pour toute information sur cette maison ou sur les modalités de vente. Maisons de l'Avenir Saint-Carné vous accompagne à toutes les étapes de votre projet et dans toutes vos démarches.
Logement susceptibles de vous intéresser
Nous vous proposons de découvrir aussi cette sélection de logements situés à moins de 10km de Plurien et qui seraient susceptibles de vous intéresser.
Pléneuf-Val-André
TERRAINSitué à seulement 800 mètres du bourg de Pléneuf-Val-André et à 1,5 km de la mer et des plages, ce terrain plat et viabilisé (eau, électricité, télécom, tout à l’égout) offre un cadre idéal pour concrétiser votre projet de vie.Avec une configuration parfaite pour la construction d’une maison de plain-pied, ce terrain est prêt à bâtir et peut parfaitement accueillir une habitation avec 2 chambres, ouverte sur un environnement calme et agréable.- Terrain viabilisé (assainissement au tout-à-l’égout)- Environnement résidentiel paisible- Proximité immédiate du bourg, des écoles et commerces- Mer et plages accessibles à pied ou à véloTerrain plat : idéal pour éviter les surcoûts de construction Libre de constructeurUne opportunité rare sur le secteur de Pléneuf-Val-André, prisé pour sa qualité de vie et sa proximité avec le littoral.N’attendez plus pour concrétiser votre rêve de construction et devenir propriétaire d’un bien immobilier.Budget : 93500 euros Hai à la charge de l’acquéreur soit 10% (8500 euros).PNV: 85000 eurosFrais Notariés en SUS= 8100 eurosPour visiter et vous accompagner dans votre projet, contactez Julien PÉROT, au (Numéro supprimé) ou, par courriel à (Email supprimé). Mandat réf : 426386- En collaborant avec un professionnel agréé FNAIM, vous bénéficiez d’un accompagnement personnalisé, garantissant, et sécurisant votre projet immobilier. Selon l’article L.561.5 du Code Monétaire et Financier, pour l’organisation de la visite, la présentation d’une pièce d’identité vous sera demandée. Cette présente annonce a été rédigée sous la responsabilité éditoriale de Julien PÉROT agissant sous le statut d’agent commercial immatriculé au RSAC SAINT BRIEUC 822474151 auprès de SAS PROPRIETES PRIVEES, au capital de 44 920 euros, ZAC LE CHÊNE FERRÉ – 44 ALLÉE DES CINQ CONTINENTS 44120 VERTOU ; SIRET 487 624 777 00040, RCS Nantes. Carte Professionnelle Transactions sur immeubles et fonds de commerce (T) et Gestion immobilière (G) n° CPI 4401 2016 000 010 388 délivrée par la CCI Nantes – Saint Nazaire. Compte séquestre n(Numéro supprimé)67 BPA SAINT-SEBASTIEN-SUR-LOIRE (44230). Garantie GALIAN-SMABTP – 89 rue de la Boétie, 75008 Paris – n°28137 J pour 2 000 000 euros pour T et 120 000 euros pour G. Assurance responsabilité civile professionnelle par GALIAN-SMABTP n° de police 28137. (10.00 % honoraires TTC à la charge de l’acquéreur.) Julien PÉROT (EI) Agent Commercial – Numéro RSAC : SAINT BRIEUC 822474151 – .Les informations sur les risques auxquels ce bien est exposé sont disponibles sur le site Géorisques : www. georisques. gouv. fr
Pléneuf-Val-André
TERRAINSitué à seulement 800 mètres du bourg de Pléneuf-Val-André et à 1,5 km de la mer et des plages, ce terrain plat et viabilisé (eau, électricité, télécom, tout à l’égout) offre un cadre idéal pour concrétiser votre projet de vie.Avec une configuration parfaite pour la construction d’une maison de plain-pied, ce terrain est prêt à bâtir et peut parfaitement accueillir une habitation avec 2 chambres, ouverte sur un environnement calme et agréable.- Terrain viabilisé (assainissement au tout-à-l’égout)- Environnement résidentiel paisible- Proximité immédiate du bourg, des écoles et commerces- Mer et plages accessibles à pied ou à véloTerrain plat : idéal pour éviter les surcoûts de construction Libre de constructeurUne opportunité rare sur le secteur de Pléneuf-Val-André, prisé pour sa qualité de vie et sa proximité avec le littoral.N’attendez plus pour concrétiser votre rêve de construction et devenir propriétaire d’un bien immobilier.Budget : 134190 euros Hai à la charge de l’acquéreur soit 8% (9940 euros).PNV: 124250 eurosFrais Notariés en SUS= 1100 eurosPour visiter et vous accompagner dans votre projet, contactez Julien PÉROT, au (Numéro supprimé) ou, par courriel à (Email supprimé). Mandat réf : 426435- En collaborant avec un professionnel agréé FNAIM, vous bénéficiez d’un accompagnement personnalisé, garantissant, et sécurisant votre projet immobilier. Selon l’article L.561.5 du Code Monétaire et Financier, pour l’organisation de la visite, la présentation d’une pièce d’identité vous sera demandée. Cette présente annonce a été rédigée sous la responsabilité éditoriale de Julien PÉROT agissant sous le statut d’agent commercial immatriculé au RSAC SAINT BRIEUC 822474151 auprès de SAS PROPRIETES PRIVEES, au capital de 44 920 euros, ZAC LE CHÊNE FERRÉ – 44 ALLÉE DES CINQ CONTINENTS 44120 VERTOU ; SIRET 487 624 777 00040, RCS Nantes. Carte Professionnelle Transactions sur immeubles et fonds de commerce (T) et Gestion immobilière (G) n° CPI 4401 2016 000 010 388 délivrée par la CCI Nantes – Saint Nazaire. Compte séquestre n(Numéro supprimé)67 BPA SAINT-SEBASTIEN-SUR-LOIRE (44230). Garantie GALIAN-SMABTP – 89 rue de la Boétie, 75008 Paris – n°28137 J pour 2 000 000 euros pour T et 120 000 euros pour G. Assurance responsabilité civile professionnelle par GALIAN-SMABTP n° de police 28137. (8.00 % honoraires TTC à la charge de l’acquéreur.) Julien PÉROT (EI) Agent Commercial – Numéro RSAC : SAINT BRIEUC 822474151 – .Les informations sur les risques auxquels ce bien est exposé sont disponibles sur le site Géorisques : www. georisques. gouv. fr
Pléneuf-Val-André
TERRAINSitué à seulement 800 mètres du bourg de Pléneuf-Val-André et à 1,5 km de la mer et des plages, ce terrain plat et viabilisé (eau, électricité, télécom, tout à l’égout) offre un cadre idéal pour concrétiser votre projet de vie.Avec une configuration parfaite pour la construction d’une maison de plain-pied, ce terrain est prêt à bâtir et peut parfaitement accueillir une habitation avec 2 chambres, ouverte sur un environnement calme et agréable.- Terrain viabilisé (assainissement au tout-à-l’égout)- Environnement résidentiel paisible- Proximité immédiate du bourg, des écoles et commerces- Mer et plages accessibles à pied ou à véloTerrain plat : idéal pour éviter les surcoûts de construction Libre de constructeurUne opportunité rare sur le secteur de Pléneuf-Val-André, prisé pour sa qualité de vie et sa proximité avec le littoral.N’attendez plus pour concrétiser votre rêve de construction et devenir propriétaire d’un bien immobilier.Budget : 216344 euros Hai à la charge de l’acquéreur soit 7.5% (15094 euros).PNV: 201250 eurosFrais Notariés en SUS= 16700 eurosPour visiter et vous accompagner dans votre projet, contactez Julien PÉROT, au (Numéro supprimé) ou, par courriel à (Email supprimé). Mandat réf : 426437- En collaborant avec un professionnel agréé FNAIM, vous bénéficiez d’un accompagnement personnalisé, garantissant, et sécurisant votre projet immobilier. Selon l’article L.561.5 du Code Monétaire et Financier, pour l’organisation de la visite, la présentation d’une pièce d’identité vous sera demandée. Cette présente annonce a été rédigée sous la responsabilité éditoriale de Julien PÉROT agissant sous le statut d’agent commercial immatriculé au RSAC SAINT BRIEUC 822474151 auprès de SAS PROPRIETES PRIVEES, au capital de 44 920 euros, ZAC LE CHÊNE FERRÉ – 44 ALLÉE DES CINQ CONTINENTS 44120 VERTOU ; SIRET 487 624 777 00040, RCS Nantes. Carte Professionnelle Transactions sur immeubles et fonds de commerce (T) et Gestion immobilière (G) n° CPI 4401 2016 000 010 388 délivrée par la CCI Nantes – Saint Nazaire. Compte séquestre n(Numéro supprimé)67 BPA SAINT-SEBASTIEN-SUR-LOIRE (44230). Garantie GALIAN-SMABTP – 89 rue de la Boétie, 75008 Paris – n°28137 J pour 2 000 000 euros pour T et 120 000 euros pour G. Assurance responsabilité civile professionnelle par GALIAN-SMABTP n° de police 28137. (7.50 % honoraires TTC à la charge de l’acquéreur.) Julien PÉROT (EI) Agent Commercial – Numéro RSAC : SAINT BRIEUC 822474151 – .Les informations sur les risques auxquels ce bien est exposé sont disponibles sur le site Géorisques : www. georisques. gouv. fr
Ruca
TERRAINVenez découvrir ce charmant chalet toute saison avec extension récente et espace extérieur aménagé à deux pas de la mer ! Laissez-vous charmer par ce havre de paix où chaque journée à un goût de vacancesLaissez-vous séduire par ce chalet d’environ 40 m², complété d’une extension de 23 m² réalisée en 2024 très lumineux , le tout sur un terrain clos et paysagé d’environ 200 m².Situé dans un camping ouvert à l’année, parfaitement entretenu et sécurisé par une barrière électrique, ce bien offre un cadre de vie paisible et convivial, idéal aussi bien pour vos vacances que pour y résider à l’année.L’intérieur, chaleureux et fonctionnel, se compose d’un séjour lumineux avec coin cuisine aménagé et équipé, de deux chambres confortables , d’une salle d’eau, d’un coin lingerie. La véranda prolonge agréablement la pièce de vie, idéale pour profiter du soleil en toute saison.A l’extérieur, tout est pensé pour votre confort :- une terrasse avec barbecue,- une partie du terrain enrobée facilitant l’entretien,- la possibilité de stationner deux véhicules, et un espace détente pour profiter pleinement des beaux jours.Le camping propose également une piscine chauffée ouverte de juin à septembre, parfaite pour se rafraîchir et se relaxer.Les charges annuelles pour y vivre à l’année s’élèvent à environ 2 000 euros, comprenant l’eau, l’électricité, la taxe foncière, et l’entretien des haies et espaces communs, ce qui en fait un bien pratique, économique et sans souci pour y résider continuellement. Les atouts :Extension récente (2024)Véranda lumineuseTerrain entretenu de 200 m²Barbecue extérieurStationnement pour 2 véhiculesPiscine chauffée (juin à septembre)Camping ouvert à l’année et sécuriséCharges faibles et tout comprisA quelques minutes seulement de la mer et des commerces162000 Euros FAI – Honoraires charge vendeurPour visiter et vous accompagner dans votre projet, contactez Christelle CARO, au (Numéro supprimé) ou, par courriel à (Email supprimé).Selon l’article L.561.5 du Code Monétaire et Financier, pour l’organisation de la visite, la présentation d’une pièce d’identité vous sera demandée.Cette présente annonce a été rédigée sous la responsabilité éditoriale de Christelle CARO agissant sous le statut d’agent commercial immatriculé au RSAC 432 047 314 NANTES auprès de SAS PROPRIETES PRIVEES, au capital de 44 920 euros, ZAC LE CHÊNE FERRÉ – 44 ALLÉE DES CINQ CONTINENTS 44120 VERTOU; SIRET 487 624 777 00040, RCS Nantes. Carte Professionnelle Transactions sur immeubles et fonds de commerce (T) et Gestion immobilière (G) n°CPI 4401 2016 000 010 388 délivrée par la CCI Nantes – Saint Nazaire. Compte séquestre n(Numéro supprimé)67 BPA SAINT-SEBASTIEN-SUR-LOIRE (44230). Garantie GALIAN-SMABTP – 89 rue de la Boétie, 75008 Paris – n°28137 J pour 2 000 000 euros pour T et 120 000 euros pour G. Assurance responsabilité civile professionnelle par GALIAN-SMABTP n° de police 28137.JMandat réf : 425477 – Le professionnel garantit et sécurise votre projet immobilier. Christelle CARO (EI) Agent Commercial – Numéro RSAC : 432 047 314 NANTES – .
Fréhel
TERRAINTerrain de 934 m² à vendre à Sables d’Or les PinsVUE SUR MER – EMPLACEMENT PRIVILÉGIÉÀ 2 km de la Manche à Sables d’Or les Pins (22240), grand terrain. Il est prêt à accueillir votre projet de construction pour toute la famille. Il donne sur la mer. Il se situe dans un secteur convoité. On trouve deux commerces et un supermarché à proximité.Il est à vendre pour la somme de 327 000 €. Contactez Quentin LEZOUR ((Numéro supprimé)) pour tout renseignement sur ce terrain et sur les démarches à suivre. Maisons de l’Avenir Saint-Carné vous accompagne dans tous vos projets immobiliers et à toutes les étapes de votre projet.
Fréhel
TERRAIN ET MAISONSables d’Or les Pins : maison T5 (141 m²) à vendreEMPLACEMENT PRIVILÉGIÉ – MAISON 5 PIÈCES NEUVEÀ vendre à 2 km de la Manche, bénéficiant d’un emplacement privilégié dans Sables d’Or les Pins (22240), nous vous présentons cette maison de 5 pièces de 141 m². Elle se divise en quatre chambres, une cuisine et deux salles de bains.Le terrain de la propriété s’étend sur 934 m².Il s’agit d’une maison de 2 niveaux. Elle est neuve.Cette maison se trouve dans un secteur attractif. Il y a deux commerces et un supermarché à proximité.Elle est à vendre pour la somme de 674 300 €.N’hésitez pas à prendre contact avec notre agence (Quentin LEZOUR : (Numéro supprimé)) pour toute information sur la maison, sur les modalités de vente ou sur les démarches à suivre.
Fréhel
TERRAIN ET MAISONVENTE : maison de 4 pièces (144 m²) à Sables d’Or les PinsEMPLACEMENT PRIVILÉGIÉ – MAISON 4 PIÈCES NEUVEÀ vendre : à 2 km de la Manche, bénéficiant d’un emplacement privilégié dans Sables d’Or les Pins (22240), Maisons de l’Avenir Saint-Carné vous présente cette maison de 4 pièces de 144 m².Cette maison possède 2 niveaux. Elle compte trois chambres, une cuisine et une salle de bains. La maison est neuve.Le terrain du bien s’étend sur 934 m².La maison est située dans un quartier recherché. Il y a deux commerces et un supermarché dans les environs.Elle est proposée à l’achat pour 662 000 €.Contactez Quentin LEZOUR (tél : (Numéro supprimé)) pour plus de renseignements sur la maison, sur les démarches à suivre et sur les modalités de vente. Maisons de l’Avenir Saint-Carné est là pour vous accompagner dans tous vos projets immobiliers.
Fréhel
TERRAIN ET MAISONVENTE : maison F5 (144 m²) à Sables d’Or les PinsEMPLACEMENT PRIVILÉGIÉ – MAISON 5 PIÈCES NEUVEEn vente : à 2 km de la Manche, Maisons de l’Avenir Saint-Carné vous présente cette maison de 5 pièces de 144 m² bénéficiant d’un emplacement d’exception dans Sables d’Or les Pins (22240). Elle offre quatre chambres, une cuisine et deux salles de bains.Le terrain du bien s’étend sur 934 m².Cette maison possède 2 niveaux. Elle est neuve.La maison se trouve dans un secteur attractif. Il y a deux commerces et un supermarché à proximité.Elle est proposée à l’achat pour 707 000 €.Contactez Quentin LEZOUR ((Numéro supprimé)) pour toute question sur le bien ou sur les démarches à suivre. Maisons de l’Avenir Saint-Carné vous accompagne dans tous vos projets immobiliers et dans toutes vos démarches.
Fréhel
TERRAIN ET MAISONSables d’Or les Pins : maison de 4 pièces (112 m²) à vendreEMPLACEMENT PRIVILÉGIÉ – MAISON 4 PIÈCES NEUVEEn vente : à 2 km de la Manche, découvrez, bénéficiant d’un emplacement d’exception dans Sables d’Or les Pins (22240), cette maison de 4 pièces de 112 m². Elle propose trois chambres, une cuisine et une salle de bains.Le terrain du bien s’étend sur 934 m².Il s’agit d’une maison de 2 niveaux. Elle est neuve.La maison se situe dans un quartier convoité. On trouve deux commerces et un supermarché à proximité du logement.Son prix de vente est de 563 000 €.Contactez Quentin LEZOUR ((Numéro supprimé)) pour toute information sur la maison et sur les modalités de vente. Donnez vie à vos projets immobiliers avec Maisons de l’Avenir Saint-Carné.
L’actualité immobilière à Plurien
27/11/2023
02/11/2023
30/10/2023
20/10/2023
16/10/2023
16/10/2023