Maison à construire à Plurien (22240)
Images
Description
VENTE : maison de 5 pièces (120 m²) à Plurien PROCHE DE ERQUY
EMPLACEMENT PRIVILÉGIÉ - MAISON 5 PIÈCES NEUVE
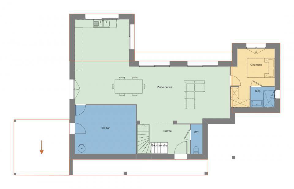
En vente : à 3 km de la Manche et à deux pas de Saint-Brieuc, Maisons de l'Avenir Saint-Carné vous propose, bénéficiant d'un emplacement privilégié dans Plurien (22240), cette maison de 5 pièces de 120 m².
Cette maison compte 2 niveaux. Elle propose quatre chambres, une cuisine et deux salles de bains. La maison est neuve.
Le terrain de la propriété s'étend sur 455 m².
La maison se trouve dans un secteur recherché. L'École Primaire Publique de Plurien est implantée à moins de 10 minutes à pied. Il y a un tennis, deux commerces, une boulangerie, une épicerie, une poissonnerie et une boucherie-charcuterie à quelques minutes de la maison.
Elle est proposée à l'achat pour 334 995 €.
Contactez Laetitia AMIRI ((Numéro supprimé)) pour plus de renseignements sur la maison et sur les démarches à suivre.
Logement susceptibles de vous intéresser
Nous vous proposons de découvrir aussi cette sélection de logements situés à moins de 10km de Plurien et qui seraient susceptibles de vous intéresser.
Fréhel
TERRAINVENTE d’un terrain de 934 m² à Sables d’Or les PinsEMPLACEMENT PRIVILÉGIÉÀ Sables d’Or les Pins (22240) à vendre à , venez découvrir ce terrain de 934 m². Il y a deux commerces et un supermarché à quelques minutes.Il est à vendre pour la somme de 327 000 €. Contactez Samuel ROGER (tél : (Numéro supprimé)) pour obtenir de plus amples renseignements sur ce terrain, sur les modalités de vente ou sur les démarches à suivre. Maisons de l’Avenir Saint-Brieuc vous accompagne dans tous vos projets immobiliers et à toutes les étapes de votre projet.
Fréhel
TERRAIN ET MAISONSables d’Or les Pins : maison T4 (115 m²) en venteEMPLACEMENT PRIVILÉGIÉ – MAISON 4 PIÈCES NEUVEÀ vendre : située à 2 km de la Manche, nous sommes heureux de vous proposer, bénéficiant d’un emplacement d’exception dans Sables d’Or les Pins (22240), cette maison de 4 pièces de 115 m². Son intérieur offre quatre chambres, une cuisine et deux salles de bains.Le terrain de la propriété est de 934 m².C’est une maison de 2 niveaux. Elle est neuve.Cette maison se trouve dans un secteur recherché. Il y a deux commerces et un supermarché à quelques minutes à peine.Son prix de vente est de 623 000 €.Contactez notre agence (Samuel ROGER : (Numéro supprimé)) pour toute information sur la maison. Maisons de l’Avenir Saint-Brieuc vous accompagne dans tous vos projets immobiliers et dans toutes vos démarches.
Fréhel
TERRAIN ET MAISONVENTE : maison F3 (80 m²) à Sables d’Or les PinsEMPLACEMENT PRIVILÉGIÉ – MAISON 3 PIÈCES NEUVEÀ 2 km de la Manche, nous sommes heureux de vous présenter cette maison de 3 pièces de plain-pied de 80 m² en vente, bénéficiant d’un emplacement d’exception dans Sables d’Or les Pins (22240).Son intérieur comporte trois chambres, une cuisine et une salle de bains. Cette maison est neuve.Le terrain de la propriété s’étend sur 934 m².Cette maison est située dans un secteur recherché. On trouve deux commerces et un supermarché dans les environs.Son prix de vente est de 553 000 €.Contactez Samuel ROGER (tél : (Numéro supprimé)) pour plus de renseignements sur la maison.
Fréhel
TERRAIN ET MAISONMaison de 5 pièces (131 m²) en vente à Sables d’Or les PinsEMPLACEMENT PRIVILÉGIÉ – MAISON 5 PIÈCES NEUVEÀ vendre à 2 km de la Manche, nous vous présentons cette maison de 5 pièces de plain-pied de 131 m², bénéficiant d’un emplacement privilégié dans Sables d’Or les Pins (22240).Son intérieur dispose de quatre chambres, d’une cuisine et de deux salles de bains. La maison est neuve.Le terrain du bien s’étend sur 934 m².La propriété est située dans un secteur recherché. Il y a deux commerces et un supermarché à quelques minutes.Elle est à vendre pour la somme de 690 000 €.Prenez contact avec Samuel ROGER (tél : (Numéro supprimé)) pour obtenir de plus amples informations sur la maison.
Fréhel
TERRAINVENTE d’un terrain de 1 123 m² à Sables d’Or les PinsÀ Sables d’Or les Pins (22240) à 2 km de la Manche, découvrez ce terrain de 1 123 m². Il y a deux commerces et un supermarché à quelques minutes à peine.Il est à vendre pour la somme de 393 000 €. N’hésitez pas à prendre contact avec notre agence (Samuel ROGER : (Numéro supprimé)) pour toute information sur le terrain ou sur les démarches à suivre. Maisons de l’Avenir Saint-Brieuc est là pour vous accompagner à toutes les étapes de l’achat.
Fréhel
TERRAIN ET MAISONSables d’Or les Pins : maison de 5 pièces (131 m²) en venteMAISON 5 PIÈCES NEUVEEn vente : localisée à 100 m2 de la plage , nous sommes ravis de vous présenter à Sables d’Or les Pins (22240), cette maison de 5 pièces de plain-pied de 131 m² et de 1 123 m² de terrain. Conçue de plain-pied, elle dispose de quatre chambres, d’une cuisine et de deux salles de bains.Cette maison est neuve.Il y a deux commerces et un supermarché à quelques minutes du logement.Elle est à vendre pour la somme de 690 000 €.Contactez notre agence (ROGER Samuel : (Numéro supprimé)) pour plus d’informations sur cette maison, sur les modalités de vente ou sur les démarches à suivre. Maisons de l’Avenir Saint-Brieuc est là pour vous accompagner à toutes les étapes de l’achat.
Fréhel
TERRAIN ET MAISONVENTE : maison T5 (120 m²) à Sables d’Or les PinsMAISON 5 PIÈCES NEUVEÀ 2 km de la Manche, en vente à Sables d’Or les Pins (22240), ayez le coup de coeur pour cette maison de 5 pièces de 120 m² et de 1 123 m² de terrain. Elle compte quatre chambres, une cuisine et deux salles de bains.C’est une maison de 2 niveaux. Elle est neuve.Il y a deux commerces et un supermarché à proximité.Elle est à vendre pour la somme de 689 000 €.Prenez contact avec notre agence (ROGER Samuel : (Numéro supprimé)) pour toute information sur cette maison ou sur les modalités de vente. Maisons de l’Avenir Saint-Brieuc vous accompagne dans tous vos projets immobiliers et dans toutes vos démarches.
Fréhel
TERRAIN ET MAISONSables d’Or les Pins : maison de 4 pièces (110 m²) en venteMAISON 4 PIÈCES NEUVEÀ vendre : localisée à 2 km de la Manche, notre agence Maisons de l’Avenir Saint-Brieuc est ravie de vous proposer cette maison de 4 pièces de plain-pied de 124 m² à Sables d’Or les Pins (22240). Elle comporte trois chambres, une cuisine et deux salles de bains.Le terrain de la propriété est de 1 123 m².Cette maison est neuve.Il y a deux commerces et un supermarché dans les environs.Elle est à vendre pour la somme de 640 000 €.Contactez notre constructeur (Samuel ROGER : (Numéro supprimé)) pour tout renseignement sur cette maison.
Plurien
TERRAINVENTE d’un terrain de 450 m² à PlurienPROCHE DE SAINT-BRIEUCÀ 3 km de la Manche et à deux pas de Saint-Brieuc à Plurien (22240), terrain de 450 m². Réalisez-y votre projet immobilier. Il y a l’École Primaire Publique de Plurien à moins de 10 minutes à pied. On trouve un tennis, deux commerces, une boulangerie, une boucherie-charcuterie, une épicerie et une poissonnerie dans les environs.Il est à vendre pour la somme de 83 500 €. N’hésitez pas à prendre contact avec notre agence (LEZOUR Quentin : (Numéro supprimé)) pour plus de renseignements sur ce terrain ou sur les démarches à suivre. Maisons de l’Avenir Saint-Carné est là pour vous accompagner à toutes les étapes de l’achat.
L’actualité immobilière à Plurien
27/11/2023
02/11/2023
30/10/2023
20/10/2023
16/10/2023
16/10/2023