Maison à construire à Quessoy (22120)
Images
Description
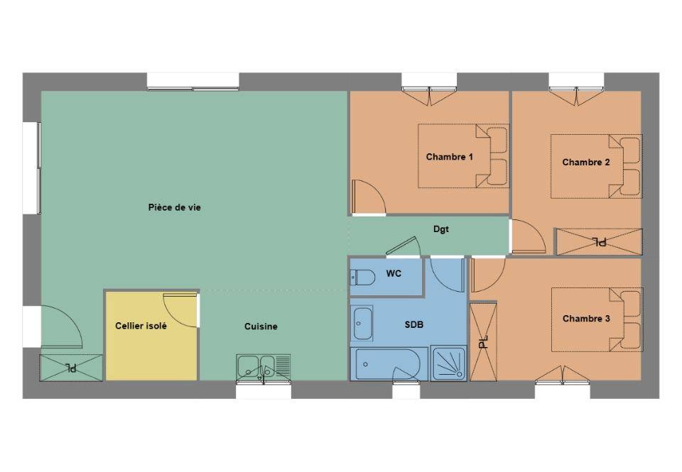
VENTE : maison de 4 pièces (80 m²) à Quessoy
IDÉALEMENT SITUÉE - MAISON 4 PIÈCES NEUVE
À 9 km de la Manche et à quelques kilomètres de Saint-Brieuc, en vente idéalement située dans Quessoy (22120), votre agence Maisons de l'Avenir Saint-Brieuc est ravie de vous proposer cette maison de 4 pièces de plain-pied de 80 m² et de 574 m² de terrain. Son intérieur comporte trois chambres, une cuisine et une salle de bains.
Cette maison est neuve.
Cette maison se trouve dans un secteur convoité. Il y a l'École Primaire Publique l'Argentaie Quessoy, l'École Primaire Privée Sainte Anne et le Lycée Agricole Privé de Quessoy à moins de 10 minutes à pied. Niveau transports, on trouve la gare Yffiniac à moins de 10 minutes en voiture. La nationale N12 est accessible à 7 km. Il y a un tennis, une bibliothèque, deux boulangeries, un commerce, un supermarché et une boucherie-charcuterie à quelques minutes.
Son prix de vente est de 233 900 €.
N'hésitez pas à prendre contact avec Samuel ROGER ((Numéro supprimé)) pour toute information sur la maison, sur les modalités de vente ou sur les démarches à suivre. Maisons de l'Avenir Saint-Brieuc est là pour vous accompagner à toutes les étapes de votre projet.
Logement susceptibles de vous intéresser
Nous vous proposons de découvrir aussi cette sélection de logements situés à moins de 10km de Quessoy et qui seraient susceptibles de vous intéresser.
Plédran
TERRAINTerrain de 394 m² en vente à PlédranPROCHE DE SAINT-BRIEUCÀ Plédran (22960) en vente à 10 km de la Manche et à quelques kilomètres de Saint-Brieuc, donnez vie à la maison de vos rêves sur ce terrain de 394 m². Il y a l’École Maternelle Publique de Plédran, l’École Élémentaire Publique de Plédran et l’École Primaire Privée Saint Maurice à moins de 10 minutes à pied. Niveau transports en commun, on trouve deux gares (Yffiniac et Saint-Brieuc) à moins de 10 minutes en voiture. Il y a un accès à la nationale N12 à 7 km. Il y a une bibliothèque et un tennis à quelques minutes.Il est proposé à l’achat pour 57 000 €. Contactez Samuel ROGER (tél : (Numéro supprimé)) pour tout renseignement sur ce terrain, sur les modalités de vente ou sur les démarches à suivre.
Plédran
TERRAIN ET MAISONVENTE d’une maison T3 (55 m²) à PlédranPROCHE DE SAINT-BRIEUC – MAISON 3 PIÈCES NEUVEEn vente : localisée à 10 km de la Manche et à 8 km de Saint-Brieuc, nous sommes ravis de vous présenter à Plédran (22960), cette maison de 3 pièces de plain-pied de 55 m².Son intérieur compte deux chambres, une cuisine et une salle de bains. Cette maison est neuve.Le terrain du bien s’étend sur 394 m².Il y a l’École Maternelle Publique de Plédran, l’École Élémentaire Publique de Plédran et l’École Primaire Privée Saint Maurice à moins de 10 minutes à pied. Côté transports, on trouve deux gares (Yffiniac et Saint-Brieuc) à moins de 10 minutes en voiture. Il y a un accès à la nationale N12 à 7 km. Il y a une bibliothèque et un tennis à proximité du logement.Elle est à vendre pour la somme de 189 000 €.Prenez contact avec Samuel ROGER (tél : (Numéro supprimé)) pour plus d’informations sur la maison. Maisons de l’Avenir Saint-Brieuc est là pour vous accompagner dans toutes vos démarches.
Plédran
TERRAIN ET MAISONVENTE : maison F4 (67 m²) à PlédranMAISON 4 PIÈCES NEUVE – PROCHE DE SAINT-BRIEUCÀ vendre : localisée à 10 km de la Manche et à 8 km de Saint-Brieuc, nous sommes heureux de vous présenter cette maison de 4 pièces de 67 m² à Plédran (22960). Elle se divise en trois chambres, une cuisine et une salle de bains.Le terrain du bien s’étend sur 394 m².Cette maison compte 2 niveaux. Elle est neuve.On trouve l’École Maternelle Publique de Plédran, l’École Élémentaire Publique de Plédran et l’École Primaire Privée Saint Maurice à moins de 10 minutes à pied. Côté transports, il y a les gares Yffiniac et Saint-Brieuc à moins de 10 minutes en voiture. Il y a un accès à la nationale N12 à 7 km. On trouve une bibliothèque et un tennis dans les environs.Elle est à vendre pour la somme de 191 000 €.Contactez notre agence (Samuel ROGER : (Numéro supprimé)) pour toute information sur cette maison, sur les démarches à suivre ou sur les modalités de vente. Maisons de l’Avenir Saint-Brieuc est là pour vous accompagner à toutes les étapes de l’achat.
Plédran
TERRAIN ET MAISONVENTE : maison de 3 pièces (55 m²) à PlédranMAISON 3 PIÈCES NEUVE – PROCHE DE SAINT-BRIEUCÀ 10 km de la Manche et à deux pas de Saint-Brieuc, nous sommes heureux de vous présenter à vendre à Plédran (22960), cette maison de 3 pièces de plain-pied de 55 m². Elle dispose de deux chambres, d’une cuisine et d’une salle de bains.Le terrain de la maison s’étend sur 394 m².Cette maison est neuve.L’École Maternelle Publique de Plédran, l’École Élémentaire Publique de Plédran et l’École Primaire Privée Saint Maurice sont implantées à moins de 10 minutes à pied. Côté transports en commun, on trouve les gares Yffiniac et Saint-Brieuc à moins de 10 minutes en voiture. Il y a un accès à la nationale N12 à 7 km. Il y a une bibliothèque et un tennis à proximité.Son prix de vente est de 193 000 €.Contactez notre agence (Samuel ROGER : (Numéro supprimé)) pour obtenir de plus amples informations sur la maison et sur les démarches à suivre. Faites de vos projets immobiliers une réalité avec Maisons de l’Avenir Saint-Brieuc.
Hénon
TERRAIN ET MAISONVENTE d’une maison F4 (70 m²) à HénonMAISON 4 PIÈCES NEUVE – PROCHE DE SAINT-BRIEUCÀ vendre : localisée à 13 km de la Manche et à quelques kilomètres de Saint-Brieuc, nous sommes ravis de vous proposer cette maison de 4 pièces de plain-pied de 70 m² à Hénon (22150). Son intérieur offre trois chambres, une cuisine et une salle de bains.Le terrain de la propriété est de 2 170 m².Cette maison est neuve.Il y a l’École Primaire Privée Sacré Coeur à moins de 10 minutes à pied. Niveau transports en commun, on trouve la gare Yffiniac à moins de 10 minutes en voiture. Il y a un accès à la nationale N12 à 11 km. Il y a une bibliothèque, une boulangerie et une épicerie dans les environs.Elle est à vendre pour la somme de 219 000 €.Contactez notre agence (ROGER Samuel : (Numéro supprimé)) pour tout renseignement sur la maison ou sur les modalités de vente.
Plédran
TERRAIN ET MAISONVENTE : maison de 5 pièces (114 m²) à PlédranMAISON 5 PIÈCES NEUVE – PROCHE DE SAINT-BRIEUCÀ vendre : à 10 km de la Manche et à quelques kilomètres de Saint-Brieuc, Maisons de l’Avenir Saint-Brieuc vous propose cette maison de 5 pièces de 114 m² et de 394 m² de terrain à Plédran (22960).Cette maison compte 2 niveaux. Elle compte quatre chambres, une cuisine et une salle de bains. Cette maison est neuve.On trouve l’École Maternelle Publique de Plédran, l’École Élémentaire Publique de Plédran et l’École Primaire Privée Saint Maurice à moins de 10 minutes à pied. Niveau transports, il y a les gares Yffiniac et Saint-Brieuc à moins de 10 minutes en voiture. Il y a un accès à la nationale N12 à 7 km. On trouve une bibliothèque et un tennis à quelques minutes.Son prix de vente est de 319 000 €.Contactez Samuel ROGER (tél : (Numéro supprimé)) pour plus d’informations sur cette maison, sur les démarches à suivre ou sur les modalités de vente. Maisons de l’Avenir Saint-Brieuc vous accompagne dans tous vos projets immobiliers et à toutes les étapes de votre projet.
Plédran
TERRAIN ET MAISONVENTE d’une maison F4 (83 m²) à PlédranPROCHE DE SAINT-BRIEUC – MAISON 4 PIÈCES NEUVEÀ 10 km de la Manche et à 8 km de Saint-Brieuc, à vendre à Plédran (22960), venez découvrir cette maison de 4 pièces de plain-pied de 83 m² et de 394 m² de terrain. Conçue de plain-pied, elle offre trois chambres, une cuisine et une salle de bains.La maison est neuve.On trouve l’École Maternelle Publique de Plédran, l’École Élémentaire Publique de Plédran et l’École Primaire Privée Saint Maurice à moins de 10 minutes à pied. Niveau transports en commun, il y a deux gares (Yffiniac et Saint-Brieuc) à moins de 10 minutes en voiture. On trouve un accès à la nationale N12 à 7 km. On trouve une bibliothèque et un tennis dans les environs.Son prix de vente est de 243 000 €.Contactez Samuel ROGER ((Numéro supprimé)) pour toute question sur cette maison ou sur les démarches à suivre. Maisons de l’Avenir Saint-Brieuc est là pour vous accompagner à toutes les étapes de votre projet.
Langueux
TERRAINVENTE : terrain de 441 m² à LangueuxEMPLACEMENT PRIVILÉGIÉ – PROCHE DE SAINT-BRIEUCEn vente à 2 km de la Manche et à quelques kilomètres de Saint-Brieuc à Langueux (22360), terrain de 441 m². Réalisez-y la maison de vos rêves. Dans un secteur prisé, le terrain bénéficiant d’un emplacement privilégié est proche des commerces et des écoles. L’École Primaire Privée Notre Dame, le Lycée Agricole Privé Saint-Illan de Langueux et l’École Primaire Publique les Fontenelles sont implantés à moins de 10 minutes à pied, tout comme deux crèches. Niveau transports en commun, on trouve les gares Saint-Brieuc, Yffiniac et La Méaugon à moins de 10 minutes en voiture. La nationale N12 est accessible à 2 km. Il y a une bibliothèque, deux commerces, une boulangerie, une épicerie, un bureau de poste et une boucherie-charcuterie à quelques minutes de la propriété.Il est à vendre pour la somme de 99 000 €. Contactez notre agence (Samuel ROGER : (Numéro supprimé)) pour plus de renseignements sur ce terrain. Maisons de l’Avenir Saint-Brieuc est là pour vous accompagner dans tous vos projets immobiliers.
Langueux
TERRAIN ET MAISONVENTE : maison F5 (110 m²) à LangueuxEMPLACEMENT PRIVILÉGIÉ – MAISON 5 PIÈCES NEUVEEn vente : à 2 km de la Manche et à quelques kilomètres de Saint-Brieuc, nous vous présentons cette maison de 5 pièces de 110 m² et de 441 m² de terrain bénéficiant d’un emplacement privilégié dans Langueux (22360).Cette maison comporte 2 niveaux. Elle propose quatre chambres, une cuisine et deux salles de bains. Cette maison est neuve.Cette maison est située dans un secteur recherché. L’École Primaire Privée Notre Dame, le Lycée Agricole Privé Saint-Illan de Langueux et l’École Primaire Publique les Fontenelles sont implantés à moins de 10 minutes à pied, tout comme deux crèches. Niveau transports, il y a les gares Saint-Brieuc, Yffiniac et La Méaugon à moins de 10 minutes en voiture. La nationale N12 est accessible à 2 km. On trouve une bibliothèque, deux commerces, une boulangerie, une épicerie, une poissonnerie et une boucherie-charcuterie à proximité.Elle est à vendre pour la somme de 356 000 €.Prenez contact avec notre agence (Samuel ROGER : (Numéro supprimé)) pour toute information sur la maison ou sur les modalités de vente. Faites de vos projets immobiliers une réalité avec Maisons de l’Avenir Saint-Brieuc.
L’actualité immobilière à Quessoy
27/11/2023
02/11/2023
30/10/2023
20/10/2023
16/10/2023
16/10/2023