Maison à construire à Quévert (22100)
Images
Description
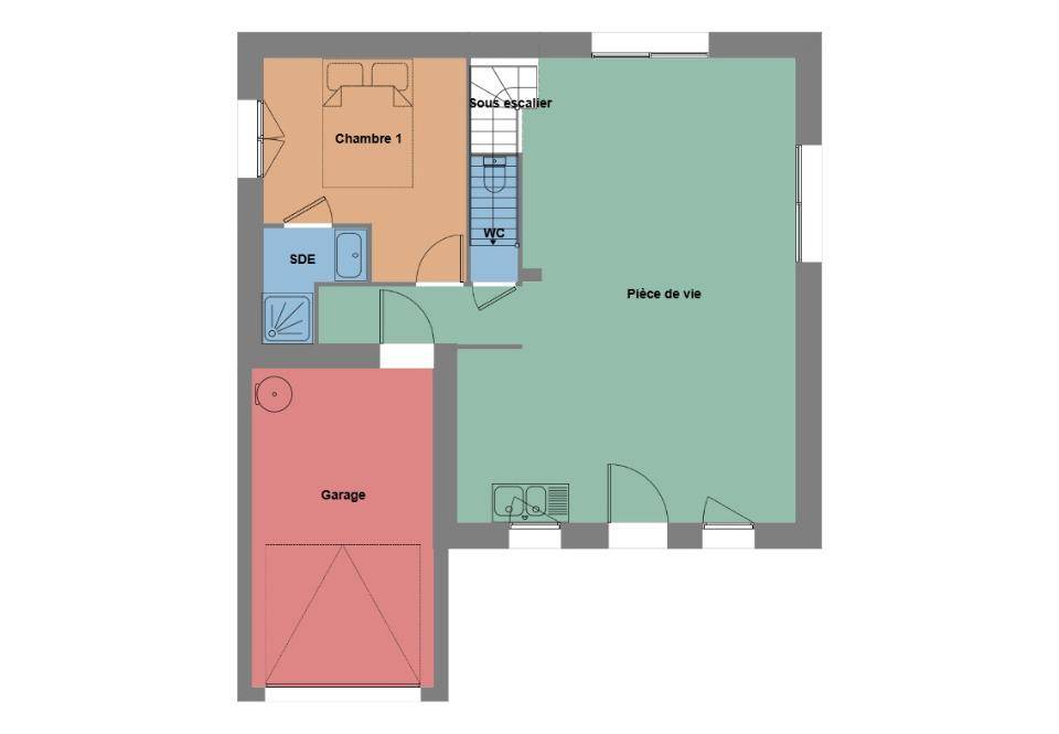
Maison T5 (102 m²) à vendre à Quévert
EMPLACEMENT PRIVILÉGIÉ - PROCHE DE DINAN
MAISON 5 PIÈCES NEUVE
En vente : située à 13 km de la Manche et à quelques kilomètres de Saint-Malo, nous vous présentons cette maison de 5 pièces de 102 m² bénéficiant d'un emplacement d'exception dans Quévert (22100).
Cette maison possède 2 niveaux. Elle offre quatre chambres, une cuisine et deux salles de bains. Cette maison est neuve.
Le terrain de la propriété est de 616 m².
Cette maison se trouve dans un secteur recherché. L'École Primaire Publique le Petit Prince est implantée à moins de 10 minutes à pied. Côté transports, il y a les gares Dinan, Corseul-Languenan et La Hisse à moins de 10 minutes en voiture. La nationale N176 est accessible à 2 km. On trouve un tennis, une bibliothèque, deux boulangeries, un commerce et un bureau de poste à proximité.
Elle est à vendre pour la somme de 274 400 €.
Prenez contact avec Laetitia AMIRI (tél : (Numéro supprimé)) pour tout renseignement sur la maison et sur les modalités de vente. Maisons de l'Avenir Saint-Carné vous accompagne dans toutes vos démarches et dans tous vos projets immobiliers.
Logement susceptibles de vous intéresser
Nous vous proposons de découvrir aussi cette sélection de logements situés à moins de 10km de Quévert et qui seraient susceptibles de vous intéresser.
Dinan
TERRAINVENTE : terrain de 312 m² à DinanCENTRE-VILLE – PROCHE GAREÀ Dinan (22100) à vendre à 10 km de la Manche et à 21 km de Saint-Malo, donnez vie à votre résidence principale ou secondaire sur ce terrain de 312 m². Il est situé en centre-ville. Il y a des écoles de tous niveaux à moins de 10 minutes à pied. Niveau transports, on trouve la gare Dinan à quelques pas du terrain. La nationale N176 est accessible à 2 km. Il y a une bibliothèque, un tennis, des commerces, des boulangeries, un supermarché, des boucheries-charcuteries et des épiceries à quelques minutes. Ne manquez pas le marché Place Duguesclin tous les jeudis matin.Il est proposé à l’achat pour 163 600 €. Contactez Cyril RENVAZE ((Numéro supprimé)) pour tout renseignement sur ce terrain, sur les démarches à suivre et sur les modalités de vente. Maisons de l’Avenir Cesson-Sévigné vous accompagne à toutes les étapes de l’achat et dans tous vos projets immobiliers.
Dinan
TERRAIN ET MAISONVENTE : maison F4 (95 m²) à DinanCENTRE-VILLE – MAISON 4 PIÈCES NEUVEÀ 10 km de la Manche et à 21 km de Saint-Malo, ayez le coup de coeur pour cette maison de 4 pièces de 95 m² et de 312 m² de terrain à vendre en centre-ville de Dinan (22100).Il s’agit d’une maison de 2 niveaux. Son intérieur comporte trois chambres, une cuisine et deux salles de bains. Elle est proposée à l’achat pour 378 100 €.Contactez notre agence (Cyril RENVAZE : (Numéro supprimé)) pour tout renseignement sur la maison ou sur les démarches à suivre. Faites de vos projets immobiliers une réalité avec Maisons de l’Avenir Cesson-Sévigné.
Dinan
TERRAIN ET MAISONMaison F4 (75 m²) en vente à DinanCENTRE-VILLE – MAISON 4 PIÈCES NEUVEEn vente à 10 km de la Manche et à quelques kilomètres de Saint-Malo, notre agence Maisons de l’Avenir Cesson-Sévigné est ravie de vous présenter cette maison de 4 pièces de plain-pied de 75 m² dans le centre de Dinan (22100). Elle comporte trois chambres, une cuisine et une salle de bains.Le terrain de la propriété est de 312 m².Elle est à vendre pour la somme de 328 600 €.Contactez notre constructeur (RENVAZE Cyril : (Numéro supprimé)) pour toute information sur la maison et sur les modalités de vente. Concrétisez vos projets immobiliers avec Maisons de l’Avenir Cesson-Sévigné.
Dinan
TERRAIN ET MAISONDinan : maison T4 (95 m²) en venteCENTRE-VILLE – MAISON 4 PIÈCES NEUVEÀ vendre : localisée à 10 km de la Manche et à quelques kilomètres de Saint-Malo, Maisons de l’Avenir Cesson-Sévigné vous présente cette maison de 4 pièces de 95 m² dans le centre de Dinan (22100). Son intérieur se divise en trois chambres, une cuisine et deux salles de bains.Le terrain du bien est de 312 m².C’est une maison de 2 niveaux. Elle est proposée à l’achat pour 387 600 €.Contactez Cyril RENVAZE (tél : (Numéro supprimé)) pour obtenir de plus amples informations sur la maison ou sur les modalités de vente. Maisons de l’Avenir Cesson-Sévigné vous accompagne dans toutes vos démarches et à toutes les étapes de votre projet.
Dinan
TERRAIN ET MAISONMaison de 5 pièces (105 m²) à vendre à DinanCENTRE-VILLE – MAISON 5 PIÈCES NEUVEEn vente à 10 km de la Manche et à 21 km de Saint-Malo, ayez le coup de coeur pour cette maison de 5 pièces de 105 m² dans le centre de Dinan (22100). Son intérieur dispose de quatre chambres, d’une cuisine et de deux salles de bains.Le terrain de cette maison s’étend sur 312 m².Cette maison compte 2 niveaux. Elle est à vendre pour la somme de 409 600 €.N’hésitez pas à prendre contact avec Cyril RENVAZE (tél : (Numéro supprimé)) pour toute information sur la maison ou sur les modalités de vente.
Bobital
TERRAINBobital : terrain de 238 m² en ventePROCHE DE SAINT-MALOÀ Bobital (22100) à 18 km de la Manche et à deux pas de Saint-Malo, projetez la maison de vos rêves sur ce terrain de 238 m². Son prix de vente est de 37 700 €. Contactez Cyril RENVAZE ((Numéro supprimé)) pour tout renseignement sur le terrain, sur les modalités de vente ou sur les démarches à suivre. Donnez vie à vos projets immobiliers avec Maisons de l’Avenir Cesson-Sévigné.
Bobital
TERRAIN ET MAISONBobital : maison de 4 pièces (80 m²) à vendrePROCHE DE SAINT-MALO – MAISON 4 PIÈCES NEUVEÀ 18 km de la Manche et à 27 km de Saint-Malo, nous vous proposons cette maison de 4 pièces de plain-pied de 80 m² à Bobital (22100).Elle se divise en trois chambres, une cuisine et une salle de bains. Cette maison est neuve.Le terrain du bien s’étend sur 238 m².Elle est à vendre pour la somme de 213 700 €.Contactez Cyril RENVAZE (tél : (Numéro supprimé)) pour toute information sur cette maison, sur les démarches à suivre ou sur les modalités de vente. Maisons de l’Avenir Cesson-Sévigné est là pour vous accompagner dans tous vos projets immobiliers.
Bobital
TERRAIN ET MAISONMaison de 4 pièces (95 m²) à vendre à BobitalPROCHE DE SAINT-MALO – MAISON 4 PIÈCES NEUVEÀ 18 km de la Manche et à deux pas de Saint-Malo, votre agence Maisons de l’Avenir Cesson-Sévigné est heureuse de vous proposer cette maison de 4 pièces de plain-pied de 95 m² en vente à Bobital (22100).Elle inclut trois chambres, une cuisine et une salle de bains. La maison est neuve.Le terrain du bien est de 238 m².Elle est proposée à l’achat pour 261 700 €.Prenez contact avec Cyril RENVAZE (tél : (Numéro supprimé)) pour tout renseignement sur la maison et sur les démarches à suivre.
Bobital
TERRAIN ET MAISONBobital : maison T5 (100 m²) à vendrePROCHE DE SAINT-MALO – MAISON 5 PIÈCES NEUVEÀ 18 km de la Manche et à 27 km de Saint-Malo, Maisons de l’Avenir Cesson-Sévigné vous présente en vente à Bobital (22100), cette maison de 5 pièces de 100 m² et de 238 m² de terrain.Cette maison comporte 2 niveaux. Son intérieur propose quatre chambres, une cuisine et deux salles de bains. Elle est à vendre pour la somme de 272 700 €.Contactez notre agence (Cyril RENVAZE : (Numéro supprimé)) pour plus d’informations sur la maison, sur les démarches à suivre ou sur les modalités de vente. Faites de vos projets immobiliers une réalité avec Maisons de l’Avenir Cesson-Sévigné.
L’actualité immobilière à Quévert
27/11/2023
02/11/2023
30/10/2023
20/10/2023
16/10/2023
16/10/2023