Maison à construire à Saint-Brandan (22800)
Images
Description
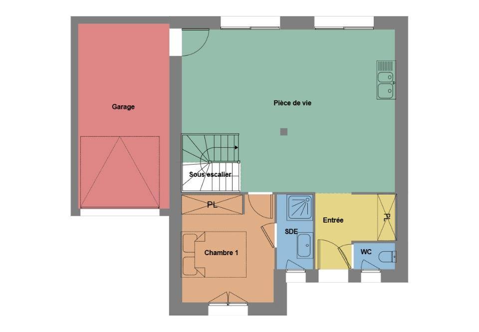
Saint-Brandan : maison F5 (89 m²) en vente
IDÉALEMENT SITUÉE - MAISON 5 PIÈCES NEUVE
En vente à 23 km de la Manche et à quelques kilomètres de Saint-Brieuc, idéalement située dans Saint-Brandan (22800), nous sommes heureux de vous présenter cette maison de 5 pièces de 89 m² et de 754 m² de terrain.
Cette maison comporte 2 niveaux. Elle compte quatre chambres, une cuisine et deux salles de bains. Cette maison est neuve.
La maison est située dans un quartier attractif. Il y a l'École Primaire Privée Sainte Anne et l'École Primaire Publique les Chrysalides à moins de 10 minutes à pied. La nationale N12 est accessible à 15 km. On trouve une bibliothèque, un tennis, une boulangerie et un commerce à proximité de la maison.
Elle est proposée à l'achat pour 255 000 €.
Contactez Samuel ROGER (tél : (Numéro supprimé)) pour toute information sur le bien.
Logement susceptibles de vous intéresser
Nous vous proposons de découvrir aussi cette sélection de logements situés à moins de 10km de Saint-Brandan et qui seraient susceptibles de vous intéresser.
Saint-Brandan
TERRAINVENTE d’un terrain de 754 m² à Saint-BrandanIDÉALEMENT SITUÉ – PROCHE DE SAINT-BRIEUCÀ Saint-Brandan (22800) à 23 km de la Manche et à deux pas de Saint-Brieuc, projetez la maison de vos rêves sur ce terrain de 754 m². Dans un secteur recherché, le terrain idéalement situé est proche des écoles et des commerces. Il y a l’École Primaire Privée Sainte Anne et l’École Primaire Publique les Chrysalides à moins de 10 minutes à pied. La nationale N12 est accessible à 15 km. On trouve une bibliothèque, un tennis, une boulangerie et un commerce à quelques minutes à peine.Il est proposé à l’achat pour 75 000 €. N’hésitez pas à prendre contact avec notre agence (ROGER Samuel : (Numéro supprimé)) pour toute information sur ce terrain, sur les démarches à suivre ou sur les modalités de vente. Maisons de l’Avenir Saint-Brieuc vous accompagne dans tous vos projets immobiliers et à toutes les étapes de l’achat.
Saint-Brandan
TERRAIN ET MAISONSaint-Brandan : maison de 3 pièces (57 m²) à vendreIDÉALEMENT SITUÉE – MAISON 3 PIÈCES NEUVEÀ vendre : à 23 km de la Manche et à deux pas de Saint-Brieuc, votre agence Maisons de l’Avenir Saint-Brieuc est heureuse de vous proposer cette maison de 3 pièces de plain-pied de 57 m² idéalement située dans Saint-Brandan (22800).Son intérieur dispose de deux chambres, d’une cuisine et d’une salle de bains. Cette maison est neuve.Le terrain du bien est de 754 m².Le bien se situe dans un secteur recherché. On trouve l’École Primaire Privée Sainte Anne et l’École Primaire Publique les Chrysalides à moins de 10 minutes à pied. Il y a un accès à la nationale N12 à 15 km. Il y a une bibliothèque, un tennis, une boulangerie et un commerce à proximité du logement.Il est proposé à l’achat pour 189 000 €.Contactez Samuel ROGER ((Numéro supprimé)) pour obtenir de plus amples renseignements sur la maison ou sur les modalités de vente. Maisons de l’Avenir Saint-Brieuc vous accompagne à toutes les étapes de votre projet et dans toutes vos démarches.
Saint-Brandan
TERRAIN ET MAISONSaint-Brandan : maison F5 (89 m²) en venteIDÉALEMENT SITUÉE – MAISON 5 PIÈCES NEUVEEn vente à 23 km de la Manche et à quelques kilomètres de Saint-Brieuc, idéalement située dans Saint-Brandan (22800), nous sommes heureux de vous présenter cette maison de 5 pièces de 89 m² et de 754 m² de terrain.Cette maison comporte 2 niveaux. Elle compte quatre chambres, une cuisine et deux salles de bains. Cette maison est neuve.La maison est située dans un quartier attractif. Il y a l’École Primaire Privée Sainte Anne et l’École Primaire Publique les Chrysalides à moins de 10 minutes à pied. La nationale N12 est accessible à 15 km. On trouve une bibliothèque, un tennis, une boulangerie et un commerce à proximité de la maison.Elle est proposée à l’achat pour 255 000 €.Contactez Samuel ROGER (tél : (Numéro supprimé)) pour toute information sur le bien.
Saint-Brandan
TERRAIN ET MAISONMaison T4 (73 m²) à vendre à Saint-BrandanIDÉALEMENT SITUÉE – MAISON 4 PIÈCES NEUVEÀ 23 km de la Manche et à deux pas de Saint-Brieuc, en vente idéalement située dans Saint-Brandan (22800), Maisons de l’Avenir Saint-Brieuc vous propose cette maison de 4 pièces de plain-pied de 73 m² et de 754 m² de terrain. Elle est composée de trois chambres, d’une cuisine et d’une salle de bains.Cette maison est neuve.La maison se trouve dans un secteur recherché. Il y a l’École Primaire Privée Sainte Anne et l’École Primaire Publique les Chrysalides à moins de 10 minutes à pied. La nationale N12 est accessible à 15 km. On trouve une bibliothèque, un tennis, une boulangerie et un commerce dans les environs.Son prix de vente est de 221 000 €.Prenez contact avec Samuel ROGER ((Numéro supprimé)) pour toute question sur la maison ou sur les démarches à suivre. Concrétisez vos projets immobiliers avec Maisons de l’Avenir Saint-Brieuc.
Saint-Brandan
TERRAIN ET MAISONMaison F4 (92 m²) à vendre à Saint-BrandanIDÉALEMENT SITUÉE – MAISON 4 PIÈCES NEUVEÀ 23 km de la Manche et à deux pas de Saint-Brieuc, à vendre idéalement située dans Saint-Brandan (22800), votre agence Maisons de l’Avenir Saint-Brieuc est heureuse de vous proposer cette maison de 4 pièces de 92 m². Elle propose trois chambres, une cuisine et une salle de bains.Le terrain du bien s’étend sur 754 m².Cette maison possède 2 niveaux. Elle est neuve.La maison est située dans un quartier prisé. On trouve l’École Primaire Privée Sainte Anne et l’École Primaire Publique les Chrysalides à moins de 10 minutes à pied. Il y a un accès à la nationale N12 à 15 km. Il y a une bibliothèque, un tennis, une boulangerie et un commerce à quelques minutes de la maison.Elle est à vendre pour la somme de 279 000 €.N’hésitez pas à prendre contact avec notre constructeur (ROGER Samuel : (Numéro supprimé)) pour tout renseignement sur la maison. Maisons de l’Avenir Saint-Brieuc vous accompagne dans tous vos projets immobiliers et dans toutes vos démarches.
Saint-Brandan
TERRAINVENTE d’un terrain de 499 m² à Saint-BrandanIDÉALEMENT SITUÉ – PROCHE DE SAINT-BRIEUCÀ Saint-Brandan (22800) à vendre à 23 km de la Manche et à 16 km de Saint-Brieuc, donnez vie à votre résidence principale ou secondaire sur ce terrain de 499 m². Dans un secteur recherché, ce terrain idéalement situé est proche des commerces et des écoles. Il y a l’École Primaire Privée Sainte Anne et l’École Primaire Publique les Chrysalides à moins de 10 minutes à pied. On trouve un accès à la nationale N12 à 15 km. On trouve une bibliothèque, un tennis, une boulangerie et un commerce à proximité de la propriété.Il est proposé à l’achat pour 55 900 €. Prenez contact avec notre agence (Samuel ROGER : (Numéro supprimé)) pour toute information sur ce terrain, sur les modalités de vente ou sur les démarches à suivre. Maisons de l’Avenir Saint-Brieuc est là pour vous accompagner dans tous vos projets immobiliers.
Saint-Brandan
TERRAIN ET MAISONSaint-Brandan : maison de 6 pièces (117 m²) à vendreIDÉALEMENT SITUÉE – MAISON 6 PIÈCES NEUVEÀ vendre : à 23 km de la Manche et à quelques kilomètres de Saint-Brieuc, idéalement située dans Saint-Brandan (22800), nous sommes heureux de vous proposer cette maison de 6 pièces de 117 m² et de 499 m² de terrain.Cette maison possède 2 niveaux. Son intérieur se divise en cinq chambres, une cuisine et deux salles de bains. La maison est neuve.La maison se trouve dans un secteur convoité. Il y a l’École Primaire Privée Sainte Anne et l’École Primaire Publique les Chrysalides à moins de 10 minutes à pied. On trouve un accès à la nationale N12 à 15 km. On trouve une bibliothèque, un tennis, une boulangerie et un commerce dans les environs.Elle est proposée à l’achat pour 356 000 €.Prenez contact avec notre agence (Samuel ROGER : (Numéro supprimé)) pour plus de renseignements sur le bien.
Saint-Brandan
TERRAIN ET MAISONVENTE : maison de 3 pièces (55 m²) à Saint-BrandanIDÉALEMENT SITUÉE – MAISON 3 PIÈCES NEUVEEn vente : située à 23 km de la Manche et à deux pas de Saint-Brieuc, idéalement située dans Saint-Brandan (22800), Maisons de l’Avenir Saint-Brieuc vous propose cette maison de 3 pièces de plain-pied de 55 m².Son intérieur propose deux chambres, une cuisine et une salle de bains. Cette maison est neuve.Le terrain de la propriété s’étend sur 499 m².La maison se trouve dans un quartier attractif. L’École Primaire Privée Sainte Anne et l’École Primaire Publique les Chrysalides sont implantées à moins de 10 minutes à pied. La nationale N12 est accessible à 15 km. On trouve une bibliothèque, un tennis, une boulangerie et un commerce à quelques minutes.Elle est proposée à l’achat pour 187 600 €.N’hésitez pas à prendre contact avec notre agence (ROGER Samuel : (Numéro supprimé)) pour toute question sur la maison. Maisons de l’Avenir Saint-Brieuc vous accompagne à toutes les étapes de votre projet et dans toutes vos démarches.
Saint-Brandan
TERRAIN ET MAISONSaint-Brandan : maison de 5 pièces (88 m²) en venteIDÉALEMENT SITUÉE – MAISON 5 PIÈCES NEUVEÀ vendre à 23 km de la Manche et à quelques kilomètres de Saint-Brieuc, notre agence Maisons de l’Avenir Saint-Brieuc est ravie de vous présenter cette maison de 5 pièces de 88 m² et de 499 m² de terrain idéalement située dans Saint-Brandan (22800). Son intérieur offre quatre chambres, une cuisine et une salle de bains.Cette maison compte 2 niveaux. Elle est neuve.Cette maison se trouve dans un secteur recherché. Il y a l’École Primaire Privée Sainte Anne et l’École Primaire Publique les Chrysalides à moins de 10 minutes à pied. La nationale N12 est accessible à 15 km. On trouve une bibliothèque, un tennis, une boulangerie et un commerce à quelques minutes à peine.Elle est proposée à l’achat pour 233 780 €.Contactez notre constructeur (ROGER Samuel : (Numéro supprimé)) pour obtenir de plus amples informations sur la maison.
L’actualité immobilière à Saint-Brandan
27/11/2023
02/11/2023
30/10/2023
20/10/2023
16/10/2023
16/10/2023