Maison à construire à Saint-Cast-le-Guildo (22380)
Images
Description
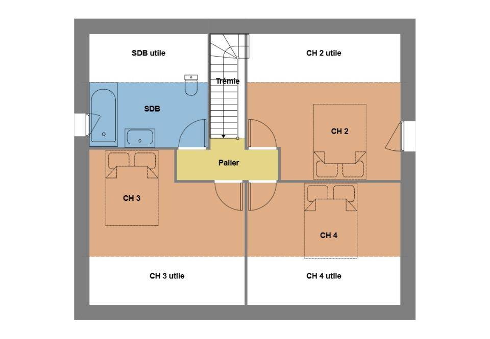
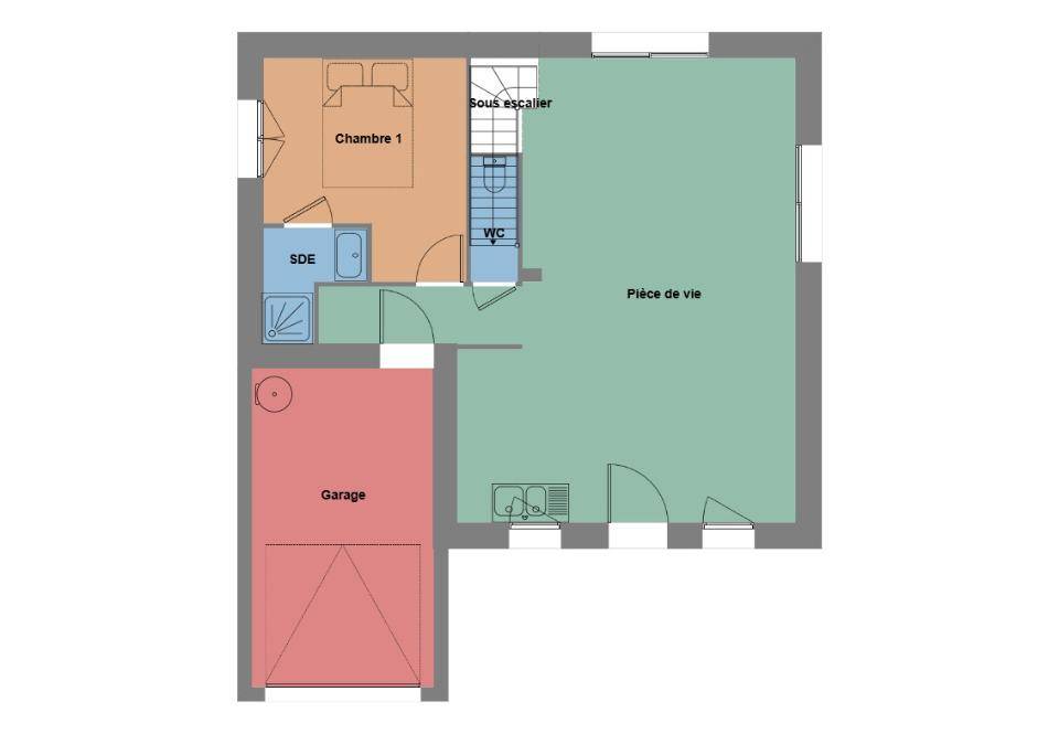
Maison de 5 pièces (102 m²) en vente à Saint-Cast-le-Guildo
EMPLACEMENT PRIVILÉGIÉ - MAISON 5 PIÈCES NEUVE
À 5 km de la Manche et à 20 km de Saint-Malo, nous vous présentons cette maison de 5 pièces de 102 m² bénéficiant d'un emplacement privilégié dans Saint-Cast-le-Guildo (22380).
Il s'agit d'une maison de 2 niveaux. Son intérieur se divise en quatre chambres, une cuisine et deux salles de bains. Cette maison est neuve.
Le terrain du bien s'étend sur 407 m².
Ce bien est situé dans un quartier recherché. On trouve l'École Primaire Publique les Terrres Neuvas à moins de 10 minutes à pied. Il y a un bassin de natation, des commerces, quatre boulangeries, un supermarché, un bureau de poste et une épicerie à proximité.
Son prix de vente est de 257 500 €.
Contactez notre agence (AMIRI Laetitia : (Numéro supprimé)) pour toute question sur la maison. Maisons de l'Avenir Saint-Carné vous accompagne à toutes les étapes de l'achat et dans tous vos projets immobiliers.
Logement susceptibles de vous intéresser
Nous vous proposons de découvrir aussi cette sélection de logements situés à moins de 10km de Saint-Cast-le-Guildo et qui seraient susceptibles de vous intéresser.
Ruca
TERRAINVenez découvrir ce charmant chalet toute saison avec extension récente et espace extérieur aménagé à deux pas de la mer ! Laissez-vous charmer par ce havre de paix où chaque journée à un goût de vacancesLaissez-vous séduire par ce chalet d’environ 40 m², complété d’une extension de 23 m² réalisée en 2024 très lumineux , le tout sur un terrain clos et paysagé d’environ 200 m².Situé dans un camping ouvert à l’année, parfaitement entretenu et sécurisé par une barrière électrique, ce bien offre un cadre de vie paisible et convivial, idéal aussi bien pour vos vacances que pour y résider à l’année.L’intérieur, chaleureux et fonctionnel, se compose d’un séjour lumineux avec coin cuisine aménagé et équipé, de deux chambres confortables , d’une salle d’eau, d’un coin lingerie. La véranda prolonge agréablement la pièce de vie, idéale pour profiter du soleil en toute saison.A l’extérieur, tout est pensé pour votre confort :- une terrasse avec barbecue,- une partie du terrain enrobée facilitant l’entretien,- la possibilité de stationner deux véhicules, et un espace détente pour profiter pleinement des beaux jours.Le camping propose également une piscine chauffée ouverte de juin à septembre, parfaite pour se rafraîchir et se relaxer.Les charges annuelles pour y vivre à l’année s’élèvent à environ 2 000 euros, comprenant l’eau, l’électricité, la taxe foncière, et l’entretien des haies et espaces communs, ce qui en fait un bien pratique, économique et sans souci pour y résider continuellement. Les atouts :Extension récente (2024)Véranda lumineuseTerrain entretenu de 200 m²Barbecue extérieurStationnement pour 2 véhiculesPiscine chauffée (juin à septembre)Camping ouvert à l’année et sécuriséCharges faibles et tout comprisA quelques minutes seulement de la mer et des commerces162000 Euros FAI – Honoraires charge vendeurPour visiter et vous accompagner dans votre projet, contactez Christelle CARO, au (Numéro supprimé) ou, par courriel à (Email supprimé).Selon l’article L.561.5 du Code Monétaire et Financier, pour l’organisation de la visite, la présentation d’une pièce d’identité vous sera demandée.Cette présente annonce a été rédigée sous la responsabilité éditoriale de Christelle CARO agissant sous le statut d’agent commercial immatriculé au RSAC 432 047 314 NANTES auprès de SAS PROPRIETES PRIVEES, au capital de 44 920 euros, ZAC LE CHÊNE FERRÉ – 44 ALLÉE DES CINQ CONTINENTS 44120 VERTOU; SIRET 487 624 777 00040, RCS Nantes. Carte Professionnelle Transactions sur immeubles et fonds de commerce (T) et Gestion immobilière (G) n°CPI 4401 2016 000 010 388 délivrée par la CCI Nantes – Saint Nazaire. Compte séquestre n(Numéro supprimé)67 BPA SAINT-SEBASTIEN-SUR-LOIRE (44230). Garantie GALIAN-SMABTP – 89 rue de la Boétie, 75008 Paris – n°28137 J pour 2 000 000 euros pour T et 120 000 euros pour G. Assurance responsabilité civile professionnelle par GALIAN-SMABTP n° de police 28137.JMandat réf : 425477 – Le professionnel garantit et sécurise votre projet immobilier. Christelle CARO (EI) Agent Commercial – Numéro RSAC : 432 047 314 NANTES – .
Fréhel
TERRAINTerrain de 934 m² à vendre à Sables d’Or les PinsVUE SUR MER – EMPLACEMENT PRIVILÉGIÉÀ 2 km de la Manche à Sables d’Or les Pins (22240), grand terrain. Il est prêt à accueillir votre projet de construction pour toute la famille. Il donne sur la mer. Il se situe dans un secteur convoité. On trouve deux commerces et un supermarché à proximité.Il est à vendre pour la somme de 327 000 €. Contactez Quentin LEZOUR ((Numéro supprimé)) pour tout renseignement sur ce terrain et sur les démarches à suivre. Maisons de l’Avenir Saint-Carné vous accompagne dans tous vos projets immobiliers et à toutes les étapes de votre projet.
Fréhel
TERRAIN ET MAISONSables d’Or les Pins : maison T5 (141 m²) à vendreEMPLACEMENT PRIVILÉGIÉ – MAISON 5 PIÈCES NEUVEÀ vendre à 2 km de la Manche, bénéficiant d’un emplacement privilégié dans Sables d’Or les Pins (22240), nous vous présentons cette maison de 5 pièces de 141 m². Elle se divise en quatre chambres, une cuisine et deux salles de bains.Le terrain de la propriété s’étend sur 934 m².Il s’agit d’une maison de 2 niveaux. Elle est neuve.Cette maison se trouve dans un secteur attractif. Il y a deux commerces et un supermarché à proximité.Elle est à vendre pour la somme de 674 300 €.N’hésitez pas à prendre contact avec notre agence (Quentin LEZOUR : (Numéro supprimé)) pour toute information sur la maison, sur les modalités de vente ou sur les démarches à suivre.
Fréhel
TERRAIN ET MAISONVENTE : maison de 4 pièces (144 m²) à Sables d’Or les PinsEMPLACEMENT PRIVILÉGIÉ – MAISON 4 PIÈCES NEUVEÀ vendre : à 2 km de la Manche, bénéficiant d’un emplacement privilégié dans Sables d’Or les Pins (22240), Maisons de l’Avenir Saint-Carné vous présente cette maison de 4 pièces de 144 m².Cette maison possède 2 niveaux. Elle compte trois chambres, une cuisine et une salle de bains. La maison est neuve.Le terrain du bien s’étend sur 934 m².La maison est située dans un quartier recherché. Il y a deux commerces et un supermarché dans les environs.Elle est proposée à l’achat pour 662 000 €.Contactez Quentin LEZOUR (tél : (Numéro supprimé)) pour plus de renseignements sur la maison, sur les démarches à suivre et sur les modalités de vente. Maisons de l’Avenir Saint-Carné est là pour vous accompagner dans tous vos projets immobiliers.
Fréhel
TERRAIN ET MAISONVENTE : maison F5 (144 m²) à Sables d’Or les PinsEMPLACEMENT PRIVILÉGIÉ – MAISON 5 PIÈCES NEUVEEn vente : à 2 km de la Manche, Maisons de l’Avenir Saint-Carné vous présente cette maison de 5 pièces de 144 m² bénéficiant d’un emplacement d’exception dans Sables d’Or les Pins (22240). Elle offre quatre chambres, une cuisine et deux salles de bains.Le terrain du bien s’étend sur 934 m².Cette maison possède 2 niveaux. Elle est neuve.La maison se trouve dans un secteur attractif. Il y a deux commerces et un supermarché à proximité.Elle est proposée à l’achat pour 707 000 €.Contactez Quentin LEZOUR ((Numéro supprimé)) pour toute question sur le bien ou sur les démarches à suivre. Maisons de l’Avenir Saint-Carné vous accompagne dans tous vos projets immobiliers et dans toutes vos démarches.
Fréhel
TERRAIN ET MAISONSables d’Or les Pins : maison de 4 pièces (112 m²) à vendreEMPLACEMENT PRIVILÉGIÉ – MAISON 4 PIÈCES NEUVEEn vente : à 2 km de la Manche, découvrez, bénéficiant d’un emplacement d’exception dans Sables d’Or les Pins (22240), cette maison de 4 pièces de 112 m². Elle propose trois chambres, une cuisine et une salle de bains.Le terrain du bien s’étend sur 934 m².Il s’agit d’une maison de 2 niveaux. Elle est neuve.La maison se situe dans un quartier convoité. On trouve deux commerces et un supermarché à proximité du logement.Son prix de vente est de 563 000 €.Contactez Quentin LEZOUR ((Numéro supprimé)) pour toute information sur la maison et sur les modalités de vente. Donnez vie à vos projets immobiliers avec Maisons de l’Avenir Saint-Carné.
Fréhel
TERRAIN ET MAISONSables d’Or les Pins : maison BOIS de 6 pièces (114 m²) à vendreEMPLACEMENT PRIVILÉGIÉ – MAISON 6 PIÈCES NEUVEÀ vendre à 2 km de la Manche, Maisons de l’Avenir Saint-Carné vous présente, bénéficiant d’un emplacement d’exception dans Sables d’Or les Pins (22240), cette maison de 6 pièces de 114 m². Son intérieur inclut cinq chambres, une cuisine et deux salles de bains.Le terrain de la maison est de 934 m².C’est une maison de 2 niveaux. Elle est neuve.Cette maison est située dans un secteur recherché. On trouve deux commerces et un supermarché à proximité de la maison.Elle est à vendre pour la somme de 644 250 €.N’hésitez pas à prendre contact avec Quentin LEZOUR ((Numéro supprimé)) pour obtenir de plus amples renseignements sur le bien et sur les modalités de vente.
Fréhel
TERRAIN ET MAISONMaison BOIS F6 (200 m²) à vendre à Sables d’Or les PinsEMPLACEMENT PRIVILÉGIÉ – MAISON 6 PIÈCES NEUVEEn vente à 2 km de la Manche, bénéficiant d’un emplacement d’exception dans Sables d’Or les Pins (22240), venez découvrir cette maison de 6 pièces de 200 m².Il s’agit d’une maison de 2 niveaux. Son intérieur est composé de cinq chambres, d’une cuisine et de deux salles de bains. Cette maison est neuve.Le terrain de la propriété s’étend sur 934 m².La maison se trouve dans un secteur recherché. Il y a deux commerces et un supermarché à proximité de la maison.Elle est proposée à l’achat pour 807 000 €.Contactez Quentin LEZOUR ((Numéro supprimé)) pour toute question sur la propriété et sur les modalités de vente. Concrétisez vos projets immobiliers avec Maisons de l’Avenir Saint-Carné.
Créhen
TERRAINCréhen : terrain de 400 m² à vendrePROCHE DE SAINT-MALOÀ Créhen (22130) à 14 km de la Manche et à 18 km de Saint-Malo, venez découvrir ce terrain de 400 m². L’École Primaire Publique Jacques Prévert, l’École Primaire Privée Immaculée Conception et le Collège Privé Immaculée-Conception sont implantés à moins de 10 minutes à pied, tout comme une crèche. Niveau transports en commun, on trouve trois gares (Plancoët, Corseul-Languenan et Landébia) à moins de 10 minutes en voiture. La nationale N176 est accessible à 14 km. Il y a un tennis et une boulangerie à proximité. Ne manquez pas le marché Place de l’Eglise chaque mardi matin.Son prix de vente est de 43 600 €. Contactez Quentin LEZOUR ((Numéro supprimé)) pour tout renseignement sur le terrain. Maisons de l’Avenir Saint-Carné est là pour vous accompagner dans tous vos projets immobiliers.
L’actualité immobilière à Saint-Cast-le-Guildo
27/11/2023
02/11/2023
30/10/2023
20/10/2023
16/10/2023
16/10/2023