Maison à construire à Saint-Cast-le-Guildo (22380)
Images
Description
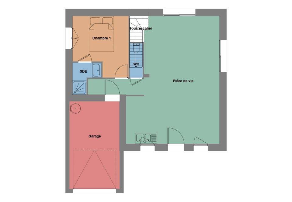
Maison F5 (102 m²) en vente à Saint-Cast-le-Guildo
EMPLACEMENT PRIVILÉGIÉ - MAISON 5 PIÈCES NEUVE
En vente : à 5 km de la Manche et à quelques kilomètres de Saint-Malo, Maisons de l'Avenir Saint-Carné vous présente cette maison de 5 pièces de 102 m² et de 407 m² de terrain bénéficiant d'un emplacement d'exception dans Saint-Cast-le-Guildo (22380).
Cette maison comporte 2 niveaux. Son intérieur offre quatre chambres, une cuisine et deux salles de bains. La maison est neuve.
Cette maison se trouve dans un quartier attractif. L'École Primaire Publique les Terrres Neuvas est implantée à moins de 10 minutes à pied. Il y a un bassin de natation, des commerces, quatre boulangeries, un supermarché, une épicerie et une poissonnerie à proximité.
Son prix de vente est de 257 500 €.
Contactez notre agence (AMIRI Laetitia : (Numéro supprimé)) pour plus de renseignements sur le bien. Maisons de l'Avenir Saint-Carné vous accompagne dans tous vos projets immobiliers et dans toutes vos démarches.
Logement susceptibles de vous intéresser
Nous vous proposons de découvrir aussi cette sélection de logements situés à moins de 10km de Saint-Cast-le-Guildo et qui seraient susceptibles de vous intéresser.
Saint-Cast-le-Guildo
TERRAIN ET MAISONVENTE d’une maison F5 (115 m²) à Saint-Cast-le-GuildoEMPLACEMENT PRIVILÉGIÉ – MAISON 5 PIÈCES NEUVEEn vente à 5 km de la Manche et à 20 km de Saint-Malo, nous sommes heureux de vous proposer cette maison de 5 pièces de 115 m² et de 407 m² de terrain bénéficiant d’un emplacement d’exception dans Saint-Cast-le-Guildo (22380).Cette maison comporte 2 niveaux. Elle propose quatre chambres, une cuisine et deux salles de bains. La maison est neuve.La maison se trouve dans un secteur prisé. L’École Primaire Publique les Terrres Neuvas est implantée à moins de 10 minutes à pied. On trouve un bassin de natation, des commerces, quatre boulangeries, un supermarché, un bureau de poste et deux boucheries-charcuteries à proximité du bien.Son prix de vente est de 329 300 €.N’hésitez pas à prendre contact avec Laetitia AMIRI ((Numéro supprimé)) pour tout renseignement sur la maison ou sur les modalités de vente.
Saint-Cast-le-Guildo
TERRAIN ET MAISONVENTE d’une maison de 4 pièces (105 m²) à Saint-Cast-le-GuildoEMPLACEMENT PRIVILÉGIÉ – MAISON 4 PIÈCES NEUVEEn vente : localisée à 5 km de la Manche et à quelques kilomètres de Saint-Malo, Maisons de l’Avenir Saint-Carné vous présente cette maison de 4 pièces de 105 m² bénéficiant d’un emplacement privilégié dans Saint-Cast-le-Guildo (22380). Elle offre quatre chambres, une cuisine et deux salles de bains.Le terrain de la maison est de 313 m².C’est une maison de 2 niveaux. Elle est neuve.Cette maison est située dans un secteur prisé. L’École Primaire Publique les Terrres Neuvas est implantée à moins de 10 minutes à pied. On trouve un bassin de natation, des commerces, quatre boulangeries, un supermarché, une épicerie et une poissonnerie à proximité du bien.Elle est proposée à l’achat pour 287 100 €.Prenez contact avec Laetitia AMIRI ((Numéro supprimé)) pour tout renseignement sur la maison et sur les modalités de vente. Maisons de l’Avenir Saint-Carné est là pour vous accompagner dans tous vos projets immobiliers.
Saint-Cast-le-Guildo
TERRAIN ET MAISONMaison F5 (80 m²) en vente à Saint-Cast-le-GuildoEMPLACEMENT PRIVILÉGIÉ – MAISON 5 PIÈCES NEUVEÀ vendre : à 5 km de la Manche et à deux pas de Saint-Malo, venez découvrir, bénéficiant d’un emplacement d’exception dans Saint-Cast-le-Guildo (22380), cette maison de 5 pièces de plain-pied de 80 m² et de 313 m² de terrain. Elle se divise en quatre chambres, une cuisine et deux salles de bains.Cette maison est neuve.Cette maison se trouve dans un quartier convoité. L’École Primaire Publique les Terrres Neuvas est implantée à moins de 10 minutes à pied. On trouve un bassin de natation, des commerces, quatre boulangeries, un supermarché, deux boucheries-charcuteries et un bureau de poste dans les environs.Son prix de vente est de 235 250 €.Contactez Laetitia AMIRI ((Numéro supprimé)) pour toute information sur la maison.
Saint-Cast-le-Guildo
TERRAIN ET MAISONVENTE d’une maison F3 (56 m²) à Saint-Cast-le-GuildoEMPLACEMENT PRIVILÉGIÉ – MAISON 3 PIÈCES NEUVEÀ vendre : à 5 km de la Manche et à quelques kilomètres de Saint-Malo, nous sommes ravis de vous présenter cette maison de 3 pièces de plain-pied de 56 m² et de 407 m² de terrain, bénéficiant d’un emplacement privilégié dans Saint-Cast-le-Guildo (22380).Conçue de plain-pied, elle compte deux chambres, une cuisine et une salle de bains. Cette maison est neuve.Le bien se trouve dans un secteur prisé. Il y a l’École Primaire Publique les Terrres Neuvas à moins de 10 minutes à pied. On trouve un bassin de natation, des commerces, quatre boulangeries, un supermarché, une épicerie et un bureau de poste à quelques minutes.Il est proposé à l’achat pour 212 050 €.N’hésitez pas à prendre contact avec Laetitia AMIRI ((Numéro supprimé)) pour obtenir de plus amples informations sur la maison. Maisons de l’Avenir Saint-Carné est là pour vous accompagner dans tous vos projets immobiliers.
Saint-Cast-le-Guildo
TERRAINTerrain de 407 m² en vente à Notre Dame Du GuildoEMPLACEMENT PRIVILÉGIÉ – PROCHE DE SAINT-MALOTerrain de 407 m² en vente à 5 km de la Manche et à 20 km de Saint-Malo. Ce terrain se situe bénéficiant d’un emplacement privilégié dans Notre Dame Du Guildo (22380). Dans un quartier attractif, ce terrain est proche des commerces et des écoles. L’École Primaire Publique les Terrres Neuvas est implantée à moins de 10 minutes à pied. On trouve un bassin de natation, des commerces, quatre boulangeries, un supermarché, deux boucheries-charcuteries et un bureau de poste à quelques minutes à peine.Ce terrain est proposé à l’achat pour 76 000 €. N’hésitez pas à prendre contact avec Laetitia AMIRI (tél : (Numéro supprimé)) pour obtenir de plus amples renseignements sur le terrain.
Saint-Cast-le-Guildo
TERRAINTerrain de 313 m² à vendre à Notre Dame du GuildoEMPLACEMENT PRIVILÉGIÉ – PROCHE DE SAINT-MALOEn vente à 5 km de la Manche et à 20 km de Saint-Malo à Notre Dame du Guildo (22380), terrain de 313 m². Il est prêt à accueillir votre résidence principale ou secondaire pour toute la famille. Dans un quartier attractif, le terrain bénéficiant d’un emplacement d’exception est proche des écoles et des commerces. Il y a l’École Primaire Publique les Terrres Neuvas à moins de 10 minutes à pied. On trouve un bassin de natation, des commerces, quatre boulangeries, un supermarché, deux boucheries-charcuteries et une poissonnerie à quelques minutes du bien.Ce terrain est proposé à l’achat pour 54 500 €. Contactez notre agence (Laetitia AMIRI : (Numéro supprimé)) pour obtenir de plus amples informations sur le terrain ou sur les modalités de vente. Maisons de l’Avenir Saint-Carné est là pour vous accompagner dans tous vos projets immobiliers.
Saint-Cast-le-Guildo
TERRAIN ET MAISONSaint-Cast-le-Guildo : maison T4 (88 m²) en venteEMPLACEMENT PRIVILÉGIÉ – MAISON 4 PIÈCES NEUVEÀ vendre : à 5 km de la Manche et à 20 km de Saint-Malo, votre agence Maisons de l’Avenir Saint-Carné est ravie de vous présenter cette maison de 4 pièces de 88 m² et de 407 m² de terrain bénéficiant d’un emplacement d’exception dans Saint-Cast-le-Guildo (22380).Cette maison compte 2 niveaux. Son intérieur propose trois chambres, une cuisine et une salle de bains. Cette maison est neuve.La maison se situe dans un secteur convoité. Il y a l’École Primaire Publique les Terrres Neuvas à moins de 10 minutes à pied. On trouve un bassin de natation, des commerces, quatre boulangeries, un supermarché, une épicerie et deux boucheries-charcuteries à quelques minutes à peine.Elle est proposée à l’achat pour 228 050 €.Contactez Laetitia AMIRI ((Numéro supprimé)) pour obtenir de plus amples renseignements sur le bien, sur les démarches à suivre ou sur les modalités de vente. Maisons de l’Avenir Saint-Carné vous accompagne dans tous vos projets immobiliers et dans toutes vos démarches.
Saint-Cast-le-Guildo
TERRAIN ET MAISONMaison de 5 pièces (89 m²) à vendre à Saint-Cast-le-GuildoEMPLACEMENT PRIVILÉGIÉ – MAISON 5 PIÈCES NEUVEÀ 5 km de la Manche et à deux pas de Saint-Malo, à vendre bénéficiant d’un emplacement privilégié dans Saint-Cast-le-Guildo (22380), Maisons de l’Avenir Saint-Carné vous présente cette maison de 5 pièces de 89 m².C’est une maison de 2 niveaux. Son intérieur comporte quatre chambres, une cuisine et deux salles de bains. Cette maison est neuve.Le terrain du bien s’étend sur 313 m².La maison se situe dans un secteur recherché. L’École Primaire Publique les Terrres Neuvas est implantée à moins de 10 minutes à pied. On trouve un bassin de natation, des commerces, quatre boulangeries, un supermarché, deux boucheries-charcuteries et un bureau de poste dans les environs.Elle est proposée à l’achat pour 231 200 €.Contactez notre agence (Laetitia AMIRI : (Numéro supprimé)) pour tout renseignement sur le bien. Maisons de l’Avenir Saint-Carné est là pour vous accompagner dans toutes vos démarches.
Saint-Cast-le-Guildo
TERRAIN ET MAISONSaint-Cast-le-Guildo : maison T4 (83 m²) à vendreEMPLACEMENT PRIVILÉGIÉ – MAISON BOIS QUALITATIVE, ECONOMIQUE ET DURABLEMAISON 4 PIÈCES NEUVEEn vente : à 5 km de la Manche et à deux pas de Saint-Malo, bénéficiant d’un emplacement d’exception dans Saint-Cast-le-Guildo (22380), nous vous présentons cette maison de 4 pièces de plain-pied de 83 m². Elle se divise en trois chambres, une cuisine et une salle de bains.Le terrain de la propriété est de 313 m².La maison est neuve.Cette maison est située dans un quartier prisé. On trouve l’École Primaire Publique les Terrres Neuvas à moins de 10 minutes à pied. Il y a un bassin de natation, des commerces, quatre boulangeries, un supermarché, deux boucheries-charcuteries et une épicerie à proximité de la maison.Elle est à vendre pour la somme de 253 650 €.Prenez contact avec Laetitia AMIRI ((Numéro supprimé)) pour tout renseignement sur la maison, sur les démarches à suivre ou sur les modalités de vente.
L’actualité immobilière à Saint-Cast-le-Guildo
27/11/2023
02/11/2023
30/10/2023
20/10/2023
16/10/2023
16/10/2023