Maison à construire à Saint-Judoce (22630)
Images
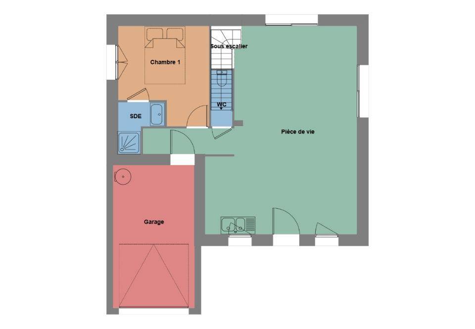
Description
VENTE : maison T5 (102 m²) à Saint-Judoce
IDÉALEMENT SITUÉE - MAISON 5 PIÈCES NEUVE
À 17 km de la Manche, nous vous proposons cette maison de 5 pièces de 102 m² et de 573 m² de terrain idéalement située dans Saint-Judoce (22630).
Il s'agit d'une maison de 2 niveaux. Son intérieur se divise en quatre chambres, une cuisine et deux salles de bains. Cette maison est neuve.
Cette maison est située dans un secteur prisé. Des établissements scolaires (de la maternelle au lycée) se trouvent à moins de 10 minutes en voiture, tout comme deux structures d'accueil pour la petite enfance à moins de 10 minutes à pied. Il y a des bibliothèques, des tennis, des commerces, trois supermarchés, des boulangeries, trois supérettes et des boucheries-charcuteries dans les environs. Enfin, le marché Place André Ferré anime le quartier tous les mercredis matin.
Elle est proposée à l'achat pour 226 950 €.
Prenez contact avec notre agence (Laetitia AMIRI : (Numéro supprimé)) pour plus d'informations sur le bien ou sur les démarches à suivre. Maisons de l'Avenir Saint-Carné est là pour vous accompagner à toutes les étapes de votre projet.
Logement susceptibles de vous intéresser
Nous vous proposons de découvrir aussi cette sélection de logements situés à moins de 10km de Saint-Judoce et qui seraient susceptibles de vous intéresser.
Pleugueneuc
TERRAIN ET MAISONÀ découvrir sur la charmante commune de Pleugueneuc, ce terrain à bâtir viabilisé de 621 m² vous offre un cadre de vie paisible et verdoyant, idéal pour concrétiser votre projet de construction. Les atouts du terrain : Superficie généreuse de 621 m² Terrain viabilisé, prêt à accueillir votre maison Environnement calme et agréable, parfait pour une vie sereine Proximité des commodités et des axes routiers pour faciliter vos déplacements. Ne laissez pas passer cette opportunité ! Contactez-nous dès maintenant pour plus d’informations et organiser une visite. Une maison qui s’adapte à vos envies. Alliance parfaite entre modernité et confort, cette maison offre un espace de vie lumineux et fonctionnel, pensé pour répondre aux besoins d’aujourd’hui. Avec 4 chambres, dont une suite parentale avec dressing et salle d’eau, elle garantit à chacun son espace tout en préservant la convivialité familiale. L’étage, astucieusement agencé, complète cet équilibre avec trois belles chambres et une salle de bains. Son architecture contemporaine, associée à des volumes optimisés, en fait un cadre de vie agréable et évolutif, entièrement personnalisable selon vos besoins. Un projet à imaginer ensemble ! Contactez-nous pour plus d’informations. Pour un confort optimal et conforme à la RE2025, cette maison dispose d’une PAC avec plancher chauffant au rez-de-chaussée, radiateurs à l’étage et volets roulants électriques. À noter : Le prix indiqué exclut les revêtements de sol des chambres, la cuisine aménagée, la peinture, la décoration, les raccordements, les frais de notaire et l’assurance dommages-ouvrage. . // Réf. : 543-197226-ALT. Prix terrain : 59 550 €, hors frais d'agence à la charge de l'acquéreur. Ce terrain vous est proposé, par nos partenaires fonciers, dans le cadre d'un projet de construction avec nous. Les informations sur les risques auxquels ce bien est exposé sont disponibles sur le site Géorisques (www.georisques.gouv.fr). Prix maison : 223 976 €.
La Baussaine
TERRAINÀ vendre, terrain constructible de 463 m² situé sur la commune de La Baussaine. La parcelle est entièrement viabilisée, offrant un cadre idéal pour concrétiser votre projet de construction. Environnement calme et agréable, à proximité des services essentiels du village. // Réf. : T213445. Prix terrain : 51 000 €, hors frais d'agence et de notaire à la charge de l'acquéreur. Ce terrain vous est proposé, par nos partenaires fonciers, dans le cadre d'un projet de construction avec nous. Les informations sur les risques auxquels ce bien est exposé sont disponibles sur le site Géorisques (www.georisques.gouv.fr).
La Baussaine
TERRAINÀ vendre, terrain constructible de 463 m² situé sur la commune de La Baussaine. La parcelle est entièrement viabilisée, offrant un cadre idéal pour concrétiser votre projet de construction. Environnement calme et agréable, à proximité des services essentiels du village. // Réf. : T213445. Prix terrain : 51 000 €, hors frais d'agence et de notaire à la charge de l'acquéreur. Ce terrain vous est proposé, par nos partenaires fonciers, dans le cadre d'un projet de construction avec nous. Les informations sur les risques auxquels ce bien est exposé sont disponibles sur le site Géorisques (www.georisques.gouv.fr).
Pleugueneuc
TERRAIN ET MAISONÀ découvrir sur la charmante commune de Pleugueneuc, ce terrain à bâtir viabilisé de 621 m² vous offre un cadre de vie paisible et verdoyant, idéal pour concrétiser votre projet de construction. Les atouts du terrain : Superficie généreuse de 621 m² Terrain viabilisé, prêt à accueillir votre maison Environnement calme et agréable, parfait pour une vie sereine Proximité des commodités et des axes routiers pour faciliter vos déplacements. Ne laissez pas passer cette opportunité ! Contactez-nous dès maintenant pour plus d’informations et organiser une visite. Une maison moderne et astucieuse, prête à accueillir vos projets de vie !. Laissez-vous séduire par cette charmante maison à étage conçue pour allier confort et fonctionnalité. Son vaste espace de vie de plus de 42 m², baigné de lumière, s’ouvre sur l’extérieur pour des moments de convivialité en famille. Profitez du confort d’une suite parentale avec dressing et salle d’eau au rez-de-chaussée, offrant intimité et praticité. À l’étage, deux belles chambres et une salle de bains complètent cet espace pensé pour toute la famille. Un garage de plus de 23 m² vient parfaire ce bien, idéal pour allier rangement et stationnement. Une maison moderne et astucieuse, prête à accueillir vos projets de vie !. Pour un confort optimal et conforme à la RE2025, cette maison dispose d’une PAC avec plancher chauffant au rez-de-chaussée, radiateurs à l’étage et volets roulants électriques. À noter : Le prix indiqué exclut les revêtements de sol des chambres, la cuisine aménagée, la peinture, la décoration, les raccordements, les frais de notaire et l’assurance dommages-ouvrage. (Carport non contractuel, non compris dans le prix). // Réf. : 2428-197226-ALT. Prix terrain : 59 550 €, hors frais d'agence à la charge de l'acquéreur. Ce terrain vous est proposé, par nos partenaires fonciers, dans le cadre d'un projet de construction avec nous. Les informations sur les risques auxquels ce bien est exposé sont disponibles sur le site Géorisques (www.georisques.gouv.fr). Prix maison : 239 582 €.
La Baussaine
TERRAIN ET MAISONÀ vendre, terrain constructible de 463 m² situé sur la commune de La Baussaine. La parcelle est entièrement viabilisée, offrant un cadre idéal pour concrétiser votre projet de construction. Environnement calme et agréable, à proximité des services essentiels du village. Lignes contemporaines & espaces optimisés ! Offrez-vous une maison personnalisable, conçue pour le confort et la convivialité. Avec 4 chambres, dont une suite parentale avec dressing et salle d’eau au rez-de-chaussée, cette maison allie fonctionnalité et élégance. Son vaste espace de vie lumineux est l’endroit idéal pour partager des moments en famille. À l’étage, trois chambres bien agencées, une salle de bain moderne et un WC séparé offrent un espace nuit parfait. Un garage et un cellier viennent compléter ce projet pensé pour s’adapter à votre style de vie. Pour un confort optimal et conforme à la RE2025, cette maison dispose d’une PAC avec plancher chauffant, radiateurs à l’étage et volets roulants électriques. À noter : Le prix indiqué exclut les revêtements de sol des chambres, la cuisine aménagée, la peinture, la décoration, les raccordements, les frais de notaire et l’assurance dommages-ouvrage. N’attendez plus pour concrétiser votre projet de vie ! Contactez-nous pour plus d’informations et une étude personnalisée. // Réf. : 593-213445-ALT. Prix terrain : 51 000 €, hors frais d'agence à la charge de l'acquéreur. Ce terrain vous est proposé, par nos partenaires fonciers, dans le cadre d'un projet de construction avec nous. Les informations sur les risques auxquels ce bien est exposé sont disponibles sur le site Géorisques (www.georisques.gouv.fr). Prix maison : 287 712 €.
La Baussaine
TERRAIN ET MAISONÀ vendre, terrain constructible de 463 m² situé sur la commune de La Baussaine. La parcelle est entièrement viabilisée, offrant un cadre idéal pour concrétiser votre projet de construction. Environnement calme et agréable, à proximité des services essentiels du village. Une maison moderne et astucieuse, prête à accueillir vos projets de vie !. Laissez-vous séduire par cette charmante maison à étage conçue pour allier confort et fonctionnalité. Son vaste espace de vie de plus de 42 m², baigné de lumière, s’ouvre sur l’extérieur pour des moments de convivialité en famille. Profitez du confort d’une suite parentale avec dressing et salle d’eau au rez-de-chaussée, offrant intimité et praticité. À l’étage, deux belles chambres et une salle de bains complètent cet espace pensé pour toute la famille. Un garage de plus de 23 m² vient parfaire ce bien, idéal pour allier rangement et stationnement. Une maison moderne et astucieuse, prête à accueillir vos projets de vie !. Pour un confort optimal et conforme à la RE2025, cette maison dispose d’une PAC avec plancher chauffant au rez-de-chaussée, radiateurs à l’étage et volets roulants électriques. À noter : Le prix indiqué exclut les revêtements de sol des chambres, la cuisine aménagée, la peinture, la décoration, les raccordements, les frais de notaire et l’assurance dommages-ouvrage. (Carport non contractuel, non compris dans le prix). // Réf. : 2428-213445-ALT. Prix terrain : 51 000 €, hors frais d'agence à la charge de l'acquéreur. Ce terrain vous est proposé, par nos partenaires fonciers, dans le cadre d'un projet de construction avec nous. Les informations sur les risques auxquels ce bien est exposé sont disponibles sur le site Géorisques (www.georisques.gouv.fr). Prix maison : 239 582 €.
Cardroc
TERRAIN ET MAISONCardroc : maison de 4 pièces (75 m²) à vendreIDÉALEMENT SITUÉE – MAISON 4 PIÈCES NEUVEÀ 27 km de la Manche et à 24 km de Rennes, à vendre idéalement située dans Cardroc (35190), ayez le coup de coeur pour cette maison de 4 pièces de plain-pied de 75 m² et de 438 m² de terrain. Son intérieur comporte trois chambres, une cuisine et une salle de bains.La maison est neuve.Cette maison se trouve dans un secteur convoité. L’École Élémentaire Publique de Cardroc est implantée à moins de 10 minutes à pied. La nationale N12 est accessible à 12 km.Elle est proposée à l’achat pour 214 000 €.N’hésitez pas à prendre contact avec notre agence (Dimitri MESAS : (Numéro supprimé)) pour toute information sur la maison, sur les modalités de vente ou sur les démarches à suivre. Maisons de l’Avenir Cesson-Sévigné vous accompagne dans tous vos projets immobiliers et à toutes les étapes de votre projet.
La Baussaine
TERRAIN ET MAISONÀ vendre, terrain constructible de 463 m² situé sur la commune de La Baussaine. La parcelle est entièrement viabilisée, offrant un cadre idéal pour concrétiser votre projet de construction. Environnement calme et agréable, à proximité des services essentiels du village. Un équilibre parfait entre élégance et fonctionnalité – Un lieu de vie unique, conçu pour aujourd’hui et demain. Imaginez une maison qui allie beaux volumes, luminosité et confort familial. Son séjour spacieux de plus de 43 m², baigné de lumière, devient le cœur de la maison, un espace idéal pour partager des moments chaleureux. Pensée pour répondre à tous les besoins, elle propose quatre grandes chambres, une mezzanine conviviale, une cuisine fonctionnelle et un garage intégré, garantissant un quotidien fluide et agréable. Ici, chaque détail est conçu pour offrir une qualité de vie incomparable. Pour un confort optimal et conforme à la RE2025, cette maison dispose d’une PAC avec plancher chauffant au rez-de-chaussée, radiateurs à l’étage et volets roulants électriques. À noter : Le prix indiqué exclut les revêtements de sol des chambres, la cuisine aménagée, la peinture, la décoration, les raccordements, les frais de notaire et l’assurance dommages-ouvrage. . . // Réf. : 380-213445-ALT. Prix terrain : 51 000 €, hors frais d'agence à la charge de l'acquéreur. Ce terrain vous est proposé, par nos partenaires fonciers, dans le cadre d'un projet de construction avec nous. Les informations sur les risques auxquels ce bien est exposé sont disponibles sur le site Géorisques (www.georisques.gouv.fr). Prix maison : 306 615 €.
Cardroc
TERRAIN ET MAISONMaison de 3 pièces (86 m²) en vente à CardrocIDÉALEMENT SITUÉE – MAISON 3 PIÈCES NEUVEÀ 27 km de la Manche et à 24 km de Rennes, Maisons de l’Avenir Cesson-Sévigné vous présente à vendre, idéalement située dans Cardroc (35190), cette maison de 3 pièces de plain-pied de 86 m². Conçue de plain-pied, elle est composée de trois chambres, d’une cuisine et d’une salle de bains.Le terrain de cette maison est de 438 m².La maison est neuve.La maison est située dans un secteur convoité. On trouve l’École Élémentaire Publique de Cardroc à moins de 10 minutes à pied. La nationale N12 est accessible à 12 km.Elle est proposée à l’achat pour 257 000 €.Contactez notre agence (Dimitri MESAS : (Numéro supprimé)) pour toute question sur la propriété, sur les modalités de vente ou sur les démarches à suivre. Maisons de l’Avenir Cesson-Sévigné vous accompagne à toutes les étapes de votre projet et dans tous vos projets immobiliers.
L’actualité immobilière à Saint-Judoce
27/11/2023
02/11/2023
30/10/2023
20/10/2023
16/10/2023
16/10/2023