Maison à construire à Trégueux (22950)
Images
Description
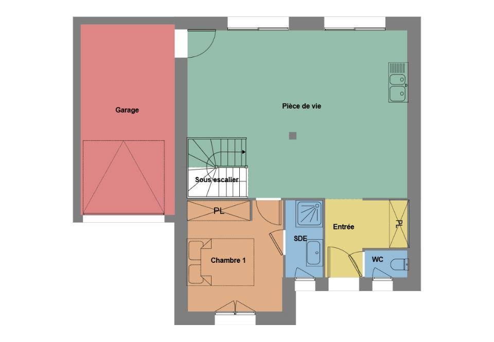
VENTE d'une maison T5 (89 m²) à Trégueux
PROCHE DE SAINT-BRIEUC - MAISON 5 PIÈCES NEUVE
À vendre à 6 km de la Manche et à 4 km de Saint-Brieuc, à Trégueux (22950), Maisons de l'Avenir Saint-Brieuc vous propose cette maison de 5 pièces de 89 m². Son intérieur se divise en quatre chambres, une cuisine et deux salles de bains.
Le terrain de la propriété est de 535 m².
Cette maison comporte 2 niveaux. Elle est neuve.
L'École Maternelle Publique l'Oiseau Bleu et l'École Primaire Publique Louis Pasteur sont implantées à moins de 10 minutes à pied. Niveau transports en commun, il y a trois gares (Saint-Brieuc, Yffiniac et La Méaugon) à moins de 10 minutes en voiture. La nationale N12 est accessible à 3 km. On trouve une bibliothèque, trois commerces et un bureau de poste à quelques minutes à peine.
Elle est à vendre pour la somme de 307 000 €.
Prenez contact avec Samuel ROGER (tél : (Numéro supprimé)) pour tout renseignement sur la maison. Maisons de l'Avenir Saint-Brieuc vous accompagne dans toutes vos démarches et dans tous vos projets immobiliers.
Logement susceptibles de vous intéresser
Nous vous proposons de découvrir aussi cette sélection de logements situés à moins de 10km de Trégueux et qui seraient susceptibles de vous intéresser.
Plédran
TERRAINTerrain de 394 m² en vente à PlédranPROCHE DE SAINT-BRIEUCÀ Plédran (22960) en vente à 10 km de la Manche et à quelques kilomètres de Saint-Brieuc, donnez vie à la maison de vos rêves sur ce terrain de 394 m². Il y a l’École Maternelle Publique de Plédran, l’École Élémentaire Publique de Plédran et l’École Primaire Privée Saint Maurice à moins de 10 minutes à pied. Niveau transports en commun, on trouve deux gares (Yffiniac et Saint-Brieuc) à moins de 10 minutes en voiture. Il y a un accès à la nationale N12 à 7 km. Il y a une bibliothèque et un tennis à quelques minutes.Il est proposé à l’achat pour 57 000 €. Contactez Samuel ROGER (tél : (Numéro supprimé)) pour tout renseignement sur ce terrain, sur les modalités de vente ou sur les démarches à suivre.
Plédran
TERRAIN ET MAISONVENTE d’une maison T3 (55 m²) à PlédranPROCHE DE SAINT-BRIEUC – MAISON 3 PIÈCES NEUVEEn vente : localisée à 10 km de la Manche et à 8 km de Saint-Brieuc, nous sommes ravis de vous présenter à Plédran (22960), cette maison de 3 pièces de plain-pied de 55 m².Son intérieur compte deux chambres, une cuisine et une salle de bains. Cette maison est neuve.Le terrain du bien s’étend sur 394 m².Il y a l’École Maternelle Publique de Plédran, l’École Élémentaire Publique de Plédran et l’École Primaire Privée Saint Maurice à moins de 10 minutes à pied. Côté transports, on trouve deux gares (Yffiniac et Saint-Brieuc) à moins de 10 minutes en voiture. Il y a un accès à la nationale N12 à 7 km. Il y a une bibliothèque et un tennis à proximité du logement.Elle est à vendre pour la somme de 189 000 €.Prenez contact avec Samuel ROGER (tél : (Numéro supprimé)) pour plus d’informations sur la maison. Maisons de l’Avenir Saint-Brieuc est là pour vous accompagner dans toutes vos démarches.
Plédran
TERRAIN ET MAISONVENTE : maison F4 (67 m²) à PlédranMAISON 4 PIÈCES NEUVE – PROCHE DE SAINT-BRIEUCÀ vendre : localisée à 10 km de la Manche et à 8 km de Saint-Brieuc, nous sommes heureux de vous présenter cette maison de 4 pièces de 67 m² à Plédran (22960). Elle se divise en trois chambres, une cuisine et une salle de bains.Le terrain du bien s’étend sur 394 m².Cette maison compte 2 niveaux. Elle est neuve.On trouve l’École Maternelle Publique de Plédran, l’École Élémentaire Publique de Plédran et l’École Primaire Privée Saint Maurice à moins de 10 minutes à pied. Côté transports, il y a les gares Yffiniac et Saint-Brieuc à moins de 10 minutes en voiture. Il y a un accès à la nationale N12 à 7 km. On trouve une bibliothèque et un tennis dans les environs.Elle est à vendre pour la somme de 191 000 €.Contactez notre agence (Samuel ROGER : (Numéro supprimé)) pour toute information sur cette maison, sur les démarches à suivre ou sur les modalités de vente. Maisons de l’Avenir Saint-Brieuc est là pour vous accompagner à toutes les étapes de l’achat.
Plédran
TERRAIN ET MAISONVENTE : maison de 3 pièces (55 m²) à PlédranMAISON 3 PIÈCES NEUVE – PROCHE DE SAINT-BRIEUCÀ 10 km de la Manche et à deux pas de Saint-Brieuc, nous sommes heureux de vous présenter à vendre à Plédran (22960), cette maison de 3 pièces de plain-pied de 55 m². Elle dispose de deux chambres, d’une cuisine et d’une salle de bains.Le terrain de la maison s’étend sur 394 m².Cette maison est neuve.L’École Maternelle Publique de Plédran, l’École Élémentaire Publique de Plédran et l’École Primaire Privée Saint Maurice sont implantées à moins de 10 minutes à pied. Côté transports en commun, on trouve les gares Yffiniac et Saint-Brieuc à moins de 10 minutes en voiture. Il y a un accès à la nationale N12 à 7 km. Il y a une bibliothèque et un tennis à proximité.Son prix de vente est de 193 000 €.Contactez notre agence (Samuel ROGER : (Numéro supprimé)) pour obtenir de plus amples informations sur la maison et sur les démarches à suivre. Faites de vos projets immobiliers une réalité avec Maisons de l’Avenir Saint-Brieuc.
Plédran
TERRAIN ET MAISONVENTE : maison de 5 pièces (114 m²) à PlédranMAISON 5 PIÈCES NEUVE – PROCHE DE SAINT-BRIEUCÀ vendre : à 10 km de la Manche et à quelques kilomètres de Saint-Brieuc, Maisons de l’Avenir Saint-Brieuc vous propose cette maison de 5 pièces de 114 m² et de 394 m² de terrain à Plédran (22960).Cette maison compte 2 niveaux. Elle compte quatre chambres, une cuisine et une salle de bains. Cette maison est neuve.On trouve l’École Maternelle Publique de Plédran, l’École Élémentaire Publique de Plédran et l’École Primaire Privée Saint Maurice à moins de 10 minutes à pied. Niveau transports, il y a les gares Yffiniac et Saint-Brieuc à moins de 10 minutes en voiture. Il y a un accès à la nationale N12 à 7 km. On trouve une bibliothèque et un tennis à quelques minutes.Son prix de vente est de 319 000 €.Contactez Samuel ROGER (tél : (Numéro supprimé)) pour plus d’informations sur cette maison, sur les démarches à suivre ou sur les modalités de vente. Maisons de l’Avenir Saint-Brieuc vous accompagne dans tous vos projets immobiliers et à toutes les étapes de votre projet.
Plédran
TERRAIN ET MAISONVENTE d’une maison F4 (83 m²) à PlédranPROCHE DE SAINT-BRIEUC – MAISON 4 PIÈCES NEUVEÀ 10 km de la Manche et à 8 km de Saint-Brieuc, à vendre à Plédran (22960), venez découvrir cette maison de 4 pièces de plain-pied de 83 m² et de 394 m² de terrain. Conçue de plain-pied, elle offre trois chambres, une cuisine et une salle de bains.La maison est neuve.On trouve l’École Maternelle Publique de Plédran, l’École Élémentaire Publique de Plédran et l’École Primaire Privée Saint Maurice à moins de 10 minutes à pied. Niveau transports en commun, il y a deux gares (Yffiniac et Saint-Brieuc) à moins de 10 minutes en voiture. On trouve un accès à la nationale N12 à 7 km. On trouve une bibliothèque et un tennis dans les environs.Son prix de vente est de 243 000 €.Contactez Samuel ROGER ((Numéro supprimé)) pour toute question sur cette maison ou sur les démarches à suivre. Maisons de l’Avenir Saint-Brieuc est là pour vous accompagner à toutes les étapes de votre projet.
Ploufragan
TERRAINPloufragan : terrain de 619 m² en ventePROCHE DE SAINT-BRIEUCÀ 11 km de la Manche et à quelques kilomètres de Saint-Brieuc à Ploufragan (22440), grand terrain. Réalisez-y la maison de vos rêves. Ce terrain est proche des commerces et des écoles. Il y a tous les types d’établissements scolaires à moins de 10 minutes en voiture, tout comme sept structures d’accueil pour les tout-petits à moins de 10 minutes à pied. Niveau transports, on trouve les gares La Méaugon, Saint-Brieuc et Plouvara-Plerneuf à moins de 10 minutes en voiture. Il y a un accès à la nationale N12 à 5 km. Il y a des bibliothèques, des tennis, trois bassins de natation, un port de plaisance, des commerces, des boulangeries, des supermarchés, des supérettes et des boucheries-charcuteries dans les environs. Le marché Rue du Commerce anime les environs tous les dimanches matin.Il est proposé à l’achat pour 88 500 €. Prenez contact avec Samuel ROGER ((Numéro supprimé)) pour obtenir de plus amples renseignements sur ce terrain, sur les modalités de vente ou sur les démarches à suivre. Maisons de l’Avenir Saint-Brieuc est là pour vous accompagner dans tous vos projets immobiliers.
Ploufragan
TERRAIN ET MAISONPloufragan : maison de 4 pièces (67 m²) à vendrePROCHE DE SAINT-BRIEUC – MAISON 4 PIÈCES NEUVEÀ 11 km de la Manche et à deux pas de Saint-Brieuc, nous vous présentons cette maison de 4 pièces de 67 m² et de 619 m² de terrain à vendre à Ploufragan (22440).Cette maison comporte 2 niveaux. Elle compte trois chambres, une cuisine et une salle de bains. Cette maison est neuve.Des écoles du primaire et du secondaire sont implantées à moins de 10 minutes en voiture, tout comme sept structures d’accueil pour les enfants en bas âge à moins de 10 minutes à pied. Niveau transports en commun, on trouve les gares La Méaugon, Saint-Brieuc et Plouvara-Plerneuf à moins de 10 minutes en voiture. La nationale N12 est accessible à 5 km. Il y a des bibliothèques, des tennis, trois bassins de natation, un port de plaisance, des commerces, des boulangeries, des supermarchés, des bureaux de poste et des supérettes à quelques minutes à peine. Ne manquez pas le marché Rue du Commerce chaque dimanche matin.Elle est proposée à l’achat pour 230 000 €.Contactez Samuel ROGER (tél : (Numéro supprimé)) pour obtenir de plus amples informations sur la maison, sur les modalités de vente ou sur les démarches à suivre. Maisons de l’Avenir Saint-Brieuc vous accompagne à toutes les étapes de votre projet et dans tous vos projets immobiliers.
Ploufragan
TERRAIN ET MAISONPloufragan : maison T6 (118 m²) à vendreMAISON 6 PIÈCES NEUVE – PROCHE DE SAINT-BRIEUCEn vente : à 11 km de la Manche et à quelques kilomètres de Saint-Brieuc, notre agence Maisons de l’Avenir Saint-Brieuc est ravie de vous présenter cette maison de 6 pièces de 118 m² et de 619 m² de terrain à Ploufragan (22440). Son intérieur propose cinq chambres, une cuisine et deux salles de bains.Il s’agit d’une maison de 2 niveaux. Elle est neuve.Des écoles de tous types (de la maternelle au lycée) sont implantées à moins de 10 minutes en voiture, tout comme sept crèches à moins de 10 minutes à pied. Côté transports en commun, il y a trois gares (La Méaugon, Saint-Brieuc et Plouvara-Plerneuf) à moins de 10 minutes en voiture. Il y a un accès à la nationale N12 à 5 km. On trouve des bibliothèques, des tennis, trois bassins de natation, un port de plaisance, des commerces, des boulangeries, des supermarchés, des épiceries et des bureaux de poste à quelques minutes. Le marché Rue du Commerce anime les environs tous les dimanches matin.Son prix de vente est de 380 000 €.Contactez notre constructeur (Samuel ROGER : (Numéro supprimé)) pour toute information sur la propriété, sur les démarches à suivre ou sur les modalités de vente. Maisons de l’Avenir Saint-Brieuc vous accompagne à toutes les étapes de l’achat et dans tous vos projets immobiliers.
L’actualité immobilière à Trégueux
27/11/2023
02/11/2023
30/10/2023
20/10/2023
16/10/2023
16/10/2023