Maison à construire à Trémeur (22250)
Images
Description
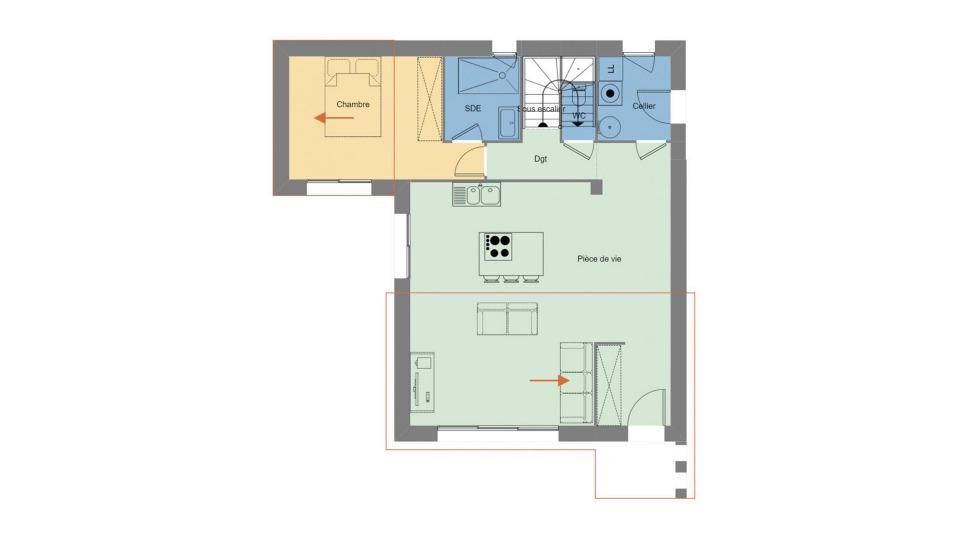
Trémeur : maison F4 (94 m²) à vendre
IDÉALEMENT SITUÉE - PROCHE DE JUGON LES LACS
MAISON 4 PIÈCES NEUVE
En vente : à 36 km de la Manche, Maisons de l'Avenir Saint-Carné vous propose cette maison de 4 pièces de 94 m² et de 703 m² de terrain idéalement située dans Trémeur (22250).
Cette maison comporte 2 niveaux. Son intérieur inclut trois chambres, une cuisine et deux salles de bains. Cette maison est neuve.
La maison est située dans un secteur attractif. On trouve l'École Primaire Pubilque de Trémeur à moins de 10 minutes à pied. Côté transports, il y a les gares Broons et Plénée-Jugon à moins de 10 minutes en voiture. Les nationales N12 et N176 sont accessibles à moins de 9 km.
Son prix de vente est de 243 050 €.
Contactez Laetitia AMIRI (tél : (Numéro supprimé)) pour plus d'informations sur la maison, sur les modalités de vente ou sur les démarches à suivre. Maisons de l'Avenir Saint-Carné est là pour vous accompagner dans tous vos projets immobiliers.
Logement susceptibles de vous intéresser
Nous vous proposons de découvrir aussi cette sélection de logements situés à moins de 10km de Trémeur et qui seraient susceptibles de vous intéresser.
Jugon-les-Lacs – Commune nouvelle
TERRAIN ET MAISONVENTE d’une maison de 5 pièces (102 m²) à Jugon-les-LacsIDÉALEMENT SITUÉE – MAISON 5 PIÈCES NEUVEEn vente à 29 km de la Manche, idéalement située dans Jugon-les-Lacs (22270), votre agence Maisons de l’Avenir Saint-Carné est ravie de vous proposer cette maison de 5 pièces de 102 m². Elle comporte quatre chambres, une cuisine et deux salles de bains.Le terrain du bien s’étend sur 817 m².Il s’agit d’une maison de 2 niveaux. Elle est neuve.La maison se trouve dans un secteur recherché. L’École Primaire Publique de Jugon les Lacs Commune Nouvelle est implantée à moins de 10 minutes à pied. Niveau transports en commun, il y a les gares Plénée-Jugon et Plestan à moins de 10 minutes en voiture. Il y a un accès à la nationale N176 à 1 km. On trouve un tennis, une bibliothèque, un bassin de natation, deux boulangeries, un commerce, un bureau de poste, une boucherie-charcuterie et une épicerie dans les environs.Son prix de vente est de 240 100 €.Prenez contact avec Laetitia AMIRI (tél : (Numéro supprimé)) pour plus de renseignements sur la maison et sur les démarches à suivre. Maisons de l’Avenir Saint-Carné vous accompagne à toutes les étapes de votre projet et dans tous vos projets immobiliers.
Jugon-les-Lacs – Commune nouvelle
TERRAIN ET MAISONJugon-les-Lacs : maison F3 (86 m²) à vendreIDÉALEMENT SITUÉE – MAISON 3 PIÈCES NEUVEÀ 29 km de la Manche, en vente idéalement située dans Jugon-les-Lacs (22270), ayez le coup de coeur pour cette maison de 3 pièces de plain-pied de 86 m². Conçue de plain-pied, elle offre trois chambres, une cuisine et une salle de bains.Le terrain de la maison s’étend sur 817 m².Cette maison est neuve.La maison se trouve dans un quartier convoité. L’École Primaire Publique de Jugon les Lacs Commune Nouvelle est implantée à moins de 10 minutes à pied. Côté transports en commun, on trouve deux gares (Plénée-Jugon et Plestan) à moins de 10 minutes en voiture. La nationale N176 est accessible à 1 km. Il y a un tennis, une bibliothèque, un bassin de natation, deux boulangeries, un commerce, une épicerie, une boucherie-charcuterie et un bureau de poste à quelques minutes.Elle est à vendre pour la somme de 246 150 €.N’hésitez pas à prendre contact avec Laetitia AMIRI (tél : (Numéro supprimé)) pour tout renseignement sur le bien. Maisons de l’Avenir Saint-Carné est là pour vous accompagner à toutes les étapes de l’achat.
Jugon-les-Lacs – Commune nouvelle
TERRAIN ET MAISONVENTE d’une maison de 5 pièces (114 m²) à Jugon-les-LacsIDÉALEMENT SITUÉE – MAISON BOIS QUALITATIVE, ECONOMIQUE ET DURABLEMAISON 5 PIÈCES NEUVEÀ 29 km de la Manche, découvrez en vente, idéalement située dans Jugon-les-Lacs (22270), cette maison de 5 pièces de 114 m².Il s’agit d’une maison de 2 niveaux. Son intérieur se divise en quatre chambres, une cuisine et une salle de bains. La maison est neuve.Le terrain du bien est de 817 m².La maison se trouve dans un secteur attractif. Il y a l’École Primaire Publique de Jugon les Lacs Commune Nouvelle à moins de 10 minutes à pied. Niveau transports en commun, on trouve deux gares (Plénée-Jugon et Plestan) à moins de 10 minutes en voiture. La nationale N176 est accessible à 1 km. Il y a un tennis, une bibliothèque, un bassin de natation, deux boulangeries, un commerce, un bureau de poste, une boucherie-charcuterie et une épicerie à proximité.Son prix de vente est de 328 550 €.N’hésitez pas à prendre contact avec notre agence (Laetitia AMIRI : (Numéro supprimé)) pour plus d’informations sur la maison. Maisons de l’Avenir Saint-Carné vous accompagne dans tous vos projets immobiliers et dans toutes vos démarches.
Jugon-les-Lacs – Commune nouvelle
TERRAIN ET MAISONJugon-les-Lacs : maison T4 (120 m²) à vendreIDÉALEMENT SITUÉE – MAISON 4 PIÈCES NEUVEEn vente : localisée à 29 km de la Manche, notre agence Maisons de l’Avenir Saint-Carné est heureuse de vous présenter, idéalement située dans Jugon-les-Lacs (22270), cette maison de 4 pièces de 120 m² et de 817 m² de terrain. Son intérieur inclut quatre chambres, une cuisine et deux salles de bains.Cette maison compte 2 niveaux. Elle est neuve.Cette maison se trouve dans un secteur prisé. Il y a l’École Primaire Publique de Jugon les Lacs Commune Nouvelle à moins de 10 minutes à pied. Niveau transports, on trouve les gares Plénée-Jugon et Plestan à moins de 10 minutes en voiture. Il y a un accès à la nationale N176 à 1 km. Il y a un tennis, une bibliothèque, un bassin de natation, deux boulangeries, un commerce, une épicerie, un bureau de poste et une boucherie-charcuterie à proximité.Elle est proposée à l’achat pour 318 650 €.N’hésitez pas à prendre contact avec notre constructeur (AMIRI Laetitia : (Numéro supprimé)) pour toute information sur la maison ou sur les modalités de vente.
Jugon-les-Lacs – Commune nouvelle
TERRAIN ET MAISONMaison de 4 pièces (95 m²) en vente à Jugon-les-LacsIDÉALEMENT SITUÉE – MAISON 4 PIÈCES NEUVEEn vente : localisée à 29 km de la Manche, nous sommes heureux de vous présenter cette maison de 4 pièces de 95 m² et de 817 m² de terrain idéalement située dans Jugon-les-Lacs (22270). Elle offre trois chambres, une cuisine et deux salles de bains.Il s’agit d’une maison de 2 niveaux. Elle est neuve.Cette maison est située dans un secteur convoité. L’École Primaire Publique de Jugon les Lacs Commune Nouvelle se trouve à moins de 10 minutes à pied. Niveau transports, il y a deux gares (Plénée-Jugon et Plestan) à moins de 10 minutes en voiture. La nationale N176 est accessible à 1 km. On trouve un tennis, une bibliothèque, un bassin de natation, deux boulangeries, un commerce, une épicerie, une boucherie-charcuterie et un bureau de poste à proximité de la maison.Elle est proposée à l’achat pour 266 800 €.Prenez contact avec notre agence (AMIRI Laetitia : (Numéro supprimé)) pour obtenir de plus amples renseignements sur la maison, sur les modalités de vente ou sur les démarches à suivre.
Jugon-les-Lacs – Commune nouvelle
TERRAINTerrain de 817 m² en vente à Jugon-les-LacsIDÉALEMENT SITUÉÀ Jugon-les-Lacs (22270) à vendre à 29 km de la Manche, venez découvrir ce terrain de 817 m². Dans un secteur attractif, ce terrain idéalement situé est proche des écoles et des commerces. Il y a l’École Primaire Publique de Jugon les Lacs Commune Nouvelle à moins de 10 minutes à pied. Niveau transports en commun, on trouve les gares Plénée-Jugon et Plestan à moins de 10 minutes en voiture. La nationale N176 est accessible à 1 km. Il y a un tennis, une bibliothèque, un bassin de natation, deux boulangeries, un commerce, une épicerie, un bureau de poste et une boucherie-charcuterie dans les environs.Son prix de vente est de 55 000 €. Contactez Laetitia AMIRI ((Numéro supprimé)) pour obtenir de plus amples renseignements sur ce terrain. Donnez vie à vos projets immobiliers avec Maisons de l’Avenir Saint-Carné.
Trémeur
TERRAIN ET MAISONVENTE d’une maison de 4 pièces (88 m²) à TrémeurIDÉALEMENT SITUÉE – PROCHE DE JUGON LES LACSMAISON 4 PIÈCES NEUVEEn vente à 36 km de la Manche, nous sommes heureux de vous proposer, idéalement située dans Trémeur (22250), cette maison de 4 pièces de 88 m².Cette maison compte 2 niveaux. Son intérieur est composé de trois chambres, d’une cuisine et d’une salle de bains. Cette maison est neuve.Le terrain de la propriété s’étend sur 703 m².Cette maison se trouve dans un quartier attractif. Il y a l’École Primaire Pubilque de Trémeur à moins de 10 minutes à pied. Niveau transports en commun, on trouve les gares Broons et Plénée-Jugon à moins de 10 minutes en voiture. Les nationales N12 et N176 sont accessibles à moins de 9 km.Son prix de vente est de 180 050 €.Prenez contact avec Laetitia AMIRI (tél : (Numéro supprimé)) pour toute information sur la maison, sur les démarches à suivre ou sur les modalités de vente. Maisons de l’Avenir Saint-Carné vous accompagne dans tous vos projets immobiliers et dans toutes vos démarches.
Caulnes
TERRAIN ET MAISONVENTE : maison F4 (120 m²) à CaulnesIDÉALEMENT SITUÉE – MAISON BOIS QUALITATIVE, ECONOMIQUE ET DURABLEMAISON 4 PIÈCES NEUVEÀ 32 km de la Manche, en vente idéalement située dans Caulnes (22350), nous vous proposons cette maison de 4 pièces de plain-pied de 120 m². Son intérieur dispose de trois chambres, d’une cuisine et de deux salles de bains.Le terrain du bien s’étend sur 1 993 m².Cette maison est neuve.Cette maison est située dans un quartier prisé. L’École Primaire Publique la Fontaine Cariou se trouve à moins de 10 minutes à pied. Côté transports en commun, il y a la gare Caulnes à quelques pas de la maison. On trouve un accès à la nationale N12 à 3 km. On trouve deux boulangeries, des commerces, un supermarché, une épicerie et un bureau de poste à proximité du logement.Elle est proposée à l’achat pour 354 000 €.Contactez Laetitia AMIRI ((Numéro supprimé)) pour tout renseignement sur la propriété, sur les démarches à suivre ou sur les modalités de vente.
Trémeur
TERRAIN ET MAISONTrémeur : maison F4 (94 m²) à vendreIDÉALEMENT SITUÉE – PROCHE DE JUGON LES LACSMAISON 4 PIÈCES NEUVEEn vente : à 36 km de la Manche, Maisons de l’Avenir Saint-Carné vous propose cette maison de 4 pièces de 94 m² et de 703 m² de terrain idéalement située dans Trémeur (22250).Cette maison comporte 2 niveaux. Son intérieur inclut trois chambres, une cuisine et deux salles de bains. Cette maison est neuve.La maison est située dans un secteur attractif. On trouve l’École Primaire Pubilque de Trémeur à moins de 10 minutes à pied. Côté transports, il y a les gares Broons et Plénée-Jugon à moins de 10 minutes en voiture. Les nationales N12 et N176 sont accessibles à moins de 9 km.Son prix de vente est de 243 050 €.Contactez Laetitia AMIRI (tél : (Numéro supprimé)) pour plus d’informations sur la maison, sur les modalités de vente ou sur les démarches à suivre. Maisons de l’Avenir Saint-Carné est là pour vous accompagner dans tous vos projets immobiliers.
L’actualité immobilière à Trémeur
27/11/2023
02/11/2023
30/10/2023
20/10/2023
16/10/2023
16/10/2023