Images
Description
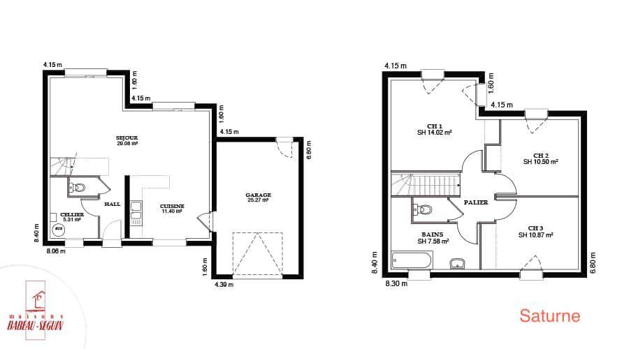
Sur ce terrain, nous vous proposons cette maison neuve : la Saturne de 117 m². Élégante maison contemporaine, la Saturne est disponible en trois versions de 97 m², 107 m² et 117 m², toutes avec garage accolé.
Faire le choix de la Saturne de 117 m², c’est faire un choix audacieux pour sa future maison. Résolument contemporaine avec son toit plat et ses nuances de textures alliant béton et bois, cette maison de 4 chambres offre en plus d’un style unique un confort inégalable !
La Saturne vous offre des prestations de grande qualité et un confort exemplaire grâce à son garage accolé et sa basse consommation, conforme à la RE2020. Pour ne plus hésiter entre une maison en parpaing ou une maison bois, la Saturne vous offre le meilleur des deux grâce à son clin bois sur façade.
A noter que les options les plus demandées par les clients sont le bardage bois, qui ajoute une touche naturelle et chaleureuse à l’esthétique moderne de la maison.
Construite par Babeau-Seguin, constructeur offrant le meilleur rapport qualité/prix du marché, cette maison est une opportunité à ne pas manquer pour ceux qui recherchent une habitation alliant modernité, confort et respect de l’environnement.
Logement susceptibles de vous intéresser
Nous vous proposons de découvrir aussi cette sélection de logements situés à moins de 10km de Aigondigné et qui seraient susceptibles de vous intéresser.
Sainte-Néomaye
TERRAIN ET MAISONLa ligne EVOLUTION vous offre une maison plain-pied dès 71 m² habitables, pensée pour s’adapter à votre style de vie. Profitez d’une pièce de vie traversante à partir de 35m², baignée de lumière grâce à une grande baie vitrée, avec cuisine ouverte et cellier isolé pour plus de praticité. Ce modèle se compose de 2 chambres. À l’extérieur, choisissez un garage, un préau ou un carport attenant d’une surface de 15m², parfait pour stationner ou profiter des beaux jours.Informations du terrain : Terrain proche écoles et commerce de proximité.Informations : Fabien Vaudois au (Numéro supprimé).Prix incluant assurance dommages-ouvrage, VRD compris, terrain viabilisé, assainissement compris, frais de notaire non compris, taxes non comprises, frais divers non compris. Terrain sous réserve de disponibilité de notre partenaire foncier. Images non contractuelles.Cette annonce a été créée et diffusée avec le logiciel VITAHOME.
Sainte-Néomaye
TERRAIN ET MAISONLumineuse ! Maison plain-pied 3 chambres dont une avec salle d’eau équipée avec une douche et un meuble vasque. Cette maison à partir de 87 m2 habitable vous procure une belle pièce de vie de 40 m2 orientée à l’avant. Cellier isolé attenant au garage de 16 m2. Grande cuisine ouverte sur la pièce de vie éclairée par une baie coulissante sur la façade. Vous accédez de votre cuisine sur une terrasse opposée au séjour. Orientation des chambres situées à l’arrière. Vous bénéficiez également d’une salle de bain équipée avec meuble vasque et baignoire. Carrelage grand format compris dans toute les pièces (hors chambres) et faïence au choix dans une large gamme disponible.Informations du terrain : Terrain proche écoles et commerce de proximité.Informations : Fabien Vaudois au (Numéro supprimé).Prix incluant assurance dommages-ouvrage, VRD compris, terrain viabilisé, assainissement compris, frais de notaire non compris, taxes non comprises, frais divers non compris. Terrain sous réserve de disponibilité de notre partenaire foncier. Images non contractuelles.Cette annonce a été créée et diffusée avec le logiciel VITAHOME.
Vouillé
TERRAINproche école et commerce, centre bourgPrix : 51990 €.Informations : Eric Souchet au (Numéro supprimé).Sous réserve de disponibilité de notre partenaire foncier. Prix hors frais de notaire. Photos non contractuelles.Cette annonce a été créée et diffusée avec le logiciel VITAHOME.
Sainte-Néomaye
TERRAIN ET MAISONLa ligne EVOLUTION vous offre une maison plain-pied dès 79 m² habitables, pensée pour s’adapter à votre style de vie. Profitez d’une pièce de vie traversante à partir de 35m², baignée de lumière grâce à une grande baie vitrée, avec cuisine ouverte et cellier isolé pour plus de praticité. Ce modèle se compose de 3 chambres. À l’extérieur, choisissez un garage, un préau ou un carport attenant d’une surface de 15m², parfait pour stationner ou profiter des beaux jours.Informations du terrain : Terrain proche Niort au calme, école et commerces.Informations : Emeline Douhine au (Numéro supprimé).Prix incluant assurance dommages-ouvrage, VRD compris, terrain viabilisé, assainissement compris, frais de notaire compris, taxes non comprises, frais divers compris. Terrain sous réserve de disponibilité de notre partenaire foncier. Images non contractuelles.Cette annonce a été créée et diffusée avec le logiciel VITAHOME.
Vouillé
TERRAIN ET MAISONLa ligne EVOLUTION vous offre une maison plain-pied dès 71 m² habitables, pensée pour s’adapter à votre style de vie. Profitez d’une pièce de vie traversante à partir de 35m², baignée de lumière grâce à une grande baie vitrée, avec cuisine ouverte et cellier isolé pour plus de praticité. Ce modèle se compose de 2 chambres. À l’extérieur, choisissez un garage, un préau ou un carport attenant d’une surface de 15m², parfait pour stationner ou profiter des beaux jours.Informations du terrain : proche école et commerce, centre bourgInformations : Eric Souchet au (Numéro supprimé).Prix incluant assurance dommages-ouvrage, VRD compris, terrain viabilisé, assainissement compris, frais de notaire non compris, taxes non comprises, frais divers non compris. Terrain sous réserve de disponibilité de notre partenaire foncier. Images non contractuelles.Cette annonce a été créée et diffusée avec le logiciel VITAHOME.
Sainte-Néomaye
TERRAIN ET MAISONSpacieuse et lumineuse ! Cette maison en L à partir de 89 m2 habitable, vous offre une généreuse pièce de vie de 40 m2 avec cuisine ouverte sur salon et séjour, cellier isolé. Grande baie coulissante située sur l’arrière. Vous disposez de 3 chambres, dont une équipée avec un dressing ou une salle d’eau équipée avec douche et meuble vasque. Vous disposez également d’une salle de bain équipée avec meuble vasque, douche et/ou baignoire, sèche serviette. Garage attenant de 16 m2. Orientation cuisine salon séjour arrière. Carrelage grand format compris dans toute les pièces (hors chambres) et faïence au choix dans une large gamme disponible.Informations du terrain : Terrain proche écoles et commerce de proximité.Informations : Fabien Vaudois au (Numéro supprimé).Prix incluant assurance dommages-ouvrage, VRD compris, terrain viabilisé, assainissement compris, frais de notaire non compris, taxes non comprises, frais divers non compris. Terrain sous réserve de disponibilité de notre partenaire foncier. Images non contractuelles.Cette annonce a été créée et diffusée avec le logiciel VITAHOME.
Vouillé
TERRAIN ET MAISONMaison RDC de 65 m² habitables et 20m² de garage. Maison 2 chambres avec un séjour salon cuisine de 36m². Plan modulable. Maison basse consommation RE 2020, chauffage avec rafraichissement . Contactez nous pour plus d'informations.Informations : Fabien Vaudois au (Numéro supprimé).Prix incluant assurance dommages-ouvrage, VRD compris, terrain viabilisé, assainissement compris, frais de notaire non compris, taxes non comprises, frais divers non compris. Terrain sous réserve de disponibilité de notre partenaire foncier. Images non contractuelles.Cette annonce a été créée et diffusée avec le logiciel VITAHOME.
Vouillé
TERRAIN ET MAISONClassique et fonctionnelle ! Votre maison plain-pied à partir de 90 m2 habitable vous apporte une grande pièce de vie de 45 m2 avec cellier isolé, cuisine et coin repas attenant. Salon indépendant. 2 grandes baies coulissantes exposées sur la terrasse arrière vous offrent luminosité et confort. Vous disposez de 3 chambres dont une située sur la façade arrière. La salle de bain est aménagée avec meuble 2 vasques, une grande douche et une baignoire. Garage attenant de 16 m2. Orientation salon et pièce de vie principale exposées sur la terrasse à l’arrière. Carrelage grand format compris dans toute les pièces (hors chambres) et faïence au choix dans une large gamme disponible.Informations du terrain : proche école et commerce, centre bourgInformations : Eric Souchet au (Numéro supprimé).Prix incluant assurance dommages-ouvrage, VRD compris, terrain viabilisé, assainissement compris, frais de notaire non compris, taxes non comprises, frais divers non compris. Terrain sous réserve de disponibilité de notre partenaire foncier. Images non contractuelles.Cette annonce a été créée et diffusée avec le logiciel VITAHOME.
Vouillé
TERRAIN ET MAISONMaison RDC de 83 m² habitables et 15m² de garage. Maison 3 chambres avec un séjour salon cuisine de 35m². Plan modulable. Maison basse consommation RE 2020, chauffage plancher chauffant. Contactez nous pour plus d'informations.Informations : Fabien Vaudois au (Numéro supprimé).Prix incluant assurance dommages-ouvrage, VRD compris, terrain viabilisé, assainissement compris, frais de notaire non compris, taxes non comprises, frais divers non compris. Terrain sous réserve de disponibilité de notre partenaire foncier. Images non contractuelles.Cette annonce a été créée et diffusée avec le logiciel VITAHOME.
L’actualité immobilière à Aigondigné
27/11/2023
02/11/2023
30/10/2023
20/10/2023
16/10/2023
16/10/2023