Images
Description
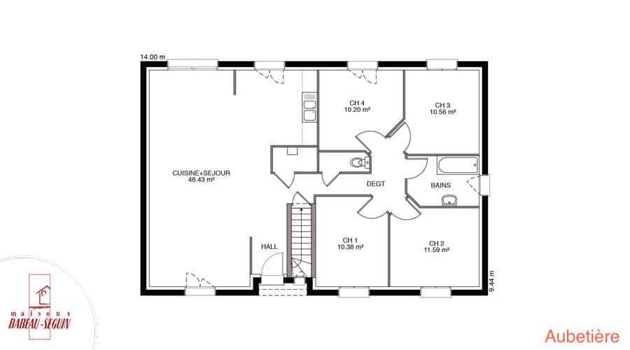
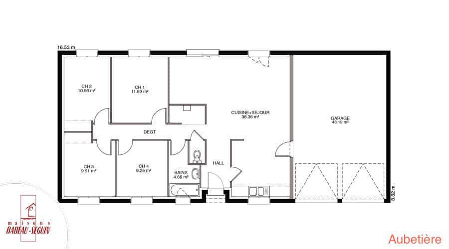
Sur ce terrain, nous vous proposons cette maison neuve Aubetière Sud, un modèle traditionnel plain-pied qui fait partie du top 3 des modèles préférés de nos clients. Avec une surface de 59 m², cette maison dispose d'une chambre et de deux pièces, offrant un espace de vie confortable et fonctionnel.
L'Aubetière Sud se distingue par son toit à faible pente et ses tuiles canal, disponibles en version 2 pans ou 4 pans. Vous avez également la possibilité de personnaliser votre maison avec un garage intégré ou un sous-sol, ainsi qu'un porche accueillant.
Cette maison neuve est basse consommation et conforme à la réglementation environnementale RE2020, garantissant des performances énergétiques optimales et un confort de vie sous le soleil.
Les options les plus demandées par nos clients, telles qu'une deuxième salle de bains, des menuiseries en aluminium, et un garage ou un sous-sol, sont disponibles pour personnaliser votre Aubetière Sud selon vos besoins et vos envies.
Faites confiance à Babeau-Seguin, constructeur offrant le meilleur rapport qualité/prix du marché, pour réaliser votre projet de vie. Découvrez l'Aubetière Sud, une maison traditionnelle appréciée pour son excellent rapport qualité/prix et son adaptabilité pour une maison sur-mesure.
Logement susceptibles de vous intéresser
Nous vous proposons de découvrir aussi cette sélection de logements situés à moins de 10km de Augé et qui seraient susceptibles de vous intéresser.
Sainte-Néomaye
TERRAIN ET MAISONLa ligne EVOLUTION vous offre une maison plain-pied dès 71 m² habitables, pensée pour s’adapter à votre style de vie. Profitez d’une pièce de vie traversante à partir de 35m², baignée de lumière grâce à une grande baie vitrée, avec cuisine ouverte et cellier isolé pour plus de praticité. Ce modèle se compose de 2 chambres. À l’extérieur, choisissez un garage, un préau ou un carport attenant d’une surface de 15m², parfait pour stationner ou profiter des beaux jours.Informations du terrain : Terrain proche écoles et commerce de proximité.Informations : Fabien Vaudois au (Numéro supprimé).Prix incluant assurance dommages-ouvrage, VRD compris, terrain viabilisé, assainissement compris, frais de notaire non compris, taxes non comprises, frais divers non compris. Terrain sous réserve de disponibilité de notre partenaire foncier. Images non contractuelles.Cette annonce a été créée et diffusée avec le logiciel VITAHOME.
Saint-Martin-de-Saint-Maixent
TERRAINIdéalement situé à 300 mètres de la mairie et de l'école.Prix : 32130 €.Informations : Fabien Vaudois au (Numéro supprimé).Sous réserve de disponibilité de notre partenaire foncier. Prix hors frais de notaire. Photos non contractuelles.Cette annonce a été créée et diffusée avec le logiciel VITAHOME.
Sainte-Néomaye
TERRAIN ET MAISONLumineuse ! Maison plain-pied 3 chambres dont une avec salle d’eau équipée avec une douche et un meuble vasque. Cette maison à partir de 87 m2 habitable vous procure une belle pièce de vie de 40 m2 orientée à l’avant. Cellier isolé attenant au garage de 16 m2. Grande cuisine ouverte sur la pièce de vie éclairée par une baie coulissante sur la façade. Vous accédez de votre cuisine sur une terrasse opposée au séjour. Orientation des chambres situées à l’arrière. Vous bénéficiez également d’une salle de bain équipée avec meuble vasque et baignoire. Carrelage grand format compris dans toute les pièces (hors chambres) et faïence au choix dans une large gamme disponible.Informations du terrain : Terrain proche écoles et commerce de proximité.Informations : Fabien Vaudois au (Numéro supprimé).Prix incluant assurance dommages-ouvrage, VRD compris, terrain viabilisé, assainissement compris, frais de notaire non compris, taxes non comprises, frais divers non compris. Terrain sous réserve de disponibilité de notre partenaire foncier. Images non contractuelles.Cette annonce a été créée et diffusée avec le logiciel VITAHOME.
Sainte-Néomaye
TERRAIN ET MAISONLa ligne EVOLUTION vous offre une maison plain-pied dès 79 m² habitables, pensée pour s’adapter à votre style de vie. Profitez d’une pièce de vie traversante à partir de 35m², baignée de lumière grâce à une grande baie vitrée, avec cuisine ouverte et cellier isolé pour plus de praticité. Ce modèle se compose de 3 chambres. À l’extérieur, choisissez un garage, un préau ou un carport attenant d’une surface de 15m², parfait pour stationner ou profiter des beaux jours.Informations du terrain : Terrain proche Niort au calme, école et commerces.Informations : Emeline Douhine au (Numéro supprimé).Prix incluant assurance dommages-ouvrage, VRD compris, terrain viabilisé, assainissement compris, frais de notaire compris, taxes non comprises, frais divers compris. Terrain sous réserve de disponibilité de notre partenaire foncier. Images non contractuelles.Cette annonce a été créée et diffusée avec le logiciel VITAHOME.
Saint-Martin-de-Saint-Maixent
TERRAIN ET MAISONModulable à souhaits ! Votre maison plain-pied, 3 chambres, dont une équipée avec un dressing, et une salle d’eau équipée avec douche et meuble vasque. Disponible à partir de 89 m2 habitable. Porche d’entrée sur la façade avant. Belle pièce de vie de 40 m2 avec cuisine ouverte orientée sur la façade arrière, cellier isolé. Grande baie coulissante donnant sur la terrasse arrière. Vous disposez également d’une salle de bain équipée avec meuble vasque, et douche. Garage attenant de 17 m2. Orientation salon séjour traversant. Carrelage grand format compris dans toutes les pièces (hors chambres) et faïence au choix dans une large gamme disponible.Informations du terrain : Idéalement situé à 300 mètres de la mairie et de l'école.Informations : Fabien Vaudois au (Numéro supprimé).Prix incluant assurance dommages-ouvrage, VRD compris, terrain viabilisé, assainissement compris, frais de notaire non compris, taxes non comprises, frais divers non compris. Terrain sous réserve de disponibilité de notre partenaire foncier. Images non contractuelles.Cette annonce a été créée et diffusée avec le logiciel VITAHOME.
Saivres
TERRAIN ET MAISONLa ligne EVOLUTION vous offre une maison plain-pied dès 93 m² habitables, pensée pour s’adapter à votre style de vie. Profitez d’une pièce de vie traversante à partir de 35m², baignée de lumière grâce à une grande baie vitrée, avec cuisine ouverte et cellier isolé pour plus de praticité. Ce modèle se compose de 4 chambres dont une suite parentale offrant confort et intimité. À l’extérieur, choisissez un garage, un préau ou un carport attenant d’une surface de 15m², parfait pour stationner ou profiter des beaux jours.Informations du terrain : Ce terrain est à moins de 200 mètres de la mairie, et des commerces à 6 minutes en voiture du centre-ville (15 min de la gare) de Saint-Maixent.· à 25 kms Niort 5 (30 min)· à 3,5 kms de Saint-Maixent l’École (6 min)· à 22 kms de l’Autoroute A10 et A83· à 5 kms de la gare TGV et TER de Saint-Maixent l’École (10 min)Informations : Fabien Vaudois au (Numéro supprimé).Prix incluant assurance dommages-ouvrage, VRD compris, terrain viabilisé, assainissement compris, frais de notaire non compris, taxes non comprises, frais divers non compris. Terrain sous réserve de disponibilité de notre partenaire foncier. Images non contractuelles.Cette annonce a été créée et diffusée avec le logiciel VITAHOME.
Sainte-Néomaye
TERRAIN ET MAISONSpacieuse et lumineuse ! Cette maison en L à partir de 89 m2 habitable, vous offre une généreuse pièce de vie de 40 m2 avec cuisine ouverte sur salon et séjour, cellier isolé. Grande baie coulissante située sur l’arrière. Vous disposez de 3 chambres, dont une équipée avec un dressing ou une salle d’eau équipée avec douche et meuble vasque. Vous disposez également d’une salle de bain équipée avec meuble vasque, douche et/ou baignoire, sèche serviette. Garage attenant de 16 m2. Orientation cuisine salon séjour arrière. Carrelage grand format compris dans toute les pièces (hors chambres) et faïence au choix dans une large gamme disponible.Informations du terrain : Terrain proche écoles et commerce de proximité.Informations : Fabien Vaudois au (Numéro supprimé).Prix incluant assurance dommages-ouvrage, VRD compris, terrain viabilisé, assainissement compris, frais de notaire non compris, taxes non comprises, frais divers non compris. Terrain sous réserve de disponibilité de notre partenaire foncier. Images non contractuelles.Cette annonce a été créée et diffusée avec le logiciel VITAHOME.
Saivres
TERRAINCe terrain est à moins de 200 mètres de la mairie, et des commerces à 6 minutes en voiture du centre-ville (15 min de la gare) de Saint-Maixent.· à 25 kms Niort 5 (30 min)· à 3,5 kms de Saint-Maixent l’École (6 min)· à 22 kms de l’Autoroute A10 et A83· à 5 kms de la gare TGV et TER de Saint-Maixent l’École (10 min)Prix : 18720 €.Informations : Fabien Vaudois au (Numéro supprimé).Sous réserve de disponibilité de notre partenaire foncier. Prix hors frais de notaire. Photos non contractuelles.Cette annonce a été créée et diffusée avec le logiciel VITAHOME.
Saint-Christophe-sur-Roc
TERRAINTerrain proche de l'école et du centre de la commune.Prix : 24102.13 €.Informations : Fabien Vaudois au (Numéro supprimé).Sous réserve de disponibilité de notre partenaire foncier. Prix hors frais de notaire. Photos non contractuelles.Cette annonce a été créée et diffusée avec le logiciel VITAHOME.
L’actualité immobilière à Augé
27/11/2023
02/11/2023
30/10/2023
20/10/2023
16/10/2023
16/10/2023