Images
Description
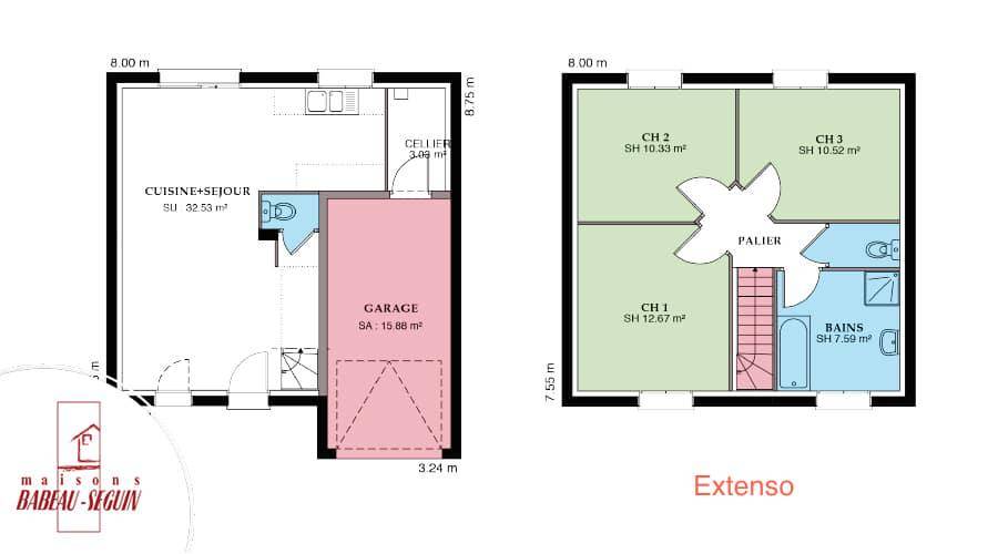
**Sur ce terrain, nous vous proposons cette maison neuve : Extenso Sud GI**
Cette maison traditionnelle à étage est le parfait compromis entre une bastide traditionnelle du sud et une maison citadine aux lignes modernes. Notre modèle Extenso Sud GI dispose d'un niveau d'équipement impressionnant pour un prix cassé ! Elle est par ailleurs parfaitement adaptée aux terrains étroits grâce à sa faible largeur de façade.
Avec une surface de 79 m², cette maison neuve basse consommation, conforme à la RE2020, vous offre tout le confort d’une grande maison dans un espace compact et parfaitement optimisé. Vous retrouverez dans cette maison 3 chambres, un vaste séjour, une salle de bain, 2 WC, un cellier, et un garage intégré.
Les caractéristiques principales de cette maison incluent :
- Charpente fermette
- Garage intégré
- Dalle étage béton
A la fois moderne et confortable, cette maison pas chère affiche l'un des tarifs les plus bas du catalogue Babeau-Seguin, constructeur offrant le meilleur rapport qualité/prix du marché. L'Extenso Sud GI est une maison familiale 100% personnalisable extrêmement complète.
Ne manquez pas cette opportunité unique d'acquérir une maison neuve, basse consommation et parfaitement adaptée à vos besoins. Contactez-nous dès maintenant pour plus d'informations !
Logement susceptibles de vous intéresser
Nous vous proposons de découvrir aussi cette sélection de logements situés à moins de 10km de Chauray et qui seraient susceptibles de vous intéresser.
Sainte-Néomaye
TERRAIN ET MAISONLa ligne EVOLUTION vous offre une maison plain-pied dès 71 m² habitables, pensée pour s’adapter à votre style de vie. Profitez d’une pièce de vie traversante à partir de 35m², baignée de lumière grâce à une grande baie vitrée, avec cuisine ouverte et cellier isolé pour plus de praticité. Ce modèle se compose de 2 chambres. À l’extérieur, choisissez un garage, un préau ou un carport attenant d’une surface de 15m², parfait pour stationner ou profiter des beaux jours.Informations du terrain : Terrain proche écoles et commerce de proximité.Informations : Fabien Vaudois au (Numéro supprimé).Prix incluant assurance dommages-ouvrage, VRD compris, terrain viabilisé, assainissement compris, frais de notaire non compris, taxes non comprises, frais divers non compris. Terrain sous réserve de disponibilité de notre partenaire foncier. Images non contractuelles.Cette annonce a été créée et diffusée avec le logiciel VITAHOME.
Sainte-Néomaye
TERRAIN ET MAISONLumineuse ! Maison plain-pied 3 chambres dont une avec salle d’eau équipée avec une douche et un meuble vasque. Cette maison à partir de 87 m2 habitable vous procure une belle pièce de vie de 40 m2 orientée à l’avant. Cellier isolé attenant au garage de 16 m2. Grande cuisine ouverte sur la pièce de vie éclairée par une baie coulissante sur la façade. Vous accédez de votre cuisine sur une terrasse opposée au séjour. Orientation des chambres situées à l’arrière. Vous bénéficiez également d’une salle de bain équipée avec meuble vasque et baignoire. Carrelage grand format compris dans toute les pièces (hors chambres) et faïence au choix dans une large gamme disponible.Informations du terrain : Terrain proche écoles et commerce de proximité.Informations : Fabien Vaudois au (Numéro supprimé).Prix incluant assurance dommages-ouvrage, VRD compris, terrain viabilisé, assainissement compris, frais de notaire non compris, taxes non comprises, frais divers non compris. Terrain sous réserve de disponibilité de notre partenaire foncier. Images non contractuelles.Cette annonce a été créée et diffusée avec le logiciel VITAHOME.
Vouillé
TERRAINproche école et commerce, centre bourgPrix : 51990 €.Informations : Eric Souchet au (Numéro supprimé).Sous réserve de disponibilité de notre partenaire foncier. Prix hors frais de notaire. Photos non contractuelles.Cette annonce a été créée et diffusée avec le logiciel VITAHOME.
Sainte-Néomaye
TERRAIN ET MAISONLa ligne EVOLUTION vous offre une maison plain-pied dès 79 m² habitables, pensée pour s’adapter à votre style de vie. Profitez d’une pièce de vie traversante à partir de 35m², baignée de lumière grâce à une grande baie vitrée, avec cuisine ouverte et cellier isolé pour plus de praticité. Ce modèle se compose de 3 chambres. À l’extérieur, choisissez un garage, un préau ou un carport attenant d’une surface de 15m², parfait pour stationner ou profiter des beaux jours.Informations du terrain : Terrain proche Niort au calme, école et commerces.Informations : Emeline Douhine au (Numéro supprimé).Prix incluant assurance dommages-ouvrage, VRD compris, terrain viabilisé, assainissement compris, frais de notaire compris, taxes non comprises, frais divers compris. Terrain sous réserve de disponibilité de notre partenaire foncier. Images non contractuelles.Cette annonce a été créée et diffusée avec le logiciel VITAHOME.
Saint-Maxire
TERRAIN ET MAISONLa ligne EVOLUTION vous offre une maison plain-pied dès 79 m² habitables, pensée pour s’adapter à votre style de vie. Profitez d’une pièce de vie traversante à partir de 35m², baignée de lumière grâce à une grande baie vitrée, avec cuisine ouverte et cellier isolé pour plus de praticité. Ce modèle se compose de 3 chambres. À l’extérieur, choisissez un garage, un préau ou un carport attenant d’une surface de 15m², parfait pour stationner ou profiter des beaux jours.Informations du terrain : Terrain situé à 15 mn de NiortInformations : Fabien Vaudois au (Numéro supprimé).Prix incluant assurance dommages-ouvrage, VRD compris, terrain viabilisé, assainissement compris, frais de notaire compris, taxes non comprises, frais divers compris. Terrain sous réserve de disponibilité de notre partenaire foncier. Images non contractuelles.Cette annonce a été créée et diffusée avec le logiciel VITAHOME.
Vouillé
TERRAIN ET MAISONLa ligne EVOLUTION vous offre une maison plain-pied dès 71 m² habitables, pensée pour s’adapter à votre style de vie. Profitez d’une pièce de vie traversante à partir de 35m², baignée de lumière grâce à une grande baie vitrée, avec cuisine ouverte et cellier isolé pour plus de praticité. Ce modèle se compose de 2 chambres. À l’extérieur, choisissez un garage, un préau ou un carport attenant d’une surface de 15m², parfait pour stationner ou profiter des beaux jours.Informations du terrain : proche école et commerce, centre bourgInformations : Eric Souchet au (Numéro supprimé).Prix incluant assurance dommages-ouvrage, VRD compris, terrain viabilisé, assainissement compris, frais de notaire non compris, taxes non comprises, frais divers non compris. Terrain sous réserve de disponibilité de notre partenaire foncier. Images non contractuelles.Cette annonce a été créée et diffusée avec le logiciel VITAHOME.
Saint-Maxire
TERRAIN ET MAISONSpacieuse et lumineuse ! Cette maison en L à partir de 89 m2 habitable, vous offre une généreuse pièce de vie de 40 m2 avec cuisine ouverte sur salon et séjour, cellier isolé. Grande baie coulissante située sur l’arrière. Vous disposez de 3 chambres, dont une équipée avec un dressing ou une salle d’eau équipée avec douche et meuble vasque. Vous disposez également d’une salle de bain équipée avec meuble vasque, douche et/ou baignoire, sèche serviette. Garage attenant de 16 m2. Orientation cuisine salon séjour arrière. Carrelage grand format compris dans toute les pièces (hors chambres) et faïence au choix dans une large gamme disponible.Informations du terrain : Terrain situé à 15 mn de NiortInformations : Fabien Vaudois au (Numéro supprimé).Prix incluant assurance dommages-ouvrage, VRD compris, terrain viabilisé, assainissement compris, frais de notaire compris, taxes non comprises, frais divers compris. Terrain sous réserve de disponibilité de notre partenaire foncier. Images non contractuelles.Cette annonce a été créée et diffusée avec le logiciel VITAHOME.
Sainte-Néomaye
TERRAIN ET MAISONSpacieuse et lumineuse ! Cette maison en L à partir de 89 m2 habitable, vous offre une généreuse pièce de vie de 40 m2 avec cuisine ouverte sur salon et séjour, cellier isolé. Grande baie coulissante située sur l’arrière. Vous disposez de 3 chambres, dont une équipée avec un dressing ou une salle d’eau équipée avec douche et meuble vasque. Vous disposez également d’une salle de bain équipée avec meuble vasque, douche et/ou baignoire, sèche serviette. Garage attenant de 16 m2. Orientation cuisine salon séjour arrière. Carrelage grand format compris dans toute les pièces (hors chambres) et faïence au choix dans une large gamme disponible.Informations du terrain : Terrain proche écoles et commerce de proximité.Informations : Fabien Vaudois au (Numéro supprimé).Prix incluant assurance dommages-ouvrage, VRD compris, terrain viabilisé, assainissement compris, frais de notaire non compris, taxes non comprises, frais divers non compris. Terrain sous réserve de disponibilité de notre partenaire foncier. Images non contractuelles.Cette annonce a été créée et diffusée avec le logiciel VITAHOME.
Saint-Maxire
TERRAIN ET MAISONClassique et fonctionnelle ! Votre maison plain-pied à partir de 95 m2 habitable vous apporte une grande pièce de vie de 45 m2 avec cellier isolé, cuisine et coin repas attenant. Salon indépendant. 2 grandes baies coulissantes exposées sur la terrasse arrière vous offrent luminosité et confort. Vous disposez de 3 chambres dont une située sur la façade arrière, équipée avec un dressing, et une salle d’eau équipée d’un meuble vasque et une douche. La salle de bain est aménagée avec meuble 1 vasque, une grande douche et/ou une baignoire. Garage attenant de 16 m2. Orientation salon et pièce de vie principale exposées sur la terrasse à l’arrière. Carrelage grand format compris dans toute les pièces (hors chambres) et faïence au choix dans une large gamme disponible.Informations du terrain : Construisez votre Maison du Marais sur ce Superbe terrain de 640 M² avec jolie vue côté Sud et Est sur terrain boisé situé dans un quartier calme. Belle largeur de façade.Commune dynamique à 15 Mn de Niort Mendes France et de la zone de la Mude.Informations : Emeline Douhine au (Numéro supprimé).Prix incluant assurance dommages-ouvrage, VRD compris, terrain viabilisé, assainissement compris, frais de notaire compris, taxes non comprises, frais divers compris. Terrain sous réserve de disponibilité de notre partenaire foncier. Images non contractuelles.Cette annonce a été créée et diffusée avec le logiciel VITAHOME.
L’actualité immobilière à Chauray
27/11/2023
02/11/2023
30/10/2023
20/10/2023
16/10/2023
16/10/2023