Images
Description
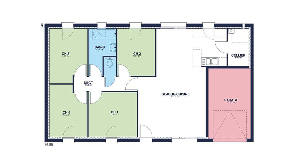
Sur ce terrain, nous vous proposons cette maison neuve : la Focus Family Sud. Conçue par Babeau-Seguin, constructeur reconnu pour offrir le meilleur rapport qualité/prix du marché, cette maison de 89 m² est idéale pour les familles à la recherche d'un logement moderne et économique.
Vous avez un budget serré et rêvez d’une maison au style urbain et contemporain ? La Focus Family Sud est faite pour vous. Cette maison compacte et élégante dispose de 4 chambres et de 4 pièces, offrant un espace de vie optimisé pour votre confort. Le garage intégré de près de 15 m², l'enduit bi-ton et les tuiles Canal ajoutent une touche de charme et de fonctionnalité à cette habitation.
Les options les plus demandées par nos clients, telles que les menuiseries en aluminium, sont disponibles pour personnaliser votre maison selon vos goûts. De plus, cette maison neuve est basse consommation et conforme à la réglementation environnementale RE2020, garantissant des économies d'énergie et un respect de l'environnement.
Ne manquez pas cette opportunité de construire une maison accessible à tous les budgets sans faire l’impasse sur les équipements. Avec ses 4 chambres, un cellier, un large séjour et un garage, la Focus Family Sud n’a rien à envier aux autres modèles de la gamme Babeau-Seguin. Profitez d'une habitation qui allie petit prix et grande prestation.
Logement susceptibles de vous intéresser
Nous vous proposons de découvrir aussi cette sélection de logements situés à moins de 10km de Chenay et qui seraient susceptibles de vous intéresser.
Chenay
TERRAINDécouvrez ce terrain à vendre dans un cadre enchanteur, situé au sein du lotissement de Chenay, dans le département des Deux-Sèvres (79120). Avec une surface généreuse de 1 023 m², ce terrain viabilisé est paré pour accueillir votre projet de construction de maison. Son exposition ensoleillée et son atmosphère calme en font un lieu de vie idéal, magnifiquement intégré à la nature. Ne laissez pas passer cette offre exceptionnelle, à saisir absolument ! Chenay, charmante ville en Nouvelle-Aquitaine, offre un cadre de vie privilégié grâce à sa proximité avec diverses attractions locales. Profitez de la tranquillité des campagnes environnantes tout en restant proche des commodités essentielles telles que commerces, écoles et services sanitaires. Avec son ambiance paisible et ses paysages pittoresques, cette région est idéale pour les familles et les amoureux de la nature. N’attendez plus pour explorer le potentiel de ce terrain dans un environnement charmant et accueillant. Ce terrain représente une opportunité unique pour concrétiser votre rêve immobilier. N’hésitez pas à envisager cet investissement prometteur ! À noter qu’en tant que constructeur, nous ne sommes pas mandatés pour réaliser la vente de ce terrain.
Chenay
TERRAIN ET MAISONSur ce terrain, nous vous proposons cette maison neuve, la Provencière, conçue par Babeau-Seguin, constructeur offrant le meilleur rapport qualité/prix du marché. Inspirée par le charme de la Provence, cette maison de 134 m² allie élégance et fonctionnalité.La Provencière se distingue par son architecture typiquement provençale avec sa tour et son plan en L. Elle est disponible avec une toiture à 2 pans ou 4 pans, selon vos préférences. La maison comprend 4 chambres spacieuses et 4 pièces, offrant un espace de vie confortable et bien agencé.Les caractéristiques principales de cette maison incluent une dalle étage en béton, une avancée en tour et une galerie, ajoutant une touche de prestige et de charme à l’ensemble. Les options les plus demandées par nos clients, telles que l’enduit bi-ton et les menuiseries en aluminium, sont également disponibles pour personnaliser votre maison selon vos goûts.Cette maison neuve est basse consommation et conforme à la réglementation environnementale RE2020, garantissant une performance énergétique optimale et un respect de l’environnement.Prestigieuse et attachante, cette maison du sud vous fera sans doute craquer ! Idéale pour les terrains étroits, la Provencière conserve tous les avantages de la gamme, offrant un espace de vie harmonieux et fonctionnel.Ne manquez pas cette opportunité unique de devenir propriétaire d’une maison alliant tradition provençale et modernité, avec le meilleur rapport qualité/prix du marché. Contactez-nous dès aujourd’hui pour plus d’informations et pour planifier une visite.
Chenay
TERRAIN ET MAISONSur ce terrain, nous vous proposons cette maison neuve Aubetière Sud, un modèle traditionnel plain-pied qui fait partie du top 3 des modèles préférés de nos clients. Avec une surface de 88 m², cette maison est idéale pour les familles grâce à ses 3 chambres spacieuses et sa pièce de vie lumineuse.L’Aubetière Sud se distingue par son toit à faible pente et ses tuiles canal, offrant un charme authentique et une intégration parfaite sous le soleil. Vous avez le choix entre un toit à 2 pans ou à 4 pans, selon vos préférences esthétiques et pratiques.Cette maison est également personnalisable avec des options très demandées par nos clients, telles qu’une deuxième salle de bains, des menuiseries en aluminium, et un garage ou un sous-sol. Le porche accueillant ajoute une touche supplémentaire de convivialité à l’entrée de votre future maison.En choisissant l’Aubetière Sud, vous optez pour une maison neuve basse consommation, conforme à la réglementation environnementale RE2020, garantissant ainsi des performances énergétiques optimales et un confort de vie inégalé.Le constructeur Babeau-Seguin, reconnu pour offrir le meilleur rapport qualité/prix du marché, vous accompagne dans la réalisation de votre projet sur-mesure. Personnalisez le plan de votre Aubetière Sud pour qu’il réponde parfaitement à vos besoins et à vos envies.Ne manquez pas cette opportunité de construire la maison de vos rêves avec Babeau-Seguin, et profitez d’un cadre de vie agréable et économe en énergie. Contactez-nous dès maintenant pour plus d’informations et pour découvrir toutes les possibilités de personnalisation de l’Aubetière Sud.
Chenay
TERRAINNous vous présentons un terrain d’exception situé dans le charmant lotissement de Chenay, une localité paisible et ensoleillée du département des Deux-Sèvres en Nouvelle-Aquitaine. Ce terrain de 1022 m², entièrement viabilisé, présente l’opportunité parfaite pour concrétiser votre projet de construction de maison. Sa situation au calme et son caractère attractif en font une parcelle convoitée que vous ne devez pas laisser passer. Chenay se distingue par son ambiance tranquille et conviviale, tout en offrant un accès facile aux commodités nécessaires à un cadre de vie agréable. La ville est entourée de paysages pittoresques et propose diverses attractions locales qui raviront les amoureux de la nature et des activités de pleine air. Avec ses services de proximité, ses commerces et son environnement convivial, Chenay représente un cadre idéal pour s’installer et profiter pleinement de la vie familiale. Ne manquez pas cette occasion unique d’acquérir un terrain au potentiel exceptionnel. Nous vous invitons à envisager cette propriété pour concrétiser vos rêves de construction. À noter qu’en tant que constructeur, nous ne sommes pas mandatés pour réaliser la vente de ce terrain.
Lezay
TERRAINÀ vendre : terrain viabilisé de 656 m² situé dans le charmant lotissement de Lezay, au cœur des Deux-Sèvres et en pleine région Nouvelle-Aquitaine. Ce terrain ensoleillé et au calme représente l’endroit idéal pour concrétiser votre projet de construction de maison. Avec un Plan Local d’Urbanisme non contraignant, vous bénéficierez d’une grande liberté dans la réalisation de votre futur habitat, que ce soit pour y vivre ou pour investir. Lezay est une ville qui allie tranquillité et dynamisme, offrant un cadre de vie agréable entre nature et commodités. À proximité, vous trouverez des commerces, des écoles et des services de santé, ainsi que des activités culturelles et de loisirs qui raviront toute la famille. Les charmants paysages de la Nouvelle-Aquitaine, combinés à la douceur de vivre de cette région, font de ce terrain une véritable pépite. Ne manquez pas l’opportunité d’acquérir ce beau terrain, idéalement situé pour réaliser vos rêves immobiliers. Investissez dans cet espace remarquable et envisagez votre futur dans ce cadre enchanteur, propice à l’épanouissement personnel et familial. À noter qu’en tant que constructeur, nous ne sommes pas mandatés pour réaliser la vente de ce terrain.
Pamproux
TERRAINNous vous proposons une opportunité exceptionnelle avec ce terrain à vendre, d’une surface généreuse de 1023 m², idéalement situé dans la charmante commune de Pamproux, dans le département des Deux-Sèvres en Nouvelle-Aquitaine. Ce terrain, ensoleillé et au calme, est parfait pour le projet de construction de votre future maison. Profitez d’un cadre de vie paisible tout en ayant la possibilité de créer un espace qui vous ressemble. Pamproux est une ville dynamique qui allie tranquillité de la vie à la campagne et proximité avec les commodités modernes. Localisée à quelques minutes de grandes villes et entourée de paysages pittoresques, cette commune dispose de toutes les infrastructures nécessaires : commerces, écoles, et activités de loisirs. Les amateurs de nature seront ravis de découvrir les diverses possibilités de randonnées et d’activités en plein air dans les environs. Ce terrain représente une belle occasion d’investir dans un cadre de vie agréable, à quelques pas des plus belles attractions de la région. Ne manquez pas cette opportunité unique d’acquérir un terrain au potentiel exceptionnel qui saura répondre à vos aspirations. Prenez contact avec nous pour en savoir plus ! À noter qu’en tant que constructeur, nous ne sommes pas mandatés pour réaliser la vente de ce terrain.
Pamproux
TERRAIN ET MAISONSur ce terrain, nous vous proposons cette maison neuve, la Provencière, conçue par Babeau-Seguin, constructeur offrant le meilleur rapport qualité/prix du marché. Inspirée par le charme de la Provence, cette maison de 134 m² allie élégance et fonctionnalité.La Provencière se distingue par son architecture typiquement provençale avec sa tour et son plan en L. Elle est disponible avec une toiture à 2 pans ou 4 pans, selon vos préférences. La maison comprend 4 chambres spacieuses et 4 pièces, offrant un espace de vie confortable et bien agencé.Les caractéristiques principales de cette maison incluent une dalle étage en béton, une avancée en tour et une galerie, ajoutant une touche de prestige et de charme à l’ensemble. Les options les plus demandées par nos clients, telles que l’enduit bi-ton et les menuiseries en aluminium, sont également disponibles pour personnaliser votre maison selon vos goûts.Cette maison neuve est basse consommation et conforme à la réglementation environnementale RE2020, garantissant une performance énergétique optimale et un respect de l’environnement.Prestigieuse et attachante, cette maison du sud vous fera sans doute craquer ! Idéale pour les terrains étroits, la Provencière conserve tous les avantages de la gamme, offrant un espace de vie harmonieux et fonctionnel.Ne manquez pas cette opportunité unique de devenir propriétaire d’une maison alliant tradition provençale et modernité, avec le meilleur rapport qualité/prix du marché. Contactez-nous dès aujourd’hui pour plus d’informations et pour planifier une visite.
Chenay
TERRAIN0Découvrez ce terrain exceptionnel de 1704 m², parfaitement viabilisé et idéalement situé dans la charmante commune de Chenay, au cœur des Deux-Sèvres en Nouvelle-Aquitaine. Ce lotissement offre une belle opportunité pour réaliser votre projet de construction de maison, dans un environnement calme et ensoleillé. Les caractéristiques uniques de ce terrain, telles que la possibilité de division parcellaire et un PLU non contraignant, en font un choix judicieux pour les acheteurs visionnaires. Chenay est une commune dynamique qui allie tranquillité et accessibilité. Située à proximité de services essentiels, d’écoles et d’activités locales, elle garantit un cadre de vie agréable pour toute votre famille. Profitez de ses attractions locales, telles que des parcs verdoyants et des espaces de loisirs, tout en étant à quelques minutes des grandes villes environnantes. Cet emplacement stratégique vous permettra de bénéficier de toutes les commodités nécessaires au quotidien, tout en jouissant d’un cadre de vie paisible et accueillant. Ne laissez pas passer cette opportunité unique d’acquérir un terrain au potentiel illimité. N’attendez plus pour envisager votre future maison dans ce cadre idyllique. À noter qu’en tant que constructeur, nous ne sommes pas mandatés pour réaliser la vente de ce terrain.
Lezay
TERRAINÀ vendre : terrain viabilisé de 563 m², situé dans un lotissement paisible à Lezay, dans le département des Deux-Sèvres. Ce terrain unique offre une opportunité parfaite pour votre projet de construction de maison, dans un environnement ensoleillé et calme. Profitez d’un cadre de vie agréable, propice à l’épanouissement familial, tout en bénéficiant d’un prix exceptionnel et d’un PLU non contraignant. Lezay, charmante commune de la région Nouvelle-Aquitaine, vous séduira par ses nombreux atouts. À proximité, vous trouverez des services variés, allant des commerces locaux aux écoles, facilitant ainsi votre quotidien. La nature environnante offre de belles possibilités d’activités de plein air, et la ville est bien desservie par les axes routiers, assurant un accès simple aux villes voisines. Ne manquez pas cette chance de vous installer dans un lieu alliant tranquillité et commodités. Ce terrain représente un potentiel exceptionnel pour concrétiser vos rêves de construction. N’hésitez pas à envisager cette opportunité d’achat unique qui pourrait transformer votre projet de vie. À noter qu’en tant que constructeur, nous ne sommes pas mandatés pour réaliser la vente de ce terrain.
L’actualité immobilière à Chenay
27/11/2023
02/11/2023
30/10/2023
20/10/2023
16/10/2023
16/10/2023