Images
Description
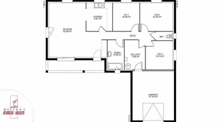
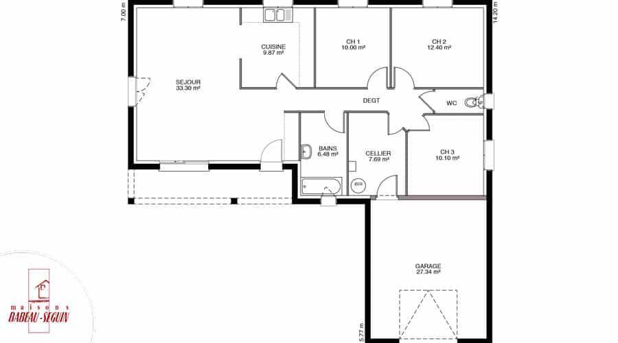
Sur ce terrain, nous vous proposons cette maison neuve : la Sauvetière sud. Avec ses allures de maison moderne et son plan en L, cette maison de 80 m² vous séduira à coup sûr. Conçue par Babeau-Seguin, constructeur offrant le meilleur rapport qualité/prix du marché, cette maison de plain-pied économique est idéale pour les familles à la recherche de confort et de modernité.
La Sauvetière sud dispose de 3 pièces, dont un grand séjour lumineux et 2 chambres spacieuses. Son architecture en L intègre un garage accolé, offrant un accès direct à la maison. Vous aurez le choix entre une toiture à 2 pans ou 4 pans, recouverte de tuiles Canal, pour une esthétique traditionnelle et élégante.
Les options les plus demandées par nos clients sont également disponibles pour cette maison : volets roulants motorisés, domotique et menuiseries en aluminium. Ces équipements modernes vous offriront un confort de vie optimal et une gestion simplifiée de votre habitat.
Cette maison neuve est basse consommation et conforme à la réglementation environnementale RE2020, garantissant des performances énergétiques optimales et un impact environnemental réduit.
A découvrir rapidement !
Logement susceptibles de vous intéresser
Nous vous proposons de découvrir aussi cette sélection de logements situés à moins de 10km de Échiré et qui seraient susceptibles de vous intéresser.
Sainte-Ouenne
TERRAIN79220 STE OUENNE, Aline Nicole vous propose un terrain constructible de 964 m², hors lotissement, libre de constructeur.Non viabilisé. Etude de sol réalisée.Prévoir assainissement individuel.BEAU TERRAIN PLAT ARBORE, AU CALME.Dans un village avec école, à 20 min de Niort, 10 min de Champdeniers (tous commerces) et 12 min de l’autoroute A83.Budget : 25.000 euros honoraires d’agence inclus de 3.990 euros à la charge des acquéreurs, soit 21.010 euros hors honoraires.Agréé FNAIM, Mandat réf : 422139 – Le professionnel garantit et sécurise votre projet immobilier.Pour visiter et vous accompagner dans votre projet, contactez Aline NICOLE, au (Numéro supprimé) ou par courriel à (Email supprimé).Selon l’article L.561.5 du Code Monétaire et Financier, pour l’organisation de la visite, la présentation d’une pièce d’identité vous sera demandée.Cette présente annonce a été rédigée sous la responsabilité éditoriale de Aline NICOLE agissant en qualité de conseiller immobilier indépendant sous portage salarial auprès de SAS PROPRIETES PRIVEES, au capital de 44 920 euros, ZAC LE CHÊNE FERRÉ – 44 ALLÉE DES CINQ CONTINENTS 44120 VERTOU ; SIRET 487 624 777 00040, RCS Nantes. Carte Professionnelle Transactions sur immeubles et fonds de commerce (T) et Gestion immobilière (G) n°CPI 4401 2016 000 010 388 délivrée par la CCI Nantes – Saint Nazaire. Compte séquestre n(Numéro supprimé)67 BPA SAINT-SEBASTIEN-SUR-LOIRE (44230). Garantie GALIAN-SMABTP – 89 rue de la Boétie, 75008 Paris – n°28137 J pour 2 000 000 euros pour T et 120 000 euros pour G. Assurance responsabilité civile professionnelle par GALIAN-SMABTP n° de police 28137.J (18.99 % honoraires TTC à la charge de l’acquéreur.)
Surin
TERRAIN ET MAISONClassique et fonctionnelle ! Votre maison plain-pied à partir de 90 m2 habitable vous apporte une grande pièce de vie de 45 m2 avec cellier isolé, cuisine et coin repas attenant. Salon indépendant. 2 grandes baies coulissantes exposées sur la terrasse arrière vous offrent luminosité et confort. Vous disposez de 3 chambres dont une située sur la façade arrière. La salle de bain est aménagée avec meuble 2 vasques, une grande douche et une baignoire. Garage attenant de 16 m2. Orientation salon et pièce de vie principale exposées sur la terrasse à l’arrière. Carrelage grand format compris dans toute les pièces (hors chambres) et faïence au choix dans une large gamme disponible.Informations du terrain : Le terrain est situé dans le village de Surin dans le département des Deux-Sèvres . Le village de Surin appartient à l'arrondissement de Niort et au canton de Champdeniers-Saint-Denis. Le terrain est situé à 25mn de Niort et à 30mn de Parthenay.Informations : Fabien Vaudois au (Numéro supprimé).Prix incluant assurance dommages-ouvrage, VRD compris, terrain viabilisé, assainissement compris, frais de notaire compris, taxes non comprises, frais divers compris. Terrain sous réserve de disponibilité de notre partenaire foncier. Images non contractuelles.Cette annonce a été créée et diffusée avec le logiciel VITAHOME.
Saint-Maxire
TERRAIN ET MAISONLa ligne EVOLUTION vous offre une maison plain-pied dès 79 m² habitables, pensée pour s’adapter à votre style de vie. Profitez d’une pièce de vie traversante à partir de 35m², baignée de lumière grâce à une grande baie vitrée, avec cuisine ouverte et cellier isolé pour plus de praticité. Ce modèle se compose de 3 chambres. À l’extérieur, choisissez un garage, un préau ou un carport attenant d’une surface de 15m², parfait pour stationner ou profiter des beaux jours.Informations du terrain : Terrain situé à 15 mn de NiortInformations : Fabien Vaudois au (Numéro supprimé).Prix incluant assurance dommages-ouvrage, VRD compris, terrain viabilisé, assainissement compris, frais de notaire compris, taxes non comprises, frais divers compris. Terrain sous réserve de disponibilité de notre partenaire foncier. Images non contractuelles.Cette annonce a été créée et diffusée avec le logiciel VITAHOME.
Saint-Maxire
TERRAIN ET MAISONSpacieuse et lumineuse ! Cette maison en L à partir de 89 m2 habitable, vous offre une généreuse pièce de vie de 40 m2 avec cuisine ouverte sur salon et séjour, cellier isolé. Grande baie coulissante située sur l’arrière. Vous disposez de 3 chambres, dont une équipée avec un dressing ou une salle d’eau équipée avec douche et meuble vasque. Vous disposez également d’une salle de bain équipée avec meuble vasque, douche et/ou baignoire, sèche serviette. Garage attenant de 16 m2. Orientation cuisine salon séjour arrière. Carrelage grand format compris dans toute les pièces (hors chambres) et faïence au choix dans une large gamme disponible.Informations du terrain : Terrain situé à 15 mn de NiortInformations : Fabien Vaudois au (Numéro supprimé).Prix incluant assurance dommages-ouvrage, VRD compris, terrain viabilisé, assainissement compris, frais de notaire compris, taxes non comprises, frais divers compris. Terrain sous réserve de disponibilité de notre partenaire foncier. Images non contractuelles.Cette annonce a été créée et diffusée avec le logiciel VITAHOME.
Villiers-en-Plaine
TERRAIN ET MAISONSpacieuse et lumineuse ! Cette maison en L à partir de 89 m2 habitable, vous offre une généreuse pièce de vie de 40 m2 avec cuisine ouverte sur salon et séjour, cellier isolé. Grande baie coulissante située sur l’arrière. Vous disposez de 3 chambres, dont une équipée avec un dressing ou une salle d’eau équipée avec douche et meuble vasque. Vous disposez également d’une salle de bain équipée avec meuble vasque, douche et/ou baignoire, sèche serviette. Garage attenant de 16 m2. Orientation cuisine salon séjour arrière. Carrelage grand format compris dans toute les pièces (hors chambres) et faïence au choix dans une large gamme disponible.Informations du terrain : Au cœur du lotissement Les Jardins de la Plaine 1, composé de 7 terrains prêts à bâtir, cette parcelle séduit par son calme et son cadre paysager.Entre nature et vie de village, vous profiterez de tous les services essentiels à pied et d’un accès rapide à Niort, à seulement quelques minutes en voiture.Un lieu idéal pour bâtir une maison à votre image, dans une commune conviviale et dynamique. D’autres terrains sont disponibles sur ce lotissement, contactez-nous pour plus d’informations !Informations : Fabien Vaudois au (Numéro supprimé).Prix incluant assurance dommages-ouvrage, VRD compris, terrain viabilisé, assainissement compris, frais de notaire non compris, taxes non comprises, frais divers non compris. Terrain sous réserve de disponibilité de notre partenaire foncier. Images non contractuelles.Cette annonce a été créée et diffusée avec le logiciel VITAHOME.
Villiers-en-Plaine
TERRAIN ET MAISONLa ligne EVOLUTION vous offre une maison plain-pied dès 79 m² habitables, pensée pour s’adapter à votre style de vie. Profitez d’une pièce de vie traversante à partir de 35m², baignée de lumière grâce à une grande baie vitrée, avec cuisine ouverte et cellier isolé pour plus de praticité. Ce modèle se compose de 3 chambres. À l’extérieur, choisissez un garage, un préau ou un carport attenant d’une surface de 15m², parfait pour stationner ou profiter des beaux jours.Informations du terrain : Au cœur du lotissement Les Jardins de la Plaine 1, composé de 7 terrains prêts à bâtir, cette parcelle séduit par son calme et son cadre paysager.Entre nature et vie de village, vous profiterez de tous les services essentiels à pied et d’un accès rapide à Niort, à seulement quelques minutes en voiture.Un lieu idéal pour bâtir une maison à votre image, dans une commune conviviale et dynamique. D’autres terrains sont disponibles sur ce lotissement, contactez-nous pour plus d’informations !Informations : Emeline Douhine au (Numéro supprimé).Prix incluant assurance dommages-ouvrage, VRD compris, terrain viabilisé, assainissement compris, frais de notaire non compris, taxes non comprises, frais divers non compris. Terrain sous réserve de disponibilité de notre partenaire foncier. Images non contractuelles.Cette annonce a été créée et diffusée avec le logiciel VITAHOME.
Saint-Maxire
TERRAIN ET MAISONClassique et fonctionnelle ! Votre maison plain-pied à partir de 95 m2 habitable vous apporte une grande pièce de vie de 45 m2 avec cellier isolé, cuisine et coin repas attenant. Salon indépendant. 2 grandes baies coulissantes exposées sur la terrasse arrière vous offrent luminosité et confort. Vous disposez de 3 chambres dont une située sur la façade arrière, équipée avec un dressing, et une salle d’eau équipée d’un meuble vasque et une douche. La salle de bain est aménagée avec meuble 1 vasque, une grande douche et/ou une baignoire. Garage attenant de 16 m2. Orientation salon et pièce de vie principale exposées sur la terrasse à l’arrière. Carrelage grand format compris dans toute les pièces (hors chambres) et faïence au choix dans une large gamme disponible.Informations du terrain : Construisez votre Maison du Marais sur ce Superbe terrain de 640 M² avec jolie vue côté Sud et Est sur terrain boisé situé dans un quartier calme. Belle largeur de façade.Commune dynamique à 15 Mn de Niort Mendes France et de la zone de la Mude.Informations : Emeline Douhine au (Numéro supprimé).Prix incluant assurance dommages-ouvrage, VRD compris, terrain viabilisé, assainissement compris, frais de notaire compris, taxes non comprises, frais divers compris. Terrain sous réserve de disponibilité de notre partenaire foncier. Images non contractuelles.Cette annonce a été créée et diffusée avec le logiciel VITAHOME.
Villiers-en-Plaine
TERRAIN ET MAISONLumineuse ! Maison plain-pied 3 chambres dont une avec salle d’eau équipée avec une douche et un meuble vasque. Cette maison à partir de 87 m2 habitable vous procure une belle pièce de vie de 40 m2 orientée à l’avant. Cellier isolé attenant au garage de 16 m2. Grande cuisine ouverte sur la pièce de vie éclairée par une baie coulissante sur la façade. Vous accédez de votre cuisine sur une terrasse opposée au séjour. Orientation des chambres situées à l’arrière. Vous bénéficiez également d’une salle de bain équipée avec meuble vasque et baignoire. Carrelage grand format compris dans toute les pièces (hors chambres) et faïence au choix dans une large gamme disponible.Informations du terrain : Au cœur du lotissement Les Jardins de la Plaine 1, composé de 7 terrains prêts à bâtir, cette parcelle séduit par son calme et son cadre paysager.Entre nature et vie de village, vous profiterez de tous les services essentiels à pied et d’un accès rapide à Niort, à seulement quelques minutes en voiture.Un lieu idéal pour bâtir une maison à votre image, dans une commune conviviale et dynamique. D’autres terrains sont disponibles sur ce lotissement, contactez-nous pour plus d’informations !Informations : Fabien Vaudois au (Numéro supprimé).Prix incluant assurance dommages-ouvrage, VRD compris, terrain viabilisé, assainissement compris, frais de notaire non compris, taxes non comprises, frais divers non compris. Terrain sous réserve de disponibilité de notre partenaire foncier. Images non contractuelles.Cette annonce a été créée et diffusée avec le logiciel VITAHOME.
Saint-Christophe-sur-Roc
TERRAINTerrain proche de l'école et du centre de la commune.Prix : 24102.13 €.Informations : Fabien Vaudois au (Numéro supprimé).Sous réserve de disponibilité de notre partenaire foncier. Prix hors frais de notaire. Photos non contractuelles.Cette annonce a été créée et diffusée avec le logiciel VITAHOME.
L’actualité immobilière à Échiré
27/11/2023
02/11/2023
30/10/2023
20/10/2023
16/10/2023
16/10/2023