Images
Description
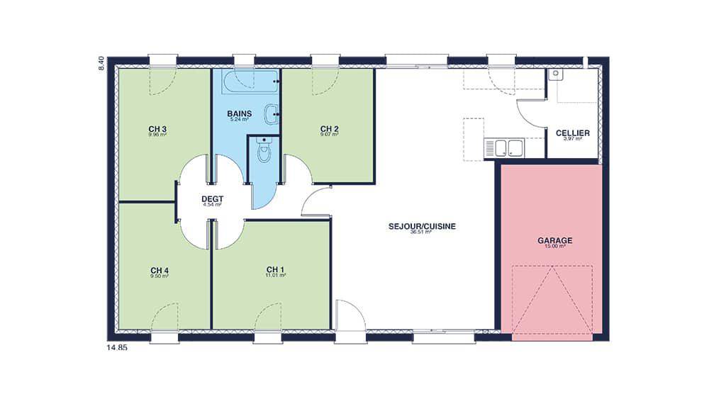
Sur ce terrain, nous vous proposons cette maison neuve : la Focus Family Sud. Conçue par Babeau-Seguin, constructeur reconnu pour offrir le meilleur rapport qualité/prix du marché, cette maison de 89 m² est idéale pour les familles à la recherche d'un logement moderne et économique.
Vous avez un budget serré et rêvez d’une maison au style urbain et contemporain ? La Focus Family Sud est faite pour vous. Cette maison compacte et élégante dispose de 4 chambres et de 4 pièces, offrant un espace de vie optimisé pour votre confort. Le garage intégré de près de 15 m², l'enduit bi-ton et les tuiles Canal ajoutent une touche de charme et de fonctionnalité à cette habitation.
Les options les plus demandées par nos clients, telles que les menuiseries en aluminium, sont disponibles pour personnaliser votre maison selon vos goûts. De plus, cette maison neuve est basse consommation et conforme à la réglementation environnementale RE2020, garantissant des économies d'énergie et un respect de l'environnement.
Ne manquez pas cette opportunité de construire une maison accessible à tous les budgets sans faire l’impasse sur les équipements. Avec ses 4 chambres, un cellier, un large séjour et un garage, la Focus Family Sud n’a rien à envier aux autres modèles de la gamme Babeau-Seguin. Profitez d'une habitation qui allie petit prix et grande prestation.
Logement susceptibles de vous intéresser
Nous vous proposons de découvrir aussi cette sélection de logements situés à moins de 10km de Sauzé-Vaussais et qui seraient susceptibles de vous intéresser.
Sauzé-Vaussais
TERRAINNous vous proposons ce magnifique terrain à vendre, d’une superficie de 540 m², idéalement situé dans le charmant lotissement de Sauzé-Vaussais, dans le département des Deux-Sèvres. Ce terrain, entièrement viabilisé, est le cadre parfait pour concrétiser votre projet de construction de maison. Profitez d’un environnement ensoleillé et au calme, qui saura vous séduire par son atmosphère paisible et conviviale. Sauzé-Vaussais, nichée en Nouvelle-Aquitaine, offre une qualité de vie remarquable grâce à sa proximité avec diverses commodités. Vous trouverez facilement des commerces, des services de santé ainsi que des établissements scolaires. De plus, la commune est réputée pour ses attraits historiques et naturels, faisant de chaque sortie une nouvelle découverte. Que vous soyez amateur de balades en pleine nature ou de moments de convivialité dans un charmant café, cette ville a tout pour plaire. L’emplacement stratégique de ce terrain en fait une opportunité à ne pas manquer pour un avenir serein. Considérez ce terrain comme une toile vierge sur laquelle vous pourrez construire votre futur. Ne laissez pas passer cette chance unique d’acquérir un bien au potentiel inestimable. À noter qu’en tant que constructeur, nous ne sommes pas mandatés pour réaliser la vente de ce terrain.
Sauzé-Vaussais
TERRAINNous vous proposons un superbe terrain à vendre, situé dans le charmant lotissement de Sauzé-Vaussais, s’étendant sur une généreuse superficie de 943 m². Ce terrain viabilisé, ensoleillé et au calme, constitue une occasion rêvée pour la construction de votre maison idéale. Sa situation géographique en fait un emplacement de choix, favorisant un mode de vie paisible tout en étant à proximité des commodités. Située dans le département des Deux-Sèvres, en Nouvelle-Aquitaine, Sauzé-Vaussais offre un cadre de vie agréable avec de nombreuses attractions locales. Vous bénéficierez de divers services de proximité, ainsi que d’un accès facile aux écoles, commerces, et infrastructures sportives. Avec ses allures pittoresques et ses paysages remarquables, cette ville procure un véritable épanouissement pour ses habitants, rendant ce terrain d’autant plus attractif pour les familles et les amoureux de la nature. Ce terrain est une opportunité à ne pas manquer pour quiconque souhaite réaliser un projet de construction dans un cadre propice. N’hésitez pas à envisager cette offre unique qui combine tranquillité et opportunités d’aménagement selon vos envies. À noter qu’en tant que constructeur, nous ne sommes pas mandatés pour réaliser la vente de ce terrain.
Sauzé-Vaussais
TERRAIN ET MAISONSur ce terrain, nous vous proposons cette maison neuve, la Provencière, conçue par Babeau-Seguin, constructeur offrant le meilleur rapport qualité/prix du marché. Inspirée par le charme de la Provence, cette maison de 134 m² allie élégance et fonctionnalité.La Provencière se distingue par son architecture typiquement provençale avec sa tour et son plan en L. Elle est disponible avec une toiture à 2 pans ou 4 pans, selon vos préférences. La maison comprend 4 chambres spacieuses et 4 pièces, offrant un espace de vie confortable et bien agencé.Les caractéristiques principales de cette maison incluent une dalle étage en béton, une avancée en tour et une galerie, ajoutant une touche de prestige et de charme à l’ensemble. Les options les plus demandées par nos clients, telles que l’enduit bi-ton et les menuiseries en aluminium, sont également disponibles pour personnaliser votre maison selon vos goûts.Cette maison neuve est basse consommation et conforme à la réglementation environnementale RE2020, garantissant une performance énergétique optimale et un respect de l’environnement.Prestigieuse et attachante, cette maison du sud vous fera sans doute craquer ! Idéale pour les terrains étroits, la Provencière conserve tous les avantages de la gamme, offrant un espace de vie harmonieux et fonctionnel.Ne manquez pas cette opportunité unique de devenir propriétaire d’une maison alliant tradition provençale et modernité, avec le meilleur rapport qualité/prix du marché. Contactez-nous dès aujourd’hui pour plus d’informations et pour planifier une visite.
Sauzé-Vaussais
TERRAIN ET MAISONSur ce terrain, nous vous proposons cette maison neuve : la Focus Family Sud. Conçue par Babeau-Seguin, constructeur reconnu pour offrir le meilleur rapport qualité/prix du marché, cette maison de 89 m² est idéale pour les familles à la recherche d’un logement moderne et économique.Vous avez un budget serré et rêvez d’une maison au style urbain et contemporain ? La Focus Family Sud est faite pour vous. Cette maison compacte et élégante dispose de 4 chambres et de 4 pièces, offrant un espace de vie optimisé pour votre confort. Le garage intégré de près de 15 m², l’enduit bi-ton et les tuiles Canal ajoutent une touche de charme et de fonctionnalité à cette habitation.Les options les plus demandées par nos clients, telles que les menuiseries en aluminium, sont disponibles pour personnaliser votre maison selon vos goûts. De plus, cette maison neuve est basse consommation et conforme à la réglementation environnementale RE2020, garantissant des économies d’énergie et un respect de l’environnement.Ne manquez pas cette opportunité de construire une maison accessible à tous les budgets sans faire l’impasse sur les équipements. Avec ses 4 chambres, un cellier, un large séjour et un garage, la Focus Family Sud n’a rien à envier aux autres modèles de la gamme Babeau-Seguin. Profitez d’une habitation qui allie petit prix et grande prestation.
Sauzé-Vaussais
TERRAIN79190 – SAUZE-VAUSSAIS – CENTRE VILLE – TERRAIN – 1039 M² – EMPLACEMENT IDÉAL A PROXIMITE DES COMMERCES ET DES ECOLESefficity, l’agence qui estime votre bien en ligne, vous propose ce terrain de 1039 m² situé au cœur de Sauzé-Vaussais, à proximité immédiate des commerces et des écoles.Ce terrain, idéalement situé à coté du centre-ville, offre un emplacement de choix pour la construction de votre futur projet immobilier. Sa surface de 1039 m² vous permettra de donner libre cours à toutes vos idées et ambitions.En très bon état général et déjà viabilisé, ce terrain représente une réelle opportunité pour concrétiser votre projet de construction dans les meilleurs conditions.Profitez d’un cadre de vie agréable et pratique au quotidien, en étant à proximité de toutes les commodités nécessaires, tout en bénéficiant d’un environnement calme et verdoyant.Ne manquez pas cette occasion unique de devenir propriétaire d’un terrain idéalement situé, offrant un potentiel de construction exceptionnel.Pour plus d’informations et pour organiser une visite, contactez-moi au (Numéro supprimé) ou par e-mail à (Email supprimé). Les informations sur les risques auxquels ce bien est exposé sont disponibles sur le site Georisque : georisques. gouv. fr Aurélie Fayoux – EI – est Agent Commercial mandataire en immobilier, immatriculé au Registre Spécial des Agents Commerciaux du Tribunal de Commerce de Angoulême sous le n(Numéro supprimé).Siège social du mandant : effiCity, 48 avenue de Villiers – 75017 PARIS – Société par Actions Simplifiée, société au capital de 132 373,05 euros, immatriculée au RCS Paris 497 617 746 et titulaire de la Carte professionnelle CPI 7501 2015 000 002 025 – CCI Paris IDF – Caisse de Garantie : GALIAN Assurances 89 rue de la Boétie 75008 Paris
Sauzé-Vaussais
TERRAINÀ vendre : Terrain de 666 m² viabilisé, clos, portail, proche de toutes commodités !Découvrez ce terrain spacieux, idéalement situé, viabilisé (coffret électrique, eau) et clos par des murs avec portail.Points forts :Garage spacieux : Double porte, d’une superficie de 65m² au sol, avec un étage de 65 m², offrant un potentiel exceptionnel pour une conversion en habitation ou un espace de loisirs.Opportunité de construction : Possibilité de bâtir une maison selon vos projets et besoins, tout en profitant d’un cadre agréable.Ce terrain représente une occasion unique. Contactez-moi pour plus de détails et pour planifier une visite !Cette annonce référence 256853 vous est présentée par votre agent commercial BSK Immobilier CHRYSTELLE QUINTARD (EI) immatriculé au RSAC de NIORT (79000) sous le numéro 88100060800011.Prix du bien : 43 500,00 €Les honoraires d’agence sont à la charge du vendeur.Les informations sur les risques auxquels ce bien est exposé sont disponibles sur le site Géorisques : www.georisques.gouv.fr
Sauzé-Vaussais
TERRAINTerrain très bien situé à Sauzé-Vaussais 79-Proche des commodités: boulangerie, superette, tabac, supermarché.-Sur le plan scolaire: école maternelle, primaire et collège à 2 minutes à pieds.-Situation géographique: à 5 minutes de la N10, à pareil distances entres Poitiers 86 Niort 79 et Angoulême 16 40-45 minutes.Superficie de plus de 1030M²Raccordements: eau, électricité, téléphone en bord de terrainAssainissement collectifSecteur calme: petit lotissementEtude de sol G1 effectuée.Cette annonce référence 219952 vous est présentée par votre agent commercial BSK Immobilier LUCYLLE MULTEAU (EI) immatriculé au RSAC de NIORT (79000) sous le numéro 84376239400024.Prix du bien : 21 000,00 €Les honoraires d’agence sont à la charge du vendeur.Les informations sur les risques auxquels ce bien est exposé sont disponibles sur le site Géorisques : www.georisques.gouv.fr
L’actualité immobilière à Sauzé-Vaussais
27/11/2023
02/11/2023
30/10/2023
20/10/2023
16/10/2023
16/10/2023